Размещено на портале Архи.ру (www.archi.ru)

05.04.2013

Ратуша с площадью внутри

Объект:
Ратуша города Нагаока "Аорэ"
Адрес:
Япония, None, Нагаока.

В своем проекте ратуши города Нагаока Кенго Кума объединил собственно здание и пешеходную площадь.

Ратуша города Нагаока «Аорэ» © Erieta Attali
Ратуша города Нагаока «Аорэ» © Erieta Attali
Перед архитектором стояла задача спроектировать не просто энное количество новых административных помещений, но создать общегородской центр  притяжения, место, куда бы могли приходить горожане за информацией, или на выставку, или просто чтобы пообщаться друг с другом.
Ратуша города Нагаока «Аорэ» © Erieta Attali
Ратуша города Нагаока «Аорэ» © Erieta Attali

В поисках решения Кума предложил принципиально новую типологию административного комплекса: если обычно это замкнутое само на себя здание, окруженное парковками и, если повезет, общественными пространствами, то здесь центром постройки становится именно площадь. Эдакая пьяцца, на которой круглые сутки кипит жизнь: благодаря многочисленными кафе, магазинам и прочим полезным и приятным заведениям. 
Ратуша города Нагаока «Аорэ» © Erieta Attali
Ратуша города Нагаока «Аорэ» © Erieta Attali

Именно вокруг такой площади Кума и возводит каркас здания. Для того, чтобы это пространство не превратилось в банальный атриум, архитектор выполняет ограждающие конструкции из металлических секций, пространство между которыми заполняет стеклом. Вместо монолитных стен возникают проницаемые перегородки, делающие границу между зданием и городом довольно условной.
Ратуша города Нагаока «Аорэ» © Erieta Attali
Ратуша города Нагаока «Аорэ» © Erieta Attali

В качестве декора архитектор использует свой излюбленный материал – дерево, которое (уже  не в первый или даже второй раз) представлено в виде небольших прямоугольных панелей, украшенных ребристым рисунком. Размещая их в шахматном порядке и под разным углом, Кума добивается еще большего сходства стен здания с легкой, почти невесомой ширмой. И если в «интерьере» площади применены только деревянные панели, но на внешних фасадах комплекса они чередуются с такими же по форме и размерам солнечными батареями.
Ратуша города Нагаока «Аорэ» © Erieta Attali
Ратуша города Нагаока «Аорэ» © Erieta Attali

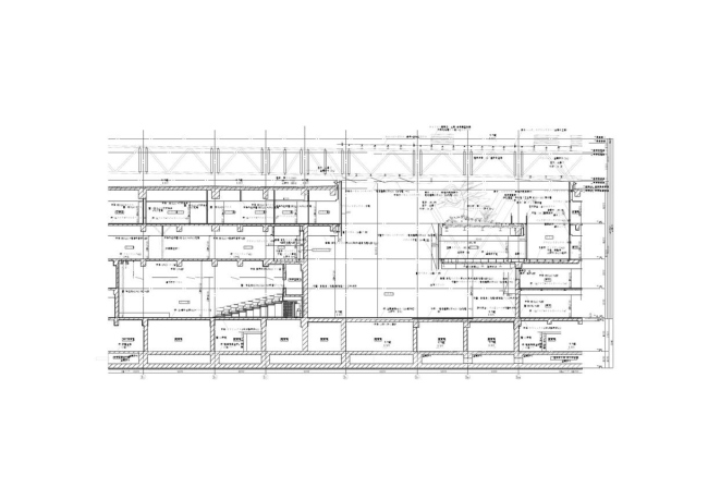
Помимо собственно площади и необходимых администрации города офисных помещений в состав нового комплекса вошли конференц-центр, банк, многочисленные магазины, рестораны и кафе, а также паркинг.

А. М.

Ратуша города Нагаока «Аорэ» © Erieta Attali
Ратуша города Нагаока «Аорэ» © Erieta Attali
Ратуша города Нагаока «Аорэ» © Erieta Attali
Ратуша города Нагаока «Аорэ» © Erieta Attali
Ратуша города Нагаока «Аорэ» © Erieta Attali
Ратуша города Нагаока «Аорэ» © Erieta Attali
Ратуша города Нагаока «Аорэ» © Erieta Attali
Ратуша города Нагаока «Аорэ» © Erieta Attali
Ратуша города Нагаока «Аорэ» © Erieta Attali
Ратуша города Нагаока «Аорэ» © Erieta Attali
Ратуша города Нагаока «Аорэ» © Erieta Attali
Ратуша города Нагаока «Аорэ» © Erieta Attali
Ратуша города Нагаока «Аорэ» © Erieta Attali
Ратуша города Нагаока «Аорэ» © Erieta Attali
Ратуша города Нагаока «Аорэ» © Kengo Kuma & Associates | FUJITSUKA Mitsumasa
Ратуша города Нагаока «Аорэ» © Kengo Kuma & Associates | FUJITSUKA Mitsumasa
Ратуша города Нагаока «Аорэ» © Kengo Kuma & Associates | FUJITSUKA Mitsumasa
Ратуша города Нагаока «Аорэ» © Kengo Kuma & Associates | FUJITSUKA Mitsumasa
Ратуша города Нагаока «Аорэ» © Kengo Kuma & Associates | FUJITSUKA Mitsumasa
Ратуша города Нагаока «Аорэ» © Kengo Kuma & Associates | FUJITSUKA Mitsumasa
Ратуша города Нагаока «Аорэ» © Kengo Kuma & Associates | FUJITSUKA Mitsumasa
Ратуша города Нагаока «Аорэ» © Kengo Kuma & Associates | FUJITSUKA Mitsumasa
Ратуша города Нагаока «Аорэ» © Kengo Kuma & Associates | FUJITSUKA Mitsumasa
Ратуша города Нагаока «Аорэ» © Kengo Kuma & Associates | FUJITSUKA Mitsumasa
Ратуша города Нагаока «Аорэ» © Erieta Attali
Ратуша города Нагаока «Аорэ» © Erieta Attali
Ратуша города Нагаока «Аорэ» © Kengo Kuma & Associates | FUJITSUKA Mitsumasa
Ратуша города Нагаока «Аорэ» © Kengo Kuma & Associates | FUJITSUKA Mitsumasa
Ратуша города Нагаока «Аорэ» © Erieta Attali
Ратуша города Нагаока «Аорэ» © Erieta Attali
Ратуша города Нагаока «Аорэ» © Erieta Attali
Ратуша города Нагаока «Аорэ» © Erieta Attali
Ратуша города Нагаока «Аорэ» © Erieta Attali
Ратуша города Нагаока «Аорэ» © Erieta Attali
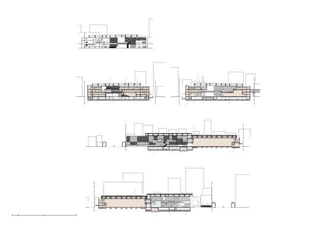
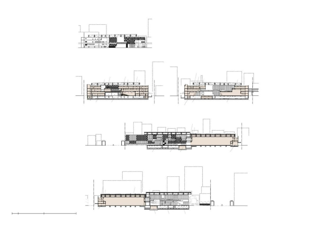
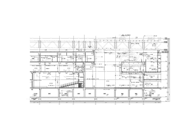
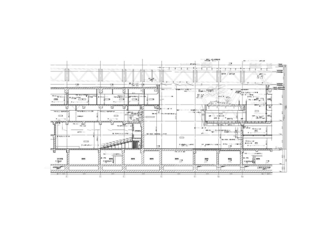
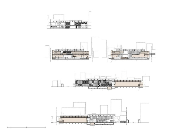
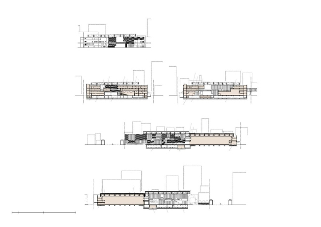
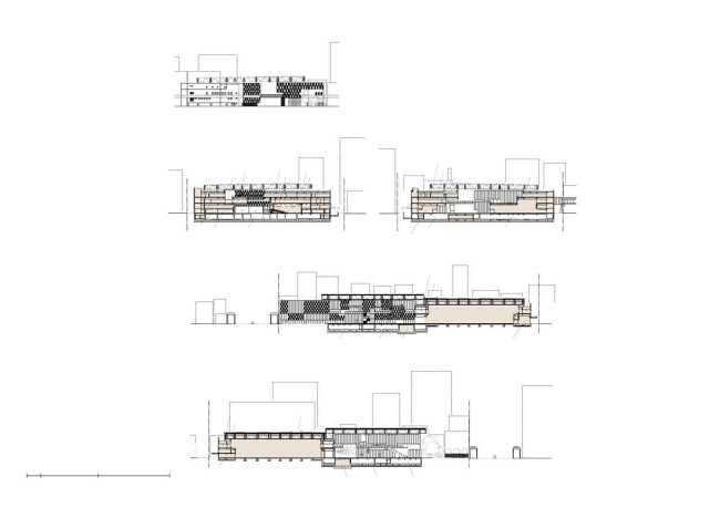
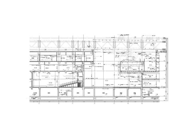
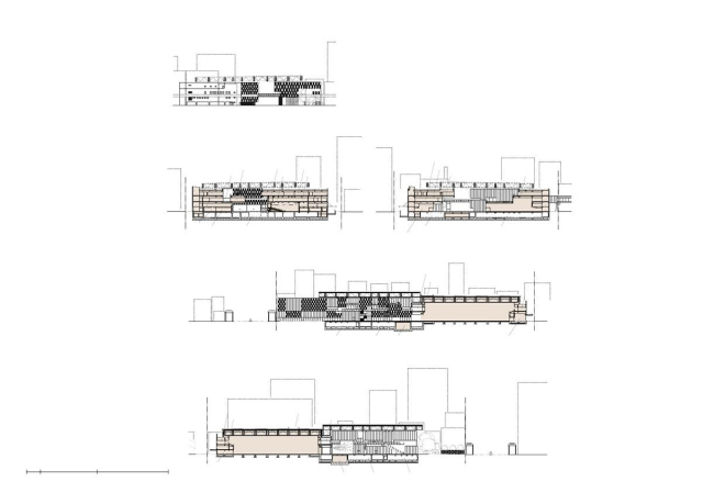
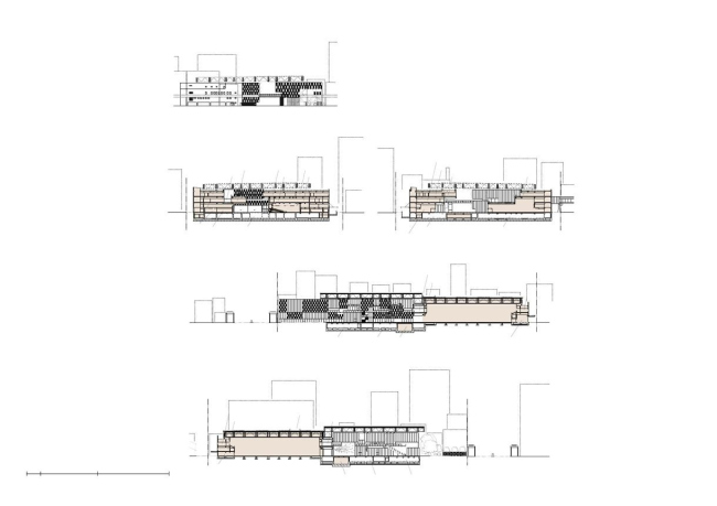
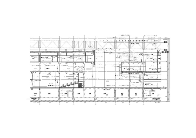
Ратуша города Нагаока «Аорэ» © Kengo Kuma & Associates
Ратуша города Нагаока «Аорэ» © Kengo Kuma & Associates
Ратуша города Нагаока «Аорэ» © Kengo Kuma & Associates
Ратуша города Нагаока «Аорэ» © Kengo Kuma & Associates
Ратуша города Нагаока «Аорэ» © Kengo Kuma & Associates
Ратуша города Нагаока «Аорэ» © Kengo Kuma & Associates
Ратуша города Нагаока «Аорэ» © Kengo Kuma & Associates
Ратуша города Нагаока «Аорэ» © Kengo Kuma & Associates
Ратуша города Нагаока «Аорэ» © Kengo Kuma & Associates
Ратуша города Нагаока «Аорэ» © Kengo Kuma & Associates
Ратуша города Нагаока «Аорэ» © Kengo Kuma & Associates
Ратуша города Нагаока «Аорэ» © Kengo Kuma & Associates
Ратуша города Нагаока «Аорэ» © Kengo Kuma & Associates
Ратуша города Нагаока «Аорэ» © Kengo Kuma & Associates