Размещено на портале Архи.ру (www.archi.ru)

03.04.2013

Оксфордский переулок

Объект:
Общежитие Сомервилл-колледжа
Адрес:
Великобритания, None, Оксфорд.
Район Обсерватории Рэдклиффа
Адрес:
Великобритания, None, Оксфорд.
Мастерская:
Níall McLaughlin Architects

Бюро Niall McLaughlin Architects построило студенческое общежитие для Сомервилл-колледжа.

Общежитие Сомервилл-колледжа © Niall McLaughlin Architects
Общежитие Сомервилл-колледжа © Niall McLaughlin Architects
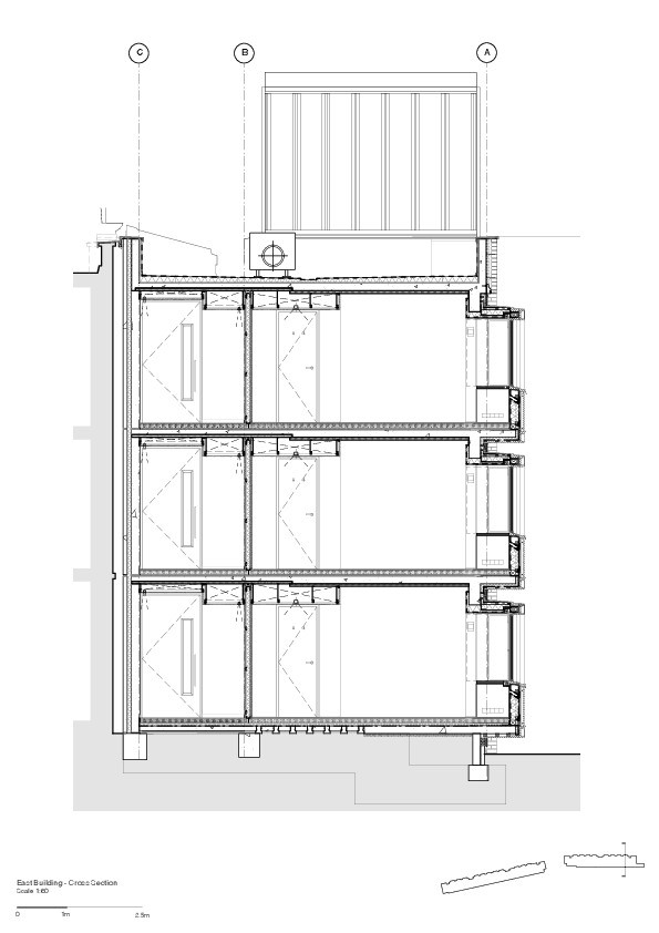
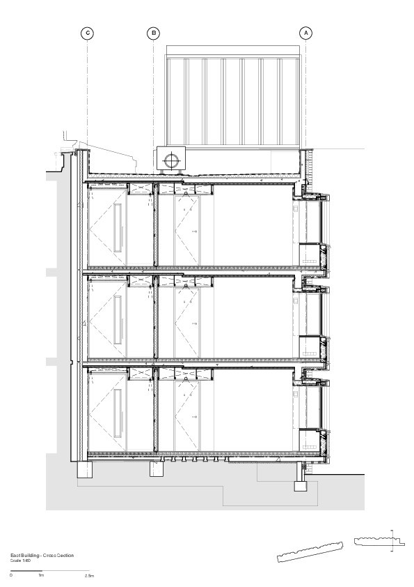
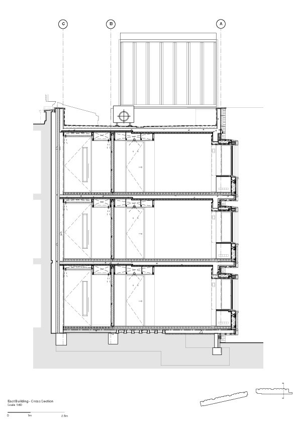
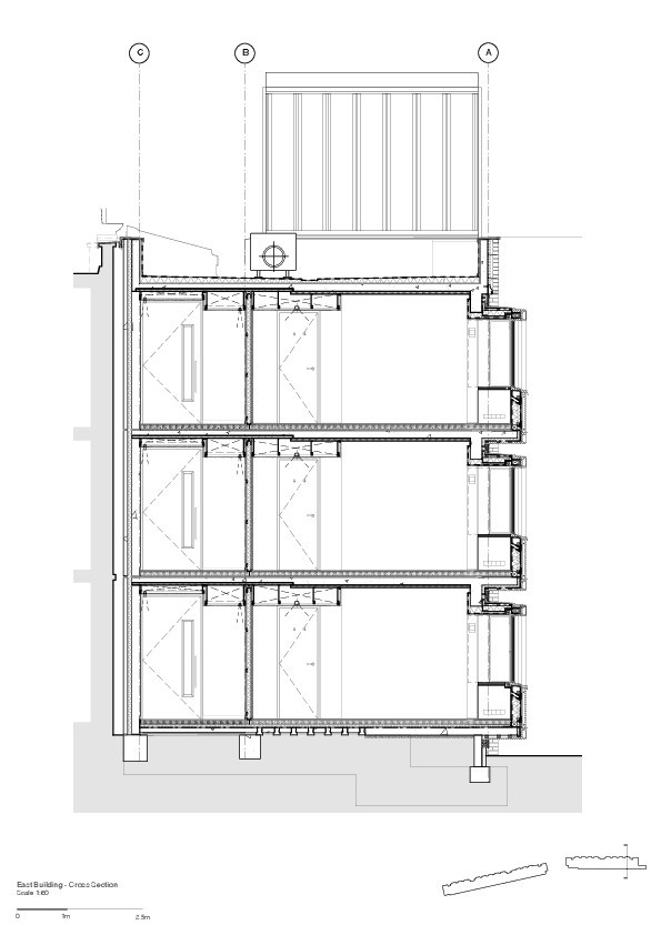
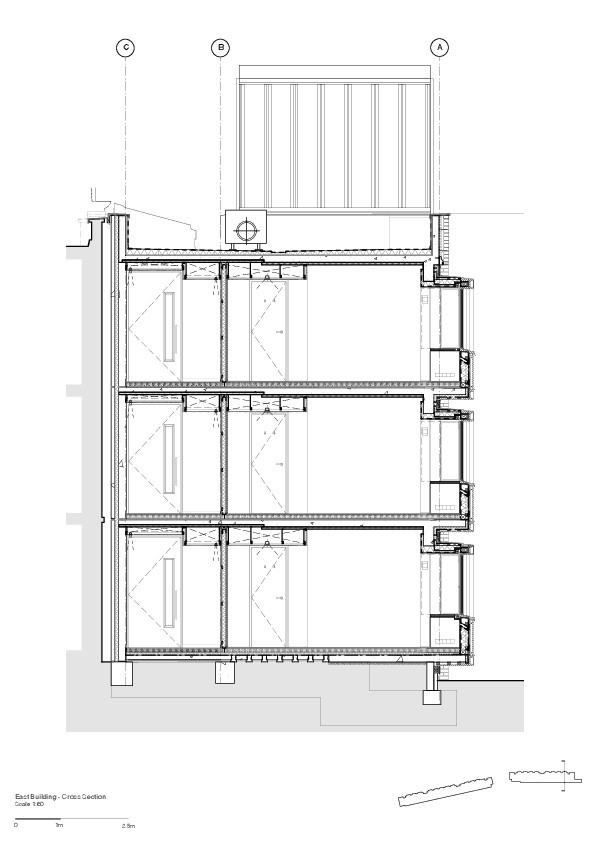
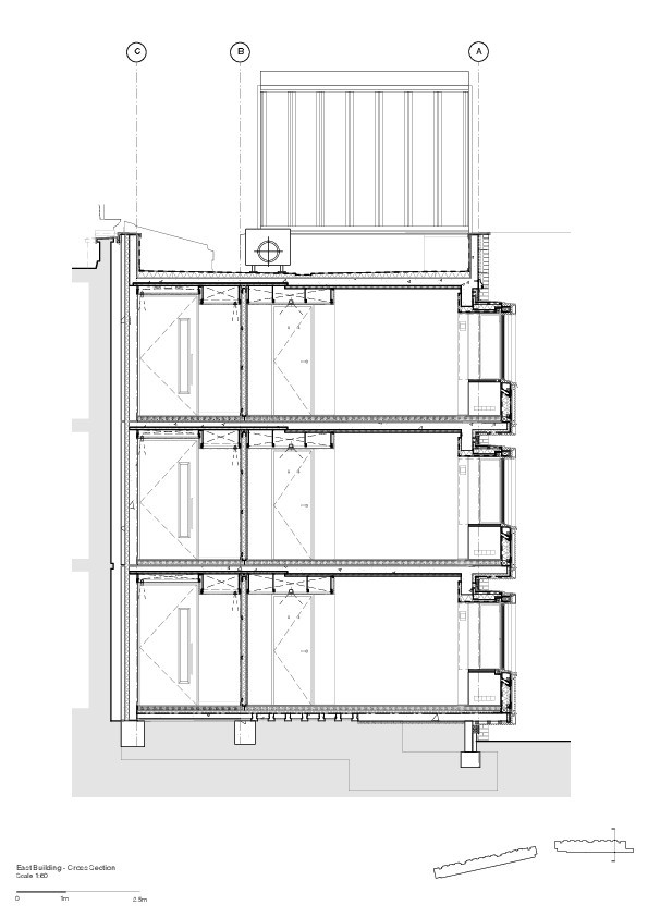
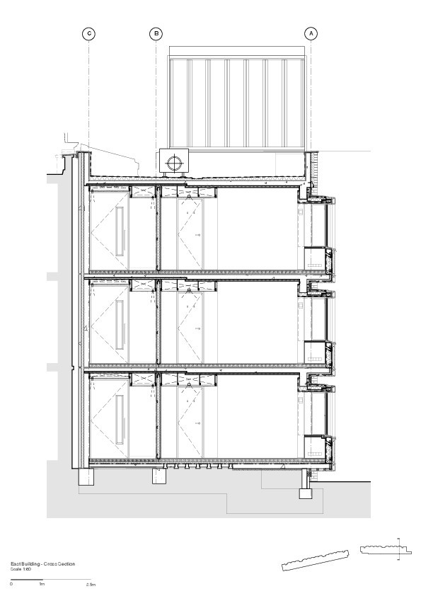
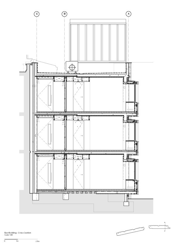
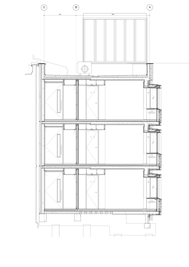
Два жилых корпуса появились на границе территории колледжа и расположенного к северу от него участка нового строительства на месте снесенного госпиталя Рэдклиффа. Чтобы закрыть обращенную к бывшей больнице глухую стену, Оксфордский университет выделил колледжу полосу земли длиной 175 м и шириной 6 м для строительства общежития. Это позволило разместить на его каждом этаже лишь коридор и выходящие в него с северной стороны комнаты студентов.
Общежитие Сомервилл-колледжа © Nick Kane
Общежитие Сомервилл-колледжа © Nick Kane

Лестничные башни общежития фланкируют новый, северный вход в комплекс колледжа, откуда открывается вид на Обсерваторию Рэдклиффа — классицистическое сооружение в центре зоны нового строительства.
Общежитие Сомервилл-колледжа © Nick Kane
Общежитие Сомервилл-колледжа © Nick Kane

Когда это строительство завершат, корпуса общежития полностью составят одну из сторон узкого переулка, идущего вдоль Сомервилл-колледжа, поэтому их облик архитекторы трактовали с учетом этой градостроительной ситуации. Каждая из комнат снабжена дубовым «эркером», где обустроено место для занятий, и такое пластичное решение фасадов позволило оживить вид на корпуса в перспективе.
Общежитие Сомервилл-колледжа © Nick Kane
Общежитие Сомервилл-колледжа © Nick Kane

Общежитие получило солнечные коллекторы и батареи на крыше, геотермальную отопительную систему, улучшенную изоляцию оболочки, что позволило ему получить сертификат «very good» по стандарту BREEAM.

Н. Ф.
Общежитие Сомервилл-колледжа © Niall McLaughlin Architects
Общежитие Сомервилл-колледжа © Niall McLaughlin Architects
Общежитие Сомервилл-колледжа © Niall McLaughlin Architects
Общежитие Сомервилл-колледжа © Niall McLaughlin Architects
Общежитие Сомервилл-колледжа © Nick Kane
Общежитие Сомервилл-колледжа © Nick Kane
Общежитие Сомервилл-колледжа © Nick Kane
Общежитие Сомервилл-колледжа © Nick Kane
Общежитие Сомервилл-колледжа © Nick Kane
Общежитие Сомервилл-колледжа © Nick Kane
Общежитие Сомервилл-колледжа © Niall McLaughlin Architects
Общежитие Сомервилл-колледжа © Niall McLaughlin Architects
Общежитие Сомервилл-колледжа © Niall McLaughlin Architects
Общежитие Сомервилл-колледжа © Niall McLaughlin Architects
Общежитие Сомервилл-колледжа © Niall McLaughlin Architects
Общежитие Сомервилл-колледжа © Niall McLaughlin Architects
Общежитие Сомервилл-колледжа © Niall McLaughlin Architects
Общежитие Сомервилл-колледжа © Niall McLaughlin Architects
Общежитие Сомервилл-колледжа © Niall McLaughlin Architects
Общежитие Сомервилл-колледжа © Niall McLaughlin Architects
Общежитие Сомервилл-колледжа © Niall McLaughlin Architects
Общежитие Сомервилл-колледжа © Niall McLaughlin Architects
Общежитие Сомервилл-колледжа © Niall McLaughlin Architects
Общежитие Сомервилл-колледжа © Niall McLaughlin Architects
Общежитие Сомервилл-колледжа © Niall McLaughlin Architects
Общежитие Сомервилл-колледжа © Niall McLaughlin Architects
Общежитие Сомервилл-колледжа © Niall McLaughlin Architects
Общежитие Сомервилл-колледжа © Niall McLaughlin Architects
Общежитие Сомервилл-колледжа © Niall McLaughlin Architects
Общежитие Сомервилл-колледжа © Niall McLaughlin Architects
Общежитие Сомервилл-колледжа © Niall McLaughlin Architects
Общежитие Сомервилл-колледжа © Niall McLaughlin Architects
Общежитие Сомервилл-колледжа © Niall McLaughlin Architects
Общежитие Сомервилл-колледжа © Niall McLaughlin Architects