Размещено на портале Архи.ру (www.archi.ru)

15.04.2013

Искусство жестких рамок

Татьяна Пашинцева
Объект:
Реконструкция офисного здания на проспекте Мира
Адрес:
Россия, Москва. Проспект Мира, 127
Архитектор:
Андрей Романов
Екатерина Кузнецова
Мастерская:
ADM

Архитектурная мастерская ADM превратила морально устаревший долгострой в современный офисный центр.

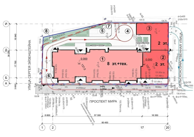
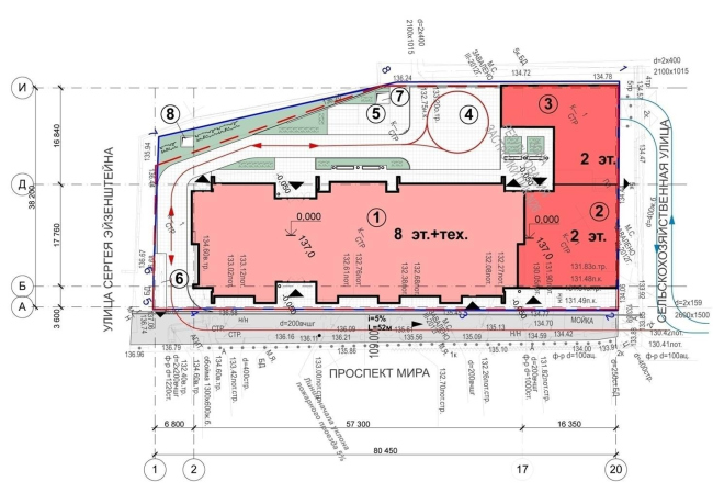
Реконструкция офисного здания на проспекте Мира. Проект, 2013 © ADM
Реконструкция офисного здания на проспекте Мира. Проект, 2013 © ADM
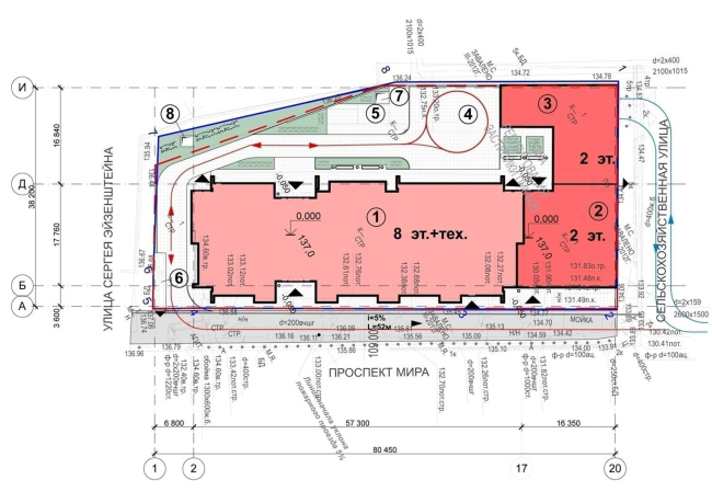
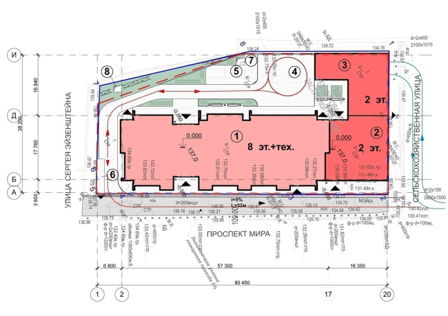
Больше пяти лет на проспекте Мира в Москве стоял недостроенный железобетонный объем, наводя на пешеходов тоску пустыми провалами проемов и массивной решеткой перекрытий. В прошлом году новый владелец здания обратился в архитектурную мастерскую ADM с просьбой привести «руины» в порядок, превратив заброшенный каркас в современный офисный комплекс. При этом имеющиеся выступающие бетонные пилоны заказчик хотел оставить, поэтому архитекторам пришлось работать в прямом смысле в очень жестких рамках.
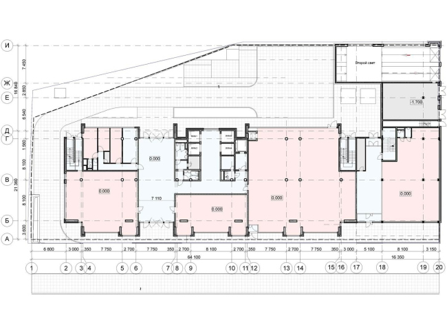
Существующее положение
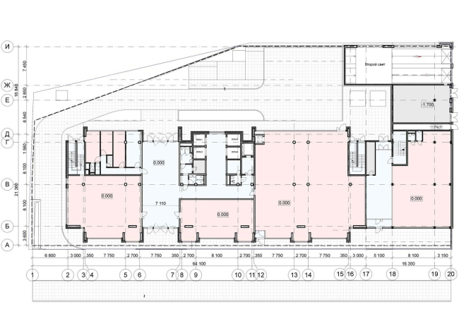
Существующее положение

Причем эти «рамки» были совсем не идеальных пропорций: и без того приземистый объем казался еще коренастее под массивным бетонным козырьком. Да и заявленная прежними авторами (неизвестными зарубежными архитекторами, сделавшими эскиз-идею), брутальная стилистика не очень вязалась с царящим на проспекте Мира контекстом сталинской архитектуры. Конечно, Андрей Романов не ставил перед собой цель слиться с ним, но и не учитывать сложившуюся среду он не мог. «Нам хотелось, чтобы новое здание не превратилось в безликую чужеродную «стекляшку», а вписывалось в строчку Проспекта мира с характерной для него сталинской архитектурой, то есть искусно прорисованными фасадами, большим количеством деталей и непременной керамикой», – поясняет сам архитектор.

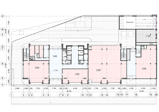
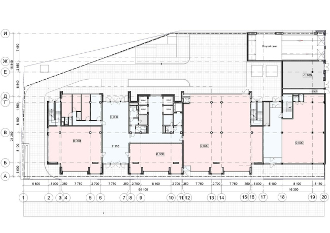
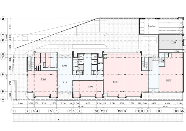
Всесторонне проанализировав современное состояние недостроенного объема, архитекторы пришли к выводу, что одним косметическим вмешательством по декорированию фасада обойтись не удастся. Прежде всего, потому что планировочная схема здания не вполне соответствовала новой функциональной программе. Например, ADM были вынуждены переделать лифтовую группу – добавить пассажирские и технические лифты, скомпоновать их с учетом рекомендаций по эргономике, организовать комфортные лифтовые холлы. Но, конечно же, основного внимания потребовал фасад.

Первым шагом стало исправление пропорций – здание вытянули вверх, удлинив пять выступающих эркеров и тем самым визуально облегчив его верхнюю часть и сместив акцент с козырька. Второе изменение коснулось рисунка фасада – архитекторы стремились придать ему подчеркнуто современный, но не минималистский вид, и усложнить внешность лаконичных поверхностей с помощью пластически выверенных декоративных элементов. Деталировка создается графическим членением фасада выступающими перпендикулярно стеклу или накладывающимися на него рейками, облицованными композитным материалом алполик с текстурой дерева. Монолитные части фасада (стены, пилоны) выполнены по системе вентилируемых фасадов Диат с клинкерной плиткой «под старину».

Дерево и пестрая кирпичная кладка придают образу теплоту, а раскладки из разноформатных ламелей и тщательная прорисовка деталей (подоконные блоки из стемалита, тавровые балки-пояса вдоль перекрытий) задают человеческий масштаб. Горизонтальное и вертикальное членение объема корреспондируется с фасадами соседних зданий и не нарушает размеренного восприятия застройки.

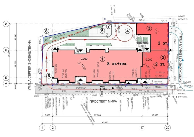
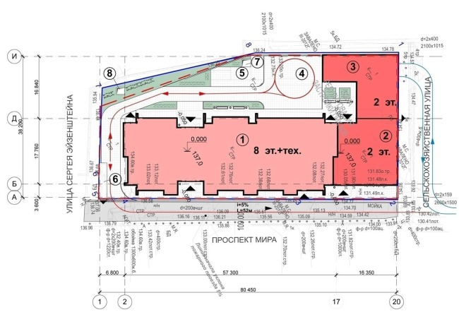
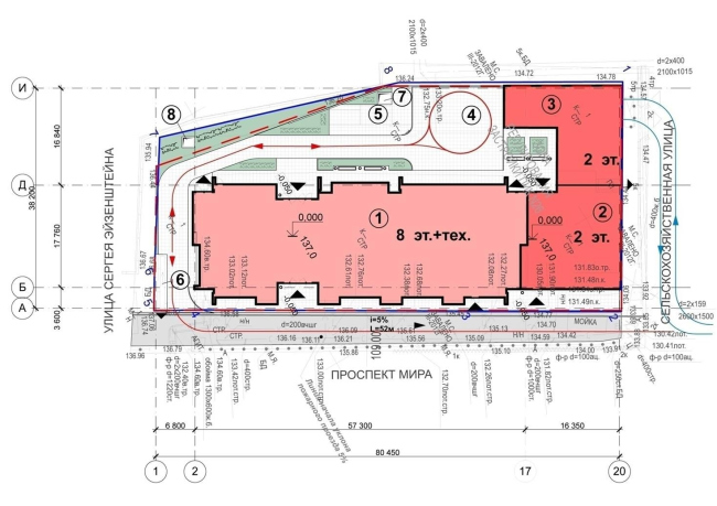
Первый этаж, отданный под магазины и сферу обслуживания, облицован серым гранитом, что сообщает ему солидность и визуально подчеркивает типологическое зонирование. Семь вышерасположенных этажей предназначены под офисные помещения свободной планировки. На последнем этаже предусмотрен выход из офисов на открытые террасы. Кроме того, к существующему каркасу пристроен двухэтажный объем, первый этаж которого также займут общественные функции, а второй – офисы. И если в отделке основного здания «деревянные» ламели деликатно вживлены в кирпичное одеяние, то пристройка отделана только ими – визуальная легкость и натуральный цвет этих элементов призваны подчеркнуть камерный масштаб дополнительного объема.

Строительство офисного комплекса планируется закончить к концу текущего года. И тогда в Москве одним «выбитым зубом» недостроя станет меньше. «Мне стало жаль этот проект и, несмотря на то, что мы были очень ограничены при его доработке и не могли сделать какие угодно фасады, мы постарались сделать эту работу как можно лучше во имя города, которому мы таким образом возвращаем здание».
Реконструкция офисного здания на проспекте Мира. Проект, 2013 © ADM
Реконструкция офисного здания на проспекте Мира. Проект, 2013 © ADM
Реконструкция офисного здания на проспекте Мира. Проект, 2013 © ADM
Реконструкция офисного здания на проспекте Мира. Проект, 2013 © ADM