Размещено на портале Архи.ру (www.archi.ru)

22.03.2013

Спортивный циклон

Объект:
Стадион Wanangkura
Адрес:
Австралия, None, Порт-Хедленд.
Мастерская:
ARM
Авторский коллектив:
Howard Raggatt, Andrew Lilleyman, Sophie Cleland, Rhonda Mitchell, Tim Pyke, Sarah Lake, Jenny Watson

Бюро ARM построило спорткомплекс Wanangkura в городе Порт-Хедланд на западном побережье Австралии.

Стадион Wanangkura © Peter Bennetts
Стадион Wanangkura © Peter Bennetts
Порт-Хедланд — не только важный грузовой порт, но и центр добычи железной руды, поэтому значительная часть его населения — сезонные рабочие. Они, как и большинство других путешественников, прибывают в город по воздуху, перелетая через красную пустыню. Поэтому архитекторы посчитали, что их заметный сверху объект должен служить для авиапассажиров своего рода воротами в Порт-Хедланд. В отличие от синих фасадов с «пиксельным» рисунком, крыша площадью 3500 м2 покрыта черно-белыми полосами — это цвета местной футбольной команды.
Стадион Wanangkura © Peter Bennetts
Стадион Wanangkura © Peter Bennetts

Но эффектность постройки не была самой важной целью для авторов проекта, важнее было соответствовать особенностями климата. Эта часть Австралии страдает от циклонов, нашествие которых продолжается сезонами, поэтому постройка может выдержать ветер силой 85 м/с. Название Wanangkura — также отсылка к ураганам: с языка аборигенов кариярра оно переводится как «вихрь» или «смерч».
Стадион Wanangkura © Peter Bennetts
Стадион Wanangkura © Peter Bennetts

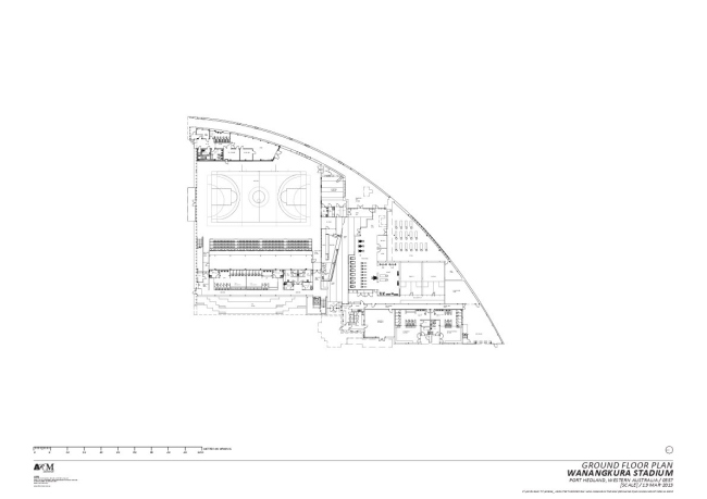
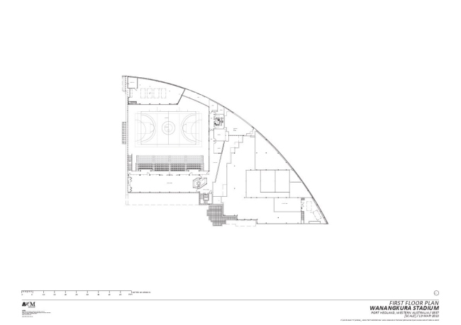
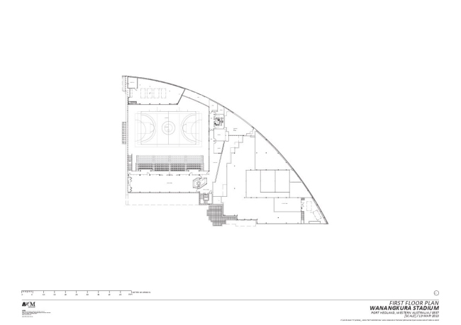
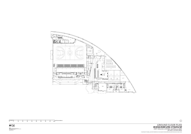
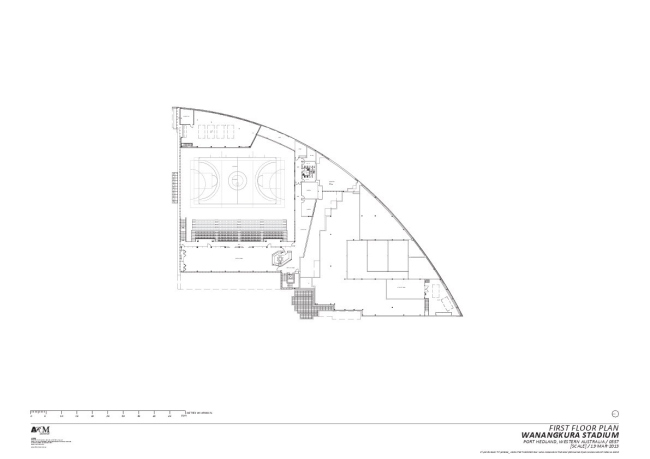
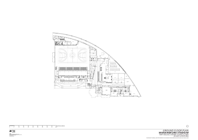
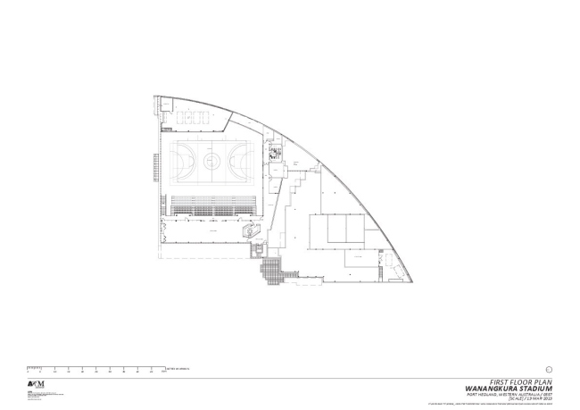
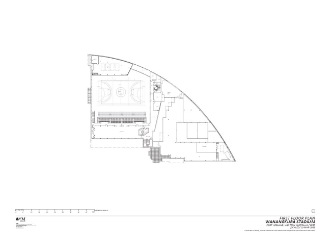
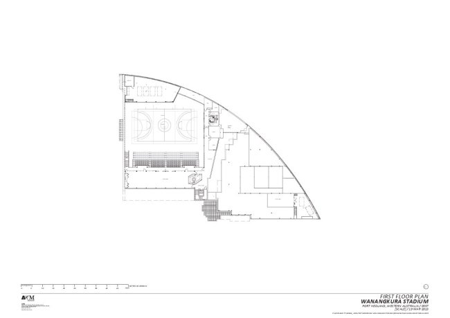
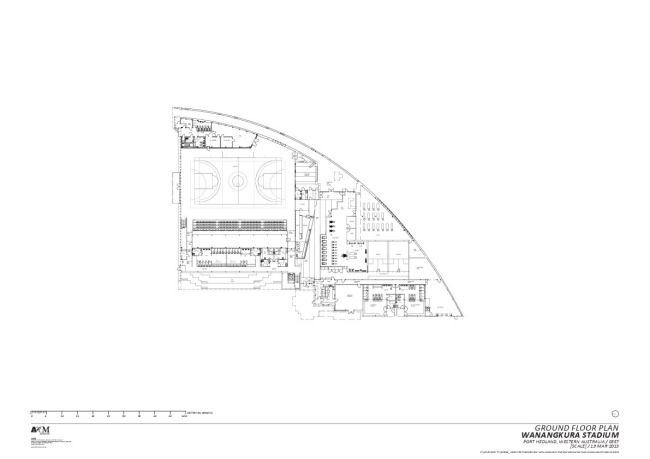
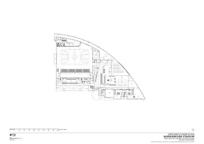
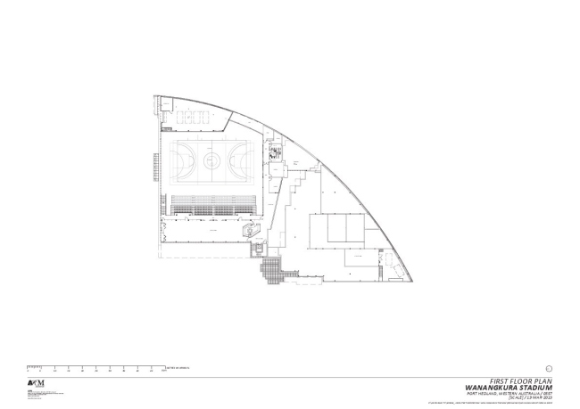
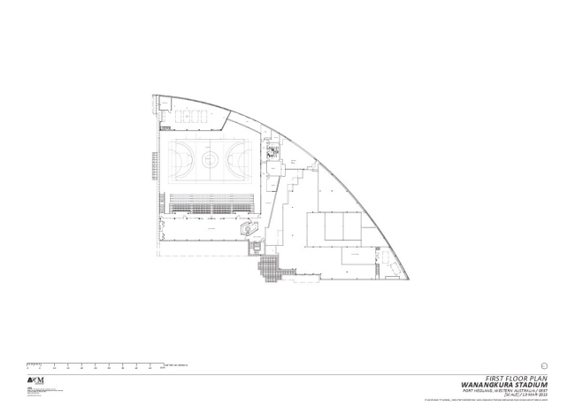
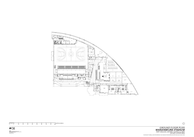
В плане здание имеет форму четверти круга: округлый главный фасад с желтой пещерой-входом эффектно смотрится издали, а стена, обращенная к расположенному рядом крикетному полю, напротив, снабжена различными подсобными сооружениями: трибунами, раздевалками и т. д.
Стадион Wanangkura © Peter Bennetts
Стадион Wanangkura © Peter Bennetts

Внутри спорткомплекса расположены главный зал с твердым покрытием, тренажерный зал, корты для сквоша, помещения местных футбольных клубов. К зданию примыкают открытые площадки для игры в баскетбол и нетбол.

Н. Ф.
Стадион Wanangkura © Peter Bennetts
Стадион Wanangkura © Peter Bennetts
Стадион Wanangkura © Peter Bennetts
Стадион Wanangkura © Peter Bennetts
Стадион Wanangkura © Peter Bennetts
Стадион Wanangkura © Peter Bennetts
Стадион Wanangkura © Peter Bennetts
Стадион Wanangkura © Peter Bennetts
Стадион Wanangkura © Peter Bennetts
Стадион Wanangkura © Peter Bennetts
Стадион Wanangkura © Peter Bennetts
Стадион Wanangkura © Peter Bennetts
Стадион Wanangkura © Peter Bennetts
Стадион Wanangkura © Peter Bennetts
Стадион Wanangkura © Peter Bennetts
Стадион Wanangkura © Peter Bennetts
Стадион Wanangkura © Peter Bennetts
Стадион Wanangkura © Peter Bennetts
Стадион Wanangkura © Peter Bennetts
Стадион Wanangkura © Peter Bennetts
Стадион Wanangkura © Peter Bennetts
Стадион Wanangkura © Peter Bennetts
Стадион Wanangkura © ARM Architecture
Стадион Wanangkura © ARM Architecture
Стадион Wanangkura © ARM Architecture
Стадион Wanangkura © ARM Architecture
Стадион Wanangkura © ARM Architecture
Стадион Wanangkura © ARM Architecture
Стадион Wanangkura © ARM Architecture
Стадион Wanangkura © ARM Architecture
Стадион Wanangkura © ARM Architecture
Стадион Wanangkura © ARM Architecture
Стадион Wanangkura © ARM Architecture
Стадион Wanangkura © ARM Architecture
Стадион Wanangkura © ARM Architecture
Стадион Wanangkura © ARM Architecture
Стадион Wanangkura © ARM Architecture
Стадион Wanangkura © ARM Architecture
Стадион Wanangkura © ARM Architecture
Стадион Wanangkura © ARM Architecture