Размещено на портале Архи.ру (www.archi.ru)

06.03.2013

Кольцо науки

Объект:
Европейский центр исследования материи
Адрес:
Швеция, None, Лунд.
Мастерская:
Cobe
Henning Larsen Architects

Право на проектирование Европейского центра исследования материи в Лунде получило архитектурное бюро Хеннинга Ларсена.

Европейский центр исследования материи © Luxigon
Европейский центр исследования материи © Luxigon
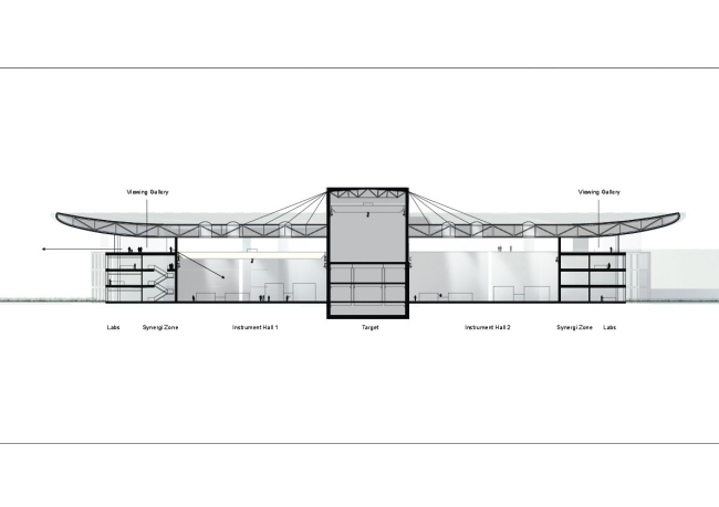
Общая площадь будущего центра составит более 100 тыс. м2. По сути, это целый городок со множеством лабораторий, офисов и рекреационных зон, предназначенных для ученых со всего мира, которые будут приглашены для работы на новом ускорителе элементарных частиц. Гигантский прибор, который планируется разместить в шведском городе Лунд, будет иметь длину 600 м. И хотя по размерам он обещает быть существенно меньше своего знаменитого собрата – Большого адронного коллайдера, по значимости для современной науки эти установки вполне сопоставимы: новый объект позволит проводить самые разные эксперименты, в том числе в сфере медицинских, био- и нанотехнологий.
Европейский центр исследования материи © Luxigon
Европейский центр исследования материи © Luxigon

Разрабатывая генплан будущего комплекса, бюро Хеннинга Ларсена в основу проекта положило главный элемент любого ускорителя – кольцо. Все здания центра вписаны в круг, и круглая же в плане кровля накрывает несколько из них, создавая комфортное всесезонное пространство не только для работы, но и для общения. Вообще возможностям неформального общения сотрудников различных лабораторий в этом проекте уделено самое пристальное внимание: в каждом здании предусмотрен атриум с кафе, переговорными и зонами отдыха, дополнительные рекреационные уголки будут созданы на территории комплекса и за пределами корпусов.
Европейский центр исследования материи © Luxigon
Европейский центр исследования материи © Luxigon

Конечно, шведская погода не позволит ученым проводить много времени на улице в период с октября по март, однако внимательнейшим образом изученная роза ветров позволила архитекторам расположить здания центра так, чтобы его микроклимат был максимально благоприятным. По расчетам специалистов, гулять по городку будет комфортно в среднем на 2-3 недели дольше, чем длится традиционный теплый сезон. Сами здания центра при этом планируется сделать максимально энергоэффективными.

А.М.
Европейский центр исследования материи © Luxigon
Европейский центр исследования материи © Luxigon
Европейский центр исследования материи © Luxigon
Европейский центр исследования материи © Luxigon
Европейский центр исследования материи © Luxigon
Европейский центр исследования материи © Luxigon
Европейский центр исследования материи © Henning Larsen Architects
Европейский центр исследования материи © Henning Larsen Architects
Европейский центр исследования материи © Henning Larsen Architects
Европейский центр исследования материи © Henning Larsen Architects
Европейский центр исследования материи © Henning Larsen Architects
Европейский центр исследования материи © Henning Larsen Architects
Европейский центр исследования материи © Henning Larsen Architects
Европейский центр исследования материи © Henning Larsen Architects