Размещено на портале Архи.ру (www.archi.ru)

05.03.2013

Золотая звезда

Объект:
Гостиница Clarion Hotel and Congress Trondheim
Адрес:
Норвегия, None, Тронхейм.
Мастерская:
Space Group

Мастерская Space Group построила отель Clarion в норвежском городе Тронхейм.

Гостиница Clarion Hotel and Congress Trondheim © Peter Hebeisen
Гостиница Clarion Hotel and Congress Trondheim © Peter Hebeisen
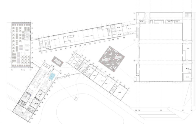
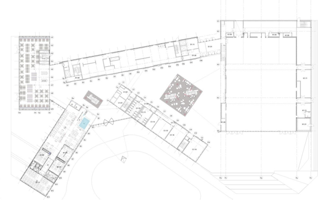
Гостиница находится в городском порту, на острове Браттёра. Чтобы обеспечить эффектные виды на фьорд и город из окон номеров, архитекторы заменили традиционный тип отеля с центральным атриумом на композицию из 4 корпусов.
Гостиница Clarion Hotel and Congress Trondheim © Peter Hebeisen
Гостиница Clarion Hotel and Congress Trondheim © Peter Hebeisen

Тем не менее, атриум там все же устроен, но он имеет форму «звезды», «лучи» которой занимают пространства между жилыми корпусами. Его перекрытия обшиты золотистым металлом.
Гостиница Clarion Hotel and Congress Trondheim © Peter Hebeisen
Гостиница Clarion Hotel and Congress Trondheim © Peter Hebeisen

На первом этаже расположены вестибюль, конференц-центр на 2000 человек, выставочный зал, ресторан и бар. На самом верху находится sky bar с террасой на крыше здания. Всего в гостинице 400 номеров. Общая площадь постройки составляет 35 тыс. м2.

Н. Ф.
Гостиница Clarion Hotel and Congress Trondheim © Peter Hebeisen
Гостиница Clarion Hotel and Congress Trondheim © Peter Hebeisen
Гостиница Clarion Hotel and Congress Trondheim © Peter Hebeisen
Гостиница Clarion Hotel and Congress Trondheim © Peter Hebeisen
Гостиница Clarion Hotel and Congress Trondheim © Peter Hebeisen
Гостиница Clarion Hotel and Congress Trondheim © Peter Hebeisen
Гостиница Clarion Hotel and Congress Trondheim © Peter Hebeisen
Гостиница Clarion Hotel and Congress Trondheim © Peter Hebeisen
Гостиница Clarion Hotel and Congress Trondheim © Peter Hebeisen
Гостиница Clarion Hotel and Congress Trondheim © Peter Hebeisen
Гостиница Clarion Hotel and Congress Trondheim © Peter Hebeisen
Гостиница Clarion Hotel and Congress Trondheim © Peter Hebeisen
Гостиница Clarion Hotel and Congress Trondheim © Space Group
Гостиница Clarion Hotel and Congress Trondheim © Space Group
Гостиница Clarion Hotel and Congress Trondheim. Вид из окна © Space Group
Гостиница Clarion Hotel and Congress Trondheim. Вид из окна © Space Group
Гостиница Clarion Hotel and Congress Trondheim © Space Group
Гостиница Clarion Hotel and Congress Trondheim © Space Group
Гостиница Clarion Hotel and Congress Trondheim © Peter Hebeisen
Гостиница Clarion Hotel and Congress Trondheim © Peter Hebeisen
Гостиница Clarion Hotel and Congress Trondheim © Peter Hebeisen
Гостиница Clarion Hotel and Congress Trondheim © Peter Hebeisen
Гостиница Clarion Hotel and Congress Trondheim © Peter Hebeisen
Гостиница Clarion Hotel and Congress Trondheim © Peter Hebeisen
Гостиница Clarion Hotel and Congress Trondheim © Ivan Brodey
Гостиница Clarion Hotel and Congress Trondheim © Ivan Brodey
Гостиница Clarion Hotel and Congress Trondheim © Space Group
Гостиница Clarion Hotel and Congress Trondheim © Space Group
Гостиница Clarion Hotel and Congress Trondheim © Peter Hebeisen
Гостиница Clarion Hotel and Congress Trondheim © Peter Hebeisen
Гостиница Clarion Hotel and Congress Trondheim © Ivan Brodey
Гостиница Clarion Hotel and Congress Trondheim © Ivan Brodey
Гостиница Clarion Hotel and Congress Trondheim © Space Group
Гостиница Clarion Hotel and Congress Trondheim © Space Group
Гостиница Clarion Hotel and Congress Trondheim © Peter Hebeisen
Гостиница Clarion Hotel and Congress Trondheim © Peter Hebeisen
Гостиница Clarion Hotel and Congress Trondheim © Space Group
Гостиница Clarion Hotel and Congress Trondheim © Space Group
Гостиница Clarion Hotel and Congress Trondheim © Space Group
Гостиница Clarion Hotel and Congress Trondheim © Space Group
Гостиница Clarion Hotel and Congress Trondheim © Space Group
Гостиница Clarion Hotel and Congress Trondheim © Space Group
Гостиница Clarion Hotel and Congress Trondheim © Space Group
Гостиница Clarion Hotel and Congress Trondheim © Space Group
Гостиница Clarion Hotel and Congress Trondheim © Space Group
Гостиница Clarion Hotel and Congress Trondheim © Space Group
Гостиница Clarion Hotel and Congress Trondheim © Space Group
Гостиница Clarion Hotel and Congress Trondheim © Space Group
Гостиница Clarion Hotel and Congress Trondheim © Space Group
Гостиница Clarion Hotel and Congress Trondheim © Space Group