Размещено на портале Архи.ру (www.archi.ru)

28.02.2013

«Завод культуры»

Объект:
Культурный центр Kulturwerk am See
Адрес:
Германия, None, Нордерштедт.
Мастерская:
me di um

В Нордерштедте близ Гамбурга бюро me di um превратило завод по производству силикатного кирпича в культурный центр Kulturwerk am See.

Культурный центр Kulturwerk am See © Klaus Frahm, Arturimages
Культурный центр Kulturwerk am See © Klaus Frahm, Arturimages
Бывшая промзона, где с 1962 по 1988 не только производили силикатный кирпич, но тут же добывали необходимый для этого песок, теперь стала городским парком. Песчаный карьер превращен в озеро, а здание завода — в центр, объединивший ранее разбросанные по всему городу учреждения культуры.
Культурный центр Kulturwerk am See © Klaus Frahm, Arturimages
Культурный центр Kulturwerk am See © Klaus Frahm, Arturimages

«Завод культуры на озере», как официально называется новый комплекс, сохранил свой индустриальный характер. Так, в напоминание о его прошлом, фасады вновь получили облицовку из силикатного кирпича, причем на восточном фасаде перфорированные блоки рассчитаны на «заселение» их в будущем ползучими растениями, стрижами и даже летучими мышами. Ворота для вагонеток стали большими окнами, а дворы для хранения материалов превращены в парковки.
Культурный центр Kulturwerk am See © Klaus Frahm, Arturimages
Культурный центр Kulturwerk am See © Klaus Frahm, Arturimages

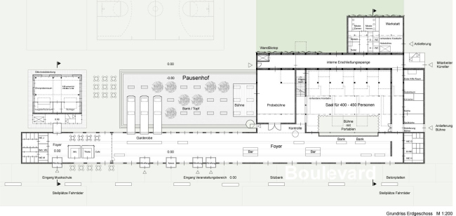
Архитекторы минимально изменили интерьер промышленного здания: коридор для вагонеток стал длинным фойе, цех с печами — гардеробной, а формовочный цех — основным залом на 440 зрителей. В полностью новом корпусе разместилась музыкальная школа.
Культурный центр Kulturwerk am See © Klaus Frahm, Arturimages
Культурный центр Kulturwerk am See © Klaus Frahm, Arturimages

Общая площадь постройки — 3000 м2. Отопление и охлаждение помещений осуществляется с помощью геотермальной системы.

Н. Ф.
Культурный центр Kulturwerk am See © Klaus Frahm, Arturimages
Культурный центр Kulturwerk am See © Klaus Frahm, Arturimages
Культурный центр Kulturwerk am See © Klaus Frahm, Arturimages
Культурный центр Kulturwerk am See © Klaus Frahm, Arturimages
Культурный центр Kulturwerk am See © Klaus Frahm, Arturimages
Культурный центр Kulturwerk am See © Klaus Frahm, Arturimages
Культурный центр Kulturwerk am See © Klaus Frahm, Arturimages
Культурный центр Kulturwerk am See © Klaus Frahm, Arturimages
Культурный центр Kulturwerk am See © Klaus Frahm, Arturimages
Культурный центр Kulturwerk am See © Klaus Frahm, Arturimages
Культурный центр Kulturwerk am See © Klaus Frahm, Arturimages
Культурный центр Kulturwerk am See © Klaus Frahm, Arturimages
Культурный центр Kulturwerk am See © Klaus Frahm, Arturimages
Культурный центр Kulturwerk am See © Klaus Frahm, Arturimages
Культурный центр Kulturwerk am See © Klaus Frahm, Arturimages
Культурный центр Kulturwerk am See © Klaus Frahm, Arturimages
Культурный центр Kulturwerk am See © Klaus Frahm, Arturimages
Культурный центр Kulturwerk am See © Klaus Frahm, Arturimages
Культурный центр Kulturwerk am See © Klaus Frahm, Arturimages
Культурный центр Kulturwerk am See © Klaus Frahm, Arturimages
Культурный центр Kulturwerk am See © Klaus Frahm, Arturimages
Культурный центр Kulturwerk am See © Klaus Frahm, Arturimages
Культурный центр Kulturwerk am See © Klaus Frahm, Arturimages
Культурный центр Kulturwerk am See © Klaus Frahm, Arturimages
Культурный центр Kulturwerk am See © Klaus Frahm, Arturimages
Культурный центр Kulturwerk am See © Klaus Frahm, Arturimages
Культурный центр Kulturwerk am See © Klaus Frahm, Arturimages
Культурный центр Kulturwerk am See © Klaus Frahm, Arturimages
Культурный центр Kulturwerk am See © Klaus Frahm, Arturimages
Культурный центр Kulturwerk am See © Klaus Frahm, Arturimages