Размещено на портале Архи.ру (www.archi.ru)

21.02.2013

«Сити»: пражский вариант

Объект:
Офисное здание City Green Court
Адрес:
Чехия, None, Прага.

Ричард Майер построил в столице Чехии офисное здание City Green Court.

Офисное здание City Green Court © Roland Halbe
Офисное здание City Green Court © Roland Halbe
Оно расположено в пражском районе Панкрац, где еще в 1970-х начали строить высотные здания. Среди них была предназначавшаяся для чешского радио City Tower, до сих пор самая высокая постройка страны (109 м). Несмотря на то, что башня была подведена под крышу еще в 1986, при социализме строительство не было закончено, и лишь Ричард Майер завершил ее в 2007.
Офисное здание City Green Court © Roland Halbe
Офисное здание City Green Court © Roland Halbe



Это сосредоточение деловых зданий ожидаемо получило название «Сити», или «Сити-Панкрац». Майер возвел там также 5-этажный корпус City Point (2004), а теперь завершил ансамбль площади Радио-Плаза постройкой City Green Court.
Офисное здание City Green Court © Roland Halbe
Офисное здание City Green Court © Roland Halbe



Источником вдохновения, по словам архитектора, для него послужили произведения чешского кубизма. Впрочем, авангардного в постройке немного. Фасады расчерчены солнцезащитными ламелями, а акцент задают небольшие балконы.
Офисное здание City Green Court © Roland Halbe
Офисное здание City Green Court © Roland Halbe



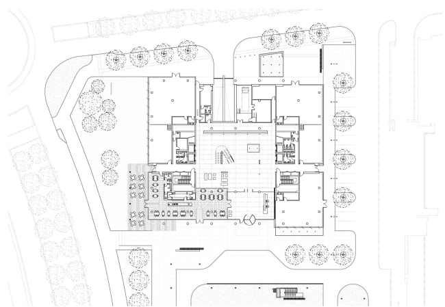
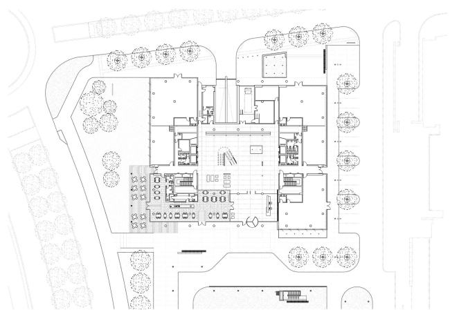
Главный вход отмечен широким навесом. Оттуда посетитель попадает в одноэтажный вестибюль, ведущий в атриум во всю высоту 8-этажного здания. Это и есть «зеленый двор», упомянутый в названии постройки: там устроена зеленая стена и посажено дерево. Кроме того, в атриуме сооружена лестница до 4 этажа, которая должна стать привлекательной альтернативой лифтам, а выше его пересекают мостики.
Офисное здание City Green Court © Guillermo Murcia
Офисное здание City Green Court © Guillermo Murcia



Здание получило «платиновый» сертификат LEED: помимо эффективной оболочки, там предусмотрены естественная вентиляция атриума в летние месяцы, система экономии расхода водопроводной и сбора дождевой воды, зеленая крыша, контроль за качеством воздуха и т. д. При строительстве использовались местные и переработанные материалы.

Н. Ф.
Офисное здание City Green Court © Roland Halbe
Офисное здание City Green Court © Roland Halbe
Офисное здание City Green Court © Roland Halbe
Офисное здание City Green Court © Roland Halbe
Офисное здание City Green Court © Roland Halbe
Офисное здание City Green Court © Roland Halbe
Офисное здание City Green Court © Roland Halbe
Офисное здание City Green Court © Roland Halbe
Офисное здание City Green Court © Roland Halbe
Офисное здание City Green Court © Roland Halbe
Офисное здание City Green Court © Richard Meier & Partners
Офисное здание City Green Court © Richard Meier & Partners
Офисное здание City Green Court © Richard Meier & Partners
Офисное здание City Green Court © Richard Meier & Partners
Офисное здание City Green Court © Richard Meier & Partners
Офисное здание City Green Court © Richard Meier & Partners
Офисное здание City Green Court © Richard Meier & Partners
Офисное здание City Green Court © Richard Meier & Partners
Офисное здание City Green Court © Richard Meier & Partners
Офисное здание City Green Court © Richard Meier & Partners