Размещено на портале Архи.ру (www.archi.ru)

14.02.2013

Дом с каньоном

Объект:
Жилой комлпекс Marina Lofts
Адрес:
США, None, Форт-Лодердейл.
Мастерская:
BIG

Бюро BIG представило проект жилого комплекса во Флориде.

Жилой комлпекс Marina Lofts © BIG
Жилой комлпекс Marina Lofts © BIG
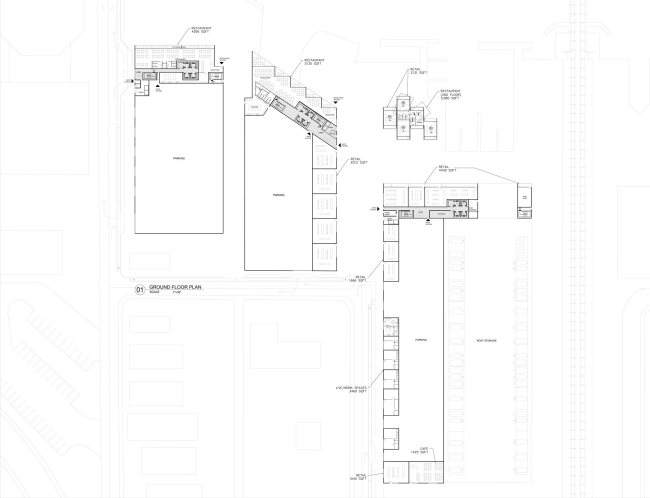
Комплекс Marina Lofts начнут строить в конце 2013 на берегу небольшой реки Нью-Ривер, на месте промзоны, разделяющей надвое проходящий вдоль воды парк. Проект предусматривает создание вокруг жилых корпусов зеленой территории, которая, наконец, соединит обе части Риверуок-парка. При этом находящееся ныне на месте строительства историческое дерево Рейн-три будет перенесено в новый Рейн-три-парк поблизости.
Жилой комлпекс Marina Lofts © BIG
Жилой комлпекс Marina Lofts © BIG

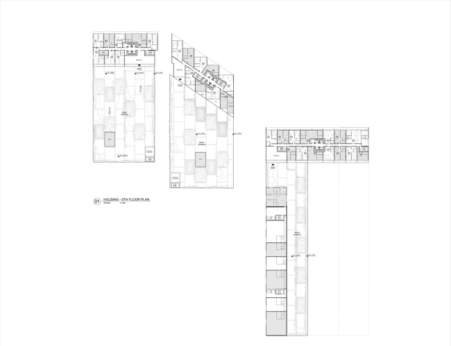
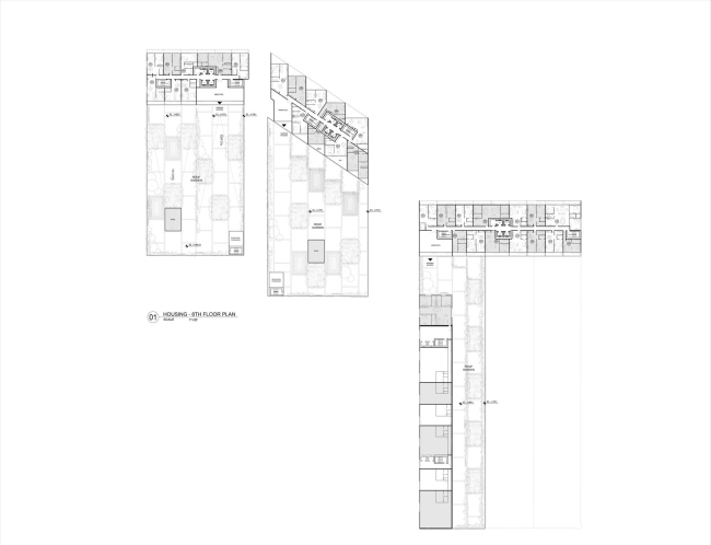
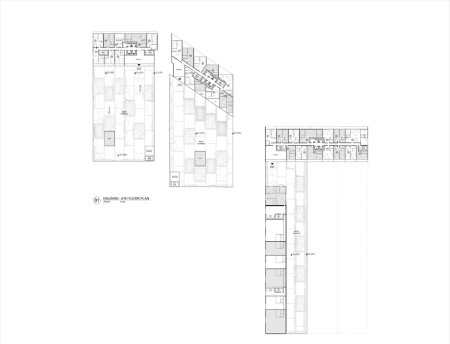
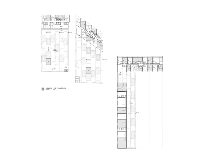
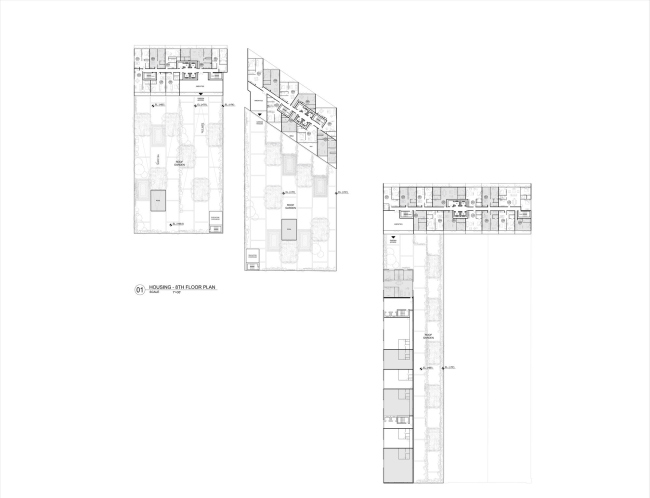
Две основные башни комплекса будут обращены друг к другу торцами, имитирующими разрыв: проход между ними свяжет город и зеленый берег реки. Чтобы обитатели домов не могли заглянуть друг к другу в окна на близко расположенных боковых фасадах, архитекторы расположили их в шахматном порядке.
Жилой комлпекс Marina Lofts © BIG
Жилой комлпекс Marina Lofts © BIG

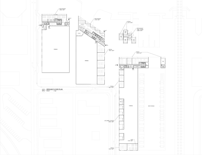
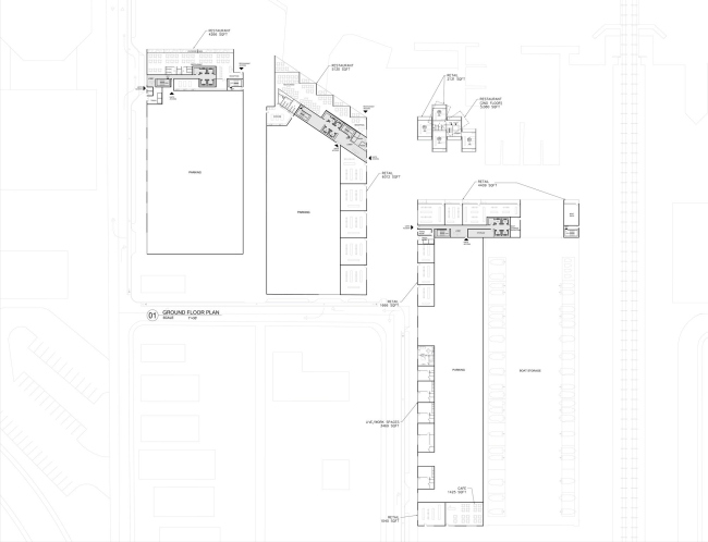
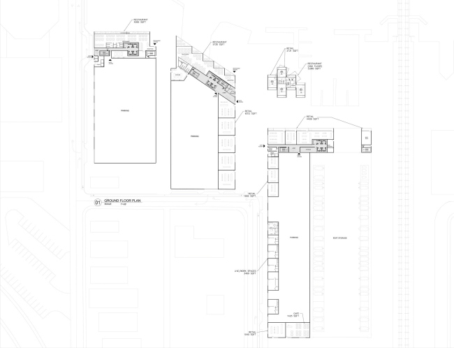
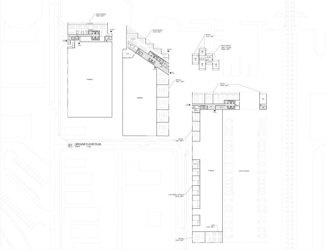
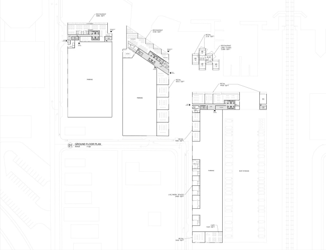
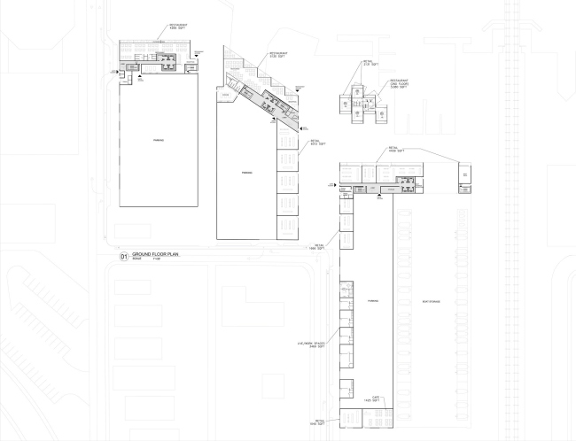
Третья башня появится над существующим «гаражом» на 250 лодок и яхт, а находящаяся рядом станция водного такси получит новые павильоны и навесы.
Жилой комлпекс Marina Lofts © BIG
Жилой комлпекс Marina Lofts © BIG

В комплексе будет 1000 квартир, а на нижних этажах расположатся магазины (2300 м2) и кафе (930 м2), обращенные к воде.

Н. Ф.
Жилой комлпекс Marina Lofts © BIG
Жилой комлпекс Marina Lofts © BIG
Жилой комлпекс Marina Lofts © BIG
Жилой комлпекс Marina Lofts © BIG
Жилой комлпекс Marina Lofts. Дерево Рейн-три © BIG
Жилой комлпекс Marina Lofts. Дерево Рейн-три © BIG
Жилой комлпекс Marina Lofts © BIG
Жилой комлпекс Marina Lofts © BIG
Жилой комлпекс Marina Lofts © BIG
Жилой комлпекс Marina Lofts © BIG
Жилой комлпекс Marina Lofts © BIG
Жилой комлпекс Marina Lofts © BIG
Жилой комлпекс Marina Lofts © BIG
Жилой комлпекс Marina Lofts © BIG
Жилой комлпекс Marina Lofts © BIG
Жилой комлпекс Marina Lofts © BIG
Жилой комлпекс Marina Lofts © BIG
Жилой комлпекс Marina Lofts © BIG
Жилой комлпекс Marina Lofts © BIG
Жилой комлпекс Marina Lofts © BIG
Жилой комлпекс Marina Lofts © BIG
Жилой комлпекс Marina Lofts © BIG
Жилой комлпекс Marina Lofts © BIG
Жилой комлпекс Marina Lofts © BIG
Жилой комлпекс Marina Lofts © BIG
Жилой комлпекс Marina Lofts © BIG
Жилой комлпекс Marina Lofts © BIG
Жилой комлпекс Marina Lofts © BIG
Жилой комлпекс Marina Lofts © BIG
Жилой комлпекс Marina Lofts © BIG
Жилой комлпекс Marina Lofts © BIG
Жилой комлпекс Marina Lofts © BIG
Жилой комлпекс Marina Lofts © BIG
Жилой комлпекс Marina Lofts © BIG
Жилой комлпекс Marina Lofts © BIG
Жилой комлпекс Marina Lofts © BIG
Жилой комлпекс Marina Lofts © BIG
Жилой комлпекс Marina Lofts © BIG
Жилой комлпекс Marina Lofts © BIG
Жилой комлпекс Marina Lofts © BIG