Размещено на портале Архи.ру (www.archi.ru)

12.02.2013

Храм искусств в современной ситуации

Объект:
Концертный зал Штадтхалле Ройтлинген
Адрес:
Германия, None, Ройтлинген.

Макс Дудлер построил на юго-западе Германии городской концертный зал.

Концертный зал Штадтхалле © Stefan Müller
Концертный зал Штадтхалле © Stefan Müller
Зал Штадтхалле расположен в самом центре города Ройтлингена, там, где смыкаются его средневековое ядро, район 19 века и современная застройка. Он соединяет эти части, и его градостроительной функции соответствует решение, основанное на образе античного храма. Но также Дудлер ориентировался на берлинскую Новую галерею Людвига Мис ван дер Роэ, оттуда, в частности, позаимствована идея цоколя.
Концертный зал Штадтхалле © Stefan Müller
Концертный зал Штадтхалле © Stefan Müller

Четкий ритм бронзовых панелей на фасадах сочетается с выверенной тектоникой. Важный элемент проекта — «городской балкон», терраса, завершающая основной объем здания: оттуда открываются прекрасные виды на Ройтлинген.
Концертный зал Штадтхалле © Stefan Müller
Концертный зал Штадтхалле © Stefan Müller

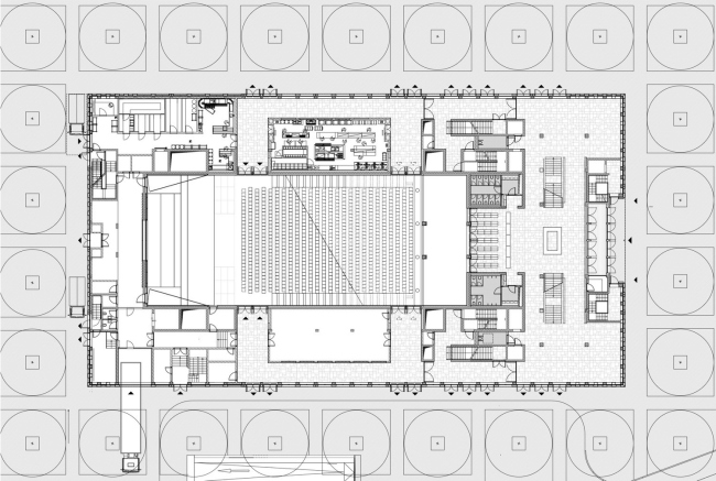
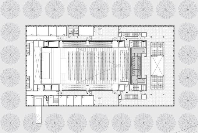
Основную часть здания занимает основной зал на 1689 зрителей, образцом для которого стал зал Музикферайн в Вене. Он может использоваться для театральных постановок, выставок, банкетов (предусмотрена конфигурация с плоским полом), но его акустика специально рассчитана на концерты классической музыки. Впрочем, оборудование можно также настроить для наилучшей слышимости человеческой речи.
Концертный зал Штадтхалле © Stefan Müller
Концертный зал Штадтхалле © Stefan Müller

Малый зал на 416 человек предназначен для конференций и конгрессов, а также для концертов и мероприятий небольшого масштаба. При необходимости его можно разделить на четыре части.
Концертный зал Штадтхалле © Stefan Müller
Концертный зал Штадтхалле © Stefan Müller

В оформлении интерьеров широко использовано дерево, а фойе вымощено плитами природного камня.

Н. Ф.
Концертный зал Штадтхалле © Stefan Müller
Концертный зал Штадтхалле © Stefan Müller
Концертный зал Штадтхалле © Stefan Müller
Концертный зал Штадтхалле © Stefan Müller
Концертный зал Штадтхалле © Max Dudler
Концертный зал Штадтхалле © Max Dudler
Концертный зал Штадтхалле © Max Dudler
Концертный зал Штадтхалле © Max Dudler
Концертный зал Штадтхалле © Max Dudler
Концертный зал Штадтхалле © Max Dudler
Концертный зал Штадтхалле © Max Dudler
Концертный зал Штадтхалле © Max Dudler
Концертный зал Штадтхалле © Max Dudler
Концертный зал Штадтхалле © Max Dudler
Концертный зал Штадтхалле © Max Dudler
Концертный зал Штадтхалле © Max Dudler
Концертный зал Штадтхалле © Max Dudler
Концертный зал Штадтхалле © Max Dudler
Концертный зал Штадтхалле © Max Dudler
Концертный зал Штадтхалле © Max Dudler