Размещено на портале Архи.ру (www.archi.ru)

20.02.2013

Брус, бревно, стекло

Анна Мартовицкая
Объект:
Частный загородный дом Locomotion-1
Адрес:
Россия, Московская область, Москва.
Архитектор:
Роман Леонидов
Мастерская:
АБ Романа Леонидова
Авторский коллектив:
Леонидов Р., Алексеев А., Осташко В. (ГИП)

Получив заказ на проектирование бревенчатого дома, архитектор Роман Леонидов построил в коттедж, в котором образ традиционной избы переосмыслен в русле современных представлений о компоновке и развитии загородного жилья.

Свои пожелания к будущему жилищу заказчик сразу определил очень четко: это должен быть бревенчатый, но современный дом. Причем под современным клиент подразумевал не только архитектурную стилистику сооружения, но и его планировку – в частности, центром внутренней жизни должно было стать светлое многофункциональное пространство, а снаружи дом необходимо было дополнить гаражом, просторными террасами и бассейном. «Задача сразу показалась мне интересной, поскольку заказчик был искренне очарован стилистикой бревенчатых домов, но к собственному жилью выдвигал требования, с типологией избы в принципе не совместимые, – рассказывает Роман Леонидов. – Для того, чтобы воплотить эти пожелания в реальность, нам пришлось разработать необычную конструктивную схему и очень тщательно подойти к вопросу планировки дома».

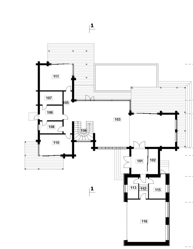
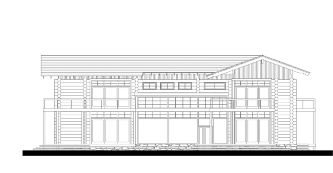
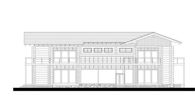
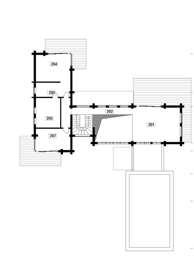
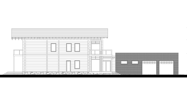
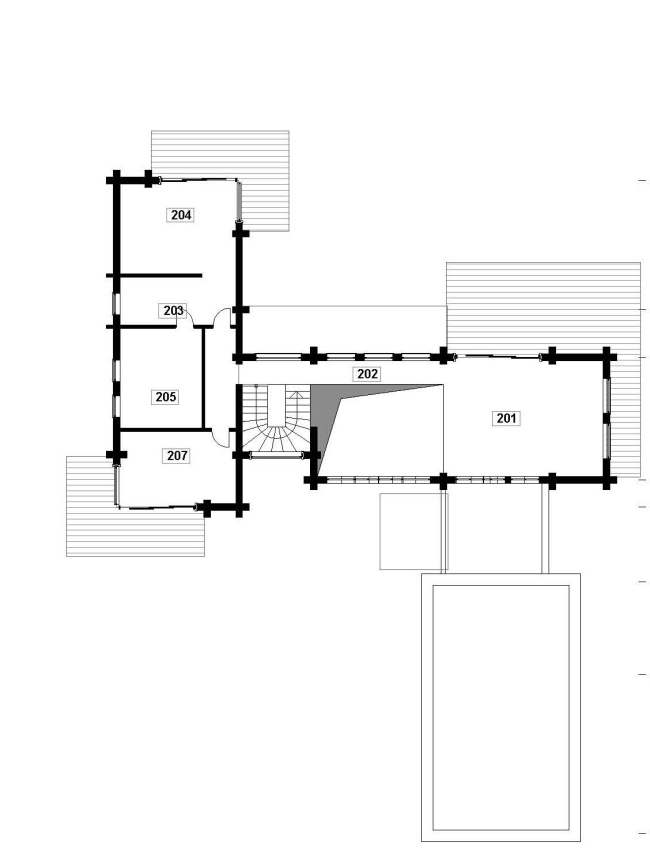
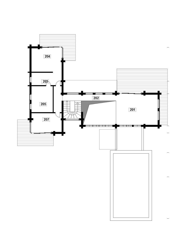
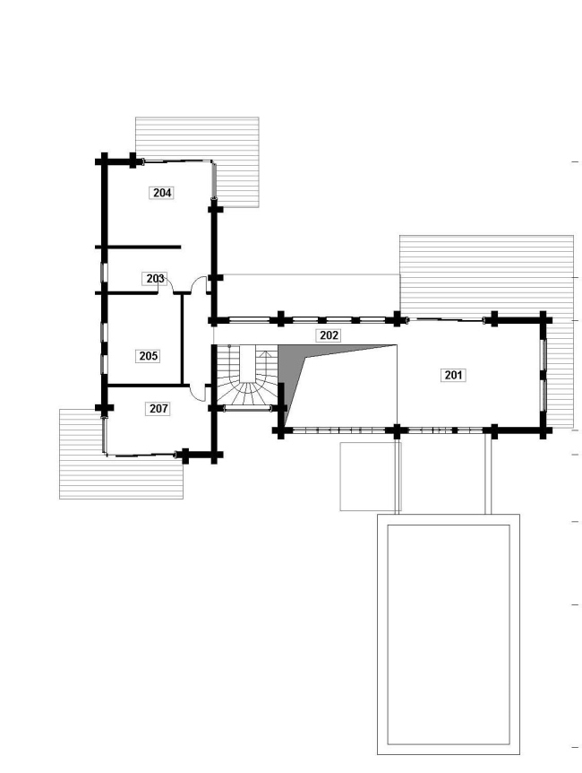
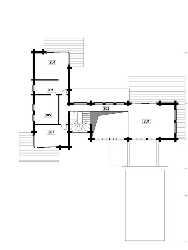
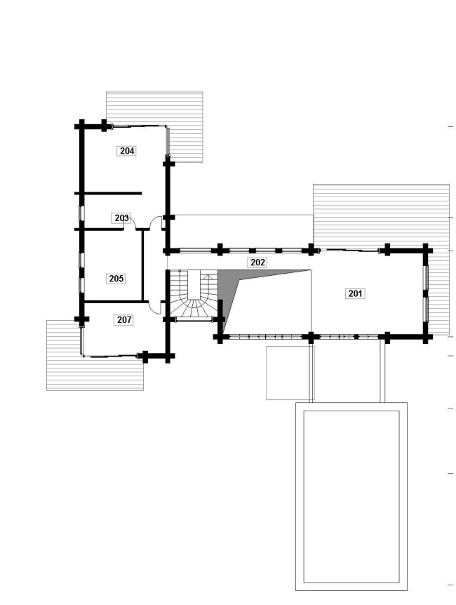
В плане дом представляет собой довольно сложную фигуру – положенную на бок букву «S», которая образована прямоугольниками разных по площади назначению помещений. Центральным пространством первого этажа, как и хотел заказчик, становится огромная гостиная-столовая, через которую можно попасть в кабинет, гостевую комнату, сауну, а также на лестницу, ведущую на второй этаж. Верхний уровень отведен под личные помещения хозяев – спальню, гардеробную, детскую, а также бильярдную и библиотеку. К длинной перекладине буквы «S», ориентированной по оси восток-запад, присоединен еще один перпендикулярный «хвостик» – гараж и объединяющая два объема входная зона. Крыльцо и аппендикс гаража обращены на север, а большая часть внутренних помещений ориентирована на южную сторону, с которой архитекторы пристраивают к дому несколько больших террас, а между ними вписывают открытый бассейн.

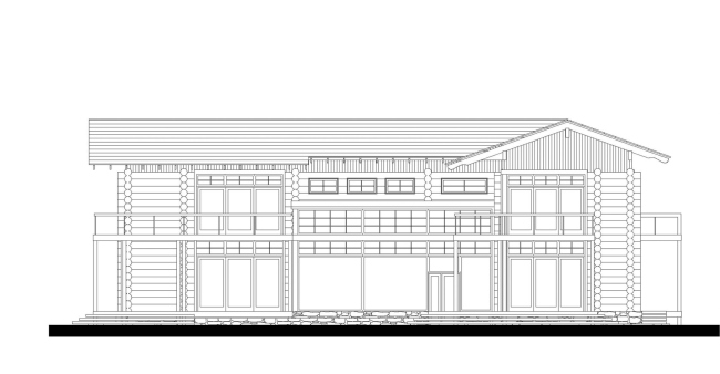
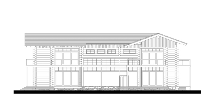
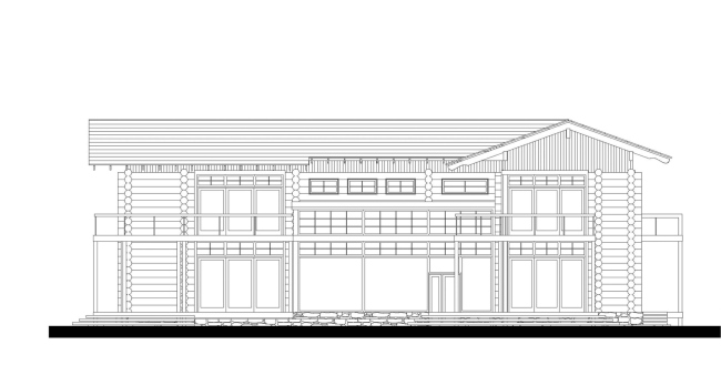
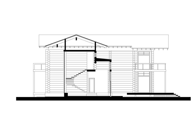
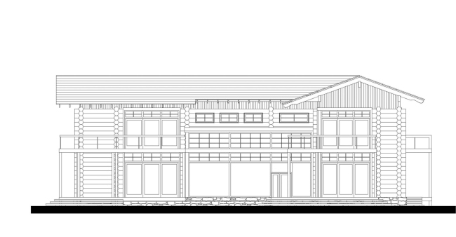
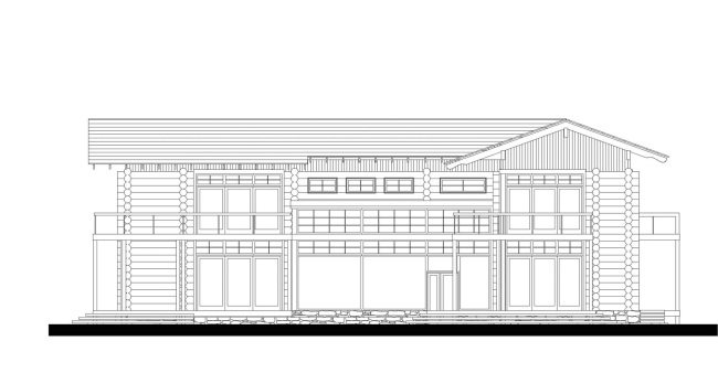
Интересно, что террасы получают комнаты не только первого этажа, но и второго – широкие балконы поддержаны деревянными опорами квадратного сечения. Эти предельно лаконичные конструкции особенно бросаются в глаза на контрасте с оцилиндрованным бревном большого диаметра, из которого сложены стены самого дома. Наверно, они смотрелись бы совсем чужеродно друг другу, если бы не витражи окон, максимально открывающие дом дневному свету и солнцу. Остекленные плоскости настолько масштабны, что визуально вытесняют брутальные бревенчатые стены – одного взгляда на фасады дома достаточно, чтобы понять, что сложенные в обло бревна играют здесь отнюдь не главную конструктивную роль. Впрочем, это и не декорация – все по-честному, как говорит Роман Леонидов, просто сруб в данном случае стал лишь частью конструктивной схемы. Фактически архитектор взял традиционную избу и увеличил ее до размеров, позволяющих беспрепятственно вместить все нужные заказчику функции.

Стены были раздвинуты с помощью каркаса из вертикальных и горизонтальных балок. Выполненные из бруса, они образуют решетку, ячейки которой архитектор заполняет либо витражами, либо тем же деревом. В результате на фасадах, выполненных из одного материала, встречаются совершенно разные фактуры – объемные выпуклые бревна с выпущенными концами неожиданно сменяются плоской поверхностью бруса, которую Леонидов камуфлирует тонкой рейкой. Именно такой вертикальной штриховкой оформлено подкровельное пространство – это визуально отделяет традиционную двухскатную кровлю от традиционной же бревенчатой стены и тем самым еще больше усиливает ощущение, возникшее в самом начале: изба, ставшая прототипом для этого дома, была расщеплена на отдельные составляющие, с которыми архитектор обошелся более чем вольно. В подтверждение этого Леонидов делает отдельную кровлю для той части дома, в которой расположены спальни и есть мансарда: развитые выносы надежно защищают террасы от полуденного солнца, а высокий конек придает этому насквозь современному объему архетипичную внешность.

И если южная сторона гостиной сделана полностью прозрачной, то на север, к главному входу и проходящей неподалеку дороге, архитектор обращает фасад-ширму. С одной стороны, Леонидову не хотелось делать эту часть коттеджа глухой, с другой он должен был защитить главное пространство дома от случайных взглядов с улицы. Решение было найдено нетривиальное: вот как архитектор раздвигает с помощью каркаса обычный пятистенок, так же он раздвигает бревна отдельно взятой стены, заменяя часть цилиндров на прозрачные вставки. Эти остекленные полоски получают разную ширину, благодаря чему стена превращается в затейливый пазл, сквозь который просвечивает зелень, окружающая дом с противоположной стороны, а в темное время суток мелькают огни чужого быта, не нарушая его приватность.

Сознательно избегая стилизаций, Роман Леонидов сделал ставку на преемственность использования архитектурных элементов, свойственных деревенским постройкам прошлого, и, следуя вкусовым предпочтениям заказчика, функциональной программе и желанию максимально объединить экстерьер и интерьер, построил дом, в котором черты традиционных бревенчатых сооружений органично сплелись с художественными и конструктивными приемами современного зодчества.

План первого этажа
План первого этажа
План второго этажа
План второго этажа
Частный загородный дом Locomotion-1 © Архитектурное бюро Романа Леонидова
Частный загородный дом Locomotion-1 © Архитектурное бюро Романа Леонидова
Частный загородный дом Locomotion-1 © Архитектурное бюро Романа Леонидова
Частный загородный дом Locomotion-1 © Архитектурное бюро Романа Леонидова
Частный загородный дом Locomotion-1 © Архитектурное бюро Романа Леонидова
Частный загородный дом Locomotion-1 © Архитектурное бюро Романа Леонидова
Частный загородный дом Locomotion-1 © Архитектурное бюро Романа Леонидова
Частный загородный дом Locomotion-1 © Архитектурное бюро Романа Леонидова
Частный загородный дом Locomotion-1 © Архитектурное бюро Романа Леонидова
Частный загородный дом Locomotion-1 © Архитектурное бюро Романа Леонидова