Размещено на портале Архи.ру (www.archi.ru)

08.02.2013

Зеленая миссия выполнима

Объект:
Нидерландский институт экологии
Адрес:
Нидерланды, None, Вагенинген.
Мастерская:
Claus & Kaan

В голландском городе Вагенинген архитектурное бюро Claus en Kaan Architecten закончило строительство комплекса Нидерландского института экологии – еще одного сооружения, имеющего все основания претендовать на звание самого «зеленого» объекта в мире.

Нидерландский институт экологии © Christian Richters
Нидерландский институт экологии © Christian Richters
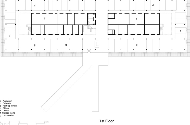
Комплекс общей площадью 11 тысяч м2 построен на территории кампуса Вагенингенского университета и включает в себя несколько корпусов. Основное здание вместило лаборатории, офисы, ресторан и конференц-зал, отдельные объемы возведены для кафедр зоологии и ботаники, а между ними созданы экспериментальные теплицы и пруды.
Нидерландский институт экологии © Christian Richters
Нидерландский институт экологии © Christian Richters

Архитектурный образ главного здания института строится на сочетании двух контрастных объемов: горизонтально ориентированной плиты и поставленного точно в центре нее кубика. Нижняя часть комплекса включает в себя два полностью остекленных этажа, верхняя же представляет собой облицованный деревянной рейкой квадратный в плане объем. На первых двух этажах по внешнему периметру здания размещены лаборатории, для полноценного функционирования которых необходимо максимальное количество дневного света, а в центре сосредоточены помещения, наоборот, нуждающиеся в затемнении. Источником солнечного света для офисов служит центральный объем с тремя световыми фонарями на плоской кровле.
Нидерландский институт экологии © Christian Richters
Нидерландский институт экологии © Christian Richters

Комплекс построен с использованием полностью перерабатываемых материалов и самых передовых технологий в области энергоэффективности, а в основу его проекта положен принцип cradle-to-cradle, предусматривающий эксплуатацию сооружения без ущерба для окружающей среды и возможность его полной утилизации. В частности, каркас здания создан из бетона, в котором не содержится каких-либо вредных примесей, растворителей и искусственных герметиков. Все остальные примененные материалы также прошли сертификацию на отсутствие винилхлоридов, а использованное в проекте дерево соответствует стандарту FSC.
Нидерландский институт экологии © Christian Richters
Нидерландский институт экологии © Christian Richters

Таким образом, призванный способствовать улучшению экологической ситуации в мире, институт начал выполнение своей миссии со строительства здания, абсолютно безопасного для природы.

А.М.
Нидерландский институт экологии © Christian Richters
Нидерландский институт экологии © Christian Richters
Нидерландский институт экологии © Christian Richters
Нидерландский институт экологии © Christian Richters
Нидерландский институт экологии © Christian Richters
Нидерландский институт экологии © Christian Richters
Нидерландский институт экологии © Christian Richters
Нидерландский институт экологии © Christian Richters
Нидерландский институт экологии © Christian Richters
Нидерландский институт экологии © Christian Richters
Нидерландский институт экологии © Christian Richters
Нидерландский институт экологии © Christian Richters
Нидерландский институт экологии © Christian Richters
Нидерландский институт экологии © Christian Richters
Нидерландский институт экологии © Claus en Kaan Architecten
Нидерландский институт экологии © Claus en Kaan Architecten
Нидерландский институт экологии © Claus en Kaan Architecten
Нидерландский институт экологии © Claus en Kaan Architecten
Нидерландский институт экологии © Claus en Kaan Architecten
Нидерландский институт экологии © Claus en Kaan Architecten
Нидерландский институт экологии © Claus en Kaan Architecten
Нидерландский институт экологии © Claus en Kaan Architecten
Нидерландский институт экологии © Claus en Kaan Architecten
Нидерландский институт экологии © Claus en Kaan Architecten
Нидерланский институт экологии
Нидерланский институт экологии
Нидерландский институт экологии © Claus en Kaan Architecten
Нидерландский институт экологии © Claus en Kaan Architecten