Размещено на портале Архи.ру (www.archi.ru)

06.02.2013

Многослойная прозрачность

Объект:
Жилой комплекс Faena Aleph
Адрес:
Аргентина, None, Буэнос-Айрес.
Квартал Faena (Aleph)
Адрес:
Аргентина, None, Буэнос-Айрес.
Мастерская:
Foster + Partners

По проекту Нормана Фостера в Буэнос-Айресе закончено строительство жилого комплекса Faena Aleph, ставшего первой реализацией знаменитого британца в Латинской Америке.

Жилой комплекс в квартале Faena (Aleph) © Nigel Young
Жилой комплекс в квартале Faena (Aleph) © Nigel Young
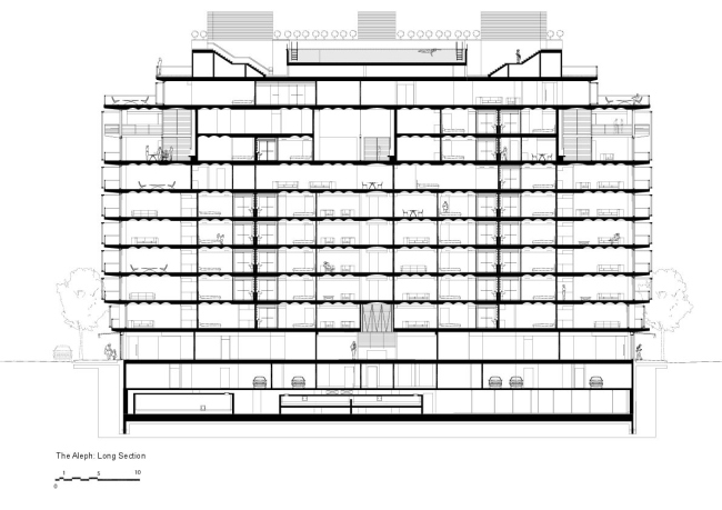
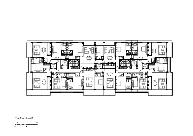
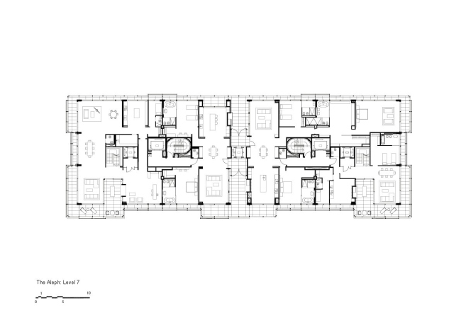
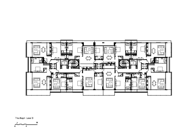
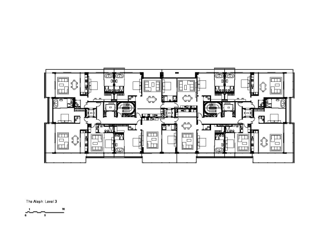
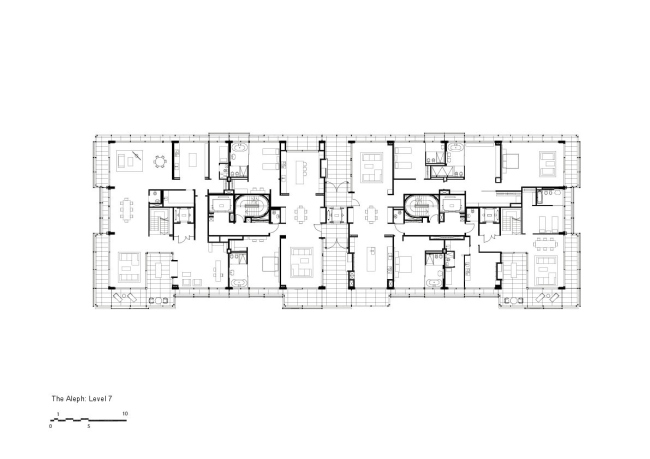
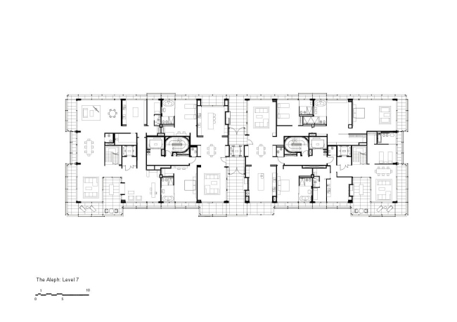
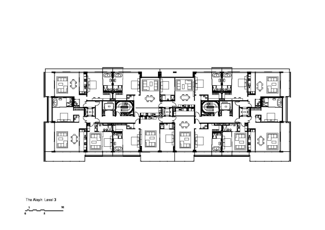
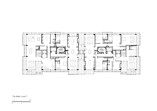
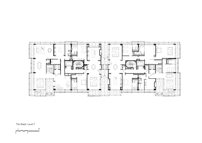
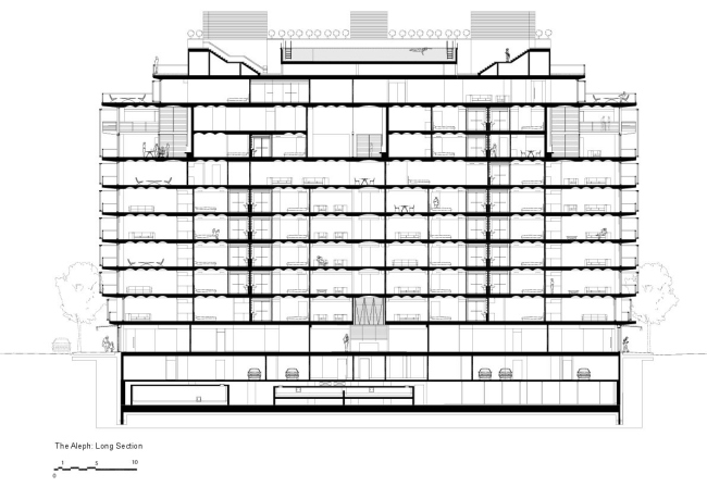
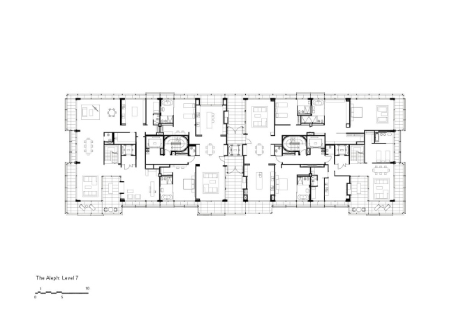
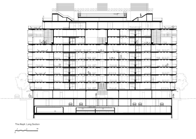
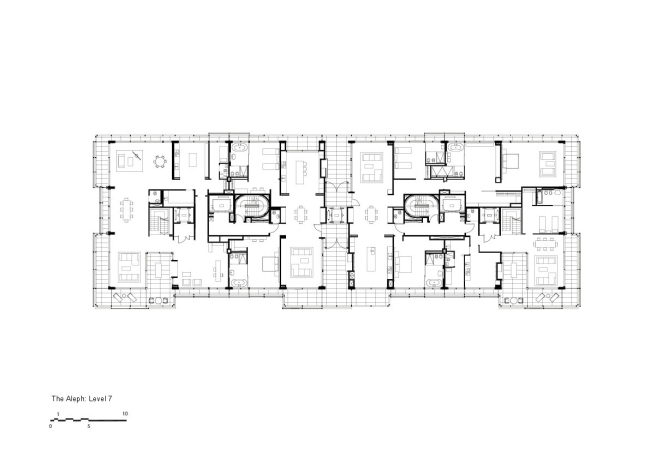
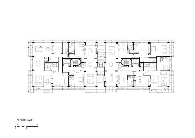
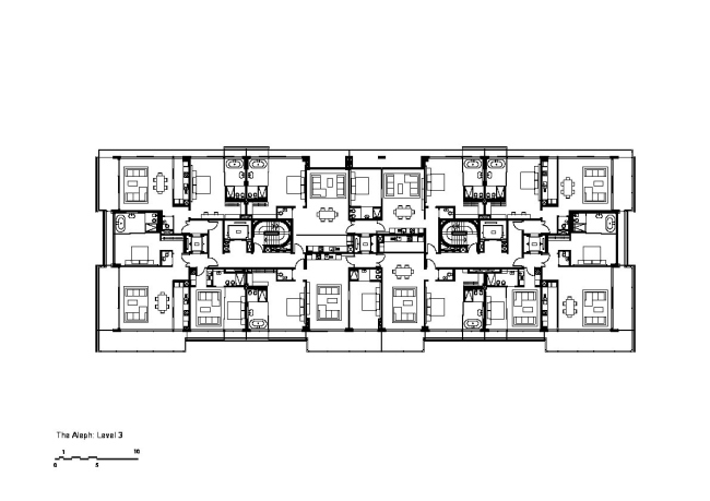
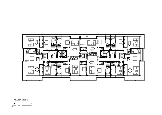
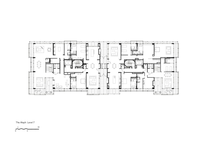
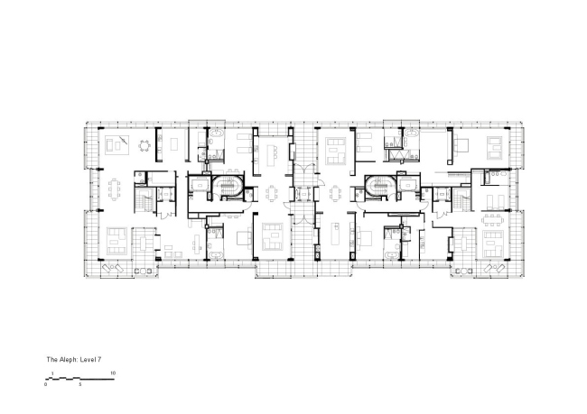
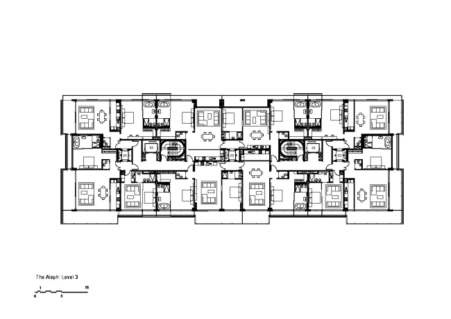
Жилой комплекс Faena Aleph построен в одноименном квартале – новом районе аргентинской столицы, возводимом на берегу залива Ла-Плата. Когда-то здесь располагался порт, теперь же на месте бывших доков появились торговые, культурные и жилые объекты. Генеральный план района в 2006 разработала мастерская Нормана Фостера, она же отвечала за проектирование одного из самых престижных жилых домов. Девятиэтажный комплекс общей площадью 17500 м2 построен с использованием самых передовых энергосберегающих технологий, а его архитектурное решение опирается на традиционные жилые дома Буэнос-Айреса.
Жилой комплекс в квартале Faena (Aleph) © Nigel Young
Жилой комплекс в квартале Faena (Aleph) © Nigel Young

В основу проекта авторы положили такие обязательные для архитектуры солнечной Аргентины элементы, как террасы и лоджии. Фактически фасады нового комплекса решены как система широких балконов и глубоких ниш – первые могут использоваться для приема солнечных ванн и отдыха в не слишком жаркую погоду, вторые, наоборот, обеспечат жильцов спасительной тенью. Наружные стены дома полностью выполнены из стекла, прозрачными сделаны и ограждения балконов, благодаря чему фасады словно приобретают дополнительное измерение, а издалека дом воспринимается как легкая этажерка, пространство между уровнями которой заполнено воздухом.
Жилой комплекс в квартале Faena (Aleph) © Nigel Young
Жилой комплекс в квартале Faena (Aleph) © Nigel Young

Солнцезащиту лоджий обеспечивают деревянные жалюзи. Эти конструкции мобильны: размещенные на разном расстоянии от фасада, они могут быть «наложены» друг на друга для более сильного затемнения помещения или, наоборот, сдвинуты в одну сторону так, чтобы максимально открыть жилище окружающим пейзажам.  
Жилой комплекс в квартале Faena (Aleph) © Nigel Young
Жилой комплекс в квартале Faena (Aleph) © Nigel Young

В новом доме, как и в любой другой постройке Нормана Фостера, по максимуму используются естественная вентиляция и накапливаемая солнечная энергия, а предельная рациональность внутренней планировки компенсируется превосходным качеством отделочных материалов. Стоимость квадратного метра в этом доме непривычно велика для Буэнос-Айреса, однако покупателей, готовых платить за жилье столь высокого уровня, в столице Аргентины нашлось предостаточно. Застройщик квартала – компания Aleph – надеется, что реализация проекта Фостера задаст принципиально новую планку качества для строящихся в городе многоквартирных домов.

А.М.
Жилой комплекс в квартале Faena (Aleph) © Nigel Young
Жилой комплекс в квартале Faena (Aleph) © Nigel Young
Жилой комплекс в квартале Faena (Aleph) © Nigel Young
Жилой комплекс в квартале Faena (Aleph) © Nigel Young
Жилой комплекс в квартале Faena (Aleph) © Nigel Young
Жилой комплекс в квартале Faena (Aleph) © Nigel Young
Жилой комплекс в квартале Faena (Aleph) © Nigel Young
Жилой комплекс в квартале Faena (Aleph) © Nigel Young
Жилой комплекс в квартале Faena (Aleph) © Nigel Young
Жилой комплекс в квартале Faena (Aleph) © Nigel Young
Жилой комплекс в квартале Faena (Aleph) © Foster + Partners
Жилой комплекс в квартале Faena (Aleph) © Foster + Partners
Жилой комплекс в квартале Faena (Aleph) © Foster + Partners
Жилой комплекс в квартале Faena (Aleph) © Foster + Partners
Жилой комплекс в квартале Faena (Aleph) © Foster + Partners
Жилой комплекс в квартале Faena (Aleph) © Foster + Partners
Жилой комплекс в квартале Faena (Aleph) © Foster + Partners
Жилой комплекс в квартале Faena (Aleph) © Foster + Partners
Жилой комплекс в квартале Faena (Aleph) © Nigel Young
Жилой комплекс в квартале Faena (Aleph) © Nigel Young
Жилой комплекс в квартале Faena (Aleph) © Nigel Young
Жилой комплекс в квартале Faena (Aleph) © Nigel Young