|
|
|
Размещено на портале Архи.ру (www.archi.ru)
|
|
06.02.2013
|
|
Разноцветный штрих-код
|
Анна Мартовицкая
|
| Объект: |
|
Реконструкция центра акушерства (НЦАГИП им. В.И.Кулакова)
|
| Адрес: |
|
Россия,
Москва.
ул. Академика Опарина, дом 4
|
|
Архитектор:
|
|
Андрей Асадов
|
|
Александр Асадов
|
|
Мастерская:
|
|
АБ ASADOV
|
|
Авторский коллектив:
|
Архитектурное Бюро Асадова: А.Асадов, А.А.Асадов, Т.Чернова, А.Штанюк, А.Санду, М.Хромова
Компания Транзумед: рук.И.Александров, Ф.Вагенкнехт, Д.Кулешов
|
|
В конце прошлого года еще одно медицинское учреждение на юго-западе Москвы приобрело позитивные разноцветные фасады, заставляющие верить в торжество искусства врачевания и самой жизни. Проект реконструкции Научного центра акушерства, гинекологии и перинатологии имени Кулакова на улице Академика Опарина разработал авторский коллектив под руководством Александра Асадова.
Этот заказ архитекторы получили именно благодаря реализации проекта Федерального научно-клинического Центра детской гематологии, онкологии и иммунологии (ФНКЦ), ослепительно яркие фасады которого украсили пересечение Ленинского проспекта и улицы Миклухо-Маклая. Реконструкцию и переоснащение своих внутренних помещений Центр акушерства пережил еще несколько лет назад – сегодня это одна из самых продвинутых клиник своего профиля не только в Москве, но и во всей России, – а вот внешне оставался довольно заурядным серым объемом. В его облике как в капле воды отразились основные принципы архитектуры советского модернизма – простота и жесткость композиции, лаконизм отделки, минимум пластики, – и среди ближайшего окружения комплекс выделялся разве что протяженностью своего главного корпуса. После того, как по соседству был построен ФНКЦ, у руководства Центра появился наглядный пример того, насколько яркой и неординарной может быть архитектура медицинского учреждения. Решение поручить разработку проекта реконструкции фасадов здания той же команде архитекторов выглядело более чем логично, хотя очень близкое соседство с уже реализованным «прототипом» создало дополнительные сложности.
Внешний вид центра до реконструкции фасадов
Дело в том, что улица Академика Опарина идет параллельно Ленинскому проспекту, упираясь в ту же улицу Миклухо-Маклая. Фактически речь идет о соседнем квартале, в котором построен ФНКЦ. Принципиальное отличие расположения двух медицинских центров лишь в том, что дедалоносная разноцветная клиника для детей своим главным фасадом обращена к многополосной автомобильной трассе, тогда как центр акушерства – плоть от плоти густо застроенного жилого квартала. Именно в силу плотности застройки два медицинских учреждения визуально друг с другом не взаимодействуют, но достаточно выйти из роддома и пройти всего несколько метров, как между домами нет-нет да и мелькнет разноцветье ФНКЦ. Вот почему перед архитекторами была поставлена задача разработать принципиально иной «цветовой код» – обновленные фасады Центра должны были решительно отличаться от фасадов ФНКЦ, обладая при этом такой же оптимистичностью.
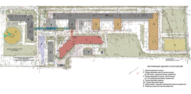
Работая над новым обликом фасадов, авторы стремились не просто освежить их, но развить заложенные в здание принципы модернистской архитектуры и подчеркнуть достоинства последней. Поэтому отправной точкой для проекта реконструкции стала компоновка построенного в 1979 году комплекса. В плане напоминающий гребенку, он имеет основной протяженный корпус и пять поперечных, длина которых варьируется, а высота вдвое меньше (три этажа против шести в главном здании). Самый длинный «зубец», обращенный к пересечению улиц Академика Опарина и Островитянова, играет роль главного фасада всего комплекса – именно здесь расположен главный вход, оформленный брутальными треугольными опорами и глухими прямоугольными эркерами. Вот это членение на отдельные габаритные сегменты и стало главной темой нового «цветокода».
Всего эркеров пять, и каждый из них архитекторы выкрасили в свой собственный цвет – красный, желтый, синий, темно-зеленый и ярко-зеленый. Последний становится лейтмотивом оформления входной зоны – переходит на длинную горизонтальную балку над главным крыльцом и опоры, фланкирующие его с другой стороны. А сама ниша входа оформлена желтым. Выделение цветом основных пластических элементов и облицовка панелями Краспан кардинально меняет внешность фасада: раньше это была монофактурная светло-серая масса, теперь – холст, на который нанесены отдельные яркие мазки, не только придающие зданию выразительность, но и структурирующие довольно внушительный объем и тем самым помогающие посетителю быстрее и точнее сориентироваться.
Вынесенные на плоскость входного фасада пять базовых цветов формируют палитру комплекса. Их можно сравнить с набором маркеров или, скажем, со штрих-кодом, в котором зашифрована информация об объекте, а точнее, о тех изменениях, которые произошли с Центром акушерства в ходе реконструкции. И если фасады ФНКЦ представляют собой плоскости, полностью выкрашенные в сочные оптимистичные тона, то здесь доминирует белый цвет – едва ли не лучшая метафора рождения новой жизни и той обязательной стерильной обстановки, в которой это происходит. Помимо уже упомянутых эркеров полностью цветными сделаны лишь торцы поперечных блоков – все остальные фасады представляют собой белоснежные поверхности, по которым разбегаются цветовые растяжки – штрихи разной ширины или, как их называют сами архитекторы, «всплески». Интересно, что их ширина варьируется от этажа к этажу, что позволяет избежать банальной «полосатости» и придать каждой части фасада индивидуальность. Особенно эффектно этот прием смотрится на фасадах главного продольного корпуса – цветной штрих-код визуально разбивает протяженный объем, сохраняя при этом его линейный характер.
Помимо «санации» существующих фасадов, проект реконструкции, разработанный командой Асадова и компанией «Транзумед», предусматривает возведение на территории центра нового медицинского корпуса – современного перинатального центра. Расположить его предполагается во дворе таким образом, чтобы три поперечных корпуса из пяти стали переходами из старого здания в новое – связывающие их галереи архитекторы предполагают возвести на кровлях трехэтажных объемов. А поскольку затевать реконструкцию кровли ради организации одного перехода неразумно, ее пространство авторы также предлагают использовать для создания зимних садов, конференц-залов и рекреаций для пациентов. Сам новый объем в плане имеет форму галочки – одно крыло здания расположено параллельно главному корпусу Центра акушерства, второе развернуто от него под углом в 45 градусов. «Такое расположение позволяет наиболее рационально использовать выделенный участок и максимально расширить пространство перед главным входом в будущий перинатальный центр», – поясняют проектировщики. Архитектурное решение нового здания развивает тему, заданную существующим объемом: предельный лаконизм параллелепипедов смягчен многоугольными торцами, а цветовой штрих-код дополнен фризом из витражей с цветными вставками между ними.
И если проект строительства перинатального центра в настоящий момент проходит заключительный этап согласования, то реконструкция фасадов самого центра уже завершена – белоснежный 290-метровый корпус, расчерченный разноцветными вертикальными полосами, изменил облик всей улицы Академика Опарина, привнеся в прежде довольно безликую и агрессивную визуальную среду яркую доминанту, символизирующую чистоту и радость появления на свет.
|
|