Размещено на портале Архи.ру (www.archi.ru)

09.11.2007

Ворота в рай или Вверх по лестнице, ведущей вниз

Наталья Тихомирова
Объект:
Вилла в Хилковом переулке
Адрес:
Россия, Москва. ул.Остоженка, д.33\7, строение 3
Архитектор:
Сергей Скуратов
Мастерская:
Сергей Скуратов ARCHITECTS
Авторский коллектив:
Скуратов С.А. – руководитель авторского коллектива, Горожанкин Андрей – ГАП, Ильин Иван, Горожанкина Мария

На 6 сотках в историческом центре Москвы Сергей Скуратов спроектировал подземную виллу площадью 2500 кв.м., полную света, воздуха, зелени и никому не мешающих машиномест

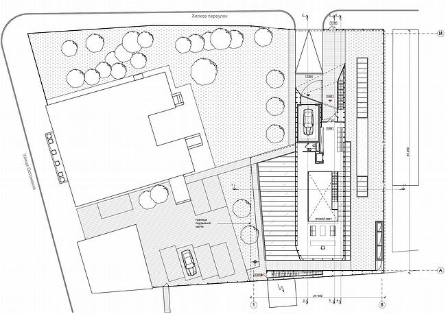
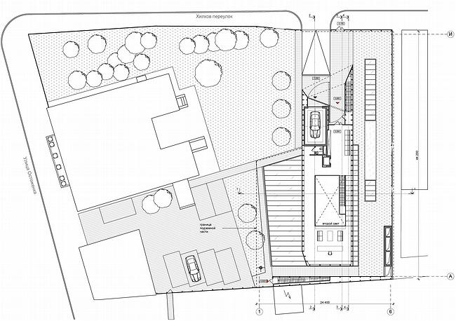
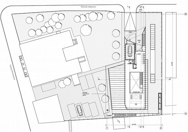
Этот удивительный дом похож на элегантную оранжерею в саду, случайно не тронутую строительной лихорадкой мегаполиса. Он задуман в старом центре Москвы, на полузадушенной строительством Остоженке. Крошечный участок, купленный заказчиком в Хилковом переулке, зажат между новым 6-этажным домом компании «Баркли» и автомобильной стоянкой на задах усадьбы Тургеневых. Участок легко можно было бы отнести к категории безнадежных, но получилось все наоборот – обилие трудностей стало мощным стимулом для  профессионализма девелопера и архитектора.

Еще недавно на этом месте находился двухэтажный хозяйственный флигель, испорченный бесконечными перестройками и полуразрушенный. Он не представлял собой архитектурной ценности, в отличие от центрального дома усадьбы Тургеневых – типичного особняка московского ампира. Здесь, в дальнем от центра конце Остоженки, осталось еще несколько домов русского классицизма, и поэтому здесь еще сохранился слабый намек на поленовский «московский дворик» – трогательный дворово-садовый дух московской городской усадьбы.

Именно контекст квартала, genius loci определил первые принципиальные параметры проекта: отказ от архитектурной экспансии вверх и вширь, создание жилого объекта с условием возвращения городу максимально возможного объема воздуха, травы и деревьев – тех безусловных городских ценностей, которые были свойственны старой одноэтажной застройке.  В общем, как шутит сам Скуратов, оставался один путь: «вверх по лестнице, ведущей вниз – в подземные резервы городского пространства».

Идею нельзя назвать совершенно новой. Сказки народов мира на все лады описывали невероятные подземные дворцы – от Лабиринта царя Миноса до роскошного кукольного театра в подземелье у папы Карло. Но волшебные подземные дворцы, созданные богатым литературным воображением прошлого, в современной архитектурной реальности как правило оборачиваются стандартным набором инфраструктурных служб, которые сравнительно легко «зарыть в землю»: это подвалы, склады, бойлерные, туннели, гаражи, в лучшем случае – винные погреба, кинозалы и бильярдные.
За примерами в буквальном смысле слова ходить недалеко: монументальные подвалы и подземные гаражи – под Храмом Христа Спасителя, под жилыми домами в Молочном и Бутиковском – стали рутинной строительной практикой.

Однако здесь, в новом проекте Сергея Скуратова, мы имеем дело с совершенно новой типологией городского жилого дома. Проект предлагает радикально новое решение не только внутреннего жилого пространства, но и всей системы взаимоотношений дома и города. Подземная часть виллы многократно превышает внешний объем. Практически вернув городу свободный и зеленый участок, она оставляет ему всего несколько принципиально важных жизненных функций – въезда и входа в дом, а также огромного, почти избыточного источника света и воздуха.
Внешний объем лишен и традиционных признаков дома – дверей, окон, глухих стен и крыш. Дверь заменяет плита со стержнем посередине. Плита вращается вокруг оси-стержня, открывая и закрывая въезд в гараж и вход в дом. Вся поверхность внешнего объема задумана состоящей из чередующихся пластин закаленного стекла и специально обработанного тонкого зеленоватого мрамора.

Таким образом, внешний павильон подземной виллы служит одновременно входом и световым фонарем. Каждая его плоскость пропускает дневной свет. Асимметрия скатов и граней кровли из редких, впервые используемых в Москве материалов, роднит все сооружение с произведением скульптора или ювелира. Сергей Скуратов так описывает тщательно спланированный эффект: «Днем снаружи зеленоватый цвет камня и стекла будет сливаться в сложную и непроницаемую для глаза поблескивающую фактуру. Благодаря общему зеленому оттенку, летом одноэтажный объем почти сольется с деревьями участка, зимой графика мраморных прожилок вступит в резонанс с рисунком черных древесных ветвей. А внутри преломленный дневной свет создаст атмосферу освещенного сада, как в картинах  французских импрессионистов».

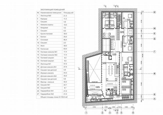
Три подземных этажа спроектированы в тех же материалах и, главное, в той же «садово-загородной» стилистике, напрочь отвергающей любые подвальные ассоциации. Первый, вернее минус-первый этаж, ближе всего к дневному свету и поэтому жилой. Гостиная расположена в центре, потолок над ней прорезан и пропускает свет из входного объема верхнего дома-«фонаря». Во дворе, вровень с землей, задуманы еще три стеклянных плоскости – слева и справа от дома-«фонаря». Одна из них освещает детские комнаты, другая расположена над душевой и наконец, самое большое «окно в земле» предназначено для зимнего сада, задуманного во втором подземном ярусе. В первом этаже пола над садом нет, чтобы свет проходил беспрепятственно, и чтобы жильцы и гости могли любоваться на деревья с балкона гостиной.

         Минус-второй этаж целиком посвящен отдыху, спорту и развлечениям. С одной стороны здесь сад, с другой бассейн, сауны, солярии, фитнес и прочее. Они разделены стеклянной стеной – прозрачной, чтобы пропускать свет, но не пар из водной части в садовую, чтобы не вредить растениям. Стена бассейна сделана из того же полупрозрачного и подсвеченного изнутри камня. Таким образом, со стороны гостиной и бассейна возникает два двухсветных пространства: гостиной и зимнего сада, параллельных, но смещенных одно относительно другого по высоте и поэтому не слитых в одно, а как будто бы соприкасающихся и перетекающих одно в другое.
В обоих жилых ярусах продуманы асимметричные горизонтальные стеклянные «окна» в полах-потолках. Дневной свет, таким образом, постепенно растворяясь, проникает до второго яруса и выстраивается в подобия световых колодцев, передающих и распределяющих свет. От этого ярусы становятся проницаемыми, пространство – светлым, перетекающим и воздушным.
Третий этаж – технический, в нем, кроме систем жизнеобеспечения,  гараж на 8 машин, соединенный с поверхностью лифтом, и помещения для охраны.

Очевидно, что перед нами цельный и тщательно продуманный пример новой архитектурной типологии – большой и роскошной городской виллы, погруженной под землю в самом центре города. Вынужденное ли это решение? В определенном смысле, конечно, да. Сергей Скуратов отлично знает проблемы города: «В Москве сейчас трудно найти открытое пространство, свежий воздух и красивые виды. Сверху, с уровня пентхаусов открывается пестрая и отнюдь не гармоничная панорама мегаполиса. А на уровне травы и деревьев, к сожалению, уже почти нет ни воздуха, ни травы, ни деревьев.
Современный город вынуждает пересматривать традиционные подходы и решения. Думаю, что мы предложили городу не самый обычный, наверное, неожиданный, но взаимовыгодный и плодотворный обмен пространством». 

Сергей Скуратов  не в первый раз представляет на суд города смелые и новые архитектурные решения. Важно, что и этот проект – цельный, чистый и абсолютно выверенный, подкрепленный точными современными знаниями и решениями в области материалов и технологий. И, в конце концов, он совершенно точно соответствует представлениям Буратино, Пьеро и других великих поэтов и мечтателей: «Первое, что они увидели, когда пролезли в отверстие, - это расходящиеся лучи солнца. Они падали с потолка сквозь круглое окно…».

Вилла в Хилковом переулке. Проект
Вилла в Хилковом переулке. Проект
Ситуационный план
Ситуационный план
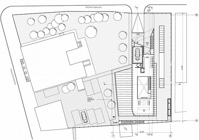
План с благоустройством
План с благоустройством
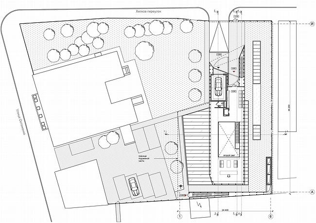
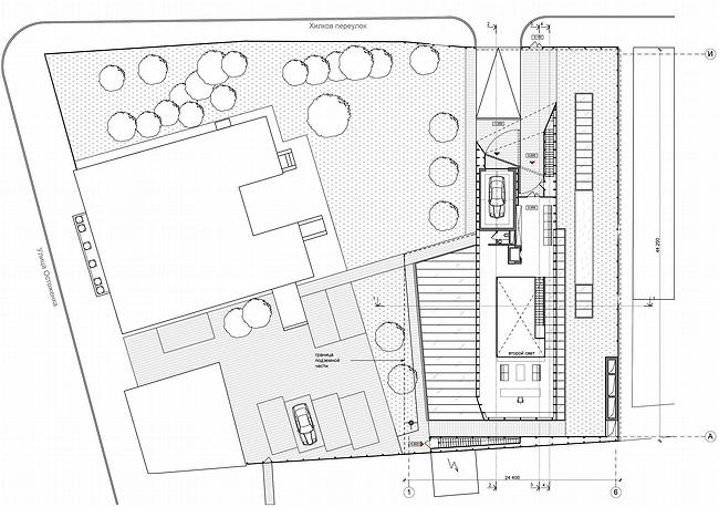
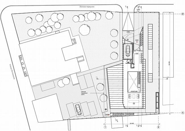
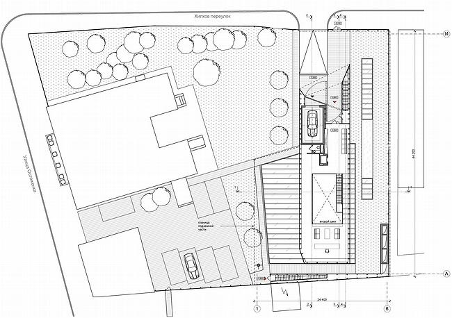
План на отметке 0000
План на отметке 0000
Разрез 2-2
Разрез 2-2
План на отметке -5 100
План на отметке -5 100
План на отметке -9 600
План на отметке -9 600
План на отметке 13 500
План на отметке 13 500