Размещено на портале Архи.ру (www.archi.ru)

01.11.2007

Дом с аркой

Мария Фадеева
Объект:
Индивидуальный жилой дом, Антоновка
Адрес:
Россия, Московская область, Антоновка
Мастерская:
PANACOM
Авторский коллектив:
Н.Токарев, А.Леонович

У бюро «Панаком» появился еще один интересный и необычный дом cо множеством лиц. Фасад со стороны подъезда создает неожиданное ощущение «большой» архитектуры в уменьшенном масштабе. Наверное, дело в арке. Архитекторы объясняют ее наличие необходимостью создания проницаемой среды, соединения двух половин двора. Но идем дальше: сбоку кажется, что перед вами фрагмент крепостной стены, позади – гигантское окно двухэтажного витража. И так дальше по кругу без остановки, потому что деталей много и каждая изменяет восприятие: смена фактур камня, проницаемости стен, окна в подземелье...

Индивидуальный жилой дом, Антоновка © PANACOM
Индивидуальный жилой дом, Антоновка © PANACOM

Участок, на котором расположится дом, находится на границе коттеджного поселка на берегу небольшой реки Сосенка. С противоположной стороны он ограничен внутрипоселковой дорогой, а по бокам - соседи. Река обуславливает рельеф, понижающийся к ней, и дом действительно встал на границе двух террас.

Снаружи здание выглядит составленным из двух отзеркаленых по горизонтали и вертикали Г-образных объемов – один как бы опирается на второй. Авторы хорошо обыгрывают эту тему. Они предлагают отделать объемы одинаковым камнем, но на одном кладка будет с заглублениями, а на другом с выступами. Кроме того, один блок остеклен по длинным сторонам, а второй по коротким. Этакое постоянное противопоставление при общей похожести. Но вообще-то все чуть сложнее. Под землей зарыто еще 2 этажа, и в целом композиция больше похожа на  зажим станка, держащий какую-то деталь.

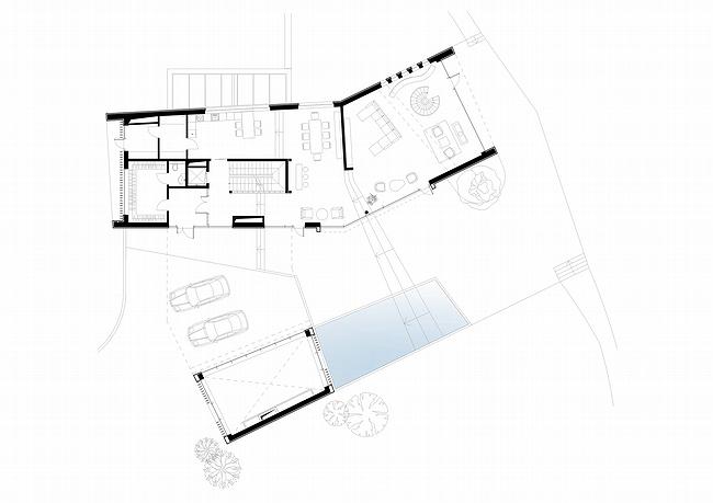
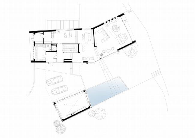
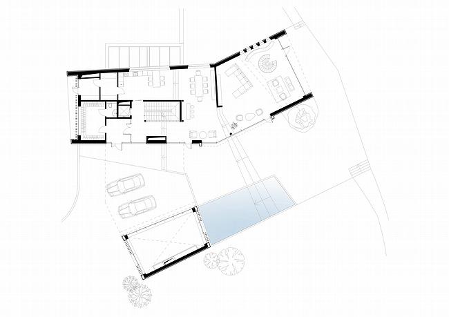
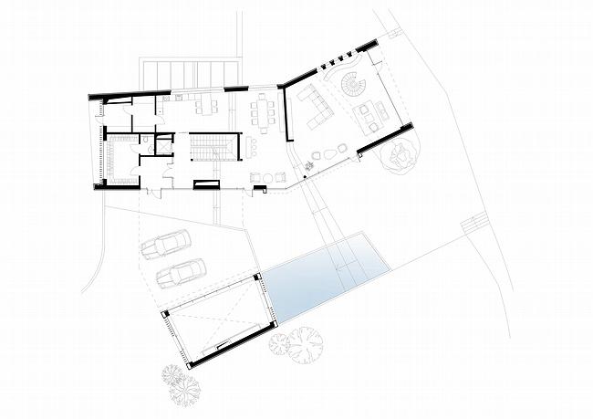
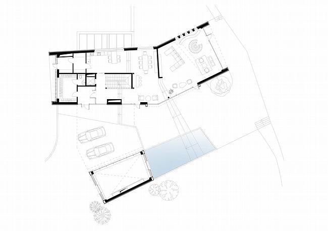
В «детали» находится главный вход (из-под арки), а также почти все помещения общественной зоны: кухня, столовая, гостиная. Когда смотришь на этот план, понимаешь, что на него сильно повлияла география участка. Одной из важных особенностей является то, что вид на речку с заросшими берегами и домиками на противоположном берегу существенно выигрышнее всех остальных. В результате гостиная, которая чаще всего оказывается центральным пространством в доме, «уползла» на задворки, в дальнюю от въезда часть участка. Причем уползла в прямом смысле слова – этот блок как будто бы стелется по земле и его пол понижается вместе с рельефом. Причем террасы, не взирая на стены, ступенями продолжаются в интерьере. Их используют для разделения разных функциональных зон: между гостиной и столовой, между столовой и кухней. В этом проекте гостиная потеряла привычную роль основного коммуникатора, а вместе с ней и лестницу, ведущую на второй этаж. Тем не менее по доброй привычке ей повысили потолок, у объема появилось «всхолмление», а в помещении оказалось больше света. Соблюдены и формальные признаки современных загородных гостиных: небольшая антресоль-библиотека и интерьерная лестница-скульптура. Кстати, эта ветвь не тупиковая, поскольку на втором этаже есть выход на эксплуатируемую кровлю.

Но все же основной коммуникационный узел оказался рядом со входом. Именно здесь находится лестница, ведущая в самое таинственное помещение дома – бассейн, расположенный в первом подземном этаже. По словам авторов, он оказался под землей из-за желания сохранить компактность дома – не хотелось занимать землю еще одним длинным объемом. От обычного подвального бассейна его отличает хитроумный способ естественного освещения: солнечный свет попадает туда через наклонное остекление внутренней части арки. Архитекторы рассчитывают, что блики от подземного водоема создадут дополнительную интригу, играя отражениями на потолке нависающего корпуса...

По той же лестнице можно попасть и на второй этаж, где расположены: хозяйская спальня с выходом на эксплуатируемую кровлю, ту самую, что ведет в гостиную, три спальни поменьше, каждая со своим санузлом, залитый  светом кривоколенный коридор, прикрытый рядами вертикальных деревянных ламелей.

Индивидуальный жилой дом, Антоновка © PANACOM
Индивидуальный жилой дом, Антоновка © PANACOM
Индивидуальный жилой дом, Антоновка © PANACOM
Индивидуальный жилой дом, Антоновка © PANACOM
Индивидуальный жилой дом, Антоновка © PANACOM
Индивидуальный жилой дом, Антоновка © PANACOM
Индивидуальный жилой дом, Антоновка © PANACOM
Индивидуальный жилой дом, Антоновка © PANACOM
Индивидуальный жилой дом, Антоновка. Фасад Е © PANACOM
Индивидуальный жилой дом, Антоновка. Фасад Е © PANACOM
Индивидуальный жилой дом, Антоновка. Фасад С © PANACOM
Индивидуальный жилой дом, Антоновка. Фасад С © PANACOM
Индивидуальный жилой дом, Антоновка. фасад А © PANACOM
Индивидуальный жилой дом, Антоновка. фасад А © PANACOM
Индивидуальный жилой дом, Антоновка. Схема генплана © PANACOM
Индивидуальный жилой дом, Антоновка. Схема генплана © PANACOM
Индивидуальный жилой дом, Антоновка. План второго этажа © PANACOM
Индивидуальный жилой дом, Антоновка. План второго этажа © PANACOM
Индивидуальный жилой дом, Антоновка. План первого этажа © PANACOM
Индивидуальный жилой дом, Антоновка. План первого этажа © PANACOM
Индивидуальный жилой дом, Антоновка. Разрез 1-1 © PANACOM
Индивидуальный жилой дом, Антоновка. Разрез 1-1 © PANACOM
Индивидуальный жилой дом, Антоновка. Разрез 2-2 © PANACOM
Индивидуальный жилой дом, Антоновка. Разрез 2-2 © PANACOM
Индивидуальный жилой дом, Антоновка. Разрез 3-3 © PANACOM
Индивидуальный жилой дом, Антоновка. Разрез 3-3 © PANACOM