Размещено на портале Архи.ру (www.archi.ru)

01.02.2013

Дворы за стеной

Анна Мартовицкая
Объект:
Жилой комплекс «Амазонка»
Адрес:
Россия, Кронштадт. ул. Зосимова, д. 46
Архитектор:
Никита Явейн
Мастерская:
Студия 44
Авторский коллектив:
Архитекторы: Н. Явейн, М. Горячкина, В. Кулаченков, В. Пономарев, при участии И. Григорьева, Ю. Дубейко
Конструктор: И. Ляшко, И. Никулина, А. Кривоносов
Главный инженер проекта: Л. Герштейн, В Кремлевский
 

В центре Кронштадта архитектурная мастерская «Студия 44» проектирует жилой комплекс. Соседствующий с охранной зоной памятников архитектуры, новый объект развивает принципы исторической застройки города-форта.

Жилой комплекс «Амазонка». Проект, 2011-2013
Жилой комплекс «Амазонка». Проект, 2011-2013
© Студия 44
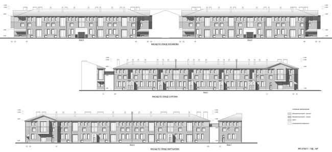
Участок, предназначенный для строительства жилого комплекса, находится в центральной части Кронштадта, между улицами Сургина, Зосимова и Мартынова. До 2005 года здесь располагалось автотранспортное предприятие ГАТП-24, а затем территория терпеливо ждала своего инвестора. В 2011-м ее приобрела компания «КВС», которая и пригласила к участию в проекте «Студию 44». Свой выбор застройщик объяснил, прежде всего, тем, что команда Никиты Явейна обладает огромным опытом строительства в историческом центре. Для Кронштадта это было более чем актуально: вплотную к будущему жилому кварталу расположены объекты культурного наследия, а сам он входит в охраняемую зону, так что на новый ЖК задолго до его появления на свет были наложены разного рода ограничения. В частности, высота зданий не должна была превышать 12 метров, а протяженность фасадов по уличному фронту составлять более 50 метров, кровли обязаны были быть скатными, а общее композиционное решение соответствовать ближайшему окружению.
Жилой комплекс «Амазонка». Проект, 2011-2013
Жилой комплекс «Амазонка». Проект, 2011-2013
© Студия 44

Среди ближайшего окружения особенно выделяется Посадская улица – одна из самых старых в Кронштадте, застроенная 2-3-этажными зданиями. Как поясняет Никита Явейн, эти объемы безусловно ценны своей подлинностью, но вполне способны отпугнуть своей внешней непритязательностью и брутальностью. Поэтому, учтя заданный этими домами масштаб среды, архитекторы тем не менее решили ориентироваться на них по минимуму и новый комплекс обратили к ним брандмауэрной стеной одного из трех корпусов, которому придали форму протяженного прямоугольника.
Жилой комплекс «Амазонка». Проект, 2011-2013
Жилой комплекс «Амазонка». Проект, 2011-2013
© Студия 44

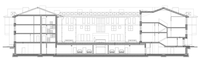
Тем самым авторы проекта обособляют большую часть участка – появление этой своего рода перегородки позволило им максимально выгодно разыграть оставшуюся территорию. К дому-планке они подводят два «П»-образных корпуса, получая два замкнутых двора и один, раскрытый на ул. Зосимова. Фактически проектируемый жилой комплекс представляет собой двойное каре, объединенное в глубине тем самым дворовым корпусом. При этом последний имеет высокий цоколь, а оба замкнутых двора приподняты над уровнем земли на 1,15 метра.  

«Такая планировка показалась нам самым простым и действенным способом обеспечить необходимую дифференциацию пространств, – поясняет Никита Явейн. – Через средний двор организован проход к наиболее комфортным квартирам большой площади. Во внутренних дворах шириной 26 метров расположатся площадки отдыха и детских игр для всех жильцов дома, а также индивидуальные палисадники квартир первого этажа». Идею включения в состав ЖК таунхаусов архитекторам подсказали те самые ограничения – невысокие и относительно протяженные фасады так и просили дополнительного дробления, которое авторы решили сделать не только визуальным, но и функциональным. Так в двух внутренних корпусах появились квартиры площадью более 100 кв. м. – они расположены на нескольких полууровнях и имеют отдельные входы, а также придомовые территории. Внешний же периметр жилого комплекса сформирован квартирами эконом-класса небольшой площади – преимущественно одно- и двухкомнатными.
Жилой комплекс «Амазонка». Проект, 2011-2013
Жилой комплекс «Амазонка». Проект, 2011-2013
© Студия 44

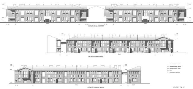
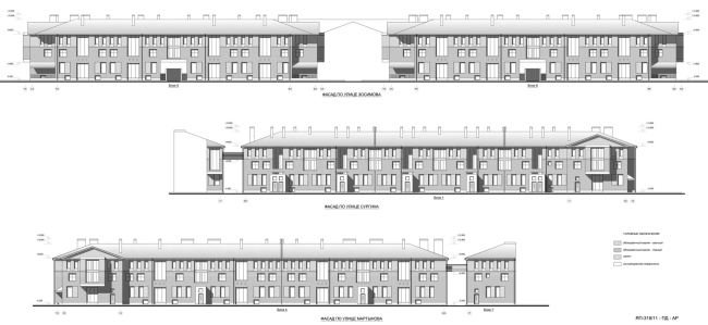
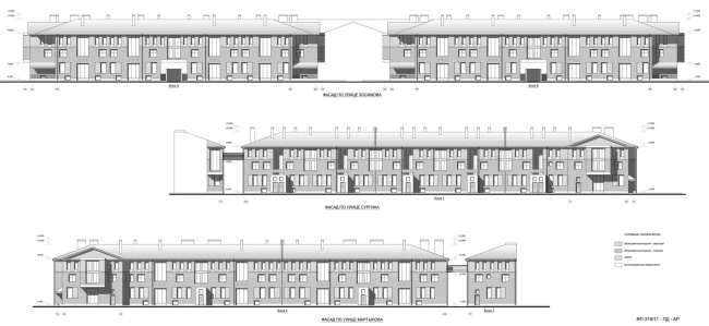
Спроектированный таким образом жилой комплекс представляет собой довольно плотную и строго организованную структуру, чем-то неуловимо напоминающую то ли крепость, то ли казарму. Наверно, для жилого комплекса, созданного для любого другого города, такое сравнение вряд ли оказалось бы лестным, но для Кронштадта, основанного Петром Первым, оно не только уместно, но и свидетельствует о максимально органичном вхождении в исконную историческую среду. Архитектурное решение преследует ту же цель: все жилые дома выходят на красные линии квартала, главный фасад выполнен симметричным и трехчастным. И уличные, и дворовые фасады отделаны кирпичном двух оттенков красного цвета, приобретя гамму, еще больше роднящую их с ближайшим окружением. Цоколь облицован плитами «путиловского» камня, а скатные кровли выполнены из металла.
Жилой комплекс «Амазонка». Проект, 2011-2013
Жилой комплекс «Амазонка». Проект, 2011-2013
© Студия 44

Интересно, что в обоих П-образных корпусах верхняя «перекладина» чуть длиннее, чем должна быть – эти «вылеты» авторы оформляют довольно массивными прямоугольными эркерами и треугольными фронтонами. Подобные дома в доме фиксируют внешние углы жилого комплекса, обращенные к перекресткам. Как и строгие порталы входных подъездов, выкрашенные в белый цвет, эти элементы обогащают пластику протяженных фасадов, делая их более запоминающимися и подчеркивая современное – «постмодернистское» – происхождение. Дворовые фасады кажутся более легкими за счет использования широких лоджий-ниш и сплошного остекления лестниц – архитекторы таким образом стремились визуально расширить длинные вытянутые дворы. И если в архитектуре жилого комплекса, как уже говорилось, определенные милитаристские нотки уместны, то уподоблять дворы плацу авторы проекта никак не хотели – с помощью мощения, элементов благоустройства и щедрого озеленения они придали каждому внутриквартальному пространству свой собственный запоминающийся облик.
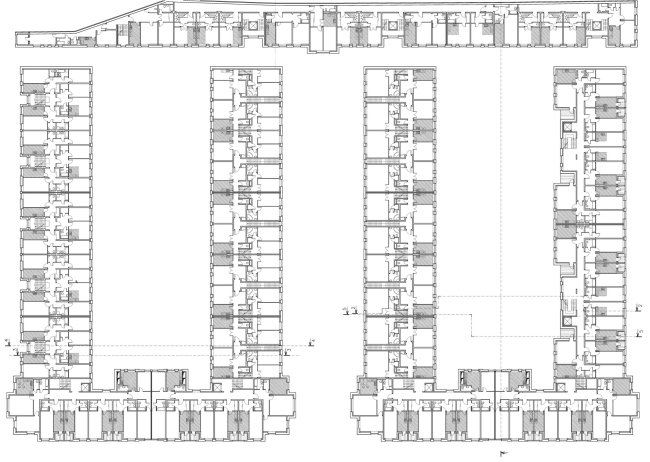
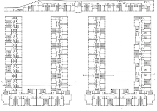
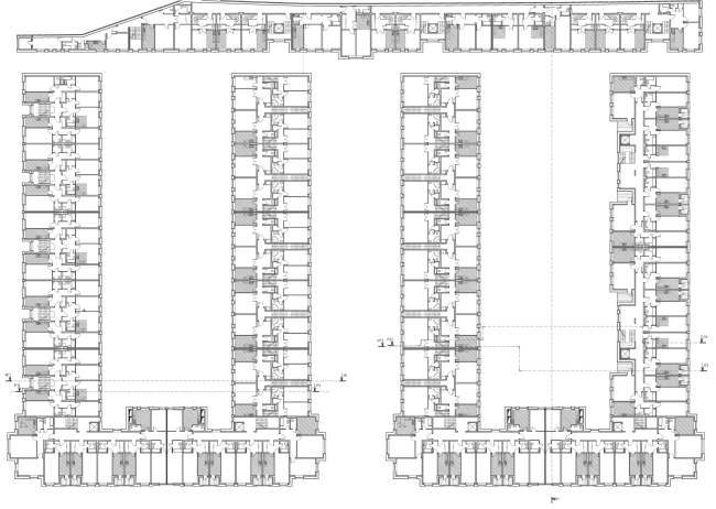
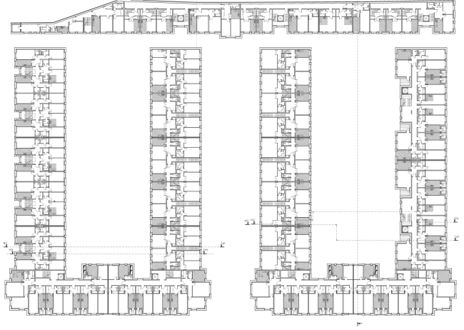
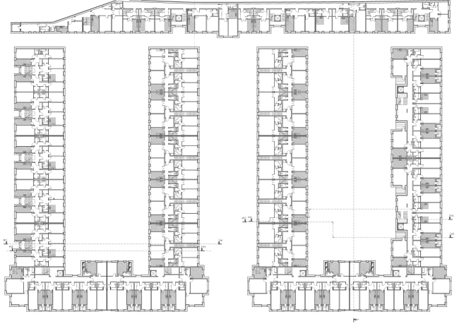
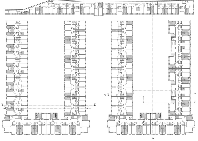
Жилой комплекс «Амазонка». План 2 этажа © Студия 44
Жилой комплекс «Амазонка». План 2 этажа © Студия 44
Жилой комплекс «Амазонка».
Жилой комплекс «Амазонка».
© Студия 44
Жилой комплекс «Амазонка».
Жилой комплекс «Амазонка».
© Студия 44
Жилой комплекс «Амазонка».
Жилой комплекс «Амазонка».
© Студия 44
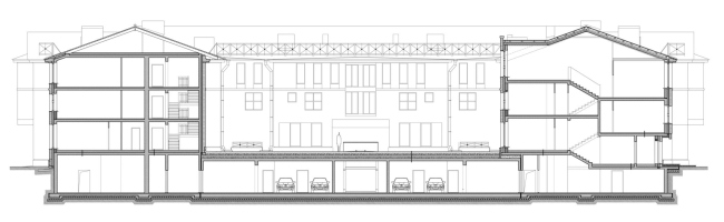
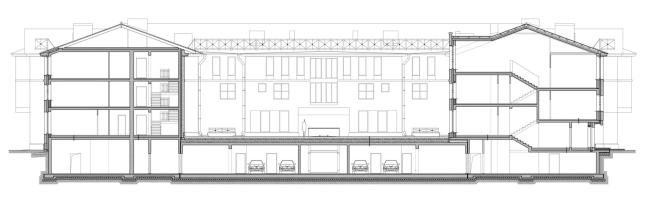
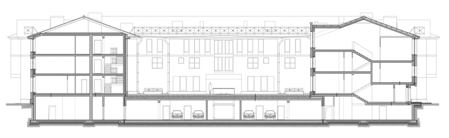
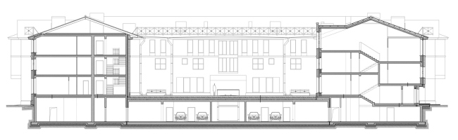
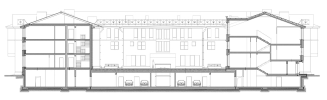
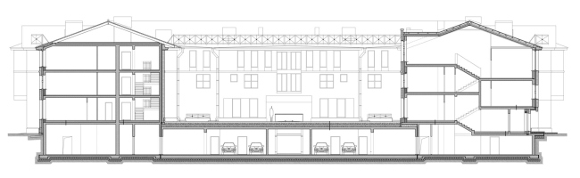
Жилой комплекс «Амазонка». Разрез © Студия 44
Жилой комплекс «Амазонка». Разрез © Студия 44