Размещено на портале Архи.ру (www.archi.ru)

17.01.2013

Модернизация в кубе

Объект:
Конференц-центр Square
Адрес:
Бельгия, None, Брюссель.
Мастерская:
A2RC Architects

Бюро A2RC Architects реконструировало конференц-центр в центре Брюсселя.

Конференц-центр Square © Елена Петухова
Конференц-центр Square © Елена Петухова
Изначально здание было построено к Всемирной выставке 1958 (архитекторы Жюль Гобер, Jules Ghobert и Морис Уайю, Maurice Hoyoux), тогда же его украсили росписями художники Рене Магритт и Поль Дельво. Расположение в центре города стало причиной устройства большинства помещений под землей. Но к началу 21 века конференц-центр стал слишком маленьким для фактической столицы Евросоюза, к тому же среди использованных материалов был обнаружен асбест.
Конференц-центр Square © A2RC Architects
Конференц-центр Square © A2RC Architects

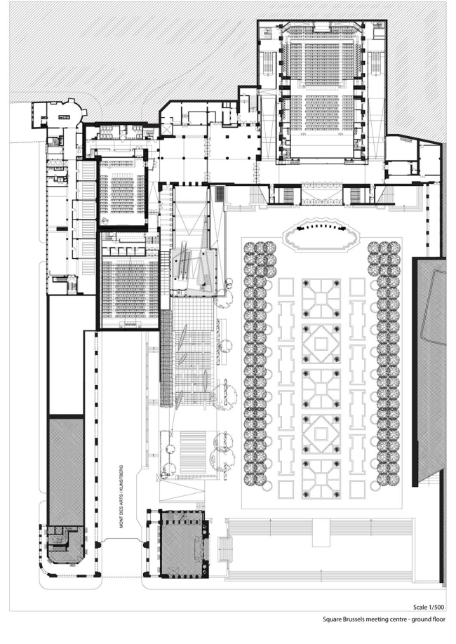
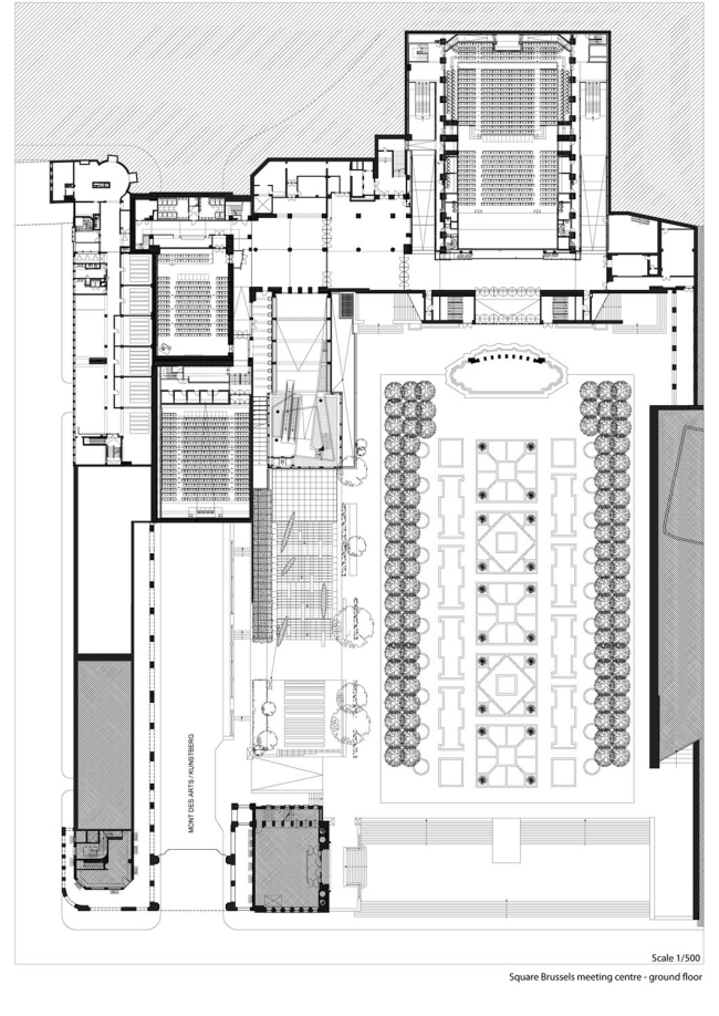
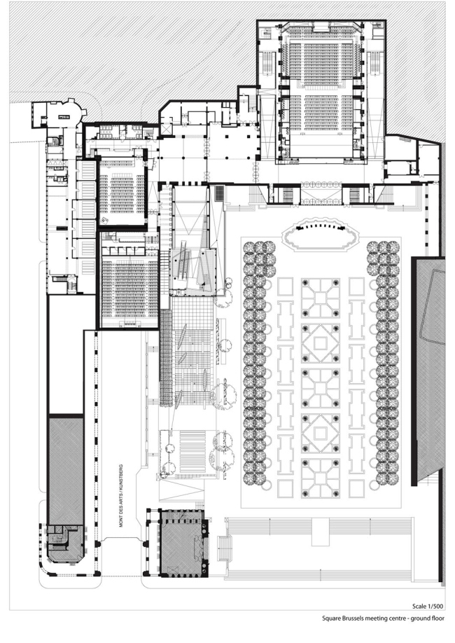
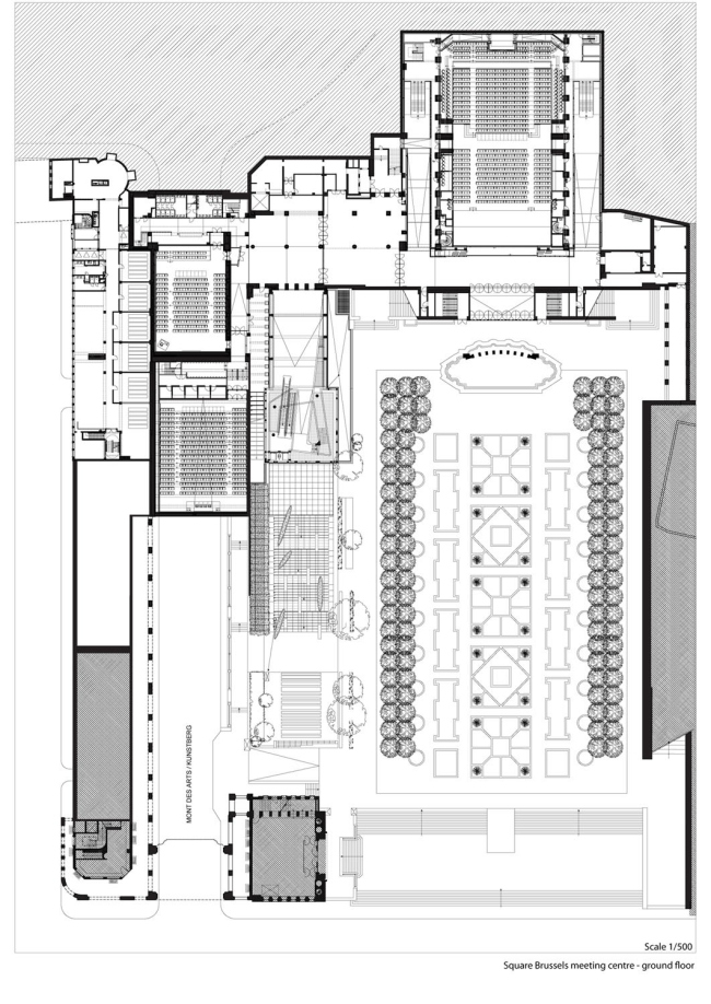
В результате, была проведена реконструкция, увеличившая число залов с 2 до 27, размером от 40 до 1200 мест. Также было создано новое выставочное пространство площадью ок. 4 тыс. м2. Самым заметным знаком обновления оставшегося полуподземным центра стал большой стеклянный куб, отмечающий вход в здание. Внутри него расположена древовидная несущая конструкция, лестницы и мостики, объединяющие разные ярусы сооружения.

Н. Ф.
Конференц-центр Square © A2RC Architects
Конференц-центр Square © A2RC Architects
Конференц-центр Square © A2RC Architects
Конференц-центр Square © A2RC Architects
Конференц-центр Square © A2RC Architects
Конференц-центр Square © A2RC Architects
Конференц-центр Square © A2RC Architects
Конференц-центр Square © A2RC Architects
Конференц-центр Square © A2RC Architects
Конференц-центр Square © A2RC Architects
Конференц-центр Square © A2RC Architects
Конференц-центр Square © A2RC Architects
Конференц-центр Square © A2RC Architects
Конференц-центр Square © A2RC Architects
Конференц-центр Square © Елена Петухова
Конференц-центр Square © Елена Петухова
Конференц-центр Square © Елена Петухова
Конференц-центр Square © Елена Петухова
Конференц-центр Square © Елена Петухова
Конференц-центр Square © Елена Петухова
Конференц-центр Square © Елена Петухова
Конференц-центр Square © Елена Петухова
Конференц-центр Square © Елена Петухова
Конференц-центр Square © Елена Петухова
Конференц-центр Square © A2RC Architects
Конференц-центр Square © A2RC Architects
Конференц-центр Square © A2RC Architects
Конференц-центр Square © A2RC Architects
Конференц-центр Square © A2RC Architects
Конференц-центр Square © A2RC Architects
Конференц-центр Square © A2RC Architects
Конференц-центр Square © A2RC Architects
Конференц-центр Square © A2RC Architects
Конференц-центр Square © A2RC Architects
Конференц-центр Square © A2RC Architects
Конференц-центр Square © A2RC Architects
Конференц-центр Square © A2RC Architects
Конференц-центр Square © A2RC Architects
Конференц-центр Square. Изображение с сайта square-brussels.com
Конференц-центр Square. Изображение с сайта square-brussels.com