Размещено на портале Архи.ру (www.archi.ru)

10.01.2013

Смутные воспоминания об индустриальном наследии

Объект:
Жилой комплекс NEO Bankside
Адрес:
Великобритания, None, Лондон.
Мастерская:
Gillespies
RSHP

Рядом с Галереей Тейт Модерн в Лондоне построен жилой комплекс по проекту Ричарда Роджерса.

Жилой комплекс NEO Bankside © Edmund Sumner
Жилой комплекс NEO Bankside © Edmund Sumner
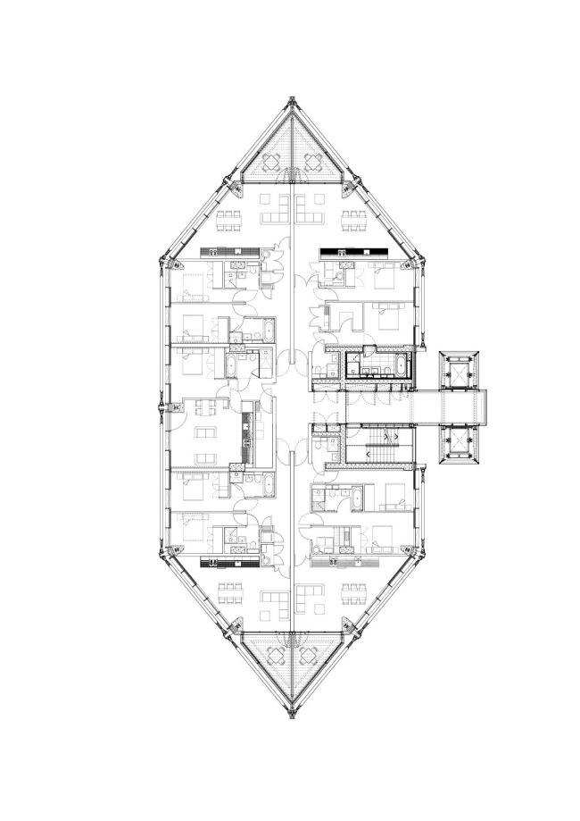
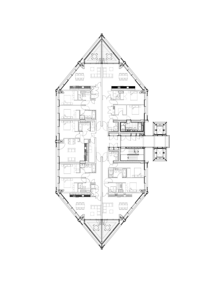
NEO Bankside состоит из 4 шестиугольных башен высотой 12–24 этажа, в которых в общей сложности располагается 217 квартир (ок. 28 600 м2 жилой площади). В интерьере нет несущих стен, поэтому планировка жилья значительно варьируется. Стальной каркас вынесен за пределы построек, а фасад представляет собой навесную стену из стеклянных и деревянных панелей. Такое решение, по мнению архитекторов бюро Роджерса, должно напоминать о промышленном прошлом района Бэнксайд (так, находящаяся рядом Тейт Модерн располагается в бывшем здании электростанции).
Жилой комплекс NEO Bankside © Edmund Sumner
Жилой комплекс NEO Bankside © Edmund Sumner

Остекленные шахты лифтов помещены снаружи здания, с западной стороны, а северный и южный фасады снабжены балконами, также играющими роль зимнего сада. Панорамное остекление позволяет любоваться видами лондонского Сити, который от жилого комплекса отделяет Темза.
Жилой комплекс NEO Bankside © Gillespies
Жилой комплекс NEO Bankside © Gillespies

Благодаря распределению квартир по 4 корпусам удалось удачно соединить участок застройки с окружающими улицами и проложить через него две доступные всем пешеходные дорожки. Однако ландшафтный дизайн бюро Gillespies четко разграничивает общественное пространство и сады у подножия каждого из зданий, предназначенные для отдыха жильцов.
Жилой комплекс NEO Bankside © Gillespies
Жилой комплекс NEO Bankside © Gillespies

Также жилой комплекс включает в себя небольшой корпус с магазинами и спортивным залом. Бюджет проекта составил ок. 120 млн фунтов.

Н. Ф.
Жилой комплекс NEO Bankside © Gillespies
Жилой комплекс NEO Bankside © Gillespies
Жилой комплекс NEO Bankside © Edmund Sumner
Жилой комплекс NEO Bankside © Edmund Sumner
Жилой комплекс NEO Bankside © Rogers Stirk Harbour + Partners
Жилой комплекс NEO Bankside © Rogers Stirk Harbour + Partners
Жилой комплекс NEO Bankside © Rogers Stirk Harbour + Partners
Жилой комплекс NEO Bankside © Rogers Stirk Harbour + Partners
Жилой комплекс NEO Bankside © Rogers Stirk Harbour + Partners
Жилой комплекс NEO Bankside © Rogers Stirk Harbour + Partners
Жилой комплекс NEO Bankside
Жилой комплекс NEO Bankside
Жилой комплекс NEO Bankside © Rogers Stirk Harbour + Partners
Жилой комплекс NEO Bankside © Rogers Stirk Harbour + Partners
Жилой комплекс NEO Bankside © Rogers Stirk Harbour + Partners
Жилой комплекс NEO Bankside © Rogers Stirk Harbour + Partners
Жилой комплекс NEO Bankside © Rogers Stirk Harbour + Partners
Жилой комплекс NEO Bankside © Rogers Stirk Harbour + Partners
Жилой комплекс NEO Bankside © Rogers Stirk Harbour + Partners
Жилой комплекс NEO Bankside © Rogers Stirk Harbour + Partners
Жилой комплекс NEO Bankside © Rogers Stirk Harbour + Partners
Жилой комплекс NEO Bankside © Rogers Stirk Harbour + Partners
Жилой комплекс NEO Bankside © Rogers Stirk Harbour + Partners
Жилой комплекс NEO Bankside © Rogers Stirk Harbour + Partners
Жилой комплекс NEO Bankside © Rogers Stirk Harbour + Partners
Жилой комплекс NEO Bankside © Rogers Stirk Harbour + Partners