Размещено на портале Архи.ру (www.archi.ru)

24.12.2012

Курортный стиль

Объект:
Поселок "Дома в Бодруме"
Адрес:
Турция, None, Яликавак.

Ричард Майер продолжает свою мировую экспансию: его новый проект реализован в турецком Бодруме.

Поселок «Дома в Бодруме». Фото © Richard Meier and Partners
Поселок «Дома в Бодруме». Фото © Richard Meier and Partners
Небольшой элитный поселок, объединяющий сразу 21 жилой дом, возник на зеленом склоне холма в местечке Яликавак — самой престижной части побережья полуострова Бодрум. Склон довольно крутой, что позволило архитекторам Richard Meier & Partners обеспечить множество прекрасных видовых точек. Стоит ли упоминать, что все без исключения дома абсолютно белые?
Поселок «Дома в Бодруме». Фото © Richard Meier and Partners
Поселок «Дома в Бодруме». Фото © Richard Meier and Partners

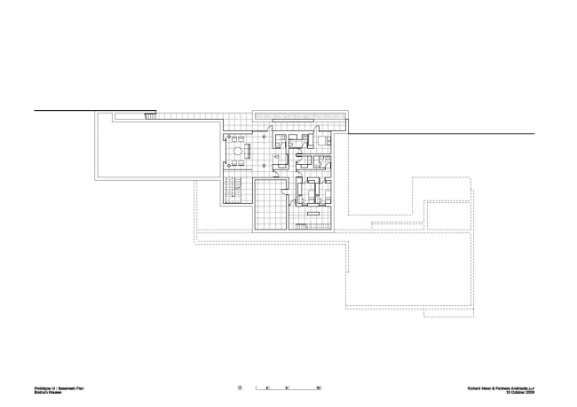
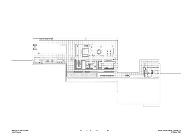
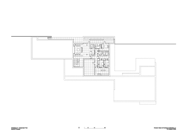
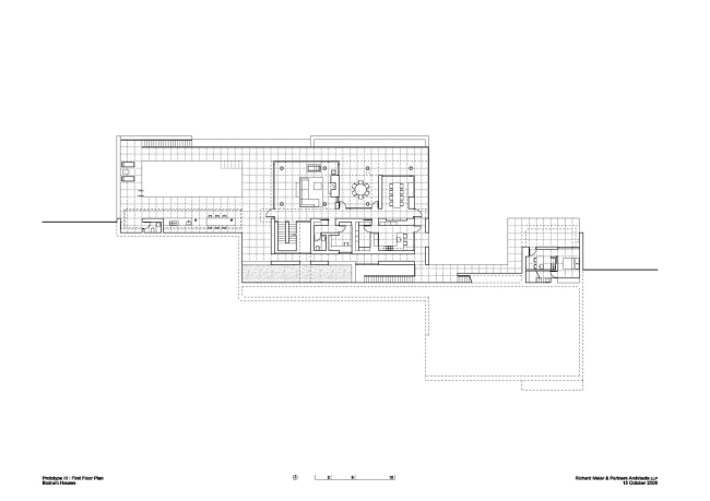
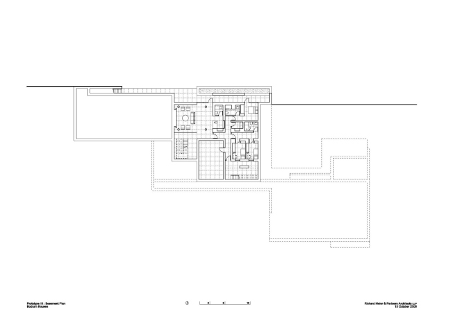
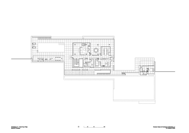
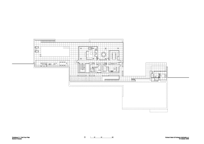
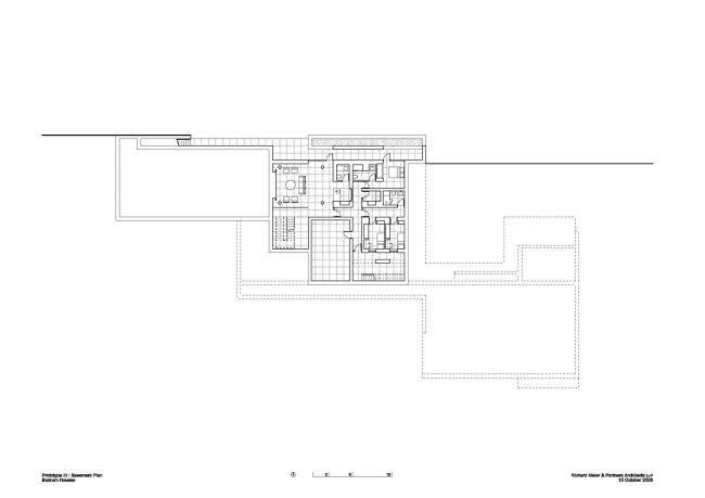
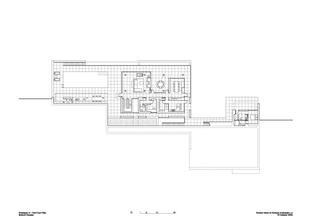
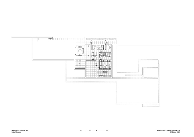
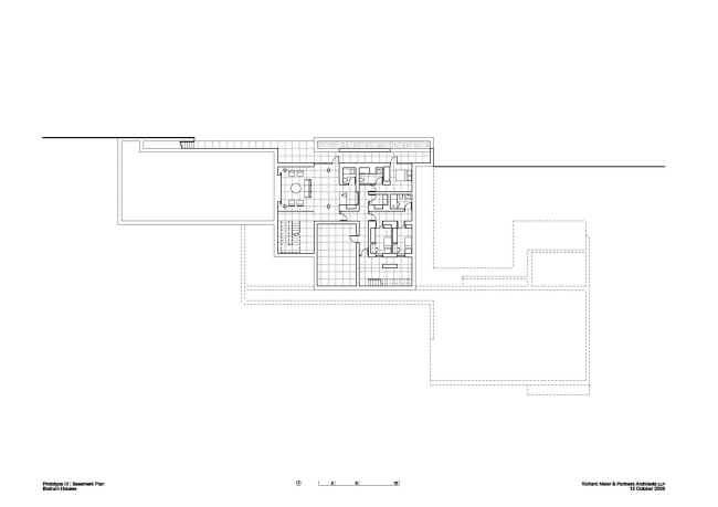
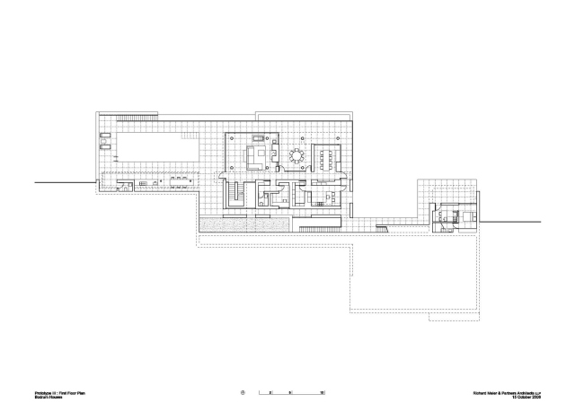
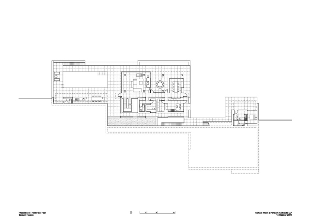
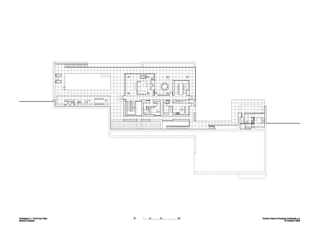
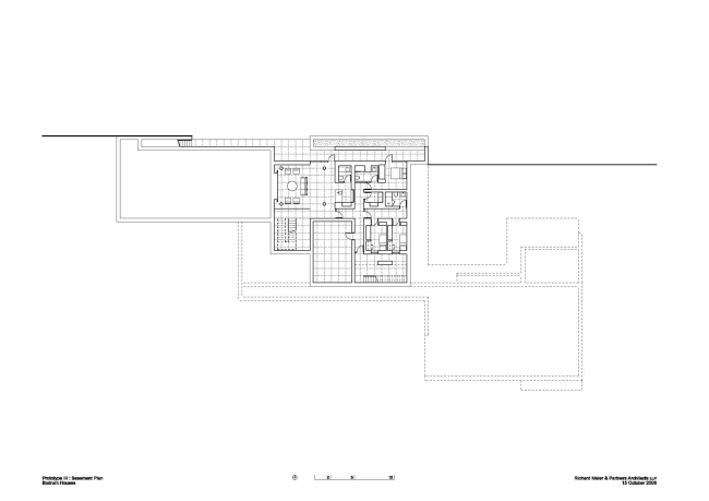
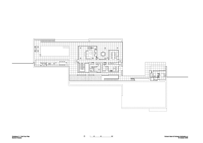
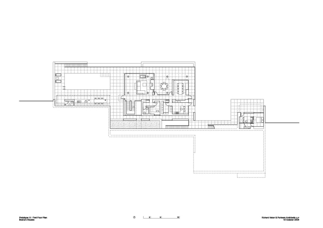
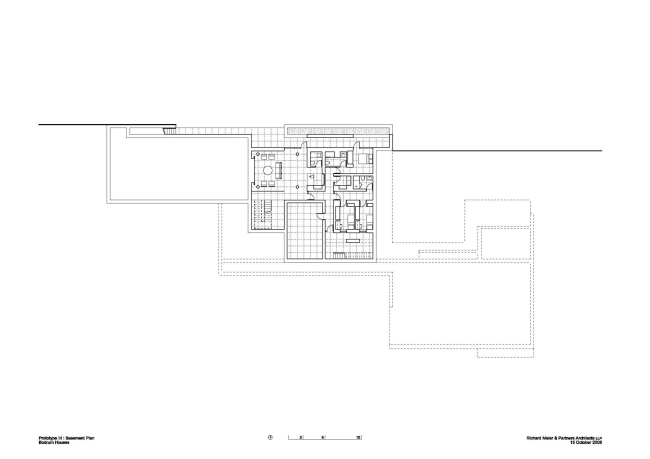
Архитекторы представили 5 стандартных типов планировки. Основные изменения касаются устройства основания и привязки объекта к конкретной части ландшафта. В остальном отличий не много. За каждым владельцем закреплен просторный участок земли площадью 1 акр (0,4 га). На нем размещены основной дом общей площадью около 330 м2 и 40-метровый гостевой домик. К главному входу ведет открытая лестница, которая вместе с холлом и двусветной гостиной образует своеобразную анфиладу-променад.
Поселок «Дома в Бодруме». Фото © Richard Meier and Partners
Поселок «Дома в Бодруме». Фото © Richard Meier and Partners

Набор помещений так же идентичен: в нижней части обустроены домашний кинотеатр, прачечная и комнаты прислуги; гостиная, столовая, кухня и ванная находятся на первом этаже; наверху расположены три спальни. Центральное место в каждом доме займет полноценный камин.
Поселок «Дома в Бодруме». Фото © Richard Meier and Partners
Поселок «Дома в Бодруме». Фото © Richard Meier and Partners

Аккуратные, можно даже сказать «стерильные» дома особенно эффектно смотрятся на фоне бурной растительности. Простые и ясные геометрические формы, открытые террасы и обилие стекла, светлые, наполненные солнцем интерьеры — просто квинтэссенция курортной архитектуры, идиллического представления о беззаботной жизни на берегу моря. И, одновременно, простого и практичного подхода к проектированию современного жилого дома. Не случайно этот проект стал частью активного сотрудничества бюро Ричарда Майера с известным инвестором Николасом Берггруеном и его компанией Berggruen Holdings.

Л. М.
Поселок «Дома в Бодруме». Фото © Richard Meier and Partners
Поселок «Дома в Бодруме». Фото © Richard Meier and Partners
Поселок «Дома в Бодруме». Фото © Richard Meier and Partners
Поселок «Дома в Бодруме». Фото © Richard Meier and Partners
Поселок «Дома в Бодруме». Фото © Richard Meier and Partners
Поселок «Дома в Бодруме». Фото © Richard Meier and Partners
Поселок «Дома в Бодруме». Фото © Richard Meier and Partners
Поселок «Дома в Бодруме». Фото © Richard Meier and Partners
Поселок «Дома в Бодруме». Фото © Richard Meier and Partners
Поселок «Дома в Бодруме». Фото © Richard Meier and Partners
Поселок «Дома в Бодруме». Фото © Richard Meier and Partners
Поселок «Дома в Бодруме». Фото © Richard Meier and Partners
Поселок «Дома в Бодруме». Фото © Richard Meier and Partners
Поселок «Дома в Бодруме». Фото © Richard Meier and Partners
Поселок «Дома в Бодруме». Изображение © Richard Meier and Partners
Поселок «Дома в Бодруме». Изображение © Richard Meier and Partners
Поселок «Дома в Бодруме». Изображение © Richard Meier and Partners
Поселок «Дома в Бодруме». Изображение © Richard Meier and Partners
Поселок «Дома в Бодруме». Изображение © Richard Meier and Partners
Поселок «Дома в Бодруме». Изображение © Richard Meier and Partners
Поселок «Дома в Бодруме». Изображение © Richard Meier and Partners
Поселок «Дома в Бодруме». Изображение © Richard Meier and Partners
Поселок «Дома в Бодруме». Изображение © Richard Meier and Partners
Поселок «Дома в Бодруме». Изображение © Richard Meier and Partners
Поселок «Дома в Бодруме». Изображение © Richard Meier and Partners
Поселок «Дома в Бодруме». Изображение © Richard Meier and Partners
Поселок «Дома в Бодруме». Изображение © Richard Meier and Partners
Поселок «Дома в Бодруме». Изображение © Richard Meier and Partners
Поселок «Дома в Бодруме». Изображение © Richard Meier and Partners
Поселок «Дома в Бодруме». Изображение © Richard Meier and Partners
Поселок «Дома в Бодруме». Изображение © Richard Meier and Partners
Поселок «Дома в Бодруме». Изображение © Richard Meier and Partners
Поселок «Дома в Бодруме». Изображение © Richard Meier and Partners
Поселок «Дома в Бодруме». Изображение © Richard Meier and Partners