Размещено на портале Архи.ру (www.archi.ru)

24.12.2012

Квартал на трех берегах

Анна Мартовицкая
Объект:
Коттеджный поселок «Рижский квартал»
Адрес:
Россия, Москва. Московская область, г. Красногорск, микрорайон Опалиха
Мастерская:
Архитектуриум
Авторский коллектив:
Архитекторы: В. Биндеман, Д. Липранди

Неподалеку от Красногорска по проекту мастерской «Архитектуриум» строится поселок таунхаусов «Рижский квартал». Стильная малоэтажная застройка организована вокруг большого лесного озера, и для Подмосковья это редкий пример, когда название подходит и соответствует содержанию.

Коттеджный поселок «Рижский квартал». Постройка, 2013 © Архитектуриум
Коттеджный поселок «Рижский квартал». Постройка, 2013 © Архитектуриум
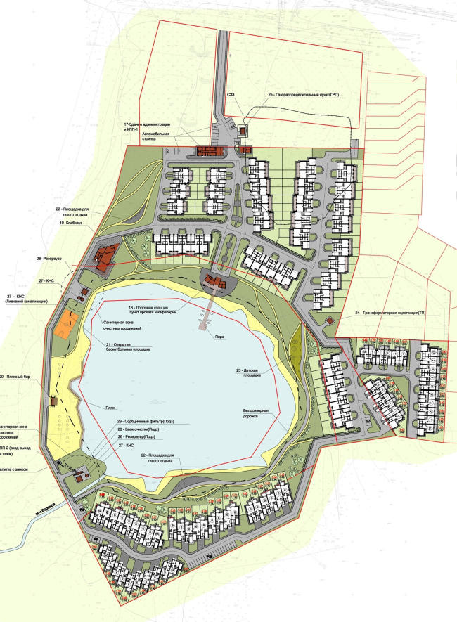
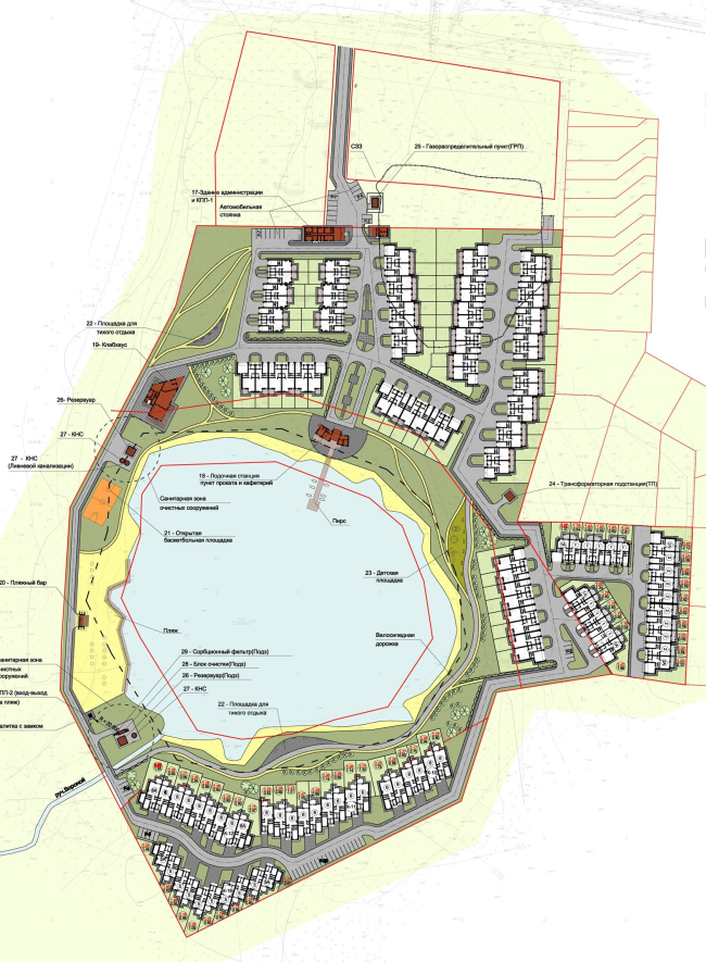
Этот поселок как-то сразу ломает устоявшиеся стереотипы. Достаточно взглянуть на его генплан – и уже начинаешь удивляться. Например, там, где обычно проектируется аккуратная центральная площадь («под Европу») или такое же маленькое аккуратное озерцо, у «Рижского квартала» огромный водоем. Его площадь вполне сопоставима с площадью застройки, а поскольку архитекторы старались почти равномерно распределить таунхаусы вдоль берегов, то безоговорочное главенство озера в пространственной иерархии поселка очевидно. Именно оно задает здесь и общую планировочную структуру, и стилистику создаваемого жилья.
Коттеджный поселок «Рижский квартал». Генеральный план © Архитектуриум
Коттеджный поселок «Рижский квартал». Генеральный план © Архитектуриум

Кстати, и сам участок, отведенный под строительство «Рижского квартала», в плане имеет вполне «тематическую» форму, больше всего напоминающую рыбку: на юг обращен ее треугольный нос, на север – широкий хвост, а на восток смотрит плавник. Водоем почти круглой формы вписан в эту фигуру точно посередине, а поскольку «рыбка» попалась девелоперам довольно стройная и длинная, то лишь два берега из четырех оказались достаточно широки и просторны для застройки.. И если на востоке на помощь приходит «плавник» – вытянутый прямоугольник, который архитекторы рачительно застраивают, то узкая прибрежная полоса земли на западе по большому счету так и остается пустой. «Здесь всегда был пляж, и эту функцию мы решили сохранить, тем более что по условиям землеотвода застройщик должен был создать здесь условия для общедоступного отдыха на воде, – объясняет руководитель мастерской «Архитектуриум» Владимир Биндеман. – Кроме того, местность здесь весьма заболоченная – вплотную к озеру строить ничего не будешь, не только дома, но и основательную набережную здесь соорудить не получится. Так что мы сразу сделали выбор в пользу легких конструкций – дощатые настилы, почти невесомые мостки. В общем, что-то такое скандинавское или вот прибалтийское – так и определились с общей стилистикой, подчинив ее трем качествам: натуральность, добротность, простота».
Коттеджный поселок «Рижский квартал». Постройка, 2013 © Архитектуриум
Коттеджный поселок «Рижский квартал». Постройка, 2013 © Архитектуриум

И если вокруг самого озера возникает благоустроенная пешеходная зона, то по границе участка архитекторы пускают дорогу, которая огибает водоем широкой петлей и соединяет отдельные сегменты застройки. Они очень хорошо видны на генплане: одна группа домов расположена на въезде в поселок, между трассой и озером, вторая – это ряды таунхаусов, заполнившие уже упомянутый «плавник», а третья – массив с обратной стороны озера. Кстати, эта вынужденная разобщенность кварталов оказалась застройщику только на руку – разбить строительство на отдельные очереди стало проще простого: сейчас «Северный берег» уже сдан, «Восточный берег» находится в стадии возведения, а к концу 2013-го года планируется построить и «Южный берег».
Коттеджный поселок «Рижский квартал». Постройка, 2013 © Архитектуриум
Коттеджный поселок «Рижский квартал». Постройка, 2013 © Архитектуриум

В этом поселке нет привычной центральной улицы, на которую нанизаны капилляры внутренних проездов и домовладения – разве что уже упомянутый променад вокруг озера может таковым считаться – из какого квартала не выйди, обязательно попадешь к благоустроенной береговой зоне. А планировка каждого отдельного взятого сегмента напрямую зависит от того, где именно в поселке он расположен относительно озера. На «Южном берегу» дома, например, максимально раскрыты на воду и фактически стоят перед ней единым фронтом, а на «Северном берегу» секции, наоборот, выстроены торцами с небольшим смещением относительно друг друга. Впрочем, архитекторам не хотелось банально пробивать видовые коридоры от въездной группы к озеру, поэтому у воды центральная аллея фланкирована двумя домами по шесть секций каждый, а в будущем ее перспективу должен замкнуть элегантный полностью деревянный объем лодочной станции. «Таким образом мы делаем озеро достоянием только поселка – с дороги его заметить почти невозможно, зато сама застройка со стороны шоссе приобретает определенную глубину и многомерность», – говорит Владимир Биндеман.
Коттеджный поселок «Рижский квартал». Постройка, 2013 © Архитектуриум
Коттеджный поселок «Рижский квартал». Постройка, 2013 © Архитектуриум

Площадь домов постепенно возрастает по мере приближения к воде: если «Северный берег», в основном, застроен секциями площадью 200-210 кв.м., то метраж жилья на «Восточном берегу» уже приближается к 240 «квадратам», а на «Южном берегу» составляет все 270. А вот архитектурное решение принципиальных изменений от квартала к кварталу не претерпевает – наоборот, авторы стремились к единству среды, поэтому оперируют  одним и тем же арсеналом средств. В его основе – лаконичное сочетание трех материалов: темного кирпича, белой штукатурки и дерева. Эта тема задается въездной группой – мощная прямоугольная арка, облицованная деревянной рейкой, покоится на двух квадратных объемах, светлом и темном. Створ главной улицы оформлен так же: по одну ее сторону расположены секции, в которых доминируют белые плоскости, по другую – темно-коричневые. Впрочем, на самом деле в каждой секции присутствуют оба цвета, просто один из них доминирует на уличном фасаде, а второй на заднем, обращенном к придомовому участку. Здесь также важно отметить, что улицы здесь проложены так, чтобы обойти и тем самым максимально сохранить вторгающийся на участок клин Опалиховского лесопарка. Фактически сосны оказываются на задних дворах таунхаусов – близость к лесному массиву архитекторы подчеркнули с помощью полностью деревянных разделительных перегородок. Дома, на уличных фасадах которых преобладает добротный кирпич, к лесу обращены беззащитной деревянной изнанкой.
Коттеджный поселок «Рижский квартал». Постройка, 2013 © Архитектуриум
Коттеджный поселок «Рижский квартал». Постройка, 2013 © Архитектуриум

Владимир Биндеман вспоминает, что за несколько лет работы над этим проектом его мастерская успела выполнить десятки вариантов решения таунхаусов. Архитекторы рисовали и полностью деревянные дома, и отделанные натуральным камнем, и даже лофты, но в итоге победила сдержанная «скандинавская» стилистика. Ритмичное смещение домов относительно друг друга, чередование выдвигающихся и западающих плоскостей, балконов и террас, односкатные кровли, которые выглядят как плоские, прямоугольные порталы и ровные срезы навесов – все это действительно мгновенно опознается как «финское» или «прибалтийское». Впрочем, не только архитектура делает этот поселок похожим на уголок Северной Европы – строго дозированное сочетание материалов и художественных средств, которого тщательно придерживаются авторы проекта, в полной мере раскрывается именно в сочетании с соснами, водной гладью озера и щедрым запасом общественных пространств.
Коттеджный поселок «Рижский квартал». Постройка, 2013 © Архитектуриум
Коттеджный поселок «Рижский квартал». Постройка, 2013 © Архитектуриум
Коттеджный поселок «Рижский квартал». Постройка, 2013 © Архитектуриум
Коттеджный поселок «Рижский квартал». Постройка, 2013 © Архитектуриум
Коттеджный поселок «Рижский квартал». Постройка, 2013 © Архитектуриум
Коттеджный поселок «Рижский квартал». Постройка, 2013 © Архитектуриум
Коттеджный поселок «Рижский квартал». Постройка, 2013 © Архитектуриум
Коттеджный поселок «Рижский квартал». Постройка, 2013 © Архитектуриум
Коттеджный поселок «Рижский квартал». Постройка, 2013 © Архитектуриум
Коттеджный поселок «Рижский квартал». Постройка, 2013 © Архитектуриум
Коттеджный поселок «Рижский квартал». Постройка, 2013 © Архитектуриум
Коттеджный поселок «Рижский квартал». Постройка, 2013 © Архитектуриум
Коттеджный поселок «Рижский квартал». Постройка, 2013 © Архитектуриум
Коттеджный поселок «Рижский квартал». Постройка, 2013 © Архитектуриум
Коттеджный поселок «Рижский квартал». Постройка, 2013 © Архитектуриум
Коттеджный поселок «Рижский квартал». Постройка, 2013 © Архитектуриум
Коттеджный поселок «Рижский квартал». Постройка, 2013 © Архитектуриум
Коттеджный поселок «Рижский квартал». Постройка, 2013 © Архитектуриум
Коттеджный поселок «Рижский квартал». Фасады и разрезы © Архитектуриум
Коттеджный поселок «Рижский квартал». Фасады и разрезы © Архитектуриум
Коттеджный поселок «Рижский квартал». Фасады и разрезы © Архитектуриум
Коттеджный поселок «Рижский квартал». Фасады и разрезы © Архитектуриум
Коттеджный поселок «Рижский квартал». Фасады и разрезы © Архитектуриум
Коттеджный поселок «Рижский квартал». Фасады и разрезы © Архитектуриум