Размещено на портале Архи.ру (www.archi.ru)

09.01.2013

Капитальный трансформер

Анна Мартовицкая
Объект:
Дом-матрёшка («Экспресс»)
Адрес:
Россия, Московская обл., Мытищинский р-он, курорт «Пирогово»
Мастерская:
Архитектурная мастерская Тотана Кузембаева
Авторский коллектив:
Руководитель проекта: Тотан Кузембаев. Главный архитектор проекта: Гари Чанг. Архитекторы: Амина Хазгалеева, Александра Черткова. Конструктор: Сергей Богословский.

«Дом-экспресс», построенный Гари Чангом и Тотаном Кузембаевым в «Пирогово», – объект, эволюционировавший от павильона до капитального сооружения.

Дом-матрёшка («Экспресс»).  Концепция – Гари Чанг © Архитектурная мастерская Тотана Кузембаева
Дом-матрёшка («Экспресс»). Концепция – Гари Чанг © Архитектурная мастерская Тотана Кузембаева
Изначально «Дом-экспресс» проектировал гонконгский архитектор Гари Чанг, которого Тотан Кузембаев пригласил поучаствовать в застройке «Пирогово» в 2005 году. Чанг – мастер трансформаций, построивший в «Коммуне у Великой китайской стены» обаятельнейший «Дом-чемодан», и в Подмосковье он решил развивать именно этот жанр. Поскольку и задача изначально ставилась создать не столько дом, сколько шоу-рум, то архитектор придумал объект, в котором трансформироваться мог не только интерьер, но и само здание в целом. Потому, собственно, и «Экспресс» (впрочем, Гари сначала предлагал назвать дом «Матрешкой») – в нем все быстро разбиралось и так же быстро собиралось, мгновенно подстраиваясь под нужды посетителей. Дом Чанга представлял собой коробочку, любая стена которой могла открыться, так что здание фактически растворялось в окружающей среде, а внутренние помещения, например, лестница на второй этаж, блок санузла или кладовая, превращались в своего рода пилоны, вокруг которых можно было гулять как по парку. Еще интереснее Чанг обошелся с мебелью – она была «запакована» в специальный трансформируемый модуль, состоящий из нескольких вложенных друг в друга кубов, которые по рельсам выезжали из дома и раскладывались в стол, кровать, даже джакузи.
Дом-матрёшка («Экспресс»). Фотография © Илья Иванов
Дом-матрёшка («Экспресс»). Фотография © Илья Иванов

В таком виде проект восхитил ценителей современной архитектуры, в том числе и Александра Ежкова, мечтавшего реализовать замысел Чанга в «Пирогово» и сделать «Дом-экспресс» одним из узнаваемых символов курорта. Коррективы в эти планы внес экономический кризис – воплотить все технические задумки Гари Чанга оказалось делом не только непростым, но и очень дорогостоящим, поэтому от идеи строительства павильона «для всех» (причем сезонного, потому что же совершенно очевидно, что зимой топчан и ванна на рельсах не актуальны) довольно быстро отказались, и проект гонконгского архитектора нашел нового заказчика. Впрочем, павильон в качестве места постоянного проживания его не устроил, поэтому его необходимо было переосмыслить с учетом новой функции, и эту работу вполне логично поручили мастерской Тотана Кузембаева, которая с самого начала сопровождала проект. «Сначала мы довольно активно общались по этому поводу с Гари, но постепенно стало ясно, что адаптация под наш климат и постоянное проживание предстоит слишком кардинальная, и мы занялись проектом самостоятельно», – вспоминает архитектор.
Дом-матрёшка («Экспресс»). Фотография © Илья Иванов
Дом-матрёшка («Экспресс»). Фотография © Илья Иванов

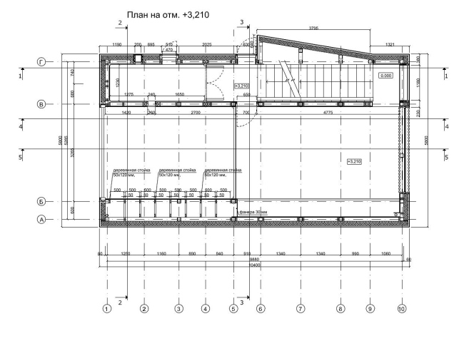
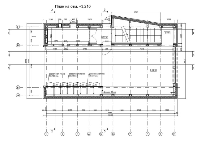
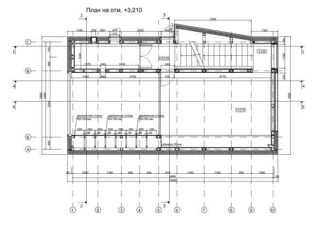
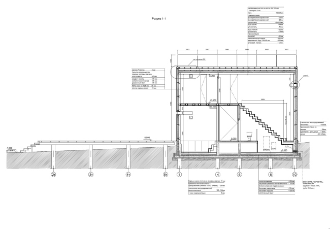
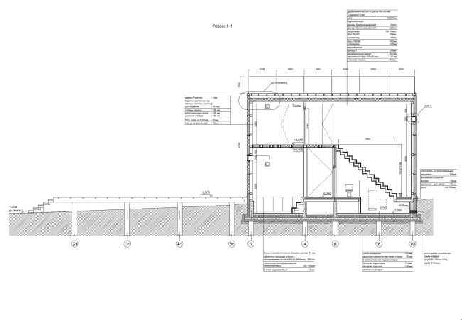
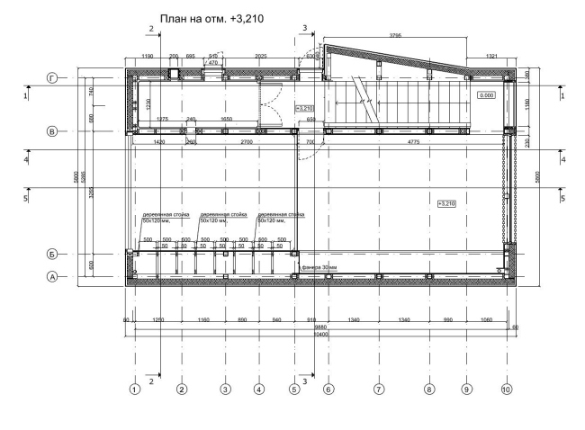
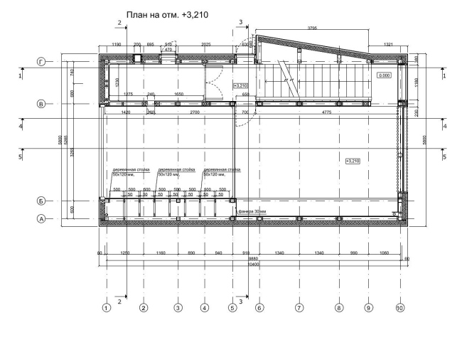
Начиная работу над переделкой «Экспресса», Кузембаев старался максимально сохранить положенный в основу этого проекта принцип универсальной трансформируемости – если не внешних стен, то хотя бы внутренних пространств. Была сохранена и общая композиция – дом, в плане представляющий собой лаконичный прямоугольник, дополнен очень большой террасой прямоугольной же формы. В первоначальном проекте именно на эту «палубу» по рельсам выезжали предметы мебели, и Кузембаев сначала отказался только от самих направляющих – на террасе был запроектирован открытый бассейн, а с юга она была оборудована мобильным ограждением. Еще более вариативными были задуманы внутренние помещения дома. Так, в полуподвал можно было бы попасть, сдвинув панели пола первого этажа, а двусветное пространство гостиной трансформировалось при помощи мобильной панели, которая образовывала второй уровень с дополнительной спальней и с помощью откидной лестницы организовывала доступ к эксплуатируемой кровле.
Дом-матрёшка («Экспресс»). Фотография © Илья Иванов
Дом-матрёшка («Экспресс»). Фотография © Илья Иванов

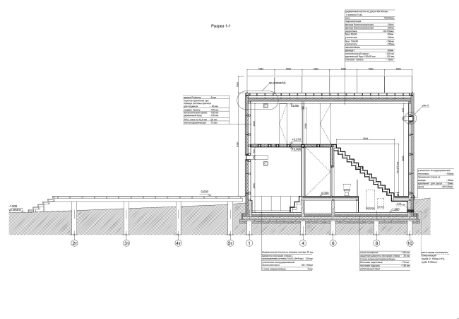
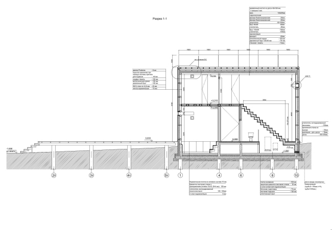
К сожалению, после составления финальной сметы заказчик и эти «полумеры» признал слишком дорогостоящими, так что архитекторы были вынуждены еще раз пересмотреть проект. «Понятно, что удешевить его можно было только одним способом – заменив все трансформируемые элементы на капитальные», – разводит руками Тотан Кузембаев. Так два витража от пола до потолка гостиной, один из которых выходил на восток, а другой на запад, превратились в девять стандартных стеклопакетов, сгруппированных тройками по вертикали,  мобильная панель была заменена на капитальное железобетонное перекрытие, откидная лестница исчезла вовсе, а на ее месте появилась обычная, связавшая первый этаж не только со вторым, но и с плоской эксплуатируемой кровлей. И поскольку новая лестница фактически «пробивает» здание насквозь, вписать ее в изначальные скромные габариты дома было очень непросто – архитекторы нашли компромисс, частично вынеся ее за пределы основного прямоугольного объема. Лаконичная форма «коробки» таким образом была усложнена –  ее южный фасад архитекторы словно надрезали посередине и отогнули часть стены, благодаря чему у дома появился ромбовидный эркер, обращенный на запад, к воде. Причем он врезан в основной объем таким образом, что на уровне первого этажа «выступ» минимален и играет, скорее, декоративную роль, обозначая вход в дом, зато над плоской кровлей теперь возвышается небольшая будка-башенка, идеально подходящая для созерцания просторов Клязьминского водохранилища.
Дом-матрёшка («Экспресс»). Фотография © Илья Иванов
Дом-матрёшка («Экспресс»). Фотография © Илья Иванов

Межэтажное перекрытие, в свою очередь, продлено таким образом, что у второго этажа возникает полноценный балкон. Он опирается на квадратные колонны, причем архитекторы подводят не две, а целых четыре опоры, и на террасе возникает глубокая ниша – визуально то самое «депо», из которого в самом первом проекте на улицу выезжала трансформируемая мебель. Кстати, под этим навесом хранится именно мебель – диваны и кресла. Рельс, конечно, уже нет, да и сами они не складываются, но вот быстро распределить их по «палубе» никто не мешает.
Дом-матрёшка («Экспресс»). Фотография © Илья Иванов
Дом-матрёшка («Экспресс»). Фотография © Илья Иванов

Ограждения балкона, как и ограждения эксплуатируемой кровли, выполнены из прозрачного стекла и тонких металлических тросов, фактических делающих эти конструкции невидимыми – со стороны воды дом, обшитый деревянными панелями, таки напоминает несколько поставленных друг на друга коробок. Как будто конструкция, придуманная Гари Чангом, застыла в частично разобранном виде – пусть от всех технических ухищрений в итоге пришлось отказаться, но визуально Тотан Кузембаев даже в архитектуре капитального сооружения смог воплотить идею трансформера.
Дом-матрёшка («Экспресс»). Фотография © Илья Иванов
Дом-матрёшка («Экспресс»). Фотография © Илья Иванов
Дом-матрёшка («Экспресс»). Фотография © Илья Иванов
Дом-матрёшка («Экспресс»). Фотография © Илья Иванов
Дом-матрёшка («Экспресс»). Фотография © Илья Иванов
Дом-матрёшка («Экспресс»). Фотография © Илья Иванов
Дом-матрёшка («Экспресс»). Фотография © Илья Иванов
Дом-матрёшка («Экспресс»). Фотография © Илья Иванов
Дом-матрёшка («Экспресс»). Фотография © Илья Иванов
Дом-матрёшка («Экспресс»). Фотография © Илья Иванов
Дом-матрёшка («Экспресс»). Фотография © Илья Иванов
Дом-матрёшка («Экспресс»). Фотография © Илья Иванов
Дом-матрёшка («Экспресс») © Гари Чанг/ Архитектурная мастерская Тотана Кузембаева
Дом-матрёшка («Экспресс») © Гари Чанг/ Архитектурная мастерская Тотана Кузембаева