Размещено на портале Архи.ру (www.archi.ru)

22.01.2013

Солнечная реконструкция

Объект:
Отель Castell dels Hams – крытый бассейн, спа-центр и фитнес-центр
Адрес:
Испания,
Мастерская:
A2arquitectos
VELUX (Велюкс)

Испанское бюро A2arquitectos, используя естественное освещение и обычные зенитные окна, превратило бассейн отеля на Майорке в его главную достопримечательность.

Отель Castell dels Hams.  Фото Laura Torres Roa, Antonio Benito Amengual
Отель Castell dels Hams. Фото Laura Torres Roa, Antonio Benito Amengual
Небольшая гостиница Castell del Hams была построена в 1967 году. За прошедшие с тех пор годы владельцы не раз перестраивали ее, но самой удачной оказалась последняя переделка, которая  превратила отель в нечто большее, чем обычный приют для туристов.

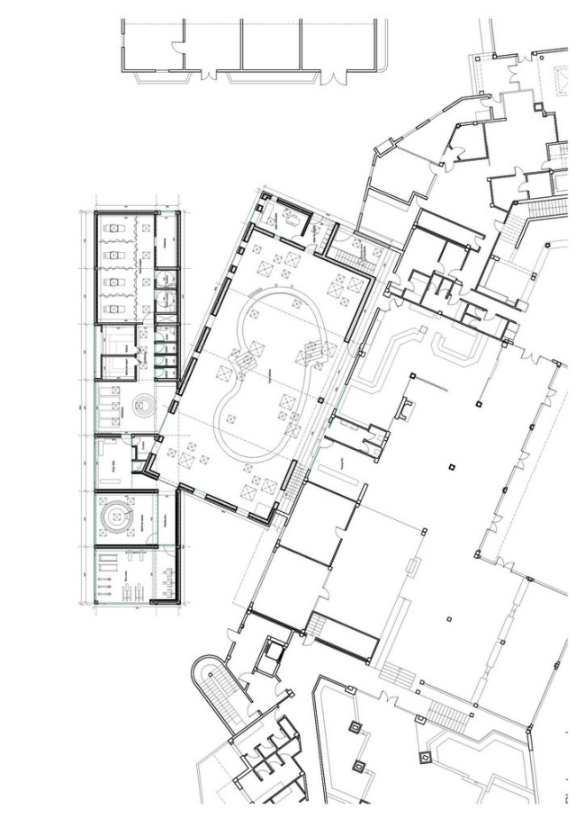
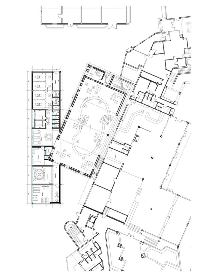
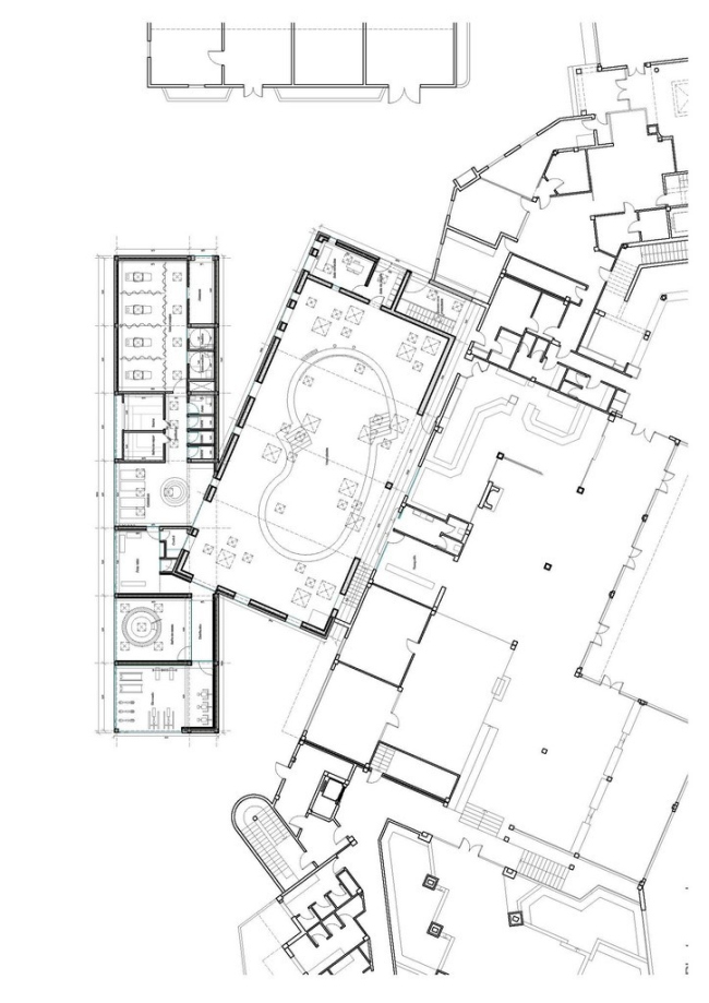
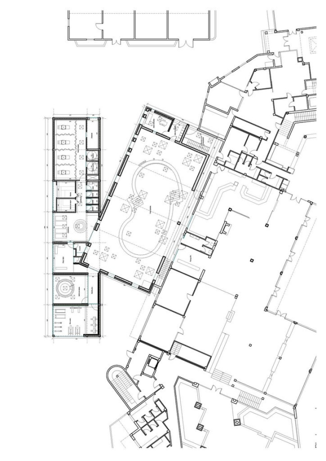
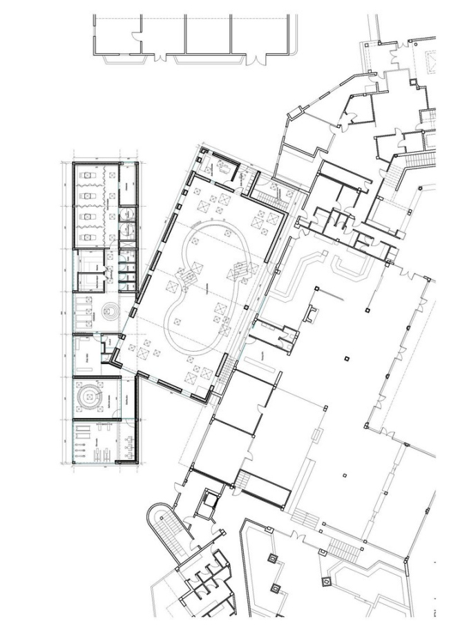
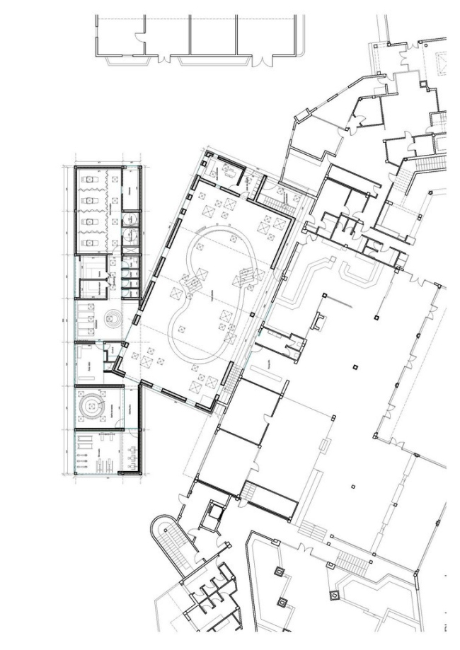
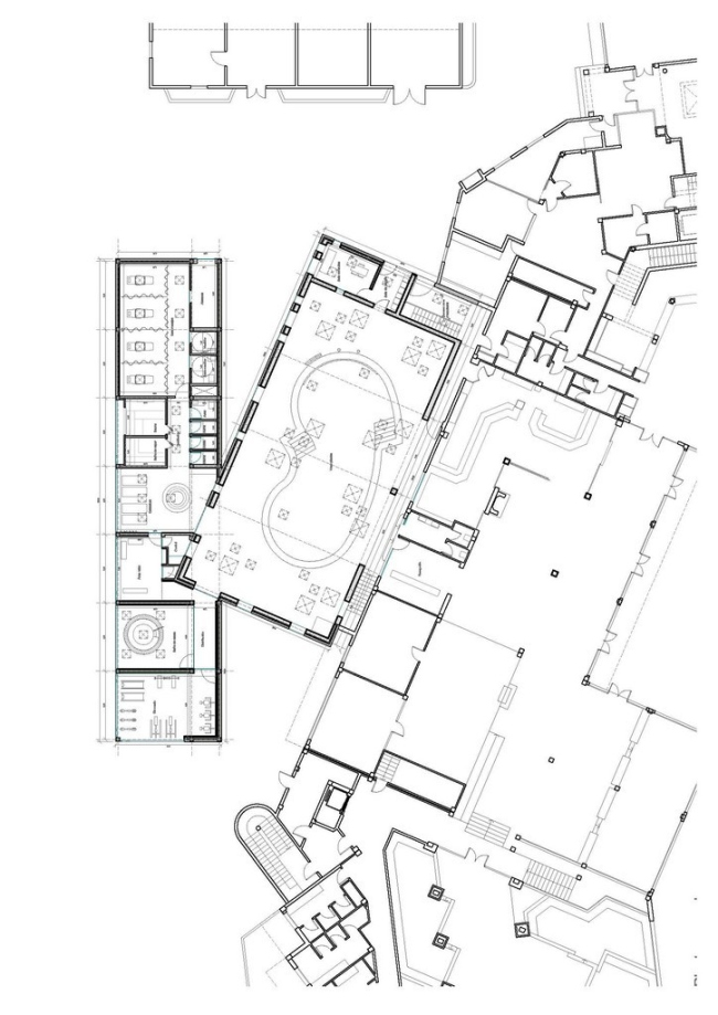
Необходимо было капитально переделать крытый бассейн с подогревом, соорудить прилегающий к нему корпус для спа-процедур, и при этом найти такой архитектурный образ, который сделал отель интереснее и привлекательнее для отдыхающих.

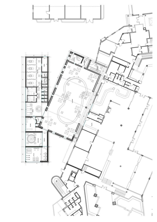
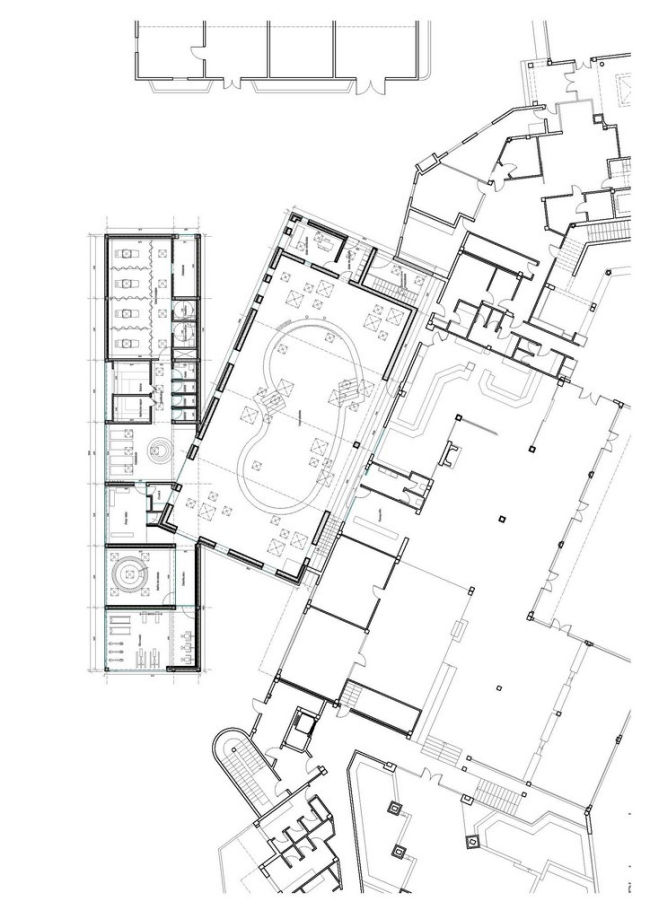
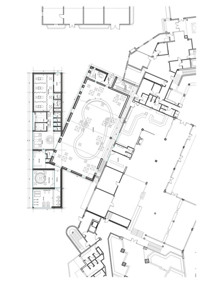
Блок бассейна врезан под острым углом в параллелепипед спа-центра. Для того, чтобы впустить внутрь как можно больше света теплого средиземноморского солнца, архитекторы покрыли и стены и плоские кровли зданий квадратными оконными проемами разного размера, расположив их нарочито-ассиметрично. Потоки света льются внутрь, отражаясь от поверхности воды бассейна, играя бликами на стенах, создавая у посетителей ощущение гармонии и полной отрешенности от забот.
Отель Castell dels Hams.  Фото Laura Torres Roa, Antonio Benito Amengual
Отель Castell dels Hams. Фото Laura Torres Roa, Antonio Benito Amengual

Отель Castell dels Hams.  Фото Laura Torres Roa, Antonio Benito Amengual
Отель Castell dels Hams. Фото Laura Torres Roa, Antonio Benito Amengual

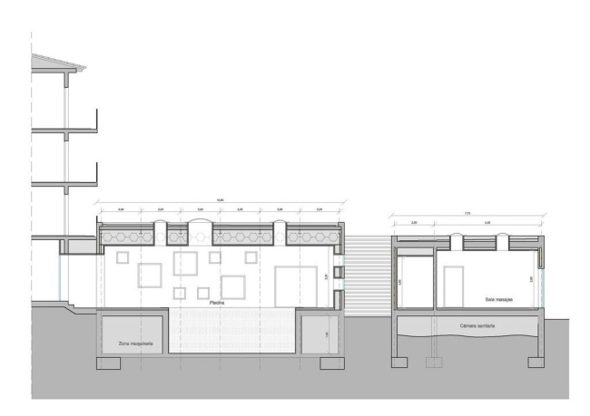
Крыша спа-центра посыпана серым гравием, а крышу бассейна покрывает густой зеленый газон. Разбросанные в художественном беспорядке окна превращают прямоугольные поверхности кровель в интересную графическую композицию. На плоской кровле были установлены в общей сложности 34 зенитных окна VELUX с прозрачным куполом моделей CFP (глухое) и 12 окон CVP (открывающиеся). Купол окон  изготовлен из прозрачного акрила, а гидроизоляция  окладов  надежно защищает кровлю от протечек.

В проекте использовалась электрическая версия окон: Integra-CVP. Это значит, что окна оснащены электроприводом для вентиляции (открывание до 9 см) и датчиком дождя для автоматического закрывания в случае непогоды. Один пульт дистанционного управления позволяет программировать и регулировать открывание нескольких окон. Регулярное проветривание рано утром, закрывание в полуденный зной – все это настраивается и затем работает полностью автоматически. Для контроля освещенности внутри конструкции окна устанавливается штора-плиссе, движением которой можно управлять с помощью одной кнопки на пульте.

Обилие разноформатных окон создает в интерьере постоянную смену отсветов на стенах, поверхности воды, потолке. Игра бликов – «солнечных зайчиков» – придает пространству динамику и благотворно влияет на настроение посетителей.
Отель Castell dels Hams.  Фото Laura Torres Roa, Antonio Benito Amengual
Отель Castell dels Hams. Фото Laura Torres Roa, Antonio Benito Amengual

Отель Castell dels Hams.  Фото Laura Torres Roa, Antonio Benito Amengual
Отель Castell dels Hams. Фото Laura Torres Roa, Antonio Benito Amengual

Отель Castell dels Hams.  Фото Laura Torres Roa, Antonio Benito Amengual
Отель Castell dels Hams. Фото Laura Torres Roa, Antonio Benito Amengual

Небольшой спа-корпус предназначен для косметических процедур и релаксации. Созданию расслабляющей атмосферы способствуют великолепные виды на окрестности, которые открываются через панорамные окна первого этажа. Природа проникает в интерьер, а использование в отделке натурального дерева еще больше подчеркивает связь архитектуры с ландшафтом. Во влажных зонах, где дерево использовать нежелательно, применяется керамическая плитка натуральных оттенков и текстуры.
Отель Castell dels Hams.  Фото Laura Torres Roa, Antonio Benito Amengual
Отель Castell dels Hams. Фото Laura Torres Roa, Antonio Benito Amengual
Отель Castell dels Hams.  Фото Laura Torres Roa, Antonio Benito Amengual
Отель Castell dels Hams. Фото Laura Torres Roa, Antonio Benito Amengual

Кровля спа-центра тоже прорезана зенитными окнами Velux. Причем их расположение рассчитано с ювелирной точностью – по центру и с четырех сторон круглой чаши с гидромассажем, над каждым массажным столом и в коридоре. Направленное сверху естественное освещение улучшает психологический микроклимат в лечебных помещениях и помогает в проведению оздоровительных процедур.

Вот так сочетание лаконичного архитектурного языка – простых форм, прямых линий, сдержанного цветового решения – и «живого» солнечного света дало полноценный эстетический (и экономический) эффект.
Отель Castell dels Hams.  Фото Laura Torres Roa, Antonio Benito Amengual
Отель Castell dels Hams. Фото Laura Torres Roa, Antonio Benito Amengual
Отель Castell dels Hams.  Фото Laura Torres Roa, Antonio Benito Amengual
Отель Castell dels Hams. Фото Laura Torres Roa, Antonio Benito Amengual
Отель Castell dels Hams © A2arquitectos
Отель Castell dels Hams © A2arquitectos
Отель Castell dels Hams © A2arquitectos
Отель Castell dels Hams © A2arquitectos
Отель Castell dels Hams © A2arquitectos
Отель Castell dels Hams © A2arquitectos
Отель Castell dels Hams.  Фото Laura Torres Roa, Antonio Benito Amengual
Отель Castell dels Hams. Фото Laura Torres Roa, Antonio Benito Amengual