Размещено на портале Архи.ру (www.archi.ru)

27.11.2012

Башни и прерии

Объект:
Центр искусств Ривы и Дэвида Логанов
Адрес:
США, None, Чикаго.
Мастерская:
TWBTA – Tod Williams Billie Tsien Architects

Бюро Tod Williams Billie Tsien Architects построило Центр искусств Ривы и Дэвида Логанов — учебный корпус Чикагского университета.

Центр искусств Ривы и Дэвида Логанов. Фото: Tom Rossiter © The University of Chicago
Центр искусств Ривы и Дэвида Логанов. Фото: Tom Rossiter © The University of Chicago
Источником вдохновения для архитекторов послужили прерии Среднего Запада США, где расположен Чикаго, и знаменитые небоскребы этого мегаполиса, поэтому здание состоит из двух частей: вытянутой по горизонтали «базы» и 52-метровой башни.
Центр искусств Ривы и Дэвида Логанов. Фото: Tom Rossiter © The University of Chicago
Центр искусств Ривы и Дэвида Логанов. Фото: Tom Rossiter © The University of Chicago

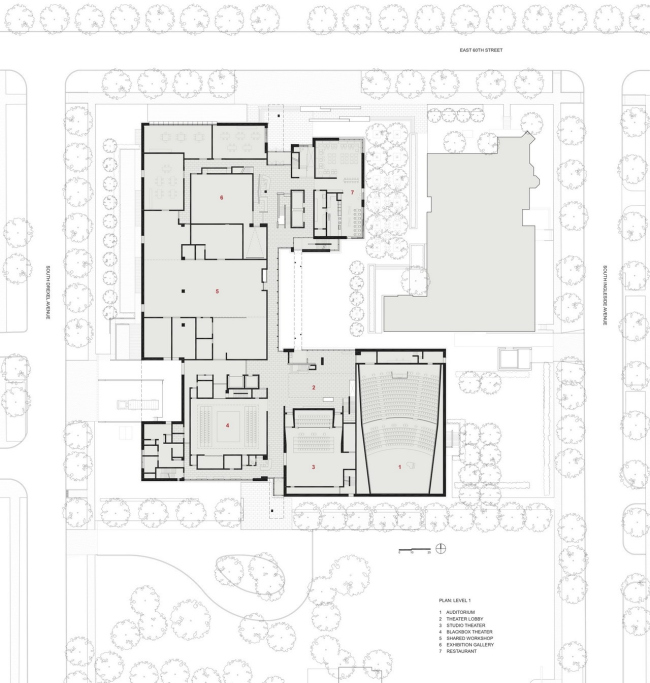
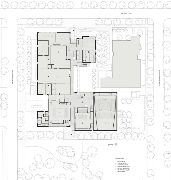
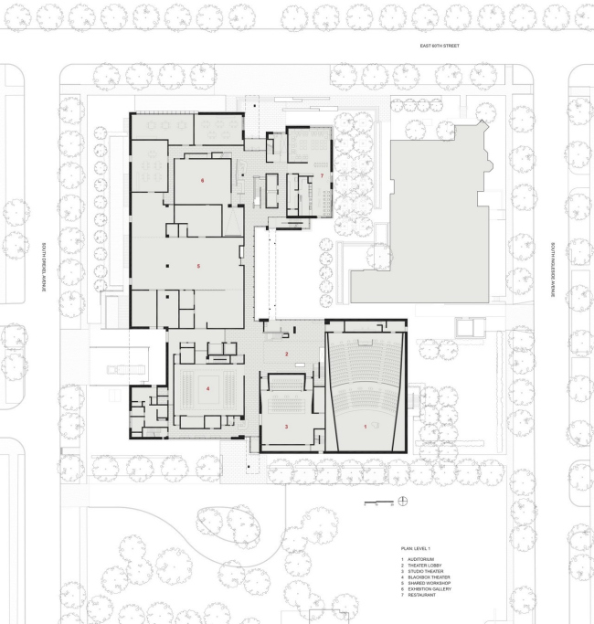
Центр искусств вмещает в себя учебные помещения факультетов кино, исследований медиа, писательского мастерства, музыки, театра, визуальных искусств. В башне расположены пентхаус с зрительным залом, кинозал, терраса на крыше, семинарские аудитории, репетиционные помещения и лаборатории. Они соединены между собой эффектными лестницами и просторными лифтами, а стены украшены сделанными на заказ для Центра Логанов плиткой и тканью.
Центр искусств Ривы и Дэвида Логанов. Фото: Tom Rossiter © The University of Chicago
Центр искусств Ривы и Дэвида Логанов. Фото: Tom Rossiter © The University of Chicago

В «базе» находятся мастерские, классы для занятий музыкой, центр цифровых медиа, лаборатории, кафе, два театральных зала и главный зал на 474 зрителя.
Центр искусств Ривы и Дэвида Логанов. Фото: Tom Rossiter © The University of Chicago
Центр искусств Ривы и Дэвида Логанов. Фото: Tom Rossiter © The University of Chicago

Широкое использование естественного освещения, фотогальванические элементы и озеленение на крышах, а также использование местных строительных материалов (включая камень фасадов) позволило проекту претендовать на «серебряный» сертификат ресурсоэффективности LEED.

Н. Ф.
Центр искусств Ривы и Дэвида Логанов © Jason Smith
Центр искусств Ривы и Дэвида Логанов © Jason Smith
Центр искусств Ривы и Дэвида Логанов. Фото: Tom Rossiter © The University of Chicago
Центр искусств Ривы и Дэвида Логанов. Фото: Tom Rossiter © The University of Chicago
Центр искусств Ривы и Дэвида Логанов. Фото: Tom Rossiter © The University of Chicago
Центр искусств Ривы и Дэвида Логанов. Фото: Tom Rossiter © The University of Chicago
Центр искусств Ривы и Дэвида Логанов. Фото: Tom Rossiter © The University of Chicago
Центр искусств Ривы и Дэвида Логанов. Фото: Tom Rossiter © The University of Chicago
Центр искусств Ривы и Дэвида Логанов. Фото: Tom Rossiter © The University of Chicago
Центр искусств Ривы и Дэвида Логанов. Фото: Tom Rossiter © The University of Chicago
Центр искусств Ривы и Дэвида Логанов. Фото: Tom Rossiter © The University of Chicago
Центр искусств Ривы и Дэвида Логанов. Фото: Tom Rossiter © The University of Chicago
Центр искусств Ривы и Дэвида Логанов. Фото: Tom Rossiter © The University of Chicago
Центр искусств Ривы и Дэвида Логанов. Фото: Tom Rossiter © The University of Chicago
Центр искусств Ривы и Дэвида Логанов. Фото: Tom Rossiter © The University of Chicago
Центр искусств Ривы и Дэвида Логанов. Фото: Tom Rossiter © The University of Chicago
Центр искусств Ривы и Дэвида Логанов. Фото: Tom Rossiter © The University of Chicago
Центр искусств Ривы и Дэвида Логанов. Фото: Tom Rossiter © The University of Chicago
Центр искусств Ривы и Дэвида Логанов. Фото: Tom Rossiter © The University of Chicago
Центр искусств Ривы и Дэвида Логанов. Фото: Tom Rossiter © The University of Chicago
Центр искусств Ривы и Дэвида Логанов. Фото: Tom Rossiter © The University of Chicago
Центр искусств Ривы и Дэвида Логанов. Фото: Tom Rossiter © The University of Chicago
Центр искусств Ривы и Дэвида Логанов. Фото: Tom Rossiter © The University of Chicago
Центр искусств Ривы и Дэвида Логанов. Фото: Tom Rossiter © The University of Chicago
Центр искусств Ривы и Дэвида Логанов. Фото: Tom Rossiter © The University of Chicago
Центр искусств Ривы и Дэвида Логанов. Фото: Tom Rossiter © The University of Chicago
Центр искусств Ривы и Дэвида Логанов. Фото: Tom Rossiter © The University of Chicago
Центр искусств Ривы и Дэвида Логанов. Фото: Tom Rossiter © The University of Chicago
Центр искусств Ривы и Дэвида Логанов. Фото: Tom Rossiter © The University of Chicago
Центр искусств Ривы и Дэвида Логанов. Фото: Tom Rossiter © The University of Chicago
Центр искусств Ривы и Дэвида Логанов. Фото: Tom Rossiter © The University of Chicago
Центр искусств Ривы и Дэвида Логанов. Фото: Tom Rossiter © The University of Chicago
Центр искусств Ривы и Дэвида Логанов. Фото: Tom Rossiter © The University of Chicago
Центр искусств Ривы и Дэвида Логанов. Фото: Tom Rossiter © The University of Chicago
Центр искусств Ривы и Дэвида Логанов. Фото: Tom Rossiter © The University of Chicago
Центр искусств Ривы и Дэвида Логанов. Фото: Tom Rossiter © The University of Chicago
Центр искусств Ривы и Дэвида Логанов. Фото: Tom Rossiter © The University of Chicago
Центр искусств Ривы и Дэвида Логанов. Фото: Tom Rossiter © The University of Chicago
Центр искусств Ривы и Дэвида Логанов. Фото: Tom Rossiter © The University of Chicago
Центр искусств Ривы и Дэвида Логанов. Фото: Tom Rossiter © The University of Chicago
Центр искусств Ривы и Дэвида Логанов. Фото: Tom Rossiter © The University of Chicago
Центр искусств Ривы и Дэвида Логанов. Фото: Tom Rossiter © The University of Chicago
Центр искусств Ривы и Дэвида Логанов. Фото: Tom Rossiter © The University of Chicago
Центр искусств Ривы и Дэвида Логанов. Фото: Tom Rossiter © The University of Chicago
Центр искусств Ривы и Дэвида Логанов. Фото: Tom Rossiter © The University of Chicago
Центр искусств Ривы и Дэвида Логанов. Фото: Tom Rossiter © The University of Chicago
Центр искусств Ривы и Дэвида Логанов. Фото: Tom Rossiter © The University of Chicago
Центр искусств Ривы и Дэвида Логанов. Фото: Tom Rossiter © The University of Chicago
Центр искусств Ривы и Дэвида Логанов. Фото: Tom Rossiter © The University of Chicago
Центр искусств Ривы и Дэвида Логанов. Фото: Tom Rossiter © The University of Chicago
Центр искусств Ривы и Дэвида Логанов. Фото: Tom Rossiter © The University of Chicago
Центр искусств Ривы и Дэвида Логанов. Фото: Tom Rossiter © The University of Chicago
Центр искусств Ривы и Дэвида Логанов. Фото: Tom Rossiter © The University of Chicago
Центр искусств Ривы и Дэвида Логанов. Фото: Tom Rossiter © The University of Chicago
Центр искусств Ривы и Дэвида Логанов. Фото: Tom Rossiter © The University of Chicago
Центр искусств Ривы и Дэвида Логанов. Фото: Tom Rossiter © The University of Chicago
Центр искусств Ривы и Дэвида Логанов. Фото: Tom Rossiter © The University of Chicago
Центр искусств Ривы и Дэвида Логанов. Фото: Tom Rossiter © The University of Chicago
Центр искусств Ривы и Дэвида Логанов. Фото: Tom Rossiter © The University of Chicago
Центр искусств Ривы и Дэвида Логанов. Фото: Tom Rossiter © The University of Chicago
Центр искусств Ривы и Дэвида Логанов. Tod Williams Billie Tsien © The University of Chicago
Центр искусств Ривы и Дэвида Логанов. Tod Williams Billie Tsien © The University of Chicago
Центр искусств Ривы и Дэвида Логанов. Tod Williams Billie Tsien © The University of Chicago
Центр искусств Ривы и Дэвида Логанов. Tod Williams Billie Tsien © The University of Chicago
Центр искусств Ривы и Дэвида Логанов. Tod Williams Billie Tsien © The University of Chicago
Центр искусств Ривы и Дэвида Логанов. Tod Williams Billie Tsien © The University of Chicago
Центр искусств Ривы и Дэвида Логанов. Tod Williams Billie Tsien © The University of Chicago
Центр искусств Ривы и Дэвида Логанов. Tod Williams Billie Tsien © The University of Chicago
Центр искусств Ривы и Дэвида Логанов. Tod Williams Billie Tsien © The University of Chicago
Центр искусств Ривы и Дэвида Логанов. Tod Williams Billie Tsien © The University of Chicago
Центр искусств Ривы и Дэвида Логанов. Tod Williams Billie Tsien © The University of Chicago
Центр искусств Ривы и Дэвида Логанов. Tod Williams Billie Tsien © The University of Chicago
Центр искусств Ривы и Дэвида Логанов. Tod Williams Billie Tsien © The University of Chicago
Центр искусств Ривы и Дэвида Логанов. Tod Williams Billie Tsien © The University of Chicago