Размещено на портале Архи.ру (www.archi.ru)

13.11.2012

Три в одном

Объект:
Центр искусств Дадун
Адрес:
Тайвань, None, Гаосюн.
Мастерская:
de Architekten Cie.

Завершено строительство современного культурного центра в городе Гаосюн на Тайване. Авторами проекта выступили бюро de Architekten Cie. и MAYU architects+.

Центр искусств Дадун © Yu-lin Chen
Центр искусств Дадун © Yu-lin Chen
Возведение Центра искусств Дадун всего в трех остановках метро от Центра исполнительских искусств Вэйуин, строящегося сейчас по проекту бюро Mecanoo, стало продолжением амбициозных планов городских властей по формированию полноценного художественного кластера.
Центр искусств Дадун © Yu-lin Chen
Центр искусств Дадун © Yu-lin Chen

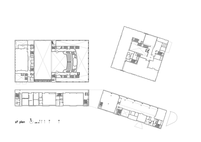
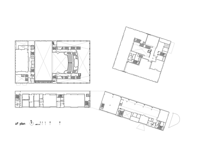
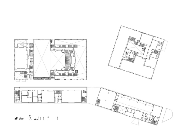
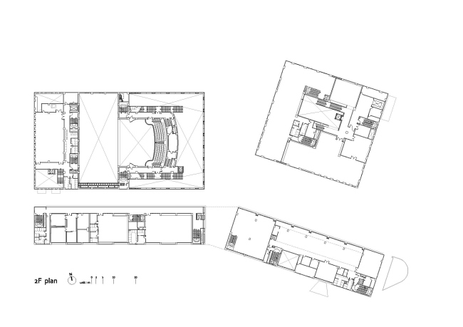
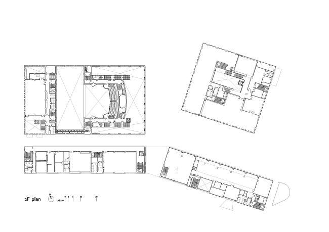
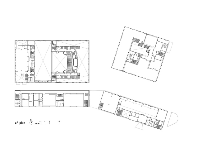
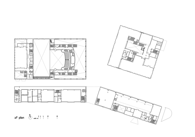
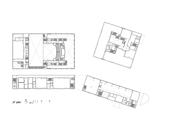
Совместный проект голландского бюро de Architekten Cie. и тайваньского MAYU architects+ представляет собой комплекс из трех самостоятельных объемов: театра, выставочного зала и образовательного центра с библиотекой. Общая площадь центра искусств — 24 470 м2.
Центр искусств Дадун © Guei-Shiang Ke
Центр искусств Дадун © Guei-Shiang Ke

Пространство между тремя объектами перекрыто особой мембранной «крышей». Таким образом, архитекторы создали привлекательную общественную зону, ведь у местных жителей популярны танцы, занятия тай-цзи и различные игры под открытым небом.
Центр искусств Дадун © Yu-lin Chen
Центр искусств Дадун © Yu-lin Chen

Эта крыша устроена так, чтобы максимально оградить посетителей центра от капризов местной погоды. Огромные отверстия в ней способствуют естественной вентиляции, а также направляют и собирают воду, так что ни сильнейшая жара, ни ураганный ветер, ни тропический ливень не нарушат ничьих планов.
Центр искусств Дадун © Yu-lin Chen
Центр искусств Дадун © Yu-lin Chen

Но главным в программе Центра искусств Дадун является все-таки театр на 800 мест с небольшим репетиционным залом. Его внутренняя часть выполнена из дерева и перфорированного металла. За ламелями спрятаны выдвижные звукопоглощающие панели, что позволяет подстраивать акустику зала в зависимости от специфики мероприятия. Три из четырех фасадов театра оказываются «внутренними» и выполнены из X-образных бетонных конструкций со стеклянными вставками. Внешний же фасад продолжает эту тему, но выглядит более «тяжелым».

Л. М.
Центр искусств Дадун © Yu-lin Chen
Центр искусств Дадун © Yu-lin Chen
Центр искусств Дадун © Guei-Shiang Ke
Центр искусств Дадун © Guei-Shiang Ke
Центр искусств Дадун © Guei-Shiang Ke
Центр искусств Дадун © Guei-Shiang Ke
Центр искусств Дадун © Guei-Shiang Ke
Центр искусств Дадун © Guei-Shiang Ke
Центр искусств Дадун © Guei-Shiang Ke
Центр искусств Дадун © Guei-Shiang Ke
Центр искусств Дадун © Guei-Shiang Ke
Центр искусств Дадун © Guei-Shiang Ke
Центр искусств Дадун © Yu-lin Chen
Центр искусств Дадун © Yu-lin Chen
Центр искусств Дадун © Yu-lin Chen
Центр искусств Дадун © Yu-lin Chen
Центр искусств Дадун © Yu-lin Chen
Центр искусств Дадун © Yu-lin Chen
Центр искусств Дадун © Yu-lin Chen
Центр искусств Дадун © Yu-lin Chen
Центр искусств Дадун © Yu-lin Chen
Центр искусств Дадун © Yu-lin Chen
Центр искусств Дадун © Yu-lin Chen
Центр искусств Дадун © Yu-lin Chen
Центр искусств Дадун © Yu-lin Chen
Центр искусств Дадун © Yu-lin Chen
Центр искусств Дадун © Guei-Shiang Ke
Центр искусств Дадун © Guei-Shiang Ke
Центр искусств Дадун © Guei-Shiang Ke
Центр искусств Дадун © Guei-Shiang Ke
Центр искусств Дадун © Guei-Shiang Ke
Центр искусств Дадун © Guei-Shiang Ke
Центр искусств Дадун © Guei-Shiang Ke
Центр искусств Дадун © Guei-Shiang Ke
Центр искусств Дадун © Guei-Shiang Ke
Центр искусств Дадун © Guei-Shiang Ke
Центр искусств Дадун © Guei-Shiang Ke
Центр искусств Дадун © Guei-Shiang Ke
Центр искусств Дадун © Guei-Shiang Ke
Центр искусств Дадун © Guei-Shiang Ke
Центр искусств Дадун © de Architekten Cie + MAYU architects
Центр искусств Дадун © de Architekten Cie + MAYU architects
Центр искусств Дадун © de Architekten Cie + MAYU architects
Центр искусств Дадун © de Architekten Cie + MAYU architects
Центр искусств Дадун © de Architekten Cie + MAYU architects
Центр искусств Дадун © de Architekten Cie + MAYU architects
Центр искусств Дадун © de Architekten Cie + MAYU architects
Центр искусств Дадун © de Architekten Cie + MAYU architects
Центр искусств Дадун © de Architekten Cie + MAYU architects
Центр искусств Дадун © de Architekten Cie + MAYU architects
Центр искусств Дадун © de Architekten Cie + MAYU architects
Центр искусств Дадун © de Architekten Cie + MAYU architects