Размещено на портале Архи.ру (www.archi.ru)

12.11.2012

Ткань бетона

Анна Старостина
Объект:
Театр в Сен-Назере
Адрес:
Франция, None, Сен-Назер.
Мастерская:
K architectures

Архитекторы Карин Эрман и Жером Сигвальт вдохнули новую жизнь в район заброшенного вокзала в Сен-Назере.

В XIX веке именно на этот железнодорожный вокзал города Сен-Назер в устье Луары прибывали из Парижа пассажиры трансатлантических рейсов. Но во время Второй мировой войны этот район сильно пострадал от бомбежек и постепенно превратился в унылую индустриальную зону.

Театр в Сен-Назере © Luc Boegly
Театр в Сен-Назере © Luc Boegly

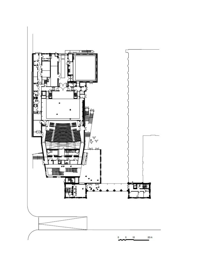
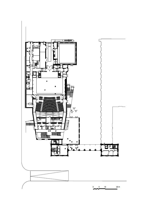
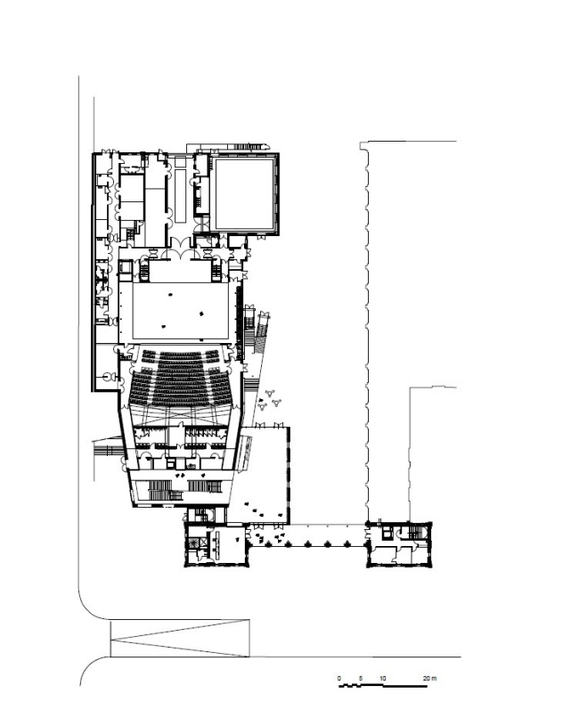
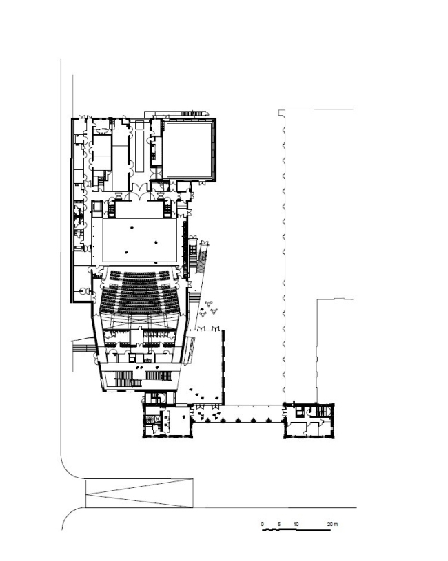
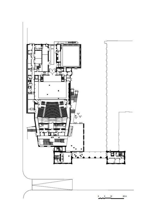
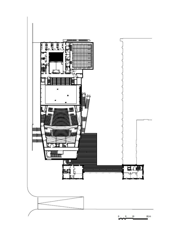
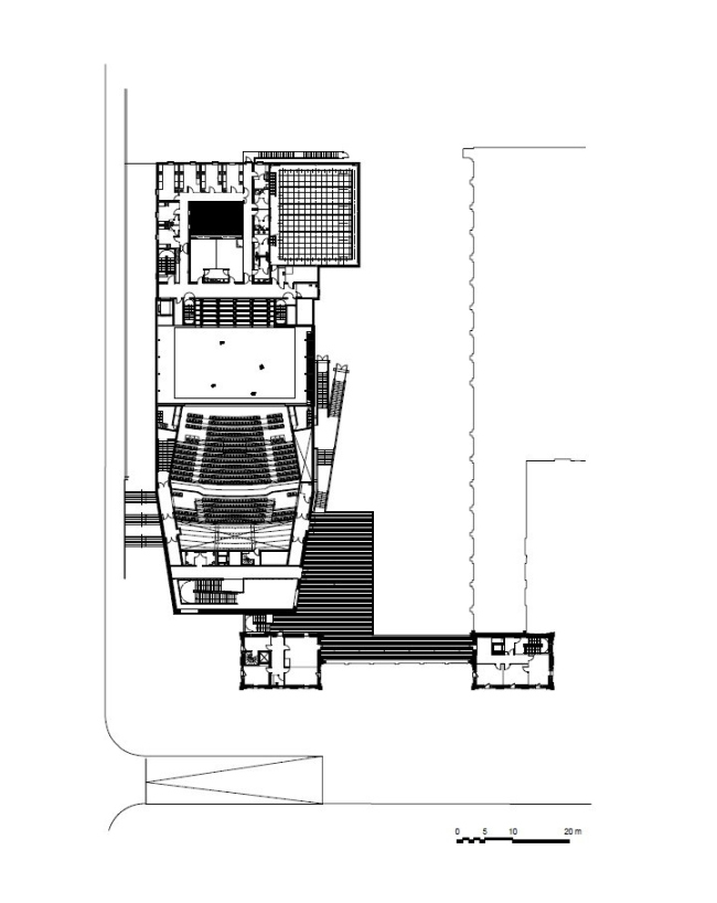
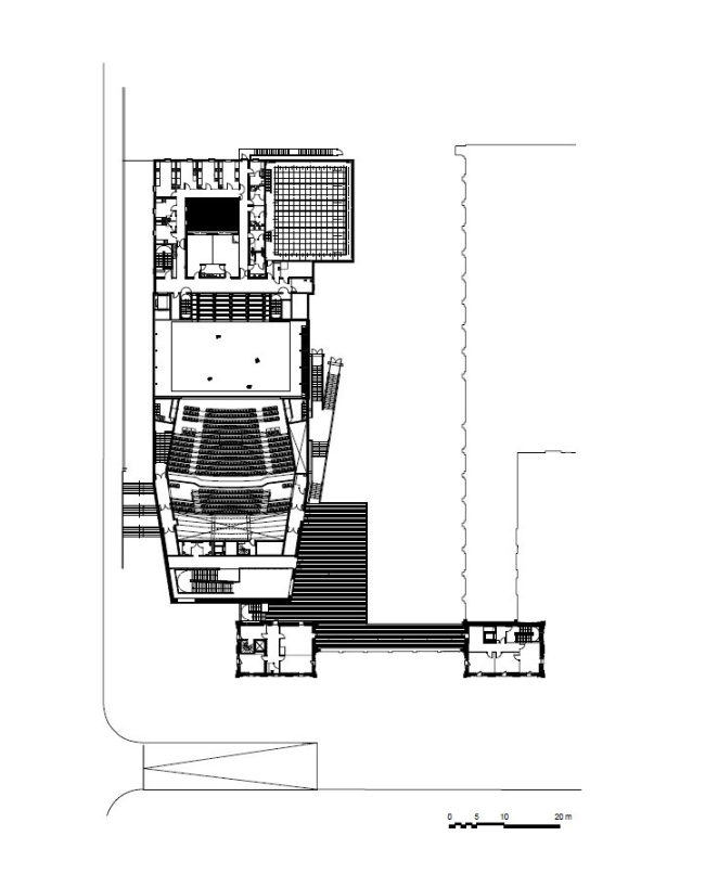
Новый современный театр стал частью масштабных планов по реконструкции всей этой территории. Карин Эрман и Жером Сигвальт из K architectures отреставрировали два входных павильона 1860-х годов, соединенных аркадой – единственное, что сохранилось от здания вокзала. В них поместили административные помещения и билетные кассы.
Театр в Сен-Назере © Luc Boegly
Театр в Сен-Назере © Luc Boegly

За левым, восточным павильоном возвышается объем собственно театра. Интересно, что с некоторых точек он практически незаметен и не нарушает целостного восприятия исторической архитектуры. В качестве основного материала выбрали большие блоки светлого, почти белого бетона. Этот материал как нельзя лучше соответствует окружающей застройке. Часть из этих блоков, монолитных, отливались прямо на месте. На поверхность других, сделанных на заказ на заводе, нанесен углубленный цветочный рисунок, скопированный с французских тканей XVII века. Причем в некоторых местах он прорезает бетон насквозь, так что поверхность становится буквально «кружевной». Тема продолжена в оформлении фойе – через перфорированные ограждения лестниц из золотистого металла.
Театр в Сен-Назере © Patrick Miara
Театр в Сен-Назере © Patrick Miara

Решение фасадов повторено и на внутренних стенах зала, вмещающего 900 человек – 550 мест в партере (110 из них устанавливаются дополнительно на месте оркестровой ямы) и 350 на балконе. Резные белые стены эффектно сочетаются с красным бархатом, выбранным архитекторов для кресел: это одновременно дань традициям и попытка добавить статусности интерьеру.
Театр в Сен-Назере © Patrick Miara
Театр в Сен-Назере © Patrick Miara

Собственно весь проект и построен на сочетании противоположностей: грубого бетона и тонкой драгоценной резьбы, рубленных поверхностей и изысканных тканей. В результате, здание и его интерьер сами становятся настоящей театральной декорацией.
Театр в Сен-Назере © Luc Boegly
Театр в Сен-Назере © Luc Boegly
Театр в Сен-Назере © Luc Boegly
Театр в Сен-Назере © Luc Boegly
Театр в Сен-Назере © Luc Boegly
Театр в Сен-Назере © Luc Boegly
Театр в Сен-Назере © Luc Boegly
Театр в Сен-Назере © Luc Boegly
Театр в Сен-Назере © Luc Boegly
Театр в Сен-Назере © Luc Boegly
Театр в Сен-Назере © Luc Boegly
Театр в Сен-Назере © Luc Boegly
Театр в Сен-Назере © Luc Boegly
Театр в Сен-Назере © Luc Boegly
Театр в Сен-Назере © Patrick Miara
Театр в Сен-Назере © Patrick Miara
Театр в Сен-Назере © Patrick Miara
Театр в Сен-Назере © Patrick Miara
Театр в Сен-Назере © Patrick Miara
Театр в Сен-Назере © Patrick Miara
Театр в Сен-Назере © Luc Boegly
Театр в Сен-Назере © Luc Boegly
Театр в Сен-Назере © Luc Boegly
Театр в Сен-Назере © Luc Boegly
Театр в Сен-Назере © Luc Boegly
Театр в Сен-Назере © Luc Boegly
Театр в Сен-Назере © Luc Boegly
Театр в Сен-Назере © Luc Boegly
Театр в Сен-Назере © Luc Boegly
Театр в Сен-Назере © Luc Boegly
Театр в Сен-Назере © Luc Boegly
Театр в Сен-Назере © Luc Boegly
Театр в Сен-Назере © Luc Boegly
Театр в Сен-Назере © Luc Boegly
Театр в Сен-Назере © Luc Boegly
Театр в Сен-Назере © Luc Boegly
Театр в Сен-Назере © Luc Boegly
Театр в Сен-Назере © Luc Boegly
Театр в Сен-Назере © Luc Boegly
Театр в Сен-Назере © Luc Boegly
Театр в Сен-Назере © Luc Boegly
Театр в Сен-Назере © Luc Boegly
Театр в Сен-Назере © Luc Boegly
Театр в Сен-Назере © Luc Boegly
Театр в Сен-Назере © Luc Boegly
Театр в Сен-Назере © Luc Boegly
Театр в Сен-Назере © Luc Boegly
Театр в Сен-Назере © Luc Boegly
Театр в Сен-Назере © Patrick Miara
Театр в Сен-Назере © Patrick Miara
Театр в Сен-Назере © Patrick Miara
Театр в Сен-Назере © Patrick Miara
Театр в Сен-Назере © K-architectures
Театр в Сен-Назере © K-architectures
Театр в Сен-Назере © K-architectures
Театр в Сен-Назере © K-architectures
Театр в Сен-Назере © K-architectures
Театр в Сен-Назере © K-architectures
Театр в Сен-Назере © K-architectures
Театр в Сен-Назере © K-architectures
Театр в Сен-Назере © K-architectures
Театр в Сен-Назере © K-architectures
Театр в Сен-Назере © K-architectures
Театр в Сен-Назере © K-architectures
Театр в Сен-Назере © K-architectures
Театр в Сен-Назере © K-architectures
Театр в Сен-Назере © K-architectures
Театр в Сен-Назере © K-architectures