Размещено на портале Архи.ру (www.archi.ru)

06.11.2012

Ажурный абажур

Тарья Нурми
Объект:
Отель Paasitorni
Адрес:
Финляндия, None, Хельсинки.
Мастерская:
K2S
Авторский коллектив:
Партнеры: Kimmo Lintula, Niko Sirola, Mikko Summanen
Авторский коллектив: Juha Sundqvist - project architect; Mikko Näveri, Matias Manninen, Tommi Terästö, Elina Tenho, Tommi Mauno, Teija Tarvo, Jarno Vesa, Outi Pirhonen, Tetsujiro Kyuma, Kristian Forsber

В Хельсинки открылся новый отель Paasitorni, спроектированный бюро K2S.

Отель Paasitorni. Фото © Marko Huttunen. Предоставлено K2S Architects
Отель Paasitorni. Фото © Marko Huttunen. Предоставлено K2S Architects
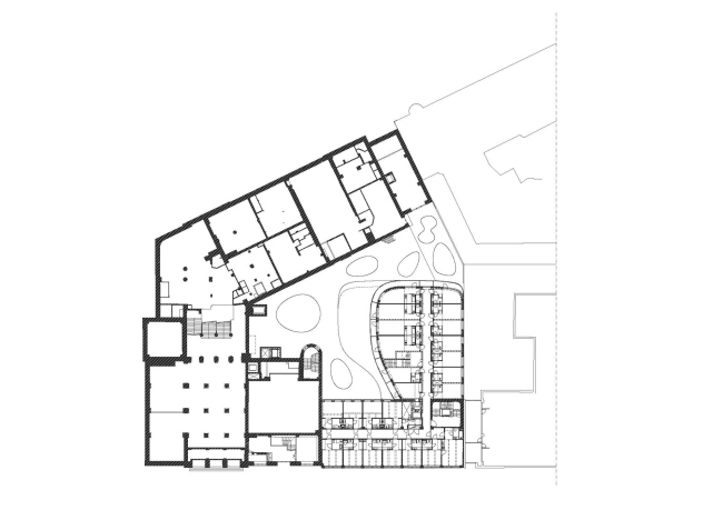
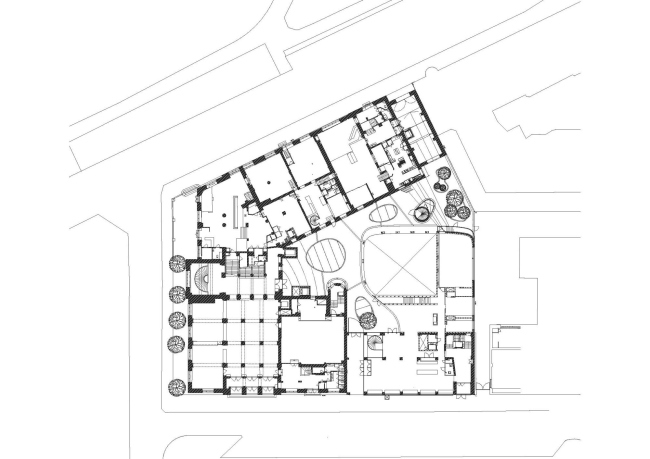
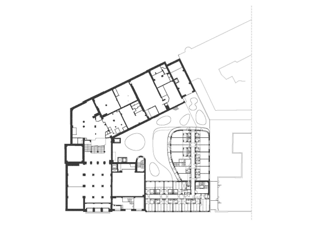
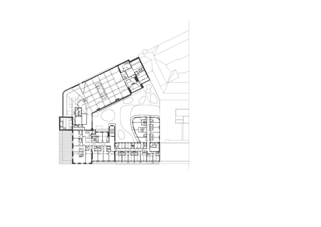
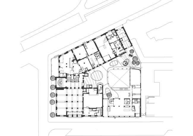
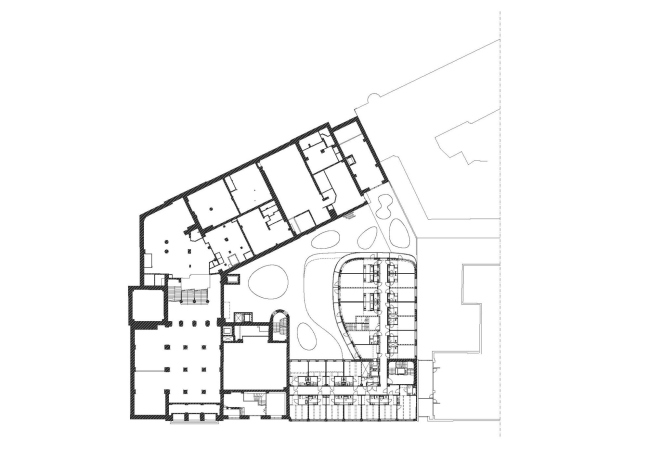
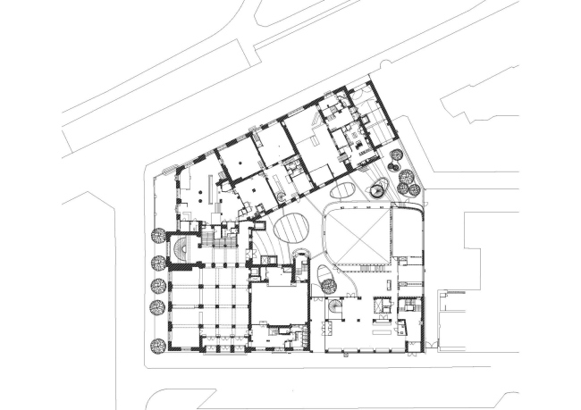
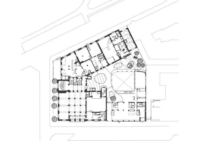
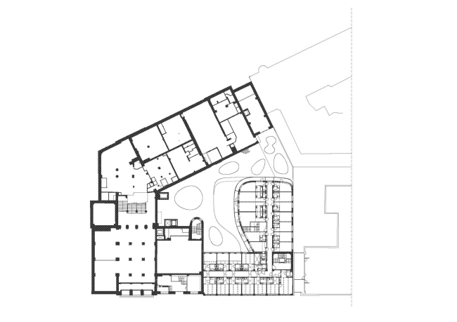
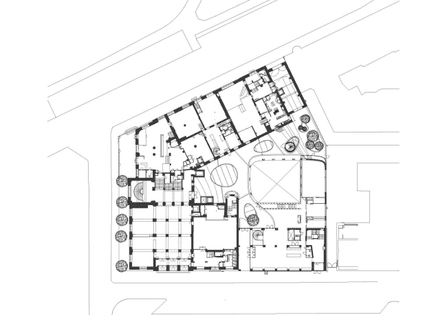
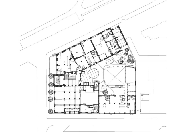
Мост Питкясильта (Длинный мост) в Хельсинки десятилетиями отделял рабочий район от мест обитания состоятельных горожан. Времена изменились, но к северу от моста так и не появилось оригинальных или модных отелей. Поэтому отель Paasitorni — долгожданное новшество. Обновление исторического административного здания в духе северного модерна (1908, архитектор Карл Линдаль) было выполнено очень элегантно, причем фасад этой старой гранитной «крепости» вовсе не претерпел никаких изменений. Новая часть отеля и помещенного ниже уровня земли конференц-центра выходят во двор.
Отель Paasitorni. Фото © Marko Huttunen. Предоставлено K2S Architects
Отель Paasitorni. Фото © Marko Huttunen. Предоставлено K2S Architects

Этот внутренний двор, ранее использовавшийся для хозяйственных нужд, теперь расширен и превращен в ядро гостиничного комплекса. Туда выходят окна в перекрытиях подземного яруса, оформленные как «световые водоемы».
Отель Paasitorni. Фото © Marko Huttunen. Предоставлено K2S Architects
Отель Paasitorni. Фото © Marko Huttunen. Предоставлено K2S Architects

Новый корпус, напоминающий «снежный фонарик» — поставленную внутрь слепленного из снежков «абажура» свечу — выглядит эффектнее всего в сумерках. Его фасад закрыт ажурным экраном из специально созданного для этого проекта кирпича цвета слоновой кости. В каждом отдельном кирпиче с торцов сделаны два овальных отверстия для крепления стального каркаса, поддерживающего эту стену, а его лицевая поверхность расчерчена профилями. Органическая форма новой постройки хорошо сочетается с четкими объемами старых частей комплекса Paasitorni (здания в стиле модерн и здания середины прошлого века).
Отель Paasitorni. Фото © Marko Huttunen. Предоставлено K2S Architects
Отель Paasitorni. Фото © Marko Huttunen. Предоставлено K2S Architects

Пространства новой части конференц-центра выполнены мастерски, и подземное расположение их ничуть не портит. В ней три зала, самый крупный из которых рассчитан на 300 зрителей.
Отель Paasitorni. Фото © Marko Huttunen. Предоставлено K2S Architects
Отель Paasitorni. Фото © Marko Huttunen. Предоставлено K2S Architects

Гости отеля могут выбирать из трех видов номеров (бюро K2S ими не занималось, это работа дизайнеров интерьера из Швеции Stylt Trampoli Ab): маленькие, уютные комнаты, выходящие в парк (корпус 1950-х и соответствующая тема оформления), просторные семейные апартаменты с «цирковой» темой оформления в самом старом здании (1920-е), или «актуальные» номера для путешествующих по делам в современной части (21 век).
Отель Paasitorni. Фото © Marko Huttunen. Предоставлено K2S Architects
Отель Paasitorni. Фото © Marko Huttunen. Предоставлено K2S Architects
Отель Paasitorni. Фото © Marko Huttunen. Предоставлено K2S Architects
Отель Paasitorni. Фото © Marko Huttunen. Предоставлено K2S Architects
Отель Paasitorni. Фото © Marko Huttunen. Предоставлено K2S Architects
Отель Paasitorni. Фото © Marko Huttunen. Предоставлено K2S Architects
Отель Paasitorni. Фото © Marko Huttunen. Предоставлено K2S Architects
Отель Paasitorni. Фото © Marko Huttunen. Предоставлено K2S Architects
Отель Paasitorni. Сауна и панорамная терраса. Фото © Marko Huttunen. Предоставлено K2S Architects
Отель Paasitorni. Сауна и панорамная терраса. Фото © Marko Huttunen. Предоставлено K2S Architects
Отель Paasitorni. Фото © Marko Huttunen. Предоставлено K2S Architects
Отель Paasitorni. Фото © Marko Huttunen. Предоставлено K2S Architects
Отель Paasitorni. Фото © Marko Huttunen. Предоставлено K2S Architects
Отель Paasitorni. Фото © Marko Huttunen. Предоставлено K2S Architects
Отель Paasitorni. Фото © Marko Huttunen. Предоставлено K2S Architects
Отель Paasitorni. Фото © Marko Huttunen. Предоставлено K2S Architects
Отель Paasitorni. Фото © Marko Huttunen. Предоставлено K2S Architects
Отель Paasitorni. Фото © Marko Huttunen. Предоставлено K2S Architects
Отель Paasitorni. Фото © Marko Huttunen. Предоставлено K2S Architects
Отель Paasitorni. Фото © Marko Huttunen. Предоставлено K2S Architects
Отель Paasitorni. Фото © Marko Huttunen. Предоставлено K2S Architects
Отель Paasitorni. Фото © Marko Huttunen. Предоставлено K2S Architects
Отель Paasitorni Фото © Tarja Nurmi
Отель Paasitorni Фото © Tarja Nurmi
Отель Paasitorni Фото © Tarja Nurmi
Отель Paasitorni Фото © Tarja Nurmi
Отель Paasitorni Фото © Tarja Nurmi
Отель Paasitorni Фото © Tarja Nurmi
Отель Paasitorni. Номер в стиле 1920-х годов. Дизайн интерьера Stylt Trampoli Ab. Фото: Scandic Hotels
Отель Paasitorni. Номер в стиле 1920-х годов. Дизайн интерьера Stylt Trampoli Ab. Фото: Scandic Hotels
Отель Paasitorni. Номер в стиле 1920-х годов. Дизайн интерьера Stylt Trampoli Ab. Фото: Scandic Hotels
Отель Paasitorni. Номер в стиле 1920-х годов. Дизайн интерьера Stylt Trampoli Ab. Фото: Scandic Hotels
Отель Paasitorni. Номер в стиле 1920-х годов. Дизайн интерьера Stylt Trampoli Ab. Фото: Scandic Hotels
Отель Paasitorni. Номер в стиле 1920-х годов. Дизайн интерьера Stylt Trampoli Ab. Фото: Scandic Hotels
Отель Paasitorni. Номер в стиле 1950-х годов. Дизайн интерьера Stylt Trampoli Ab. Фото: Scandic Hotels
Отель Paasitorni. Номер в стиле 1950-х годов. Дизайн интерьера Stylt Trampoli Ab. Фото: Scandic Hotels
Отель Paasitorni. Номер в стиле 21 века. Дизайн интерьера Stylt Trampoli Ab. Фото: Scandic Hotels
Отель Paasitorni. Номер в стиле 21 века. Дизайн интерьера Stylt Trampoli Ab. Фото: Scandic Hotels
Отель Paasitorni. Номер в стиле 21 века. Дизайн интерьера Stylt Trampoli Ab. Фото: Scandic Hotels
Отель Paasitorni. Номер в стиле 21 века. Дизайн интерьера Stylt Trampoli Ab. Фото: Scandic Hotels
Отель Paasitorni. Вестибюль. Дизайн интерьера Stylt Trampoli Ab. Фото: Mikko Reinikainen
Отель Paasitorni. Вестибюль. Дизайн интерьера Stylt Trampoli Ab. Фото: Mikko Reinikainen
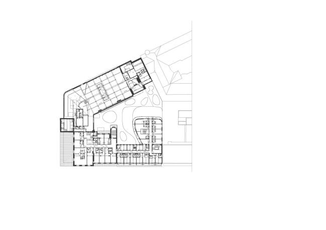
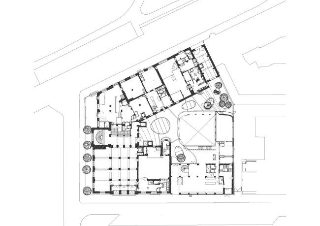
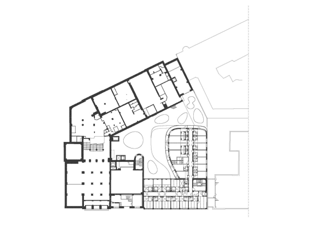
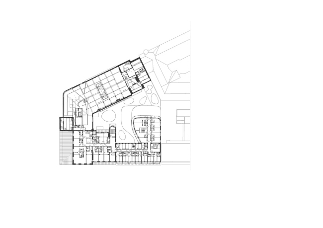
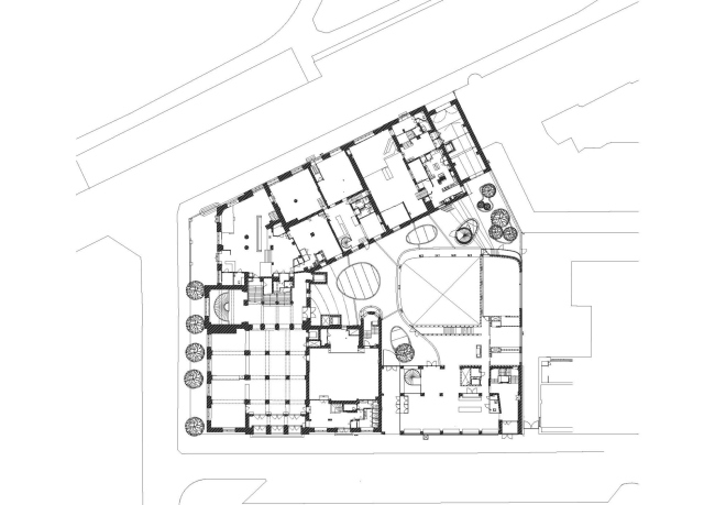
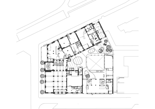
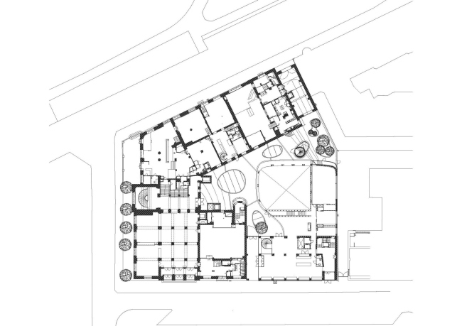
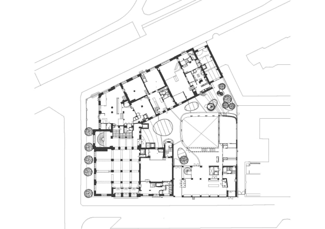
Отель Paasitorni © K2S Architects
Отель Paasitorni © K2S Architects
Отель Paasitorni © K2S Architects
Отель Paasitorni © K2S Architects
Отель Paasitorni © K2S Architects
Отель Paasitorni © K2S Architects
Отель Paasitorni © K2S Architects
Отель Paasitorni © K2S Architects
Отель Paasitorni © K2S Architects
Отель Paasitorni © K2S Architects
Отель Paasitorni © K2S Architects
Отель Paasitorni © K2S Architects
Отель Paasitorni © K2S Architects
Отель Paasitorni © K2S Architects
Отель Paasitorni © K2S Architects
Отель Paasitorni © K2S Architects
Отель Paasitorni © K2S Architects
Отель Paasitorni © K2S Architects
Отель Paasitorni © K2S Architects
Отель Paasitorni © K2S Architects
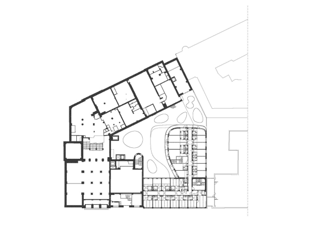
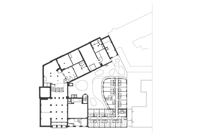
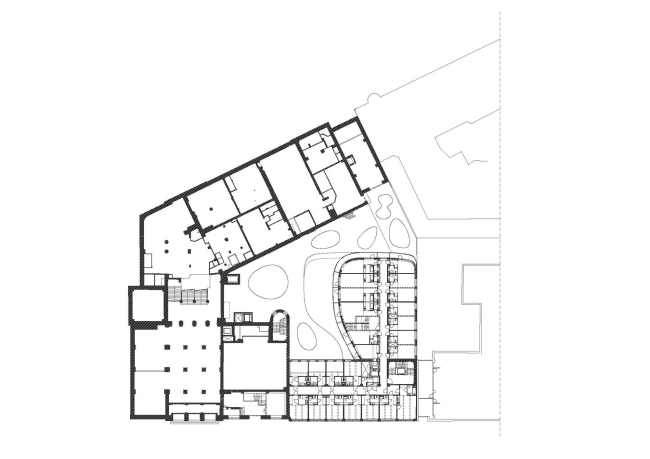
Отель Paasitorni. Конструкция фасада © K2S Architects
Отель Paasitorni. Конструкция фасада © K2S Architects