Размещено на портале Архи.ру (www.archi.ru)

02.10.2007

Дом-питон

Мария Фадеева
Объект:
Индивидуальный жилой дом, Московская область (600 кв.м)
Адрес:
Россия, Поздняково
Мастерская:
PANACOM
Авторский коллектив:
Н.Токарев, А.Леонович

Архитекторы бюро «Панаком» продолжают создавать проекты жилых домов для территории третьей очереди поселка «Никольская слобода». Этот проект уже 5-й. И снова речь идет об участке, граничащем с общественной зоной пруда. Здесь использованы находки предыдущих проектов, что позволяет вписать дом в общий ансамбль, но есть и оригинальные решения, придающие ему индивидуальность. По мнению авторов, эта архитектура биоморфна…

Индивидуальный жилой дом
Индивидуальный жилой дом
© PANACOM

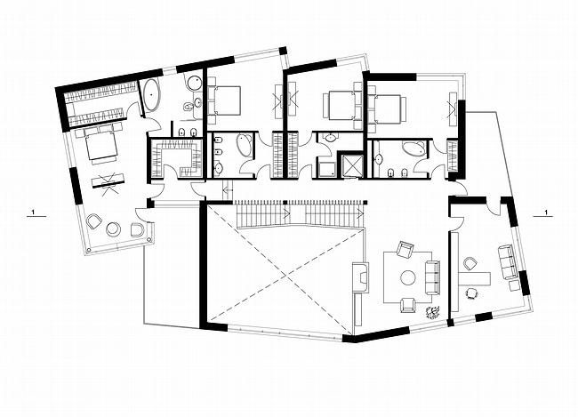
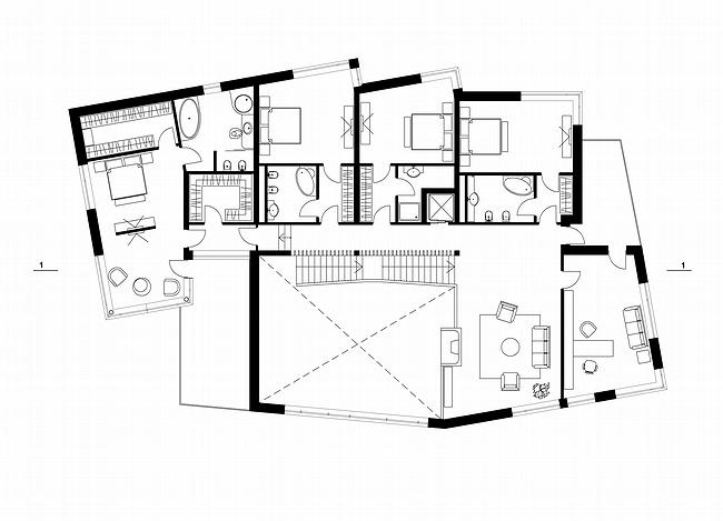
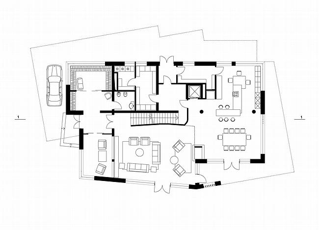
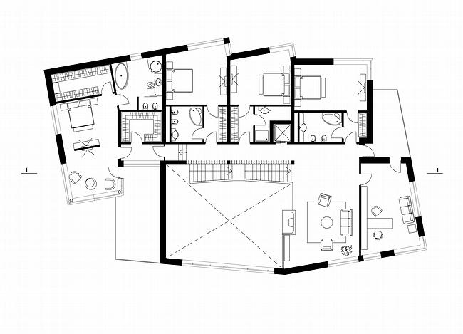
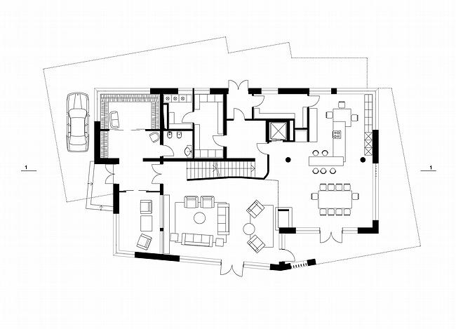
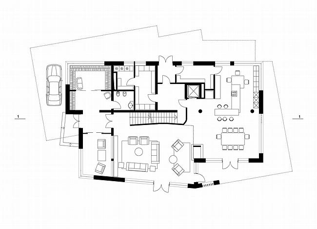
Внешне новое творение напоминает проект большого дома, расположенного на противоположном берегу – та же деревянная отделка, те же белые тяги. Композиция объемов отчасти схожа с симметричными близнецами из проекта, проходящего под названием «застройка центральной зоны» – внизу каменная коробочка, на которую, как будто улитка, заползает более гибкий объем, замкнутый в собственной оболочке. Но вот система ориентации этого дома категорически отличается от вышеупомянутых проектов.

Не смотря на то, что участок находится около пруда, водную гладь с него почти не видно. Поэтому, если не считать эркеров спален, выглядывающих в эту сторону, авторы замкнули дом на самом себе. «Представьте себе линию, в которую выстроены все помещения, начиная от наиболее открытой для всех входной группы и заканчивая самой приватной комнатой, хозяйской спальней. Она получится достаточно длинной – рассказывает один из руководителей бюро, Никита Токарев: чтобы все это поместилось на участке, мы ее свернули пополам и подняли приватную часть на второй этаж». Таким образом, спальня оказалась над входом, а композиция в целом напоминает змею, кусающую собственный хвост, – философски рассуждают авторы. Увеличение потолка в хозяйской спальне вполне отвечает образу  зевающей змеиной головы. Место для «переползания» выбрано в зоне гостиной, которая, как сейчас принято, сделана двусветной. Мало того, линия потолка повторяется в лестнице, ставшей частью интерьера гостиной. Для полноты картины необходимо сказать, что в «ленту» не вошли хозяйственные помещения: они объединены в отдельный блок на первом этаже – собственно, это и есть то основание, на которое «заползает» верхняя часть гибкого «тела», включая голову-спальню. Архитекторы предполагают отделать нижний блок камнем не только снаружи, но и внутри, чтобы четко отделить от жилого пространства. Или живого?

Поскольку «под змеей» поместились не все необходимые служебные помещения, оставшаяся часть убрана в подвал. Кстати сказать, это не единственное подземное помещение на этом участке – также под землей, в отдельном строении, расположен бассейн, отмеченный сверху небольшим павильоном с комнатой отдыха и террасой с видом на пруд. Все постройки соединяются между собой подземными переходами.

Помещение подземного бассейна авторы решили уподобить пещере, поэтому с трех сторон вода вплотную подходит к стенам. На данный момент в проекте существует идея специального узла, который позволит не делать бортик-перелив вдоль стен, спрятав его в их толще. Естественный свет будет попадать в «грот» бассейна через два небольших зенитных фонаря верхнего света. Для сада они станут декоративными скульптурами. Что неплохо заканчивает общую картину: сад у пруда, в нем скульптуры, павильон, на солнце греется питон – страшно привлекательно.

Индивидуальный жилой дом
Индивидуальный жилой дом
© PANACOM
Индивидуальный жилой дом
Индивидуальный жилой дом
© PANACOM
Индивидуальный жилой дом
Индивидуальный жилой дом
© PANACOM
Индивидуальный жилой дом
Индивидуальный жилой дом
© PANACOM
Индивидуальный жилой дом
Индивидуальный жилой дом
© PANACOM
Индивидуальный жилой дом
Индивидуальный жилой дом
© PANACOM
Индивидуальный жилой дом
Индивидуальный жилой дом
© PANACOM
Индивидуальный жилой дом
Индивидуальный жилой дом
© PANACOM