|
|
|
Размещено на портале Архи.ру (www.archi.ru)
|
|
08.11.2012
|
|
На крыльях спорта
|
Анна Мартовицкая
|
| Объект: |
|
Общественный центр поселка «Жуковка-XXI»
|
| Адрес: |
|
Россия,
Московская область,
дер. Жуковка, Ильинское ш.
|
|
Архитектор:
|
|
Андрей Асадов
|
|
Александр Асадов
|
|
Мастерская:
|
|
АБ ASADOV
|
|
Авторский коллектив:
|
|
Архитекторы: А.Асадов, А.А.Асадов, О.Григорьева, консультант – С.Кулиш; инженер – Г.Каркло; интерьеры – «Лаборатория Виртуальной Архитектуры»: Д.Кулиш, А.Карпова
|
|
В подмосковном поселке «Жуковка XXI» открылся общественно-спортивный центр, построенный по проекту «Архитектурного бюро Асадова».
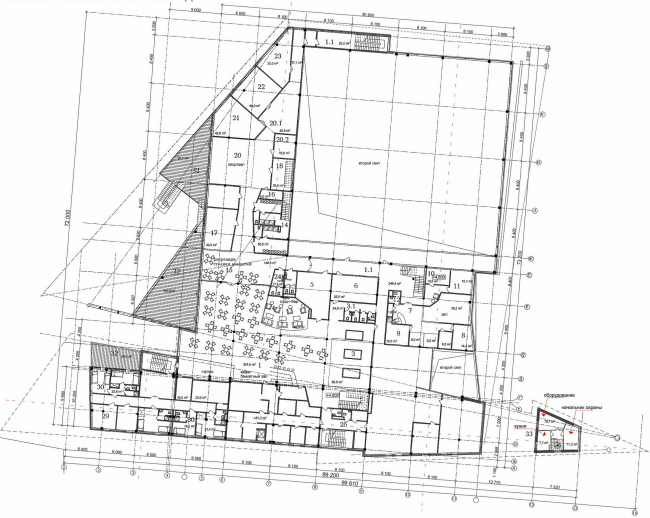
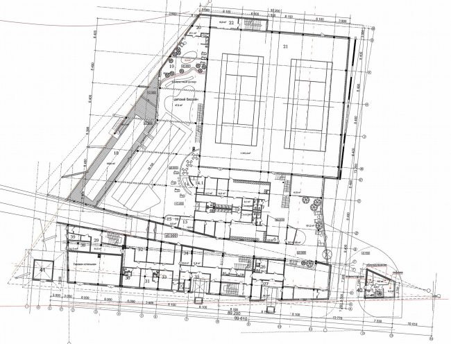
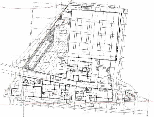
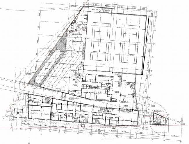
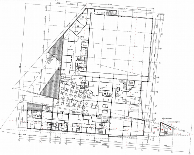
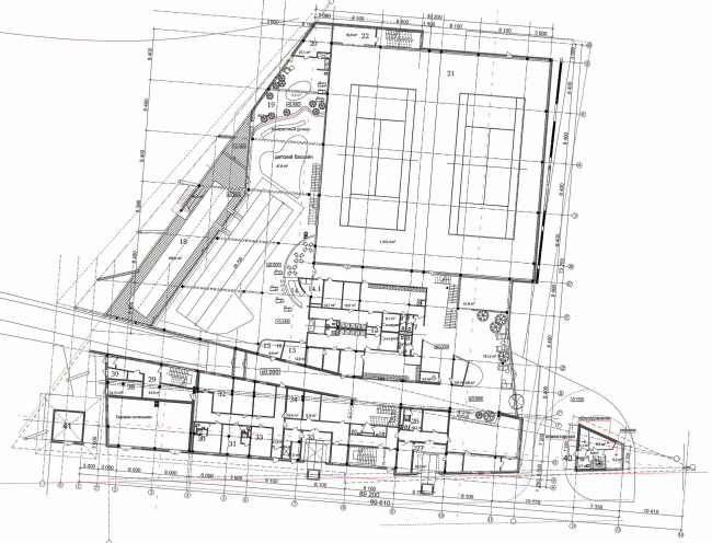
Коттеджный поселок «Жуковка ХХI» расположен в 9 километрах от МКАД по Рублево-Успенскому шоссе, в пойме Москвы-реки. В плане он имеет форму веера, разделенного на две неравные части Ильинским шоссе, и именно в створе, образованном трассой и излучиной реки, организован въезд на территорию. Здесь же расположен главный объект поселковой инфраструктуры – общественно-спортивный центр. Этот объем изначально задумывался как визитная карточка всего комплекса, символ, который бы выгодно выделял «Жуковку XXI» на фоне соседних отнюдь не заурядных поселков. Так что совсем неудивительно, что на архитектурное решение центра заказчик объявил конкурс, правда, было это довольно давно, и с тех пор функциональная программа проекта не раз претерпевала серьезные изменения. «Можно сказать, что это проект-долгожитель, ведь конкурс мы выиграли еще в 2004 году, – рассказывает Андрей Асадов. – Впрочем, даже несмотря на многочисленные доработки, нам удалось сохранить первоначальный архитектурный замысел, вдохновивший заказчика и позволивший одержать победу в конкурсе».
Рассказывая о том, как было придумано это динамичное здание, словно расправляющее крылья навстречу подъезжающим к нему машинам, Андрей Асадов непременно цитирует знаменитый роман Ричарда Баха о чайке по имени Джонатан Ливингстон: «Все ваше тело – от кончика одного крыла до кончика другого – снова и снова повторял Джонатан, – есть собственно мысль, воплощенная в форме, доступной вашему зрению. Разорвав путы, сковывающие вашу мысль, вы разорвете и путы, сковывающие ваши тела…» Книгу, без преувеличения, определившую мировоззрение целого поколения, архитекторы вспомнили сразу, как только оказались на будущей стройплощадке: живописная пойма в излучине Москвы-реки просила решения легкого, близкого по духу тому ощущению свободы и простора, которым пронизано это место. «Само собой как-то решилось, что мы будем проектировать здание, похожее на чайку, будто присевшую на берегу и раскинувшую крылья, чтобы снова взмыть в воздух», – говорит Асадов.
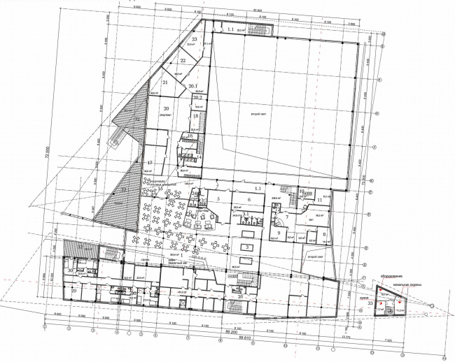
Сначала архитекторы нарисовали на генплане в прямом смысле птичку – треугольное в плане здание, «клюв» которого обращен к дороге, а «крылья» раскинулись по обе стороны от сквозного проезда. Метафора полета читалась здесь очень явно, и хотя позже одно из крыльев изрядно «располнело» за счет присоединения двух крытых теннисных кортов, архитекторам в целом удалось ее сохранить. В частности, в проекте уцелел и острый клюв, нависающий над дорогой, и центральный хребет сквозного прохода, дробящий объем на две самостоятельные части, кровли над которыми наделены широкими свесами. Треугольная форма последних и придает зданию сходство с птицей – крылья поддержаны тонкими опорами, причем их архитекторы устанавливают под углом к зданию, что придает всей композиции дополнительный динамизм. Иными словами, с высоты птичьего полета реализованное здание на птицу уже не очень похоже, но вот при взгляде с земли оно завораживает своим однозначно птичьим обликом.
Интересно, что лишь одно из «крыльев» сделано сплошным, тогда как второе прорезано треугольниками разных форм, и заданная здесь тема пергол становится для этого здания одной из ключевых. Многочисленные навесы фактически окружают здание по периметру, формируя крытые промежуточные пространства, связывающие внутренние помещения с окружающим ландшафтом. Нельзя не признать, что для данной типологии такое решение оптимально: внутреннее пространство центра вмещает в себя два уже упомянутых корта, фитнес-центр, спа-салон, детский клуб и кафе, со стороны реки к зданию примыкают спортплощадки, а крытый бассейн плавно перетекает в открытый.
Отделка здания полностью соответствует заявленному высокому классу и самого спортивного центра, и поселка в целом. В проекте применены очень дорогие натуральные материалы – юрский мрамор и панели из дерева, пропитанного маслом. Несомненной заслугой архитекторов является то, что эти материалы не только подчеркивают солидный статус объекта, но и идеально воплощают задуманный образ. Летящие плоскости крыш, выложенные панелями терракотового оттенка, делают новостройку неотъемлемой частью природного окружения и недвусмысленно намекают на его принадлежность к отряду пернатых, а светло-кремовые фасады, белеющие на фоне окружающей здание зелени и протекающей рядом реки, подсказывают, что перед нами именно чайка.
|
|