Размещено на портале Архи.ру (www.archi.ru)

25.10.2012

Дом в виноградниках

Объект:
Дом «ам Вайнберг»
Адрес:
Германия, None, Штутгарт.
Мастерская:
UNS – United Network Studio

Бюро UNStudio построило виллу на окраине Штутгарта.

Дом «ам Вайнберг» © UNStudio. Фото: Iwan Baan
Дом «ам Вайнберг» © UNStudio. Фото: Iwan Baan
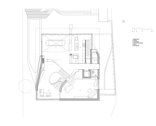
Постройка расположена на склоне холма, на краю старого виноградника, и ее обтекаемые формы повторяют контуры ландшафта. Ее конструкция построена на любимом приеме архитекторов UNStudio — «изгибе», когда неожиданный поворот разделяет интерьер на зоны. В данном случае предсказуемо закручена лестница, соединяющая и, одновременно, разделяющая два этажа дома.
Дом «ам Вайнберг» © UNStudio. Фото: Iwan Baan
Дом «ам Вайнберг» © UNStudio. Фото: Iwan Baan

В вилле всего четыре конструктивных опоры — три колонны и шахта лифта. Это позволило широко использовать остекление, в том числе угловых компартиментов.
Дом «ам Вайнберг» © UNStudio. Фото: Iwan Baan
Дом «ам Вайнберг» © UNStudio. Фото: Iwan Baan

Концепция проекта основана на идее связи интерьера и ландшафта, что должно создавать параллакс — явление, когда положение неподвижного объекта визуально меняется из-за перемещения наблюдателя (который видит окружающий пейзаж из любой точки дома).
Дом «ам Вайнберг» © UNStudio. Фото: Iwan Baan
Дом «ам Вайнберг» © UNStudio. Фото: Iwan Baan

Панорамное окно двухсветной столовой можно раздвинуть, полностью убрав границы между внутренним и внешним пространством.
Дом «ам Вайнберг» © UNStudio. Фото: Iwan Baan
Дом «ам Вайнберг» © UNStudio. Фото: Iwan Baan

Помещения виллы расположены в соответствии с перемещением солнца по небосклону в течение дня.

Н. Ф.
Дом «ам Вайнберг» © UNStudio. Фото: Iwan Baan
Дом «ам Вайнберг» © UNStudio. Фото: Iwan Baan
Дом «ам Вайнберг» © UNStudio. Фото: Iwan Baan
Дом «ам Вайнберг» © UNStudio. Фото: Iwan Baan
Дом «ам Вайнберг» © UNStudio. Фото: Iwan Baan
Дом «ам Вайнберг» © UNStudio. Фото: Iwan Baan
Дом «ам Вайнберг» © UNStudio. Фото: Iwan Baan
Дом «ам Вайнберг» © UNStudio. Фото: Iwan Baan
Дом «ам Вайнберг» © UNStudio. Фото: Iwan Baan
Дом «ам Вайнберг» © UNStudio. Фото: Iwan Baan
Дом «ам Вайнберг» © UNStudio. Фото: Iwan Baan
Дом «ам Вайнберг» © UNStudio. Фото: Iwan Baan
Дом «ам Вайнберг» © UNStudio. Фото: Iwan Baan
Дом «ам Вайнберг» © UNStudio. Фото: Iwan Baan
Дом «ам Вайнберг» © UNStudio. Фото: Iwan Baan
Дом «ам Вайнберг» © UNStudio. Фото: Iwan Baan
Дом «ам Вайнберг» © UNStudio. Фото: Iwan Baan
Дом «ам Вайнберг» © UNStudio. Фото: Iwan Baan
Дом «ам Вайнберг» © UNStudio. Фото: Iwan Baan
Дом «ам Вайнберг» © UNStudio. Фото: Iwan Baan
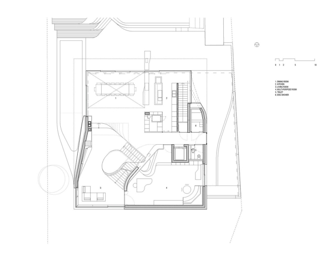
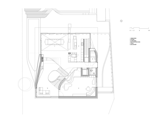
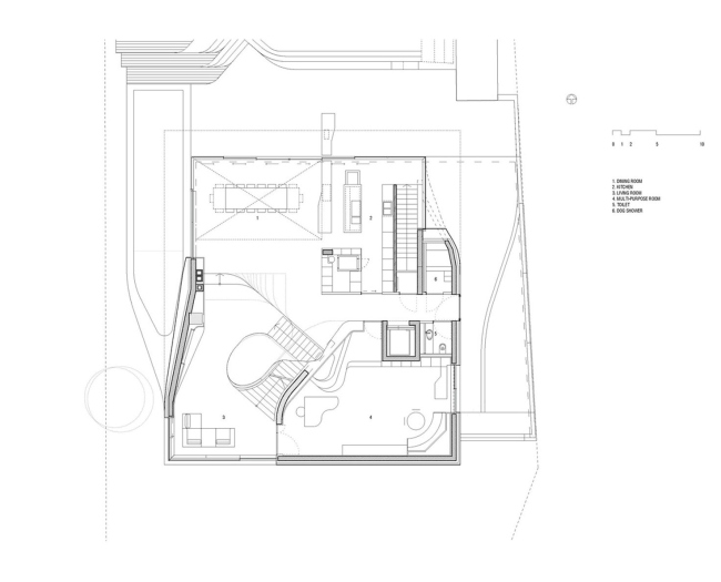
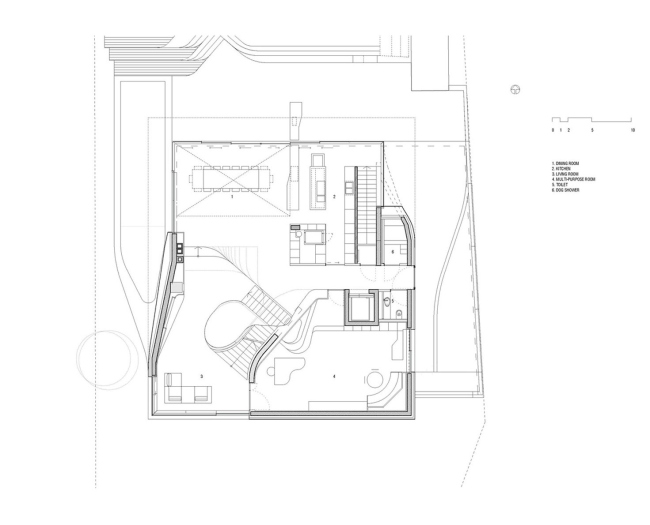
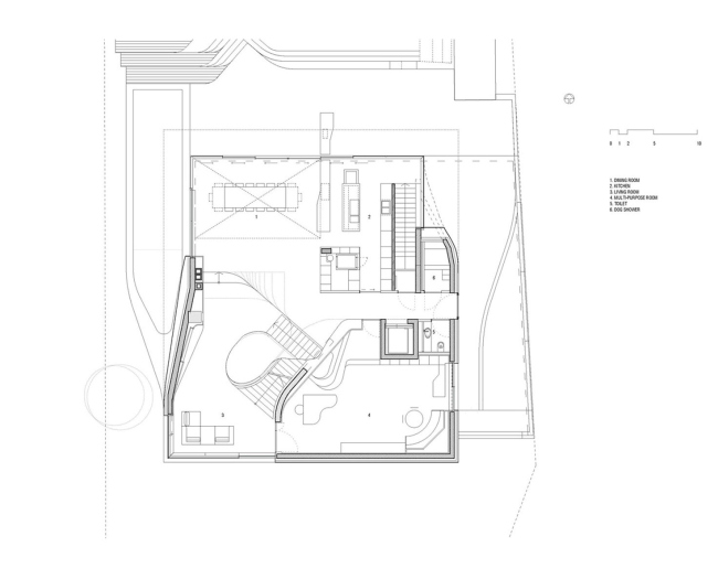
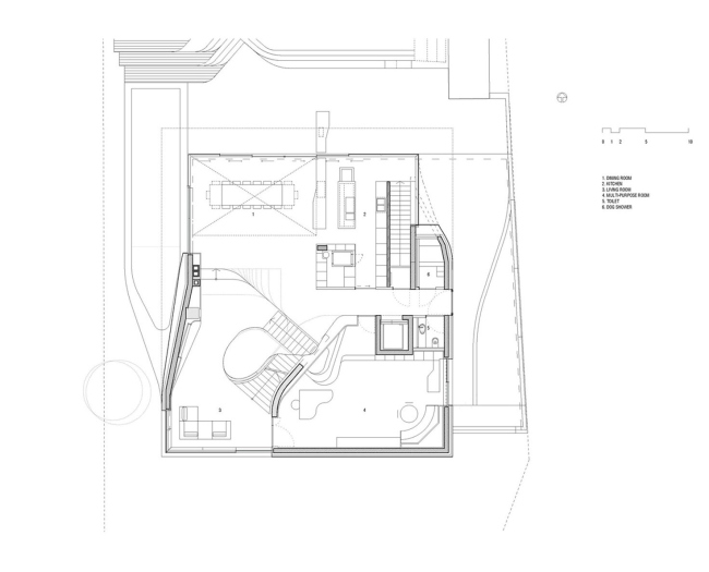
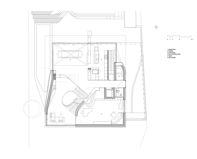
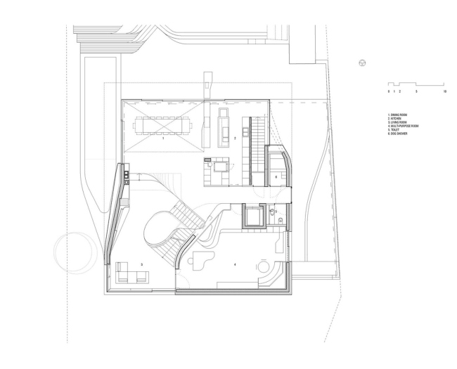
Дом «ам Вайнберг» © UNStudio
Дом «ам Вайнберг» © UNStudio
Дом «ам Вайнберг» © UNStudio
Дом «ам Вайнберг» © UNStudio
Дом «ам Вайнберг» © UNStudio
Дом «ам Вайнберг» © UNStudio
Дом «ам Вайнберг» © UNStudio
Дом «ам Вайнберг» © UNStudio
Дом «ам Вайнберг» © UNStudio
Дом «ам Вайнберг» © UNStudio
Дом «ам Вайнберг» © UNStudio
Дом «ам Вайнберг» © UNStudio
Дом «ам Вайнберг» © UNStudio
Дом «ам Вайнберг» © UNStudio