Размещено на портале Архи.ру (www.archi.ru)

21.09.2012

Игра с проемами

Объект:
Главная библиотека университета Хельсинки
Адрес:
Финляндия, None, Хельсинки.
Мастерская:
Anttinen Oiva Architects

В Хельсинки открылось здание главной университетской библиотеки. Авторы проекта — молодые архитекторы Anttinen Oiva Architects.

Главная библиотека университета Хельсинки. Фото © Tuomas Uusheimo. Предоставлено Anttinen Oiva arkkitehdit Oy
Главная библиотека университета Хельсинки. Фото © Tuomas Uusheimo. Предоставлено Anttinen Oiva arkkitehdit Oy
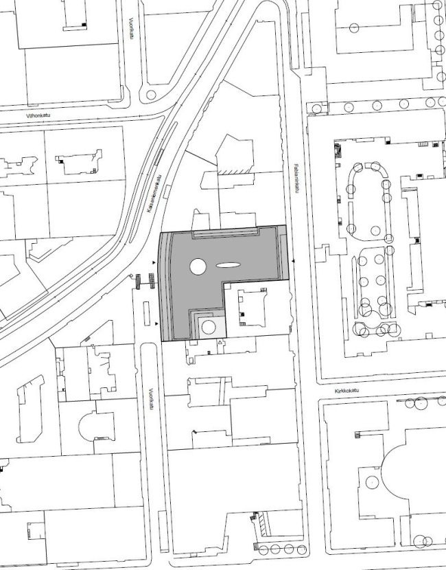
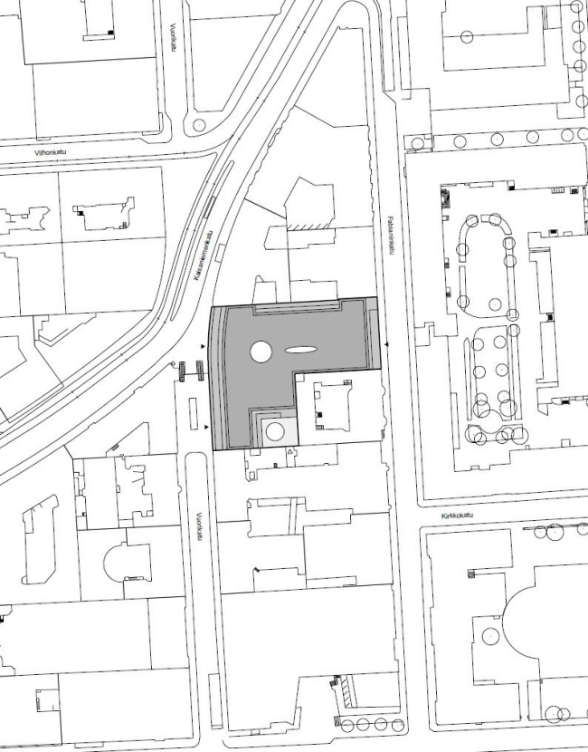
Постройка объединила в себе пять факультетских библиотек центрального кампуса университета Хельсинки, ранее находившихся в разных зданиях. В результате образовалась крупнейшая научная библиотека Финляндии, но ее статус не стал основной темой проекта: не менее важным для авторов было вписать свое сооружение в окружающую историческую застройку.

Главная библиотека университета Хельсинки. Фото © Tuomas Uusheimo. Предоставлено Anttinen Oiva arkkitehdit Oy
Главная библиотека университета Хельсинки. Фото © Tuomas Uusheimo. Предоставлено Anttinen Oiva arkkitehdit Oy
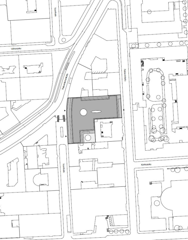
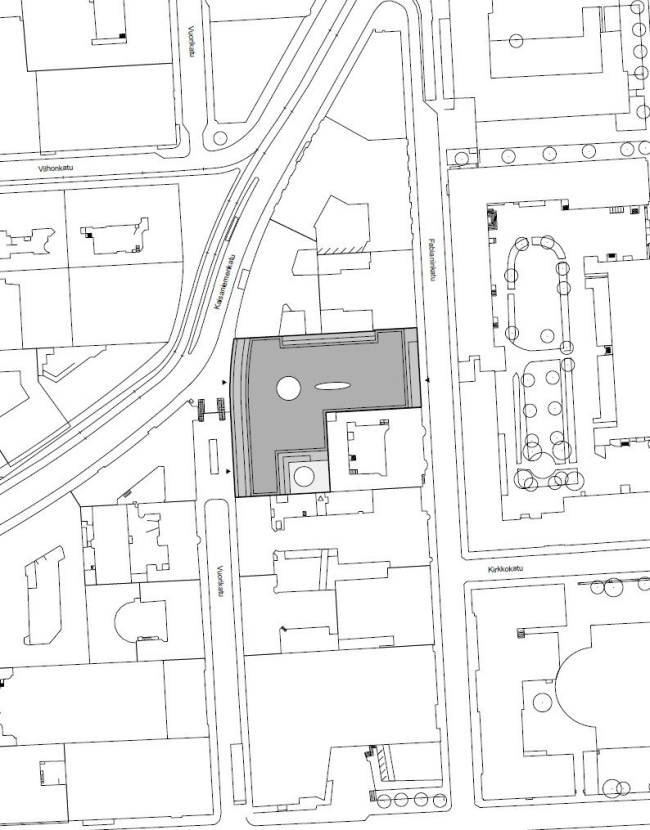
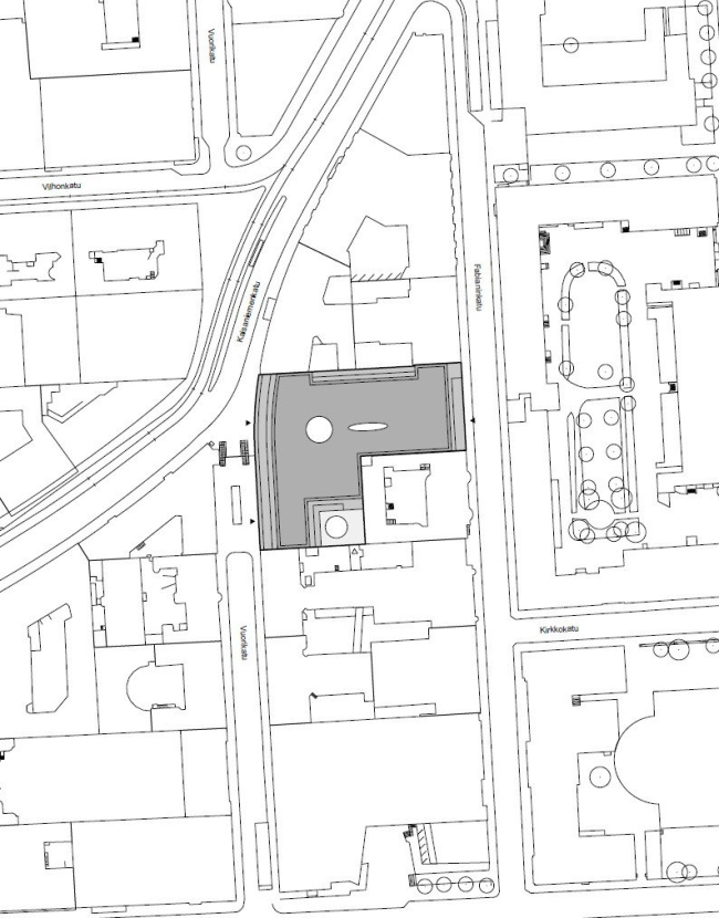
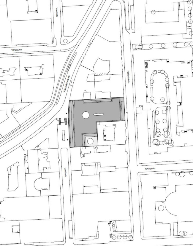
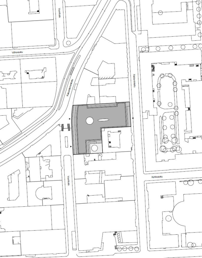
Библиотека расположена в самом центре города, поблизости от кафедрального собора. С одной стороны она выходит к классицистическому университетскому ансамблю архитектора Карла Энгеля. С другой — встроена в изгиб улицы Кайсаниеменкату, где в этом месте в застройке преобладают здания из темно-коричневого кирпича в духе северного модерна.

Главная библиотека университета Хельсинки. Фото © Tuomas Uusheimo. Предоставлено Anttinen Oiva arkkitehdit Oy
Главная библиотека университета Хельсинки. Фото © Tuomas Uusheimo. Предоставлено Anttinen Oiva arkkitehdit Oy
Поэтому этот материал был выбран и для фасадов нового здания, но в остальном проект не содержит никаких отсылок к традиции. На западном фасаде сделаны три криволинейные зоны остекления, на восточном, более узком — одна. Их окружает поверхность с регулярно расположенными прямоугольными окнами, не отражающими внутреннее деление на этажи. Это визуально придает фасадам цельность, но также и скрывает вынужденный изгиб вслед за улицей и значительный перепад рельефа (участок для строительства удобным назвать нельзя).

Главная библиотека университета Хельсинки. Фото © Tuomas Uusheimo. Предоставлено Anttinen Oiva arkkitehdit Oy
Главная библиотека университета Хельсинки. Фото © Tuomas Uusheimo. Предоставлено Anttinen Oiva arkkitehdit Oy
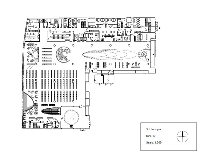
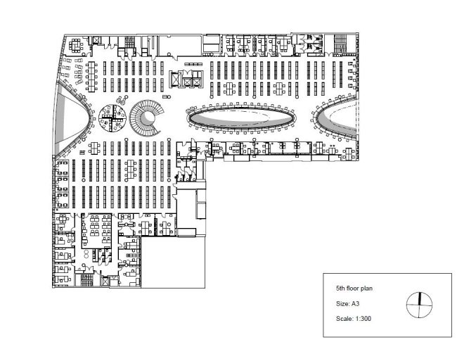
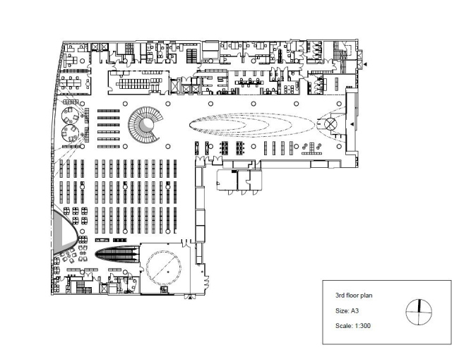
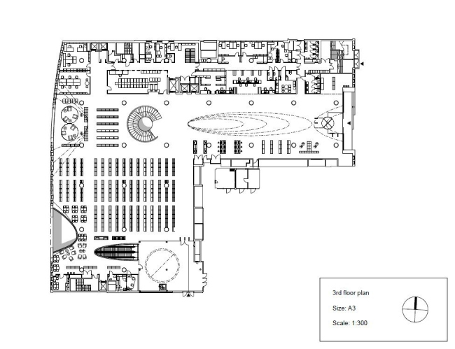
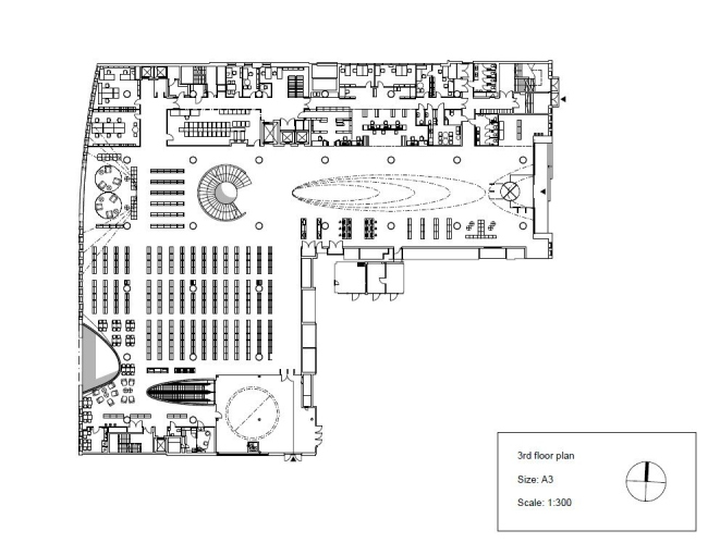
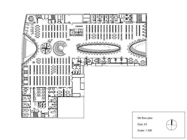
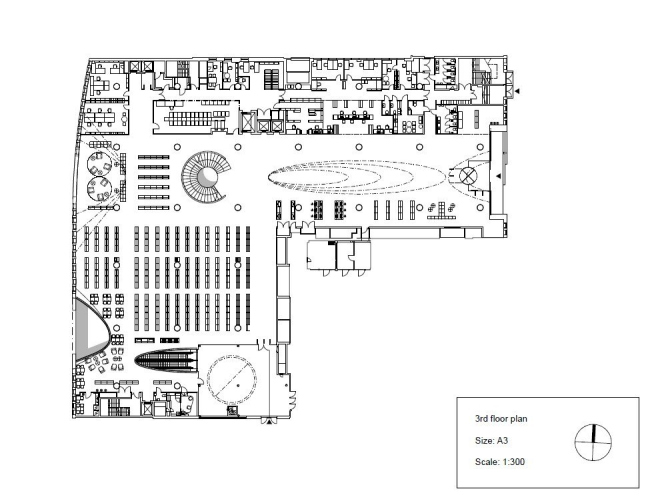
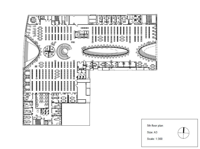
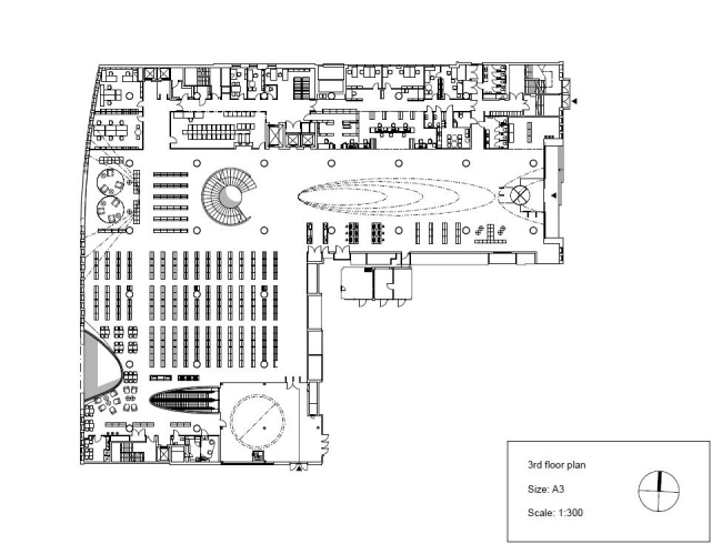
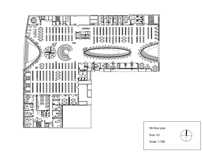
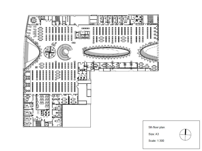
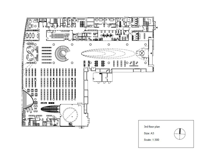
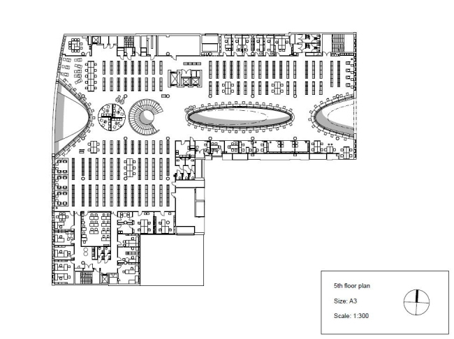
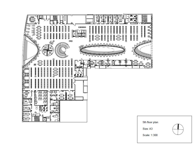
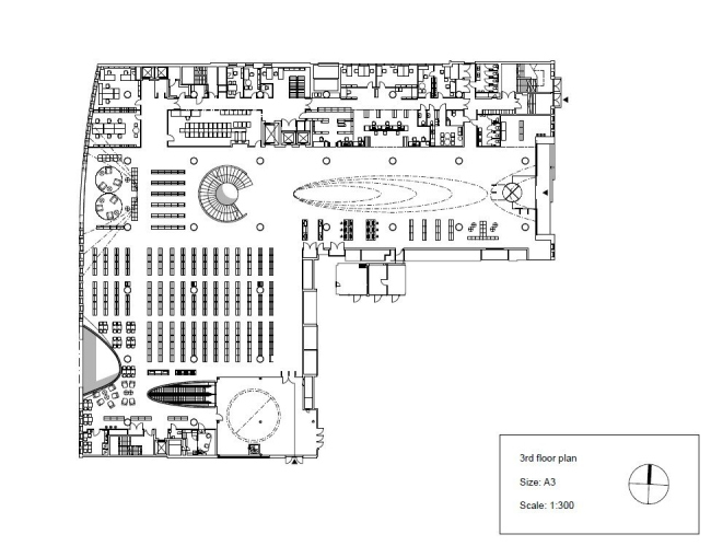
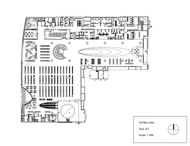
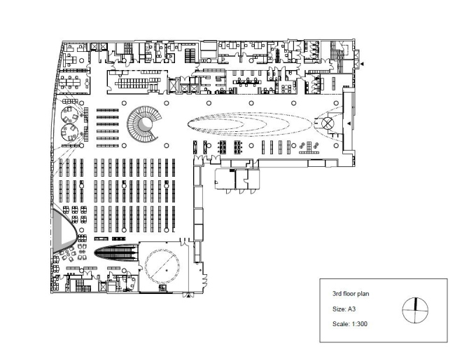
Внутри пространство организовано вокруг трех «проемов» типа атриумов, пронзающих здание по вертикали. Два из них примыкают к остекленным зонам фасадов, третий помещен в центре. Их дополняет главная лестница, спиралью поднимающаяся с первого этажа до самой крыши.

Главная библиотека университета Хельсинки. Фото © Tuomas Uusheimo. Предоставлено Anttinen Oiva arkkitehdit Oy
Главная библиотека университета Хельсинки. Фото © Tuomas Uusheimo. Предоставлено Anttinen Oiva arkkitehdit Oy
Вокруг «проемов» устроены зоны циркуляции, затем — информационные зоны, а дальше их окружают хранящиеся в открытом доступе книги.

Главная библиотека университета Хельсинки. Фото © Tuomas Uusheimo. Предоставлено Anttinen Oiva arkkitehdit Oy
Главная библиотека университета Хельсинки. Фото © Tuomas Uusheimo. Предоставлено Anttinen Oiva arkkitehdit Oy
На каждом этаже есть тихие читальные залы, а также читальные «галереи», выходящие на остекленные части фасадов. Кроме того, предусмотрены звукоизолированные помещения для индивидуальных и групповых занятий.

Главная библиотека университета Хельсинки. Фото © Tuomas Uusheimo. Предоставлено Anttinen Oiva arkkitehdit Oy
Главная библиотека университета Хельсинки. Фото © Tuomas Uusheimo. Предоставлено Anttinen Oiva arkkitehdit Oy
Офисы сотрудников в зависимости от специализации распределены по этажам, но руководство, отдел каталога и новых поступлений помещены на самом верху: оттуда книги, доставленные из разгрузочного отдела в подвальном этаже, распределяются по библиотеке.

Н.Ф.
Главная библиотека университета Хельсинки. Фото © Tuomas Uusheimo. Предоставлено Anttinen Oiva arkkitehdit Oy
Главная библиотека университета Хельсинки. Фото © Tuomas Uusheimo. Предоставлено Anttinen Oiva arkkitehdit Oy
Главная библиотека университета Хельсинки. Фото © Tuomas Uusheimo. Предоставлено Anttinen Oiva arkkitehdit Oy
Главная библиотека университета Хельсинки. Фото © Tuomas Uusheimo. Предоставлено Anttinen Oiva arkkitehdit Oy
Главная библиотека университета Хельсинки. Фото © Tuomas Uusheimo. Предоставлено Anttinen Oiva arkkitehdit Oy
Главная библиотека университета Хельсинки. Фото © Tuomas Uusheimo. Предоставлено Anttinen Oiva arkkitehdit Oy
Главная библиотека университета Хельсинки. Фото © Tuomas Uusheimo. Предоставлено Anttinen Oiva arkkitehdit Oy
Главная библиотека университета Хельсинки. Фото © Tuomas Uusheimo. Предоставлено Anttinen Oiva arkkitehdit Oy
Главная библиотека университета Хельсинки. Фото © Tuomas Uusheimo. Предоставлено Anttinen Oiva arkkitehdit Oy
Главная библиотека университета Хельсинки. Фото © Tuomas Uusheimo. Предоставлено Anttinen Oiva arkkitehdit Oy
Главная библиотека университета Хельсинки. Фото © Tuomas Uusheimo. Предоставлено Anttinen Oiva arkkitehdit Oy
Главная библиотека университета Хельсинки. Фото © Tuomas Uusheimo. Предоставлено Anttinen Oiva arkkitehdit Oy
Главная библиотека университета Хельсинки. Фото © Tuomas Uusheimo. Предоставлено Anttinen Oiva arkkitehdit Oy
Главная библиотека университета Хельсинки. Фото © Tuomas Uusheimo. Предоставлено Anttinen Oiva arkkitehdit Oy
Главная библиотека университета Хельсинки. Фото © Tuomas Uusheimo. Предоставлено Anttinen Oiva arkkitehdit Oy
Главная библиотека университета Хельсинки. Фото © Tuomas Uusheimo. Предоставлено Anttinen Oiva arkkitehdit Oy
Главная библиотека университета Хельсинки. Фото © Tuomas Uusheimo. Предоставлено Anttinen Oiva arkkitehdit Oy
Главная библиотека университета Хельсинки. Фото © Tuomas Uusheimo. Предоставлено Anttinen Oiva arkkitehdit Oy
Главная библиотека университета Хельсинки. Фото © Tuomas Uusheimo. Предоставлено Anttinen Oiva arkkitehdit Oy
Главная библиотека университета Хельсинки. Фото © Tuomas Uusheimo. Предоставлено Anttinen Oiva arkkitehdit Oy
Главная библиотека университета Хельсинки. Фото © Tuomas Uusheimo. Предоставлено Anttinen Oiva arkkitehdit Oy
Главная библиотека университета Хельсинки. Фото © Tuomas Uusheimo. Предоставлено Anttinen Oiva arkkitehdit Oy
Главная библиотека университета Хельсинки. Фото © Tuomas Uusheimo. Предоставлено Anttinen Oiva arkkitehdit Oy
Главная библиотека университета Хельсинки. Фото © Tuomas Uusheimo. Предоставлено Anttinen Oiva arkkitehdit Oy
Главная библиотека университета Хельсинки. Фото © Tuomas Uusheimo. Предоставлено Anttinen Oiva arkkitehdit Oy
Главная библиотека университета Хельсинки. Фото © Tuomas Uusheimo. Предоставлено Anttinen Oiva arkkitehdit Oy
Главная библиотека университета Хельсинки. Фото © Tuomas Uusheimo. Предоставлено Anttinen Oiva arkkitehdit Oy
Главная библиотека университета Хельсинки. Фото © Tuomas Uusheimo. Предоставлено Anttinen Oiva arkkitehdit Oy
Главная библиотека университета Хельсинки. Фото © Tuomas Uusheimo. Предоставлено Anttinen Oiva arkkitehdit Oy
Главная библиотека университета Хельсинки. Фото © Tuomas Uusheimo. Предоставлено Anttinen Oiva arkkitehdit Oy
Главная библиотека университета Хельсинки. Фото © Tuomas Uusheimo. Предоставлено Anttinen Oiva arkkitehdit Oy
Главная библиотека университета Хельсинки. Фото © Tuomas Uusheimo. Предоставлено Anttinen Oiva arkkitehdit Oy
Главная библиотека университета Хельсинки. Фото © Tuomas Uusheimo. Предоставлено Anttinen Oiva arkkitehdit Oy
Главная библиотека университета Хельсинки. Фото © Tuomas Uusheimo. Предоставлено Anttinen Oiva arkkitehdit Oy
Главная библиотека университета Хельсинки. Фото © Tuomas Uusheimo. Предоставлено Anttinen Oiva arkkitehdit Oy
Главная библиотека университета Хельсинки. Фото © Tuomas Uusheimo. Предоставлено Anttinen Oiva arkkitehdit Oy
Главная библиотека университета Хельсинки. Фото © Tuomas Uusheimo. Предоставлено Anttinen Oiva arkkitehdit Oy
Главная библиотека университета Хельсинки. Фото © Tuomas Uusheimo. Предоставлено Anttinen Oiva arkkitehdit Oy
Главная библиотека университета Хельсинки. Фото © Tuomas Uusheimo. Предоставлено Anttinen Oiva arkkitehdit Oy
Главная библиотека университета Хельсинки. Фото © Tuomas Uusheimo. Предоставлено Anttinen Oiva arkkitehdit Oy
Главная библиотека университета Хельсинки. Предоставлено Anttinen Oiva arkkitehdit Oy
Главная библиотека университета Хельсинки. Предоставлено Anttinen Oiva arkkitehdit Oy
Главная библиотека университета Хельсинки. Предоставлено Anttinen Oiva arkkitehdit Oy
Главная библиотека университета Хельсинки. Предоставлено Anttinen Oiva arkkitehdit Oy
Главная библиотека университета Хельсинки. Предоставлено Anttinen Oiva arkkitehdit Oy
Главная библиотека университета Хельсинки. Предоставлено Anttinen Oiva arkkitehdit Oy
Главная библиотека университета Хельсинки. Предоставлено Anttinen Oiva arkkitehdit Oy
Главная библиотека университета Хельсинки. Предоставлено Anttinen Oiva arkkitehdit Oy
Главная библиотека университета Хельсинки. Предоставлено Anttinen Oiva arkkitehdit Oy
Главная библиотека университета Хельсинки. Предоставлено Anttinen Oiva arkkitehdit Oy
Главная библиотека университета Хельсинки. Предоставлено Anttinen Oiva arkkitehdit Oy
Главная библиотека университета Хельсинки. Предоставлено Anttinen Oiva arkkitehdit Oy
Главная библиотека университета Хельсинки. Предоставлено Anttinen Oiva arkkitehdit Oy
Главная библиотека университета Хельсинки. Предоставлено Anttinen Oiva arkkitehdit Oy