Размещено на портале Архи.ру (www.archi.ru)

20.09.2012

«Живые камни»

Объект:
Комплекс Pierresvives
Адрес:
Франция, None, Монпелье.

В Монпелье открылось административное здание Pierresvives, спроектированное Захой Хадид.

Комплекс Pierresvives © Hélène Binet
Комплекс Pierresvives © Hélène Binet
Это уже не первая крупная постройка, появившаяся в быстро растущем городе за последний год: ранее были сданы мэрия и центр дизайна Жана Нувеля и школа гостиничного менеджмента Массимилиано Фуксаса.

Комплекс Pierresvives © Hélène Binet
Комплекс Pierresvives © Hélène Binet
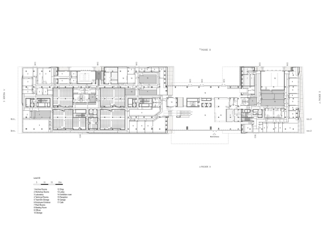
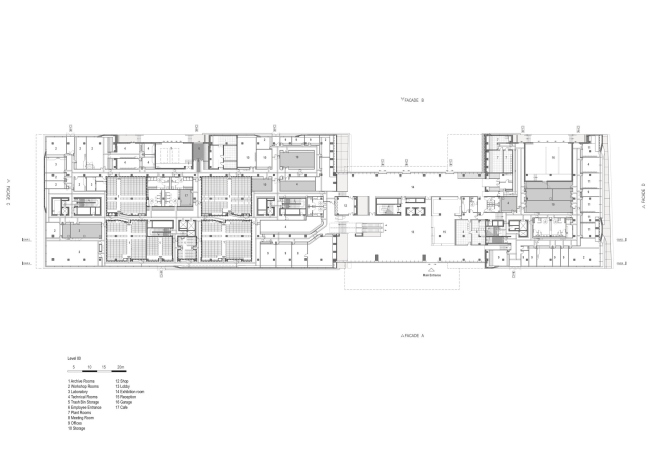
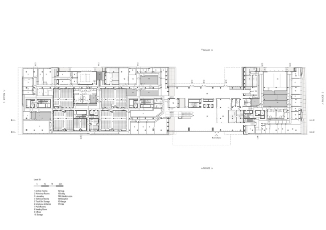
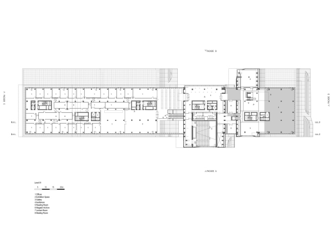
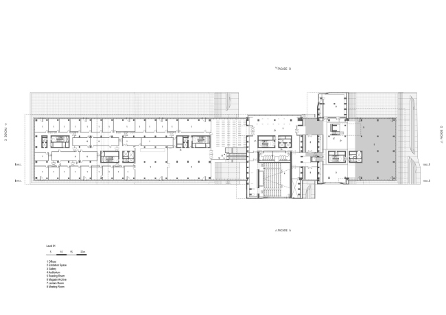
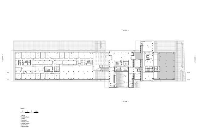
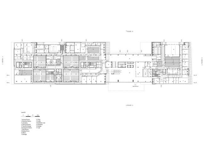
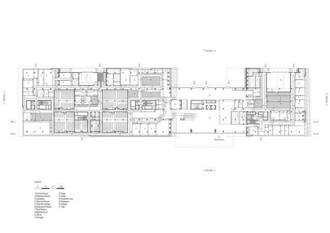
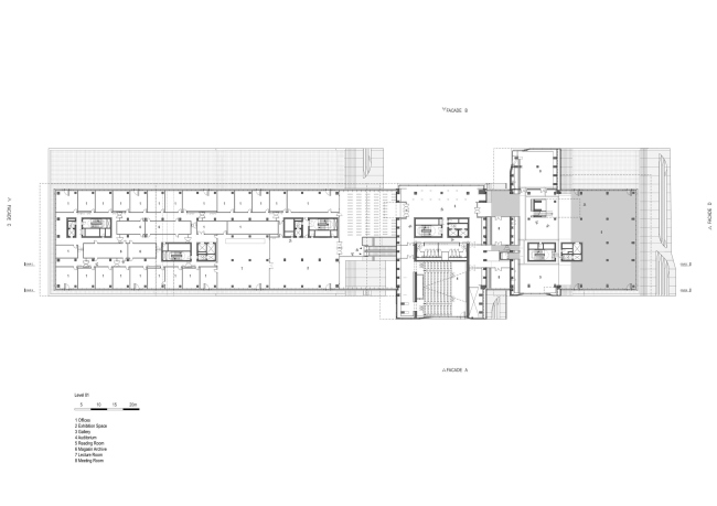
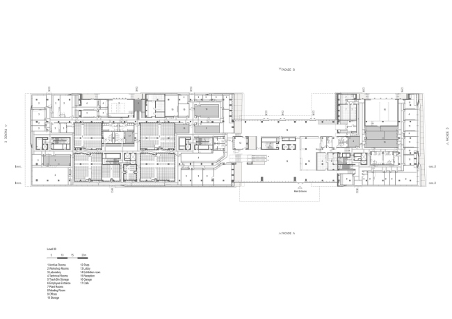
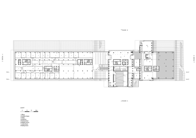
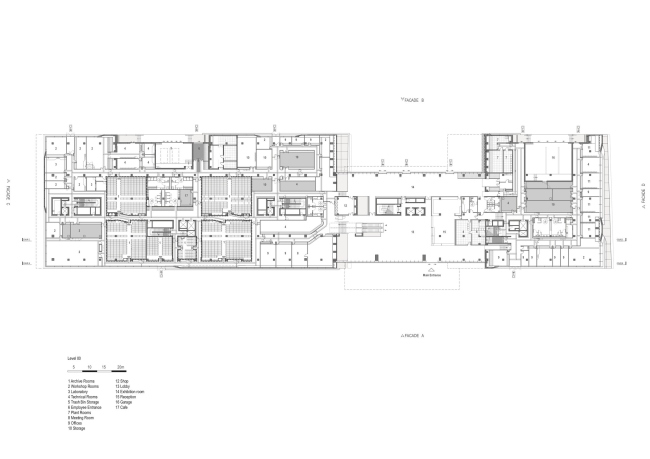
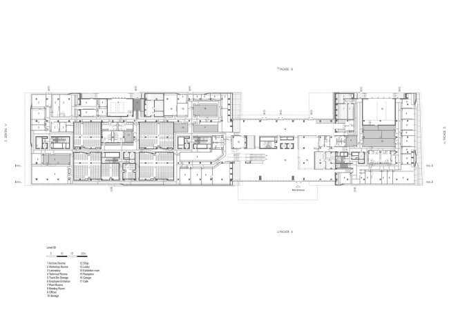
Но Pierresvives — наиболее эффектный из четырех. В нем расположены три независимых учреждения — архив, библиотека и управление спорта департамента Эро, чьей столицей является Монпелье. Так как здание призвано обслуживать граждан, оно получило «подзаголовок» «Центр знаний и спорта для всех».

Комплекс Pierresvives © Hélène Binet
Комплекс Pierresvives © Hélène Binet
Но само название гораздо интереснее, хотя и продолжает эту нарочито «гуманистическую» линию. Pierresvives — слитые в одно слова «живые камни», фрагмент фразы Франсуа Рабле «Я созидаю живые камни, то есть людей» (Je ne bâtis que pierres vives, ce sont hommes) из 3-й книги «Гаргантюа и Пантагрюэля».

Комплекс Pierresvives © Hélène Binet
Комплекс Pierresvives © Hélène Binet
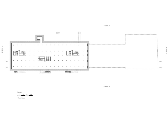
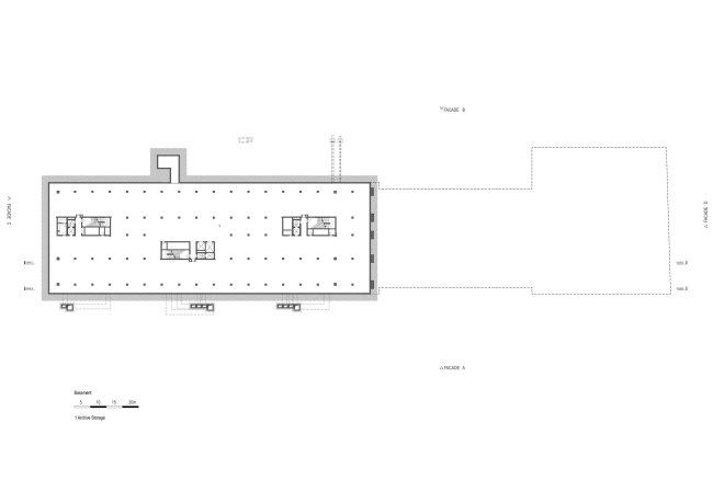
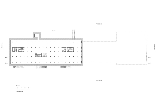
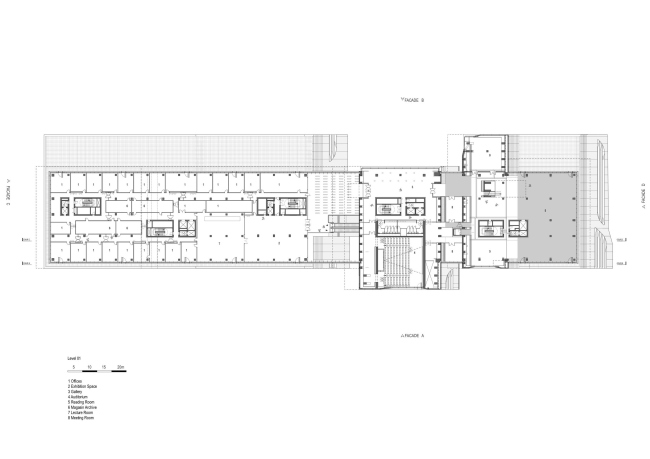
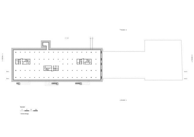
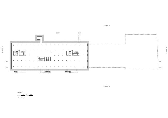
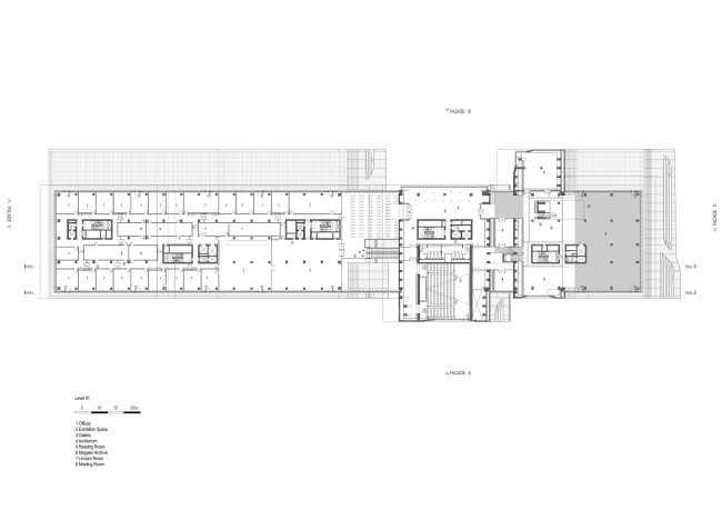
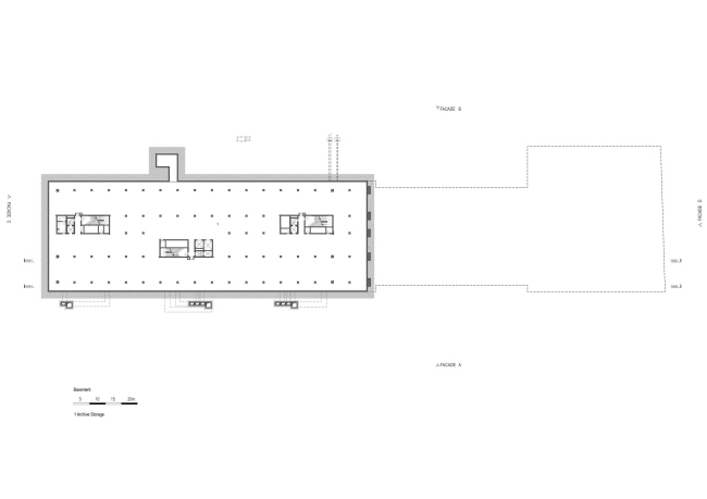
По замыслу Хадид, здание напоминает ветвящееся дерево, растущее в горизонтальном направлении. Три учреждения разделены по вертикали: внизу — архив, требующий минимум окон, выше — библиотека, где площадь остекления выше, а на самом верху и сбоку, в «кроне» дерева — хорошо освещенные солнцем офисы спортивных чиновников.

Комплекс Pierresvives © Hélène Binet
Комплекс Pierresvives © Hélène Binet
Общественные зоны всех трех организаций расположены на первом этаже за главным фасадом, объединенные вытянутым вестибюлем с выставочным пространством в центре. Кроме того, на втором этаже устроен общий коридор с читальными залами архива и библиотеки, туда же выходят аудитория и переговорные, помещенные в консоль над главным входом. Этот коридор выделен на фасаде утопленной полосой остекления.

Комплекс Pierresvives © Hélène Binet
Комплекс Pierresvives © Hélène Binet
Остальные пространства здания четко распределены между тремя «хозяевами», каждый из которых получил свой собственный узел вертикальных коммуникаций.

Н. Ф.
Комплекс Pierresvives © Hélène Binet
Комплекс Pierresvives © Hélène Binet
Комплекс Pierresvives © Hélène Binet
Комплекс Pierresvives © Hélène Binet
Комплекс Pierresvives © Hélène Binet
Комплекс Pierresvives © Hélène Binet
Комплекс Pierresvives © Hélène Binet
Комплекс Pierresvives © Hélène Binet
Комплекс Pierresvives © Iwan Baan
Комплекс Pierresvives © Iwan Baan
Комплекс Pierresvives © Hélène Binet
Комплекс Pierresvives © Hélène Binet
Комплекс Pierresvives © Hélène Binet
Комплекс Pierresvives © Hélène Binet
Комплекс Pierresvives © Iwan Baan
Комплекс Pierresvives © Iwan Baan
Комплекс Pierresvives © Iwan Baan
Комплекс Pierresvives © Iwan Baan
Комплекс Pierresvives © Iwan Baan
Комплекс Pierresvives © Iwan Baan
Комплекс Pierresvives © Iwan Baan
Комплекс Pierresvives © Iwan Baan
Комплекс Pierresvives © Iwan Baan
Комплекс Pierresvives © Iwan Baan
Комплекс Pierresvives © Iwan Baan
Комплекс Pierresvives © Iwan Baan
Комплекс Pierresvives © Iwan Baan
Комплекс Pierresvives © Iwan Baan
Комплекс Pierresvives © Hélène Binet
Комплекс Pierresvives © Hélène Binet
Комплекс Pierresvives © Hélène Binet
Комплекс Pierresvives © Hélène Binet
Комплекс Pierresvives © Hélène Binet
Комплекс Pierresvives © Hélène Binet
Комплекс Pierresvives © Iwan Baan
Комплекс Pierresvives © Iwan Baan
Комплекс Pierresvives © Iwan Baan
Комплекс Pierresvives © Iwan Baan
Комплекс Pierresvives © Iwan Baan
Комплекс Pierresvives © Iwan Baan
Комплекс Pierresvives © Iwan Baan
Комплекс Pierresvives © Iwan Baan
Комплекс Pierresvives © Iwan Baan
Комплекс Pierresvives © Iwan Baan
Комплекс Pierresvives © Iwan Baan
Комплекс Pierresvives © Iwan Baan
Комплекс Pierresvives © Hélène Binet
Комплекс Pierresvives © Hélène Binet
Комплекс Pierresvives. Читальный зал архива © Milena Chessa / Le Moniteur.fr
Комплекс Pierresvives. Читальный зал архива © Milena Chessa / Le Moniteur.fr
Комплекс Pierresvives © Hélène Binet
Комплекс Pierresvives © Hélène Binet
Комплекс Pierresvives в процессе строительства  © Zaha Hadid Architects
Комплекс Pierresvives в процессе строительства © Zaha Hadid Architects
Комплекс Pierresvives © Zaha Hadid Architects
Комплекс Pierresvives © Zaha Hadid Architects
Комплекс Pierresvives © Zaha Hadid Architects
Комплекс Pierresvives © Zaha Hadid Architects
Комплекс Pierresvives © Zaha Hadid Architects
Комплекс Pierresvives © Zaha Hadid Architects
Комплекс Pierresvives © Zaha Hadid Architects
Комплекс Pierresvives © Zaha Hadid Architects
Комплекс Pierresvives © Zaha Hadid Architects
Комплекс Pierresvives © Zaha Hadid Architects
Комплекс Pierresvives © Zaha Hadid Architects
Комплекс Pierresvives © Zaha Hadid Architects
Комплекс Pierresvives © Zaha Hadid Architects
Комплекс Pierresvives © Zaha Hadid Architects