Размещено на портале Архи.ру (www.archi.ru)

25.09.2012

Нетиповые метаморфозы

Татьяна Пашинцева
Объект:
Проект реновации пионерского лагеря
Адрес:
Россия, Московская область,
Архитектор:
Роман Леонидов
Мастерская:
АБ Романа Леонидова
Авторский коллектив:
Автор проекта: Роман Леонидов. Архитектор: Дмитрий Васильев

Архитектурная мастерская Романа Леонидова разрабатывает концепцию реконструкции бывшего пионерского лагеря, расположенного в Московской области. Уникальность проекта в том, что советские постройки не сносятся, а творчески переосмысливаются – архитекторы предложили сразу несколько вариантов их дальнейшего использования.

Проект реновации пионерского лагеря © Архитектурное бюро Романа Леонидова
Проект реновации пионерского лагеря © Архитектурное бюро Романа Леонидова
Пионерлагерь, о котором пойдет речь, расположен на западе Подмосковья. Это вполне типичный для своего времени объект – трехэтажные панельные корпуса построены на лесистой территории и оригинальностью архитектурного решения не блещут. Но инвестор, приобретший этот участок в собственность, изначально сделал ставку на сохранение построек – и дело здесь не только в стремлении сэкономить, но и в желании создать новый инфраструктурный объект «на стыке эпох», в облике которого бы читалось и советское происхождение, и способность к гибкой трансформации под потребности сегодняшнего дня. При этом функционал реконструируемого комплекса менялся несколько раз – фактически работа над концепцией все еще продолжается: архитекторы и застройщик сообща ищут оптимальное соотношение функции, технологии и объема осваиваемых площадей. Всего мастерской разработано восемь вариантов планировок, и в данный момент концепция развития территории бывшего пионерлагеря предусматривает создание на его месте лечебно-оздоровительного комплекса.
Генплан
Генплан

Изначально непростая задача, поставленная заказчиком, – сохранить и использовать постройки 1960-х годов, за счет нового архитектурного образа уйдя от уныния морально устаревших коробок, многократно усложнялась сопутствующими условиями. Во-первых, яркую, необычную архитектуру требовалось создать «за разумные деньги». Во-вторых, существующие легкие фундаменты не выдерживали дополнительную нагрузку. И хотя, по мнению авторов, проще и выгоднее было бы начать с чистого листа, они нашли блестящее решение этой проблемы.
Проект реновации пионерского лагеря © Архитектурное бюро Романа Леонидова
Проект реновации пионерского лагеря © Архитектурное бюро Романа Леонидова

Бетонные коробки жилых корпусов замаскированы оболочками из деревоклееных конструкций. Они используются и для облицовки фасада, и в качестве несущих элементов: стропил и колонн, выступающих за контур панельных зданий. Преимущества такого решения очевидны: деревянные клееные конструкции легки и не требуют устройства мощных фундаментов, не образуют мостиков холода на стыке с другими материалами. Важно и то, что этот экологичный материал позволяет создавать сложные скульптурные композиции, которые при всей своей выразительности не сильно бьют по бюджету.
Проект реновации пионерского лагеря © Архитектурное бюро Романа Леонидова
Проект реновации пионерского лагеря © Архитектурное бюро Романа Леонидова

Всего архитекторам предстояло реконструировать 5 корпусов, три из которых сблокированы «лесенкой», а еще два расположены под углом 90 градусов к ним. Дабы не тратиться на оформление каждой «коробки» по отдельности, Роман Леонидов объединяет строения: он рисует на генплане большой треугольник, в который вписывает все пять объемов, каждый из которых одевает в «камуфляж» из дерева, а пространство между корпусами заполняет элементами ландшафтного дизайна. Многоуровневое озеленение и разнообразие новой «кожи» кардинально меняют облик бывшего пионерлагеря – теперь это не пять бетонных параллелепипедов, а динамичная и живописная композиция. Где-то ключевым элементом фасада становится эффектная кровля с перголой, где-то широкие горизонтальные ленты, прошитые наклонными балками прямоугольного сечения.
Проект реновации пионерского лагеря © Архитектурное бюро Романа Леонидова
Проект реновации пионерского лагеря © Архитектурное бюро Романа Леонидова

Композиционным ядром комплекса становится круглый заглубленный амфитеатр, вокруг которого выстраивается строгая ортогональная система спальных корпусов и связывающих их галерей. Амфитеатр предназначен для проведения различных развлекательных мероприятий на открытом воздухе. А галереи обеспечивают обитателям каждого корпуса доступ ко всем помещениям лечебно-оздоровительного комплекса. Теперь, не выходя на улицу, отдыхающие могут пройти в столовую, в спортзал, в рекреационные, лечебные и общественные зоны. Помимо этого, в состав комплекса планируется включить различные мастерские – керамическую, гончарную, деревообрабатывающую,– предназначенные для трудовой и творческой терапии. Архитекторы активно задействовали и плоские кровли, которые будут использоваться для обустройства соляриев, кафе и рекреационных зон.
Проект реновации пионерского лагеря © Архитектурное бюро Романа Леонидова
Проект реновации пионерского лагеря © Архитектурное бюро Романа Леонидова

Авторы максимально полно используют прилегающую к жилым корпусам территорию. В номерах, расположенных на первом этаже, есть собственные патио, выходящие в парк и на площадку для мини-гольфа. Жилые и общественные помещения имеют большую площадь остекления и обращены к пейзажному парку на северо-западе территории и на регулярному парку с цветниками, дорожками и прудами, расположенному на юго-востоке. Таким образом, ландшафтный дизайн участка продолжает заданную тему объемно-пространственного решения комплекса: строгая геометрия в органичном сочетании с природным хаосом. Эту идею подчеркивает выбор строительных и фасадных материалов – индустриальные клееные конструкции, металл и стекло соседствуют с необработанным камнем, деревом и фактурными штукатурками. Архитекторы смогли реализовать главное пожелание заказчика – при взгляде на комплекс никто и не заподозрит, что когда-то это был заурядный типовой объект. Кроме того, благодаря предложенному планировочному решению заметно выросла полезная площадь комплекса, а значит, и требование по экономичности проекта команда Романа Леонидова смогла выполнить сполна.
Проект реновации пионерского лагеря © Архитектурное бюро Романа Леонидова
Проект реновации пионерского лагеря © Архитектурное бюро Романа Леонидова
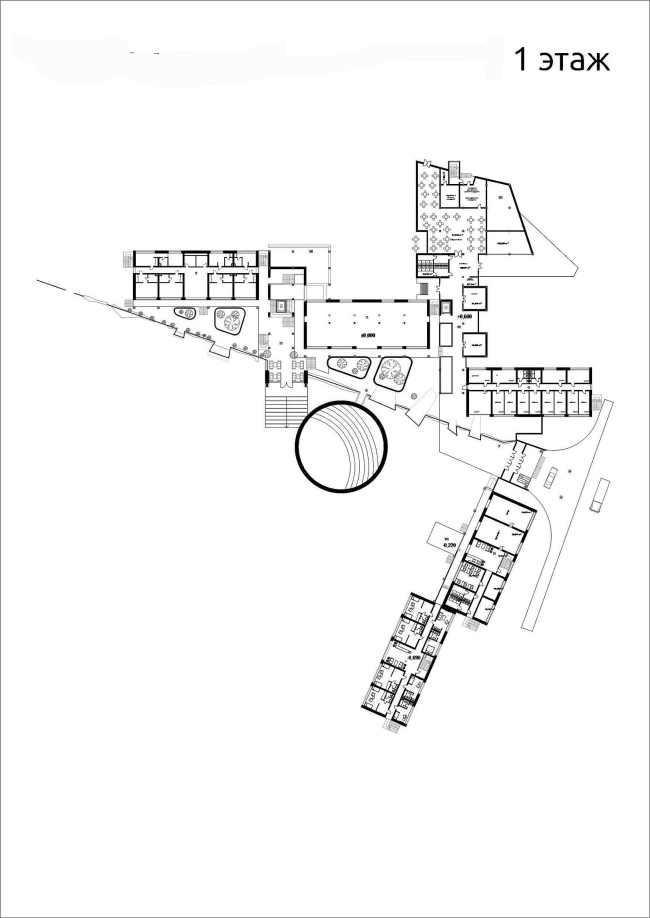
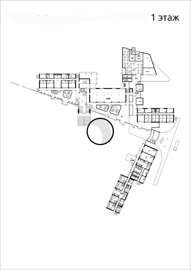
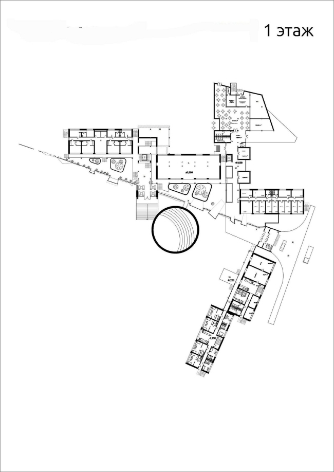
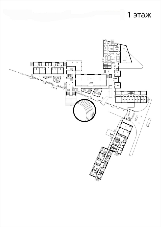
План первого этажа
План первого этажа
План второго этажа
План второго этажа
План третьего этажа
План третьего этажа