Размещено на портале Архи.ру (www.archi.ru)

17.09.2012

Пара на перекрестке

Анна Мартовицкая
Объект:
ЖК «Эгодом»
Адрес:
Россия, Москва. Новоалексеевская улица, 22А
Архитектор:
Сергей Скуратов
Мастерская:
АО «Фирма «КИРИЛЛ»
Сергей Скуратов ARCHITECTS
Авторский коллектив:
С.А. Скуратов (руководитель авторского коллектива), Н.А. Демидов (главный архитектор проекта), Н.А. Гай, Д.М. Голышенкова, И.Ю. Ильин, В.А. Обвинцев, при участии: А. Алендеев, С. Безверхий, О. Васюкова, А. Чалов 

На Новоалексеевской улице в Москве по проекту Сергея Скуратова будет построен жилой комплекс, в состав которого войдут два кирпичных дома и заглубленный внутренний двор.

Предпроектное предложение строительства жилого комплекса на Новоалексеевской улице в Москве © Сергей Скуратов ARCHITECTS
Предпроектное предложение строительства жилого комплекса на Новоалексеевской улице в Москве © Сергей Скуратов ARCHITECTS

Участок на Новоалексеевской улице как будто с самого начала был придуман именно для Сергея Скуратова. Расположенный на перекрестке, где сходятся улицы Новоалексеевская, Маломосковская и Павла Корчагина, он имеет форму сложного многоугольника, вписанного в разномастную существующую застройку. Последняя не стоила бы подробного описания, если бы не два исторических здания– сиротский приют имени братьев Бахрушиных и Алексеевская насосная станция. Оба этих объекта построены из красного кирпича, прекрасно сохранились и не просто заметно выделяются на фоне безликого позднесоветского района, но служат едва ли не единственным его украшением. Комплекс, который предполагается построить между ними, так и просится на роль некоей смысловой и материальной перемычки – и кто лучше Сергея Скуратова с его неукротимой страстью к кирпичу мог решить эту задачу?
Предпроектное предложение строительства жилого комплекса на Новоалексеевской улице в Москве. Ситуационный план © Сергей Скуратов ARCHITECTS
Предпроектное предложение строительства жилого комплекса на Новоалексеевской улице в Москве. Ситуационный план © Сергей Скуратов ARCHITECTS

Сделав, что называется, «на берегу» выбор в пользу кирпича, архитектор до начала детальной разработки проекта принял еще два принципиальных решения. Во-первых, была спрямлена юго-восточная граница участка на стыке с исторически сложившейся промзоной, что превратило участок в более удобный для осмысления треугольник. Во-вторых, Скуратов сделал ставку на проектирование высотной доминанты, чрезвычайно актуальной для данного места. Дело в том, что на противоположной стороне улицы расположено высокое модернистское здание Главтранспроекта, через переулок – типовая жилая башня, а сам перекресток при этом ощутимо «проседает». Архитектор хотел поддержать «пульс» панорамы и при этом не громоздить вертикали вплотную, поэтому нашел безошибочную комбинацию – новые дома Скуратов располагает по тем двум сторонам треугольника, которые более удалены от жилой башни. От высотки Главтранспроекта проектируемые башни также отвернуты – вертикали, таким образом, хоть и перекликаются, но не вступают в прямой диалог: не учесть высотку совсем архитектор не мог, но принимать за ориентир довольно заурядное и типичное для своего времени здание тоже не хотел.
Предпроектное предложение строительства жилого комплекса на Новоалексеевской улице в Москве © Сергей Скуратов ARCHITECTS
Предпроектное предложение строительства жилого комплекса на Новоалексеевской улице в Москве © Сергей Скуратов ARCHITECTS

Композиционно комплекс состоит из двух зданий, размещенных на едином двухуровневом стилобате. Объемы имеют одинаковую ширину, но кардинально отличаются друг от друга по длине и высоте. Корпус «А» имеет 15 жилых этажей и два этажа помещений общественного назначения, корпус «Б» почти в два раза ниже: в нем всего 8 жилых этажей и два общественных, – и при этом гораздо длиннее. Иными словами, Сергей Скуратов вновь возвращается к своей любимой комбинации «башня – пластина», хорошо знакомой по «Дому на Мосфильмовской» и, например, проекту для Ростова-на-Дону. Правда, если там небоскреб и параллелепипед вступают между собой в активное взаимодействие, то на Новоалексеевской здания расположены строго параллельно друг другу и реагируют, скорее, на коллизии окружающего пространства, чем друг на друга.
Предпроектное предложение строительства жилого комплекса на Новоалексеевской улице в Москве © Сергей Скуратов ARCHITECTS
Предпроектное предложение строительства жилого комплекса на Новоалексеевской улице в Москве © Сергей Скуратов ARCHITECTS

Так, например, со стороны перекрестка жилой комплекс выглядит как две узкие башни, расположенные на едином основании и имеющие почти одинаковые фасады, рисунок которых складывается из чередования высоких узких окон и таких же глухих вдавленных ячеек. И если раньше над местом пересечения нескольких улиц довлела, пусть и слегка со стороны, высотка Главтранспроекта, сверху донизу прошитая одинаковыми вертикальными стежками окон, то теперь два новых объема с также модернистскими, но куда более тонко и разнообразно проработанными фасадами словно заставляют ее отступить. Эту градостроительную ситуацию можно сравнить со сценой, по которой бродит луч софита – еще недавно он выхватывал из темноты лишь пустоту, теперь же в центре внимания две фактурных и очень сочных, благодаря выбранному материалу, вертикали.
Предпроектное предложение строительства жилого комплекса на Новоалексеевской улице в Москве © Сергей Скуратов ARCHITECTS
Предпроектное предложение строительства жилого комплекса на Новоалексеевской улице в Москве © Сергей Скуратов ARCHITECTS

Интересно, что башни при этом расположены не на одной прямой: более высокий объем Скуратов выдвигает ближе к перекрестку, заставляя его активно реагировать на дорожно-транспортную ситуацию. Эта башня по вертикали рассечена на две почти равные половины, – верхние этажи отделены от нижних прозрачным поясом, – и свою «голову» она поворачивает вправо, в плане следуя трассировке ближайшего к участку 1-го Рижского переулка. Второй объем также не остается безучастным, но его пластика уже не столь активна: на обращенном к перекрестку фасаде можно заметить характерную «вмятину», но на литой кирпичной плоскости она не так бросается в глаза. «Эти два объема мы трактовали как устойчивую пару, – поясняет свой замысел Сергей Скуратов. – Первый, более высокий, объем выдвинут вперед – он несомненный лидер, динамичный и эмоциональный. Его форма почти атакует и активно реагирует на коллизии окружающего пространства. Другой, более низкий и продолговатый, решен спокойнее и сдержаннее. Коллизии проникают и в него, но они, в отличие от первого объема, скорее деформируют его структуру, чем провоцируют на активность».
Предпроектное предложение строительства жилого комплекса на Новоалексеевской улице в Москве © Сергей Скуратов ARCHITECTS
Предпроектное предложение строительства жилого комплекса на Новоалексеевской улице в Москве © Сергей Скуратов ARCHITECTS

Стилобат, занимающий практически всю площадь участка, Сергей Скуратов предсказуемо использует для организации внутреннего двора. Однако архитектор сознательно уходит от стереотипного решения в виде озелененной эксплуатируемой кровли, считая, что в условиях мегаполиса оно не способно обеспечить жителям должный уровень комфорта и защищенности, и заглубляет двор более чем на три метра, ограждая его по периметру кирпичной стеной. За счет переменной высоты и наличия сквозных проемов последняя не производит впечатления крепостной, но четко зонирует пространство внутреннего двора, отделяя его и от общегородского сквера, и от въезда в подземный паркинг. Стремясь максимально разнообразить облик двора, Скуратов насыщает его самыми разными функциями – здесь есть и газоны, и детская площадка с ротондой и зеленым холмом, и мост-навес, соединяющий два корпуса и обеспечивающий комфортный доступ к входным вестибюлям из автомашин во время дождя. Кстати, о вестибюлях: заглубив двор, архитектор смог спроектировать с его стороны двухсветные входные пространства высотой аж 8,4 метра. Колоссальные вестибюли имеют полностью остекленные стены, благодаря чему грань между внешним и внутренним практически стирается, а ощущение искусно сконструированной среды, в которой современная архитектура органично сочетается с природой, наоборот, становится доминирующим.
Предпроектное предложение строительства жилого комплекса на Новоалексеевской улице в Москве © Сергей Скуратов ARCHITECTS
Предпроектное предложение строительства жилого комплекса на Новоалексеевской улице в Москве © Сергей Скуратов ARCHITECTS

По признанию самого Скуратова, при проектировании жилого комплекса на Новоалексеевской улице он постарался учесть все обычные недостатки элитного жилья в центре города – здесь и двор больше, и вестибюли масштабнее и светлее, достаточно парковок и помещений для хранения личных вещей. Удаленность от центра архитектор компенсировал удобством планировок и выразительным обликом зданий, кирпичные фасады которых увязывают новые объемы с ближайшим окружением. Математически выверенные строгие фасады и пусть и не сплошной, но все же забор наталкивают на мысль, что у Скуратова получился еще один форт, надежно защищающий своих жильцов от суеты мегаполиса. Да, эта крепость расположена далековато от центра, но зато близко от метро, Третьего транспортного кольца и парка «Сокольники» – и в масштабах разросшейся Москвы это, возможно, даже более выгодное и удобное предложение.
Предпроектное предложение строительства жилого комплекса на Новоалексеевской улице в Москве © Сергей Скуратов ARCHITECTS
Предпроектное предложение строительства жилого комплекса на Новоалексеевской улице в Москве © Сергей Скуратов ARCHITECTS
Предпроектное предложение строительства жилого комплекса на Новоалексеевской улице в Москве © Сергей Скуратов ARCHITECTS
Предпроектное предложение строительства жилого комплекса на Новоалексеевской улице в Москве © Сергей Скуратов ARCHITECTS
Предпроектное предложение строительства жилого комплекса на Новоалексеевской улице в Москве © Сергей Скуратов ARCHITECTS
Предпроектное предложение строительства жилого комплекса на Новоалексеевской улице в Москве © Сергей Скуратов ARCHITECTS
Предпроектное предложение строительства жилого комплекса на Новоалексеевской улице в Москве © Сергей Скуратов ARCHITECTS
Предпроектное предложение строительства жилого комплекса на Новоалексеевской улице в Москве © Сергей Скуратов ARCHITECTS
Предпроектное предложение строительства жилого комплекса на Новоалексеевской улице в Москве © Сергей Скуратов ARCHITECTS
Предпроектное предложение строительства жилого комплекса на Новоалексеевской улице в Москве © Сергей Скуратов ARCHITECTS
Предпроектное предложение строительства жилого комплекса на Новоалексеевской улице в Москве © Сергей Скуратов ARCHITECTS
Предпроектное предложение строительства жилого комплекса на Новоалексеевской улице в Москве © Сергей Скуратов ARCHITECTS
Предпроектное предложение строительства жилого комплекса на Новоалексеевской улице в Москве © Сергей Скуратов ARCHITECTS
Предпроектное предложение строительства жилого комплекса на Новоалексеевской улице в Москве © Сергей Скуратов ARCHITECTS
Предпроектное предложение строительства жилого комплекса на Новоалексеевской улице в Москве © Сергей Скуратов ARCHITECTS
Предпроектное предложение строительства жилого комплекса на Новоалексеевской улице в Москве © Сергей Скуратов ARCHITECTS
Предпроектное предложение строительства жилого комплекса на Новоалексеевской улице в Москве. Генеральный план © Сергей Скуратов ARCHITECTS
Предпроектное предложение строительства жилого комплекса на Новоалексеевской улице в Москве. Генеральный план © Сергей Скуратов ARCHITECTS
Предпроектное предложение строительства жилого комплекса на Новоалексеевской улице в Москве. Пешеходно-транспортная схема © Сергей Скуратов ARCHITECTS
Предпроектное предложение строительства жилого комплекса на Новоалексеевской улице в Москве. Пешеходно-транспортная схема © Сергей Скуратов ARCHITECTS
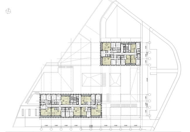
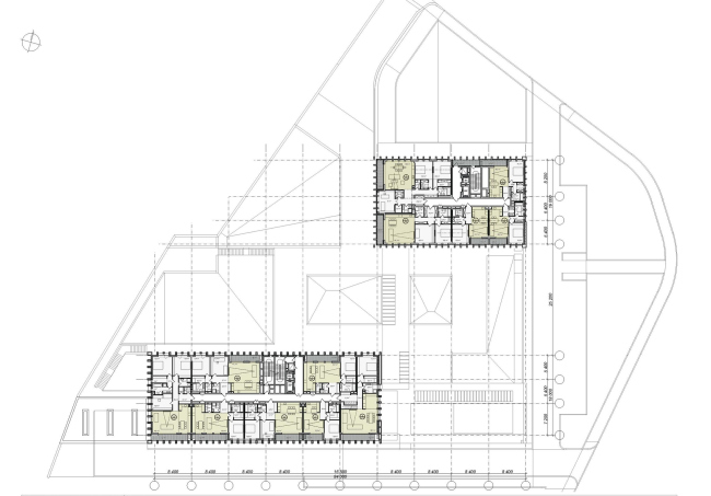
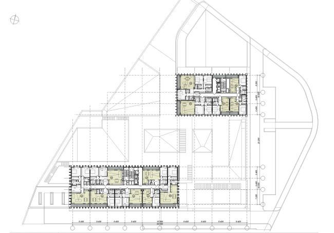
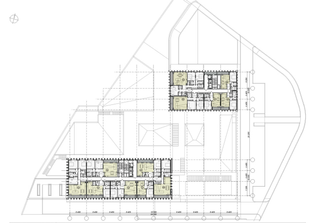
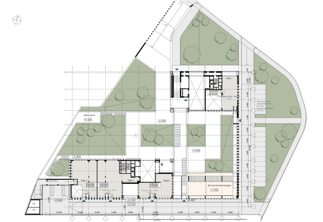
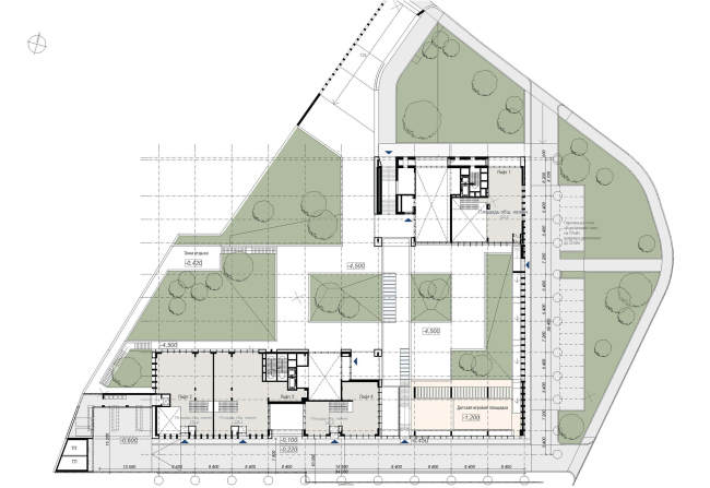
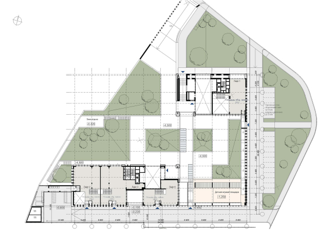
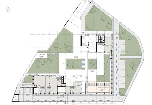
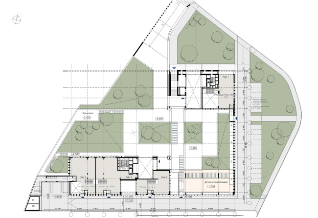
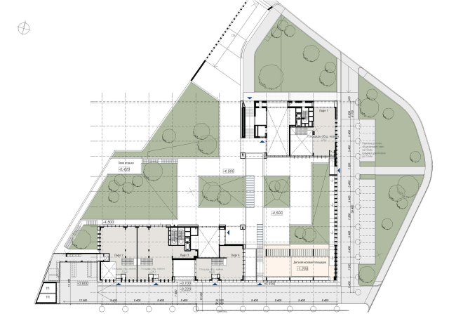
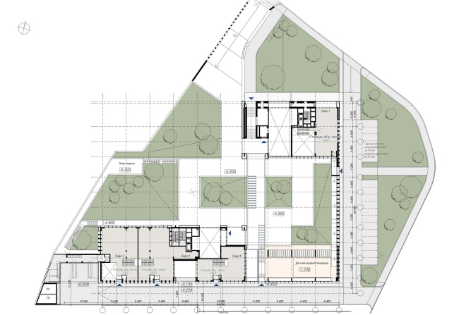
Предпроектное предложение строительства жилого комплекса на Новоалексеевской улице в Москве. План 1 этажа © Сергей Скуратов ARCHITECTS
Предпроектное предложение строительства жилого комплекса на Новоалексеевской улице в Москве. План 1 этажа © Сергей Скуратов ARCHITECTS
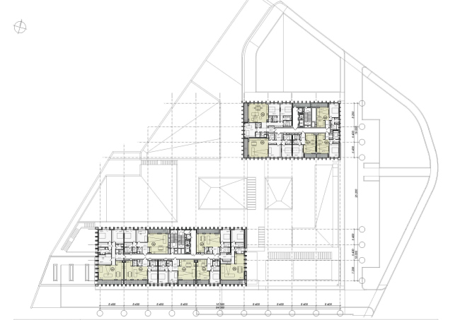
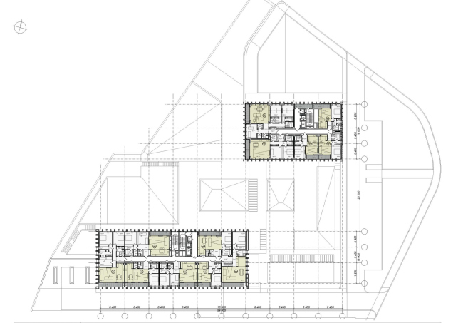
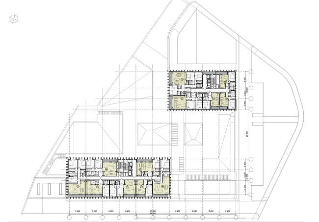
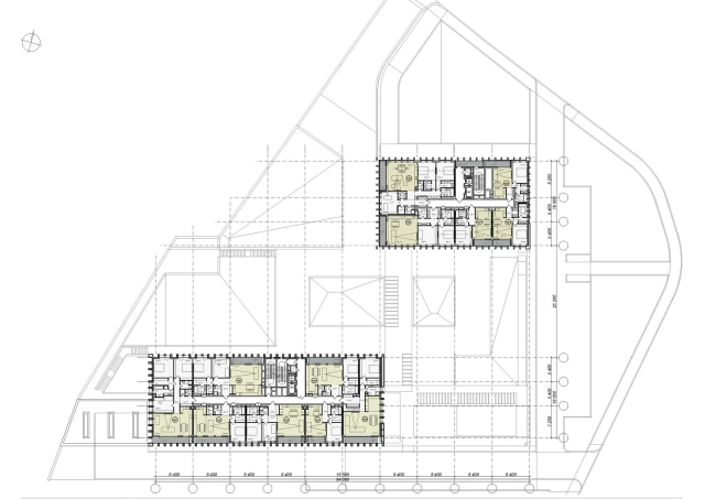
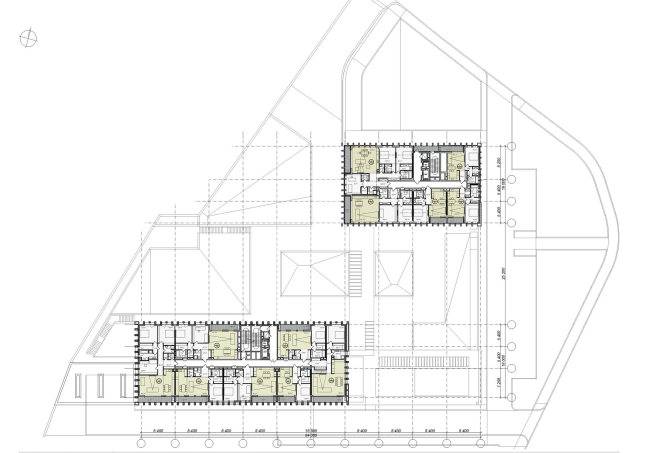
Предпроектное предложение строительства жилого комплекса на Новоалексеевской улице в Москве. План 2 этажа © Сергей Скуратов ARCHITECTS
Предпроектное предложение строительства жилого комплекса на Новоалексеевской улице в Москве. План 2 этажа © Сергей Скуратов ARCHITECTS
Предпроектное предложение строительства жилого комплекса на Новоалексеевской улице в Москве. Северо-восточный фасад © Сергей Скуратов ARCHITECTS
Предпроектное предложение строительства жилого комплекса на Новоалексеевской улице в Москве. Северо-восточный фасад © Сергей Скуратов ARCHITECTS
Предпроектное предложение строительства жилого комплекса на Новоалексеевской улице в Москве. Северо-западный фасад © Сергей Скуратов ARCHITECTS
Предпроектное предложение строительства жилого комплекса на Новоалексеевской улице в Москве. Северо-западный фасад © Сергей Скуратов ARCHITECTS
Предпроектное предложение строительства жилого комплекса на Новоалексеевской улице в Москве. Юго-восточный фасад © Сергей Скуратов ARCHITECTS
Предпроектное предложение строительства жилого комплекса на Новоалексеевской улице в Москве. Юго-восточный фасад © Сергей Скуратов ARCHITECTS
Предпроектное предложение строительства жилого комплекса на Новоалексеевской улице в Москве. Юго-восточный фасад © Сергей Скуратов ARCHITECTS
Предпроектное предложение строительства жилого комплекса на Новоалексеевской улице в Москве. Юго-восточный фасад © Сергей Скуратов ARCHITECTS
Предпроектное предложение строительства жилого комплекса на Новоалексеевской улице в Москве © Сергей Скуратов ARCHITECTS
Предпроектное предложение строительства жилого комплекса на Новоалексеевской улице в Москве © Сергей Скуратов ARCHITECTS
Предпроектное предложение строительства жилого комплекса на Новоалексеевской улице в Москве © Сергей Скуратов ARCHITECTS
Предпроектное предложение строительства жилого комплекса на Новоалексеевской улице в Москве © Сергей Скуратов ARCHITECTS
Предпроектное предложение строительства жилого комплекса на Новоалексеевской улице в Москве © Сергей Скуратов ARCHITECTS
Предпроектное предложение строительства жилого комплекса на Новоалексеевской улице в Москве © Сергей Скуратов ARCHITECTS
Предпроектное предложение строительства жилого комплекса на Новоалексеевской улице в Москве © Сергей Скуратов ARCHITECTS
Предпроектное предложение строительства жилого комплекса на Новоалексеевской улице в Москве © Сергей Скуратов ARCHITECTS
Предпроектное предложение строительства жилого комплекса на Новоалексеевской улице в Москве © Сергей Скуратов ARCHITECTS
Предпроектное предложение строительства жилого комплекса на Новоалексеевской улице в Москве © Сергей Скуратов ARCHITECTS
Предпроектное предложение строительства жилого комплекса на Новоалексеевской улице в Москве. Фасады © Сергей Скуратов ARCHITECTS
Предпроектное предложение строительства жилого комплекса на Новоалексеевской улице в Москве. Фасады © Сергей Скуратов ARCHITECTS
Предпроектное предложение строительства жилого комплекса на Новоалексеевской улице в Москве. Фотография макета © Сергей Скуратов ARCHITECTS
Предпроектное предложение строительства жилого комплекса на Новоалексеевской улице в Москве. Фотография макета © Сергей Скуратов ARCHITECTS