Размещено на портале Архи.ру (www.archi.ru)

04.09.2012

Казарма для студентов

Объект:
Главный корпус Технического университета Гамбург - Гарбург
Адрес:
Германия, None, Гамбург.
Мастерская:
gmp

В Гамбурге открылся главный корпус Технического университета, спроектированный бюро gmp.

Главный корпус Технического университета Гамбург - Гарбург © Heiner Leiska
Главный корпус Технического университета Гамбург - Гарбург © Heiner Leiska
Основой для нового сооружения послужило историческое кирпичное здание казармы Шварценберг. Эта монументальная постройка предваряет кампус из 14 корпусов, принадлежащий техническому университету Гамбург-Гарбург, одному из самых «молодых» в Германии: он был основан в 1980.
Главный корпус Технического университета Гамбург - Гарбург © Heiner Leiska
Главный корпус Технического университета Гамбург - Гарбург © Heiner Leiska

В новом главном здании вуза, где учатся 5000 студентов и работают 1150 преподавателей и исследователей, расположились помещения администрации, лекционные и семинарские аудитории, а также центр знаний и коммуникаций, открытый для учащихся 24 часа в сутки (речь идет о современном аналоге библиотеки).
Главный корпус Технического университета Гамбург - Гарбург © Heiner Leiska
Главный корпус Технического университета Гамбург - Гарбург © Heiner Leiska

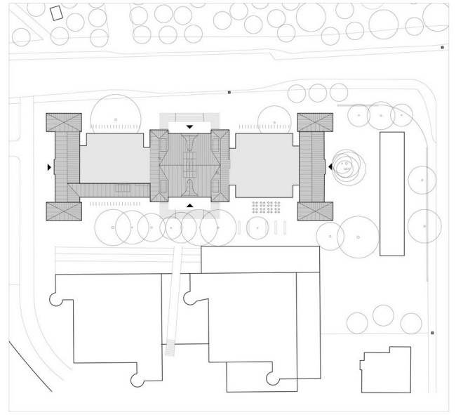
Казармы в своей основе имеют классическую палладианскую композицию с тремя ризалитами. На месте соединяющих их крыльев, сильно пострадавших во время Второй мировой войны, появились стеклянные кубы новых помещений. Исторические части, имеющие статус памятника, сохранили свою структуру — за исключением центрального объема, где устроили атриум в высоту трех этажей, а входы сделали в виде огромных остекленных арок.
Главный корпус Технического университета Гамбург - Гарбург © Heiner Leiska
Главный корпус Технического университета Гамбург - Гарбург © Heiner Leiska

Стеклянные фасады новых частей постройки закрыты алюминиевыми трубками и тросами из нержавеющей стали, закрепленными на горизонтальных балках с П-образным сечением. Вместе они образуют столь популярный в современной архитектуре мотив кода: в данном случае вертикальные линии передают на азбуке Морзе название вуза — Technische Universität Hamburg-Harburg.

Н. Ф.
Главный корпус Технического университета Гамбург - Гарбург © Heiner Leiska
Главный корпус Технического университета Гамбург - Гарбург © Heiner Leiska
Главный корпус Технического университета Гамбург - Гарбург © Heiner Leiska
Главный корпус Технического университета Гамбург - Гарбург © Heiner Leiska
Главный корпус Технического университета Гамбург - Гарбург © Heiner Leiska
Главный корпус Технического университета Гамбург - Гарбург © Heiner Leiska
Главный корпус Технического университета Гамбург - Гарбург © Heiner Leiska
Главный корпус Технического университета Гамбург - Гарбург © Heiner Leiska
Главный корпус Технического университета Гамбург - Гарбург © Heiner Leiska
Главный корпус Технического университета Гамбург - Гарбург © Heiner Leiska
Главный корпус Технического университета Гамбург - Гарбург © Heiner Leiska
Главный корпус Технического университета Гамбург - Гарбург © Heiner Leiska
Главный корпус Технического университета Гамбург - Гарбург. План 1-го этажа © gmp
Главный корпус Технического университета Гамбург - Гарбург. План 1-го этажа © gmp
Главный корпус Технического университета Гамбург - Гарбург. Ситуационный план © gmp
Главный корпус Технического университета Гамбург - Гарбург. Ситуационный план © gmp