Размещено на портале Архи.ру (www.archi.ru)

03.09.2012

Здание, заполняющее пустоты

Нина Фролова
Объект:
Музей естественной истории - новое здание
Адрес:
Дания, None, Копенгаген.
Мастерская:
BIG
Lundgaard & Tranberg
Snøhetta

В Копенгагене завершился конкурс на проект нового здания Музея естественной истории. Из внушительного списка финалистов жюри выбрало вариант бюро Lundgaard & Tranberg и архитектора Клауса Прюдса (Claus Pryds).

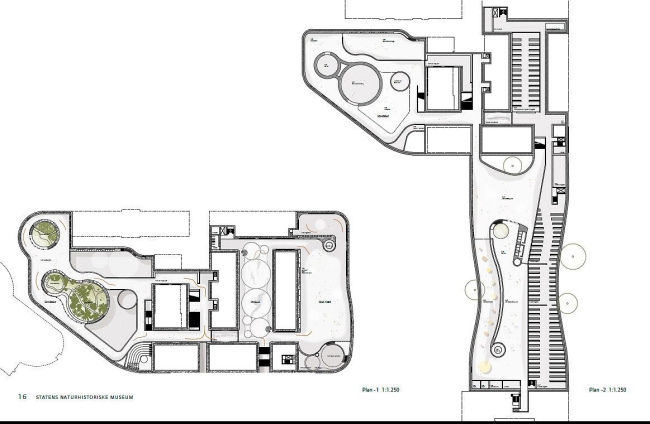
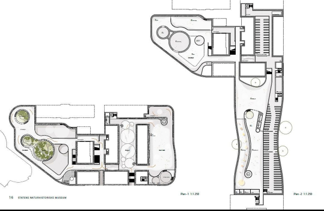
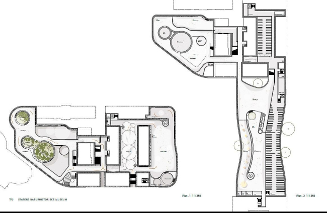
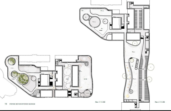
Музей естественной истории - новое здание © Lundgaard & Tranberg Arkitekter
Музей естественной истории - новое здание © Lundgaard & Tranberg Arkitekter
Кроме победителей, в финал вышли Дэвид Чипперфильд, Кенго Кума, BIG, «Снохетта» и Стивен Холл. Заданием было встроить музей в пространство ботанического сада в центре датской столицы.

Музей естественной истории - новое здание © Lundgaard & Tranberg Arkitekter
Музей естественной истории - новое здание © Lundgaard & Tranberg Arkitekter
Музей естественной истории - новое здание © Lundgaard & Tranberg Arkitekter
Музей естественной истории - новое здание © Lundgaard & Tranberg Arkitekter
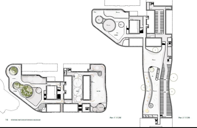
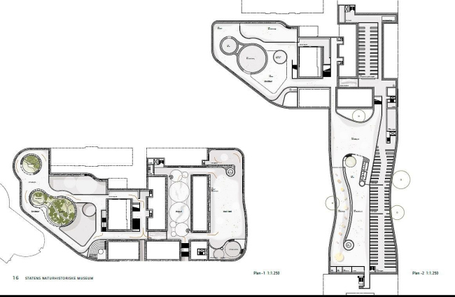
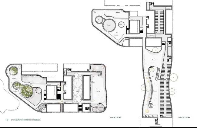
При этом большая часть площадей должна располагаться под землей, огибая корни старых деревьев, а снаружи – многочисленные исторические постройки сада – хозяйственные и административные корпуса, теплицы.

Музей естественной истории - новое здание © Lundgaard & Tranberg Arkitekter
Музей естественной истории - новое здание © Lundgaard & Tranberg Arkitekter
Музей естественной истории - новое здание. Фото с сайта byensojne.com
Музей естественной истории - новое здание. Фото с сайта byensojne.com
Главным помещением музея станет Зал китов со скелетом синего кита – самого крупного животного на Земле. Его полупрозрачный фасад будет виден с улицы из-за привратного корпуса конца 19 в., и в темное время суток прохожие смогут полюбоваться на огромный экспонат внутри.

Музей естественной истории - новое здание © Lundgaard & Tranberg Arkitekter
Музей естественной истории - новое здание © Lundgaard & Tranberg Arkitekter
Музей естественной истории - новое здание © Lundgaard & Tranberg Arkitekter
Музей естественной истории - новое здание © Lundgaard & Tranberg Arkitekter
Также запланирован открытый для всех проход сквозь музей и территорию ботанического сада, который позволит сократить путь пешеходам.

Музей естественной истории - новое здание © Lundgaard & Tranberg Arkitekter
Музей естественной истории - новое здание © Lundgaard & Tranberg Arkitekter
Конкурсный проект бюро «Снохетта»
Конкурсный проект бюро «Снохетта»
Строительство запланировано на 2013–2017 годы, бюджет проекта составит 1,1 млрд датских крон (147,6 млн евро).
Конкурсный проект бюро «Снохетта»
Конкурсный проект бюро «Снохетта»
Конкурсный проект бюро «Снохетта»
Конкурсный проект бюро «Снохетта»
Конкурсный проект Дэвида Чипперфильда
Конкурсный проект Дэвида Чипперфильда
Конкурсный проект Кенго Кумы
Конкурсный проект Кенго Кумы
Конкурсный проект Кенго Кумы
Конкурсный проект Кенго Кумы
Конкурсный проект Кенго Кумы
Конкурсный проект Кенго Кумы
Конкурсный проект бюро BIG
Конкурсный проект бюро BIG
Конкурсный проект бюро BIG
Конкурсный проект бюро BIG
Конкурсный проект бюро BIG
Конкурсный проект бюро BIG
Конкурсный проект Стивена Холла
Конкурсный проект Стивена Холла
Конкурсный проект Стивена Холла
Конкурсный проект Стивена Холла
Конкурсный проект Стивена Холла
Конкурсный проект Стивена Холла