Размещено на портале Архи.ру (www.archi.ru)

24.08.2012

Бронзовая оправа для собора

Анна Мартовицкая
Объект:
Общественный центр Кафедрального собора Лунда
Адрес:
Швеция, None, Лунд.

В шведском Лунде по проекту архитектора Кармен Искьердо построен новый общественный центр Кафедрального собора.

Общественный центр Кафедрального собора Лунда © Åke E:son Lindman
Общественный центр Кафедрального собора Лунда © Åke E:son Lindman
Новый общественный центр предназначен как для прихожан собора, так и для многочисленных туристов, приезжающих в Лунд специально для того, чтобы полюбоваться этим величественным средневековым сооружением. Именно поэтому в построенном здании есть и актовый зал для проведения разного рода встреч, и книжный магазин, и кафе, и универсальное пространство, в котором можно разместить постоянные и временные экспозиции, посвященные истории некогда главного собора Дании и всей Скандинавии (до того, как город перешел Швеции): там располагалась единственная в регионе кафедра архиепископа.
Общественный центр Кафедрального собора Лунда © Åke E:son Lindman
Общественный центр Кафедрального собора Лунда © Åke E:son Lindman

Общественный центр построен прямо напротив собора, на другой стороне его площади, в квартале, расположенном между двумя главными улицами Лунда – Kyrkogatan и Kungsgatan. Самое «молодое» здание здесь датируется XVIII веком и, естественно, охраняется государством как памятник архитектуры, поэтому на архитектора была возложена большая ответственность – спроектировать комплекс, который бы максимально деликатно контактировал со своим окружением и при этом был бы очевидно современной постройкой.
Общественный центр Кафедрального собора Лунда © Åke E:son Lindman
Общественный центр Кафедрального собора Лунда © Åke E:son Lindman

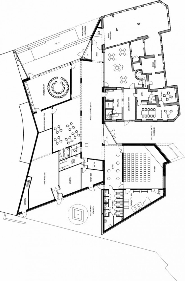
Решая эту непростую задачу, Кармен Искьердо отталкивалась, прежде всего, от плана отведенного под строительство центра участка. Крохотное пятно застройки в центре старинного квартала имело очертания сложного многоугольника, и именно такую геометрию приобрели фасады и кровля комплекса.
Общественный центр Кафедрального собора Лунда © Åke E:son Lindman
Общественный центр Кафедрального собора Лунда © Åke E:son Lindman

Часть здания и вовсе представляет собой телескопически выдвинутую консоль – ориентированная строго на собор, она служит своего рода трапом, с которого открывается идеальный вид на достопримечательность. Снаружи же это большое квадратное окно работает как своего рода «телевизор», в котором отражается тот же собор.
Общественный центр Кафедрального собора Лунда © Åke E:son Lindman
Общественный центр Кафедрального собора Лунда © Åke E:son Lindman

Попасть в здание можно как с площади, так и с обеих улиц – все три входа ведут в просторный двухсветный атриум, в котором расположены кафе, зона портье и стойки с информационными материалами о соборе. Здесь же будут проводиться выставки. Еще одно идеально подходящее для этого пространство – внутренний дворик, возникший на стыке новостройки и здания-памятника.
Общественный центр Кафедрального собора Лунда © Åke E:son Lindman
Общественный центр Кафедрального собора Лунда © Åke E:son Lindman

Для облицовки фасадов общественного центра архитектор выбрала панели, на которые нанесен латунный сплав. Только что построенный комплекс кажется позолоченным, но со временем изначальный тон латунного покрытия под воздействием дождя и ветра приобретет более сложный и самобытный оттенок, бронзовая матовость которого будет как нельзя лучше сочетаться с брутальной архитектурой ближайшего окружения. А вот в отделке интерьеров преобладает бетон, аскетизм которого лишь кое-где смягчают деревянные панели. По замыслу архитектора, подобный лаконизм оформления внутренних пространств не будет отвлекать посетителей от главного героя этого проекта – кафедрального собора.
Общественный центр Кафедрального собора Лунда © Åke E:son Lindman
Общественный центр Кафедрального собора Лунда © Åke E:son Lindman
Общественный центр Кафедрального собора Лунда © Åke E:son Lindman
Общественный центр Кафедрального собора Лунда © Åke E:son Lindman
Общественный центр Кафедрального собора Лунда © Åke E:son Lindman
Общественный центр Кафедрального собора Лунда © Åke E:son Lindman
Общественный центр Кафедрального собора Лунда © Åke E:son Lindman
Общественный центр Кафедрального собора Лунда © Åke E:son Lindman
Общественный центр Кафедрального собора Лунда © Åke E:son Lindman
Общественный центр Кафедрального собора Лунда © Åke E:son Lindman
Общественный центр Кафедрального собора Лунда © Åke E:son Lindman
Общественный центр Кафедрального собора Лунда © Åke E:son Lindman
Общественный центр Кафедрального собора Лунда © Åke E:son Lindman
Общественный центр Кафедрального собора Лунда © Åke E:son Lindman
Общественный центр Кафедрального собора Лунда © Åke E:son Lindman
Общественный центр Кафедрального собора Лунда © Åke E:son Lindman
Общественный центр Кафедрального собора Лунда © Åke E:son Lindman
Общественный центр Кафедрального собора Лунда © Åke E:son Lindman
Общественный центр Кафедрального собора Лунда © Åke E:son Lindman
Общественный центр Кафедрального собора Лунда © Åke E:son Lindman
Общественный центр Кафедрального собора Лунда © Åke E:son Lindman
Общественный центр Кафедрального собора Лунда © Åke E:son Lindman
Общественный центр Кафедрального собора Лунда © Åke E:son Lindman
Общественный центр Кафедрального собора Лунда © Åke E:son Lindman
Общественный центр Кафедрального собора Лунда © Åke E:son Lindman
Общественный центр Кафедрального собора Лунда © Åke E:son Lindman
Общественный центр Кафедрального собора Лунда © Åke E:son Lindman
Общественный центр Кафедрального собора Лунда © Åke E:son Lindman
Общественный центр Кафедрального собора Лунда
Общественный центр Кафедрального собора Лунда
Общественный центр Кафедрального собора Лунда
Общественный центр Кафедрального собора Лунда
Общественный центр Кафедрального собора Лунда
Общественный центр Кафедрального собора Лунда
Общественный центр Кафедрального собора Лунда
Общественный центр Кафедрального собора Лунда
Общественный центр Кафедрального собора Лунда
Общественный центр Кафедрального собора Лунда