Размещено на портале Архи.ру (www.archi.ru)

15.08.2012

Вариативность для будущего

Объект:
Офисное здание D38
Адрес:
Испания, None, Барселона.
Мастерская:
FOA - Foreign Office Architects

Арата Исодзаки спроектировал офисное здание на окраине Барселоны.

Офисное здание D38 © Filippo Poli
Офисное здание D38 © Filippo Poli
Это первое здание в офис-парке «Округ 38», генплан которого Исодзаки разработал вместе с бюро FOA; на участке в 35 тыс. м2 будет построено 70 тыс. м2. Он находится у подножия горы Монжуик, к западу от центра Барселоны, в бывшей промзоне Зона-Франка.

Офисное здание D38 © Filippo Poli
Офисное здание D38 © Filippo Poli
Сейчас вся эта территория активно застраивается офисными комплексами, ее популярности способствуют близость морского порта и аэропорта. Разнообразие и количество предложений делает борьбу за арендаторов особенно острой, поэтому архитекторы бюро Исодзаки сделали ставку на вариативность и способность к трансформации, так как потребности будущих клиентов пока неизвестны.

Офисное здание D38 © Filippo Poli
Офисное здание D38 © Filippo Poli
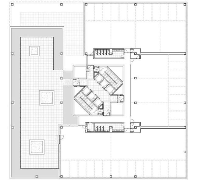
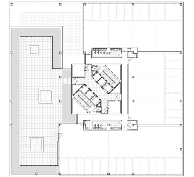
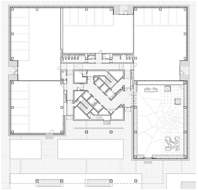
Как и другие постройки «Округа 38», здание спроектировано по модульной решетке 7,5 м х 7,5 м. Его габариты — 52,5 м х 52,5 м при высоте 46,5 м. В центре расположено коммуникационное ядро, а пространства офисов огибают его то с одной, то с другой стороны. В результате, планы этажей имеют L- и C-видную форму и могут быть поделены на две или три части и сданы разным арендаторам.

Н. Ф.
Офисное здание D38 © Filippo Poli
Офисное здание D38 © Filippo Poli
Офисное здание D38 © Filippo Poli
Офисное здание D38 © Filippo Poli
Офисное здание D38 © Filippo Poli
Офисное здание D38 © Filippo Poli
Офисное здание D38 © Filippo Poli
Офисное здание D38 © Filippo Poli
Офисное здание D38 © Filippo Poli
Офисное здание D38 © Filippo Poli
Офисное здание D38 © Filippo Poli
Офисное здание D38 © Filippo Poli
Офисное здание D38 © Filippo Poli
Офисное здание D38 © Filippo Poli
Офисное здание D38 © Arata Isozaki & Associates
Офисное здание D38 © Arata Isozaki & Associates
Офисное здание D38 © Arata Isozaki & Associates
Офисное здание D38 © Arata Isozaki & Associates
Офисное здание D38 © Arata Isozaki & Associates
Офисное здание D38 © Arata Isozaki & Associates
Офисное здание D38 © Arata Isozaki & Associates
Офисное здание D38 © Arata Isozaki & Associates
Офисное здание D38 © Arata Isozaki & Associates
Офисное здание D38 © Arata Isozaki & Associates
Офисное здание D38 © Arata Isozaki & Associates
Офисное здание D38 © Arata Isozaki & Associates
Офисное здание D38 © Arata Isozaki & Associates
Офисное здание D38 © Arata Isozaki & Associates