Размещено на портале Архи.ру (www.archi.ru)

30.07.2012

Трап в будущее

Объект:
Детский сад и начальная школа в зоне реконструкции «Клод Бернар»
Адрес:
Франция, None, Париж.
Мастерская:
Brenac & Gonzalez

Для одного из самых молодых районов современного Парижа архитектурное бюро Brenac & Gonzalez спроектировало уникальный учебный комплекс, рассчитанный на детей в возрасте от 3 до 11 лет.

Детский сад и начальная школа в районе им. Клода Бернара © Brenac & Gonzalez
Детский сад и начальная школа в районе им. Клода Бернара © Brenac & Gonzalez
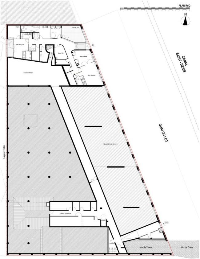
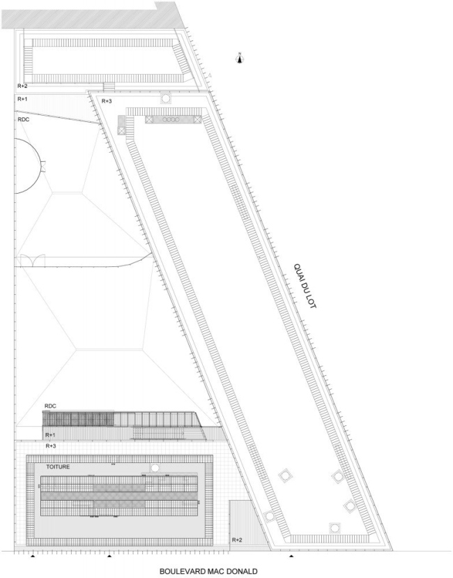
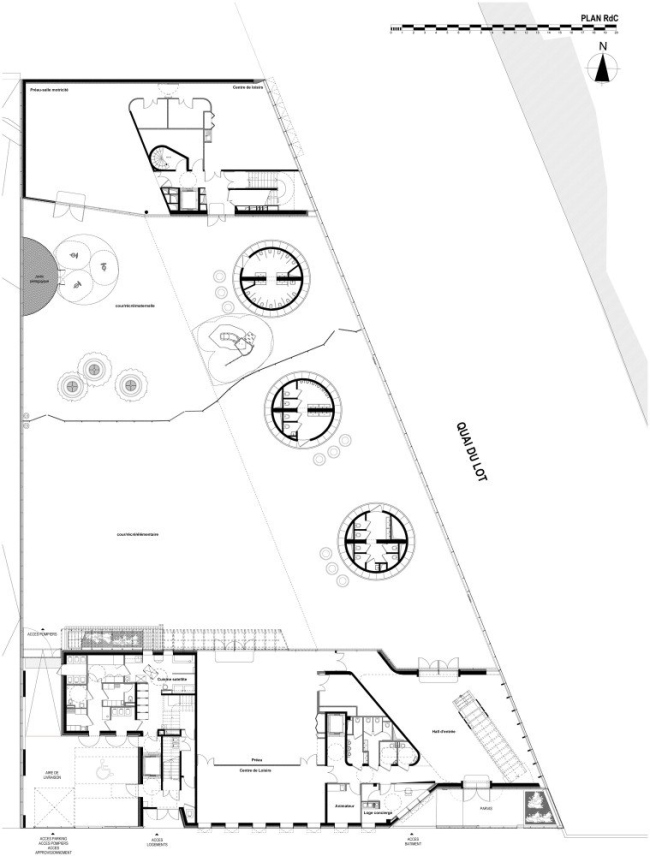
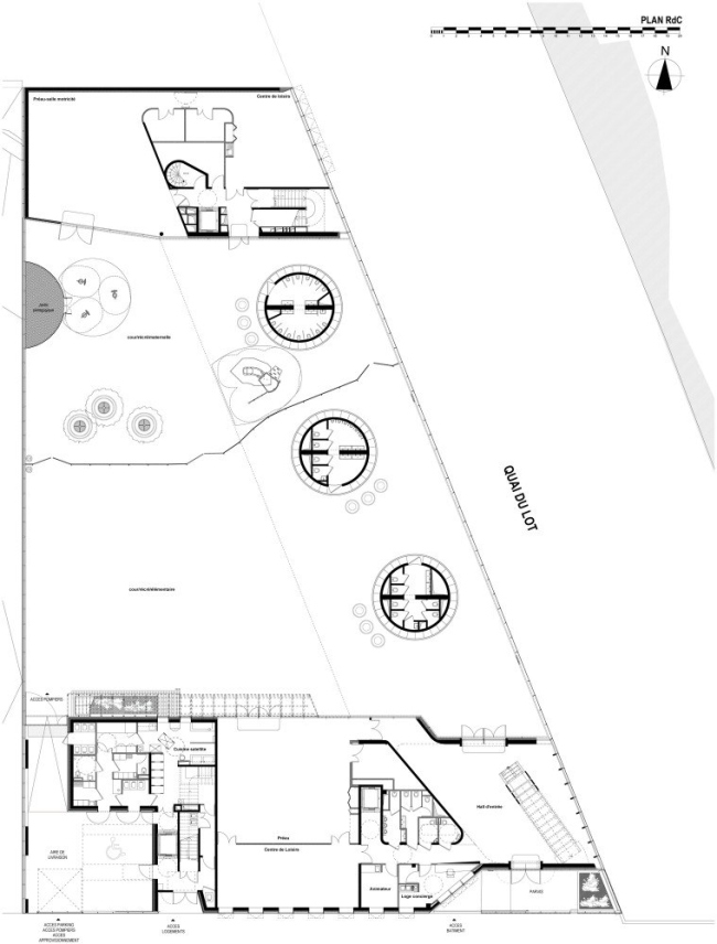
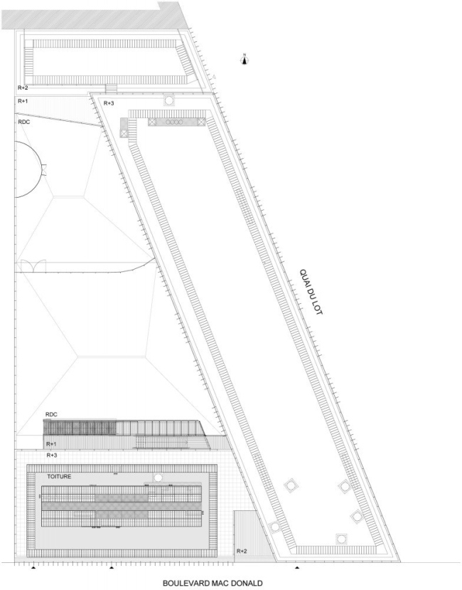
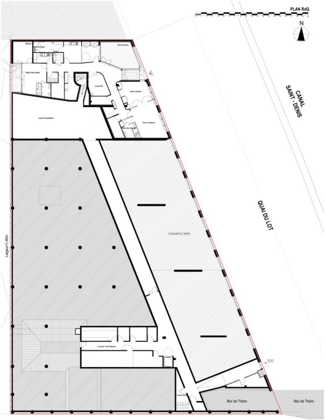
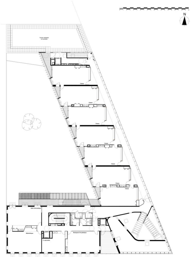
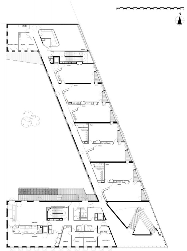
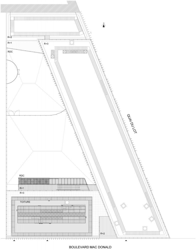
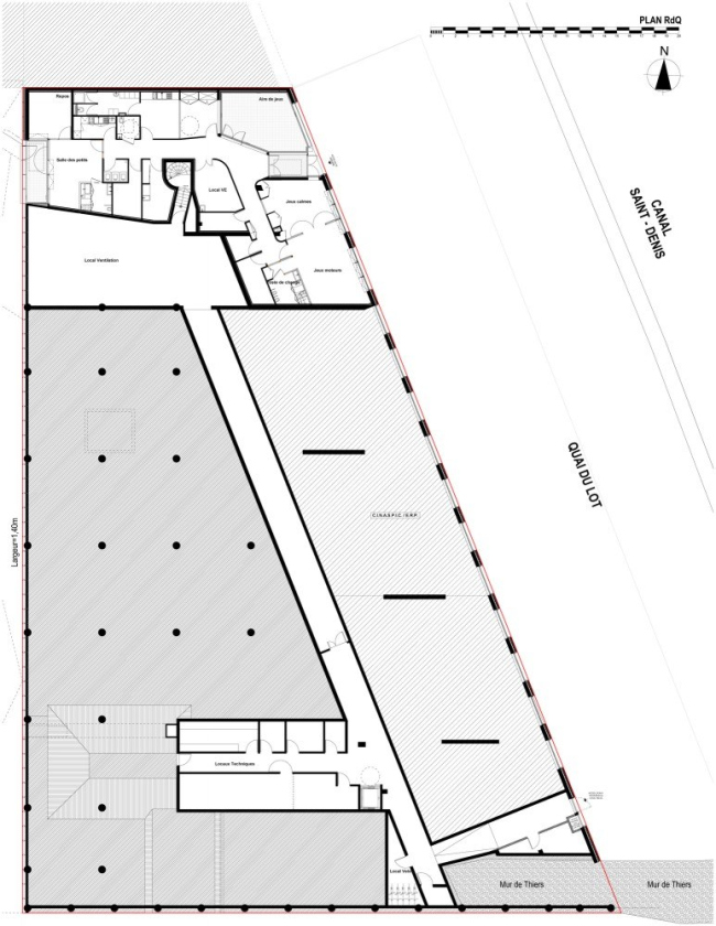
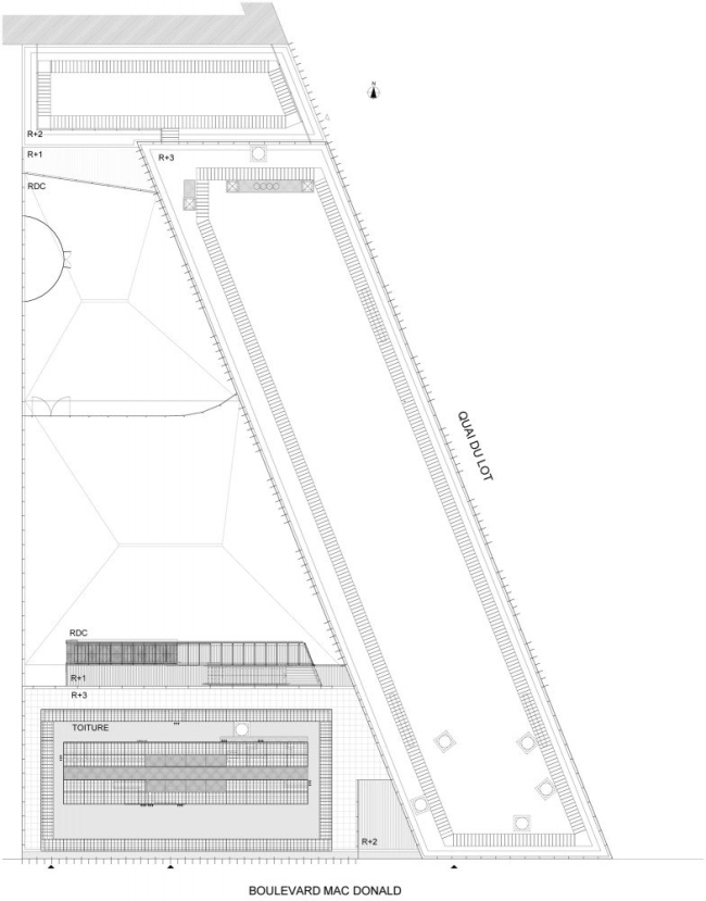
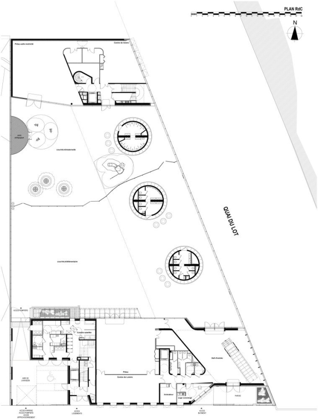
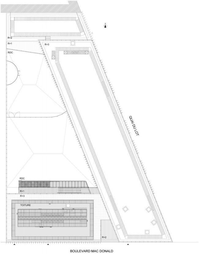
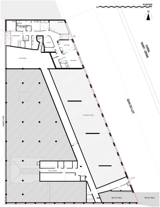
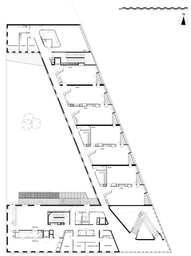
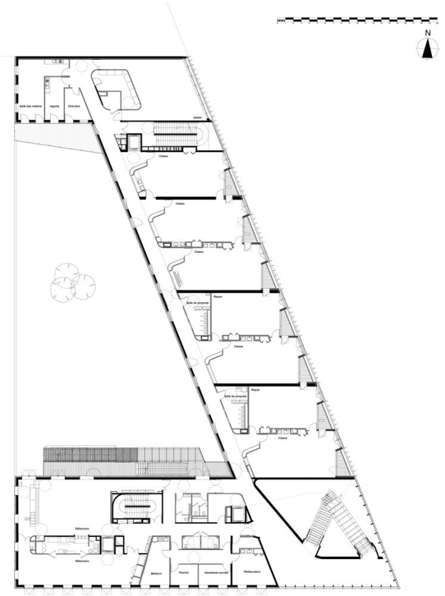
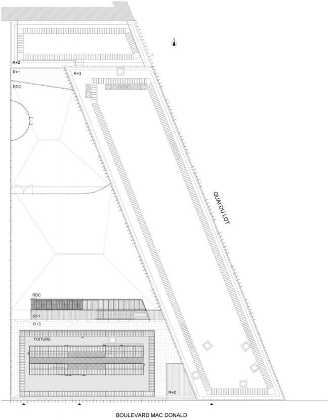
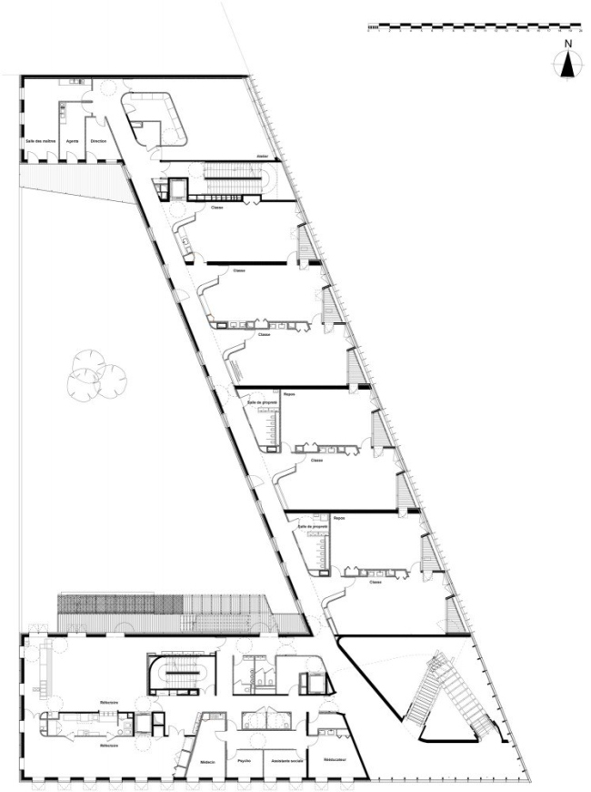
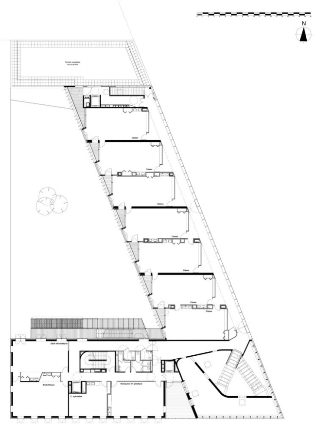
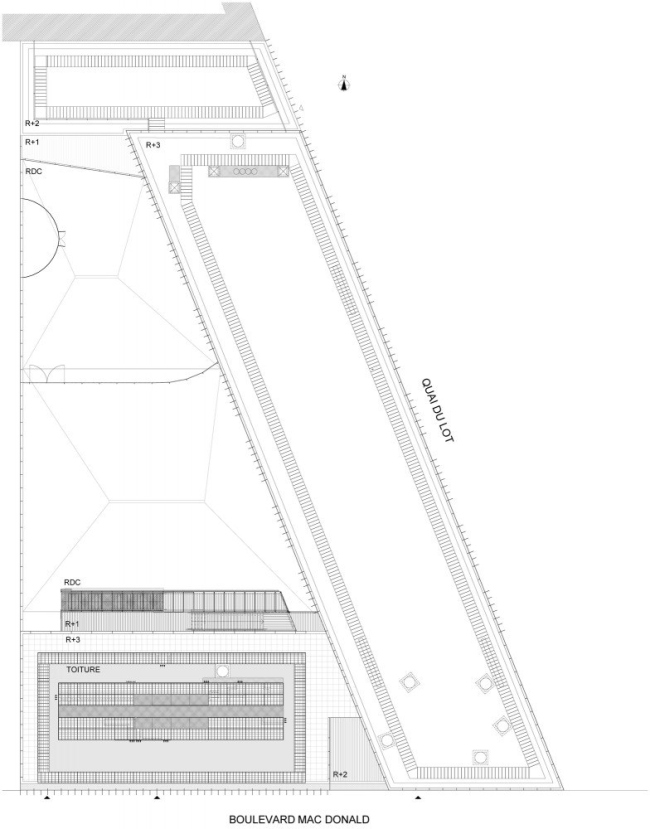
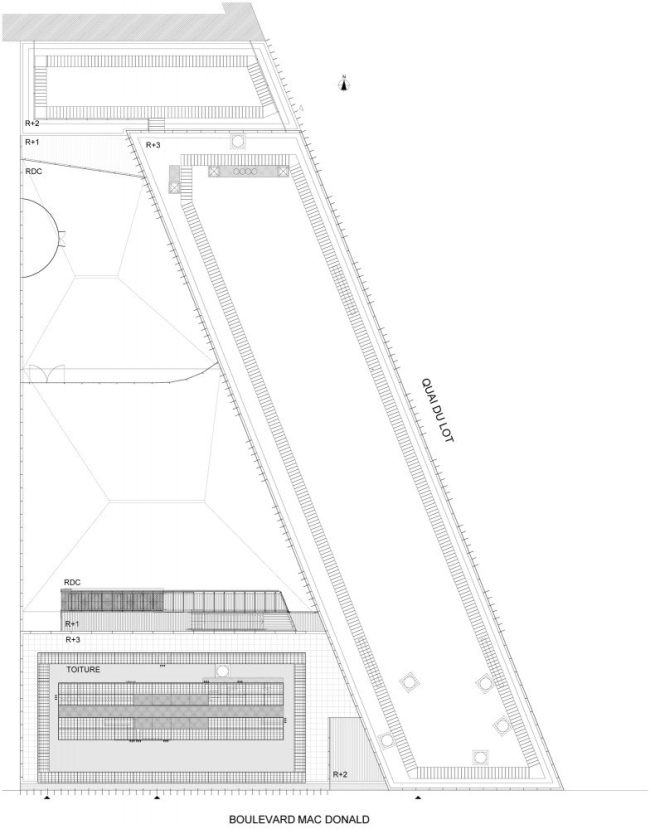
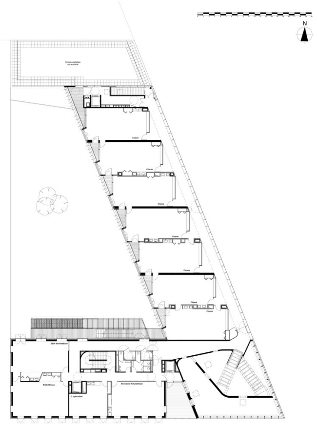
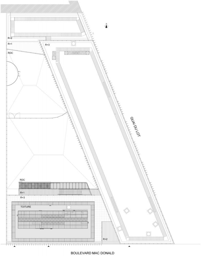
Здание общей площадью 4432 квадратных метра построено в районе им. Клода Бернара – островке между Периферик (Парижской окружной дорогой) и бульваром Макдональда. Образовательный центр, сочетающий в себе детский сад и начальную школу, реализован в рамках программы комплексной застройки этой территории – за последние годы здесь было воздвигнуто сразу несколько крупных жилых комплексов, и удобные современные объекты социальной инфраструктуры изначально позиционировались девелоперами как одно из главных преимуществ нового района.
Детский сад и начальная школа в районе им. Клода Бернара © Brenac & Gonzalez
Детский сад и начальная школа в районе им. Клода Бернара © Brenac & Gonzalez

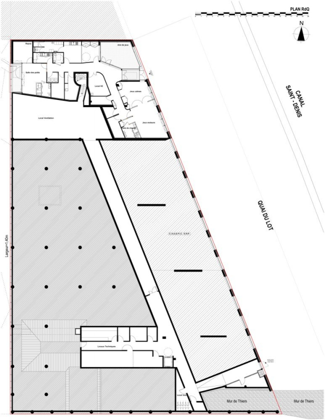
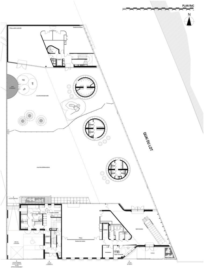
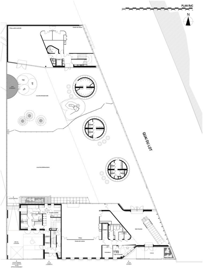
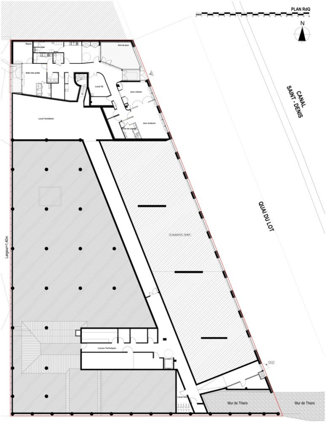
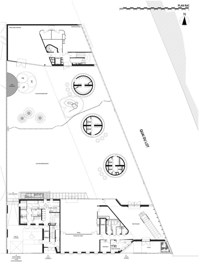
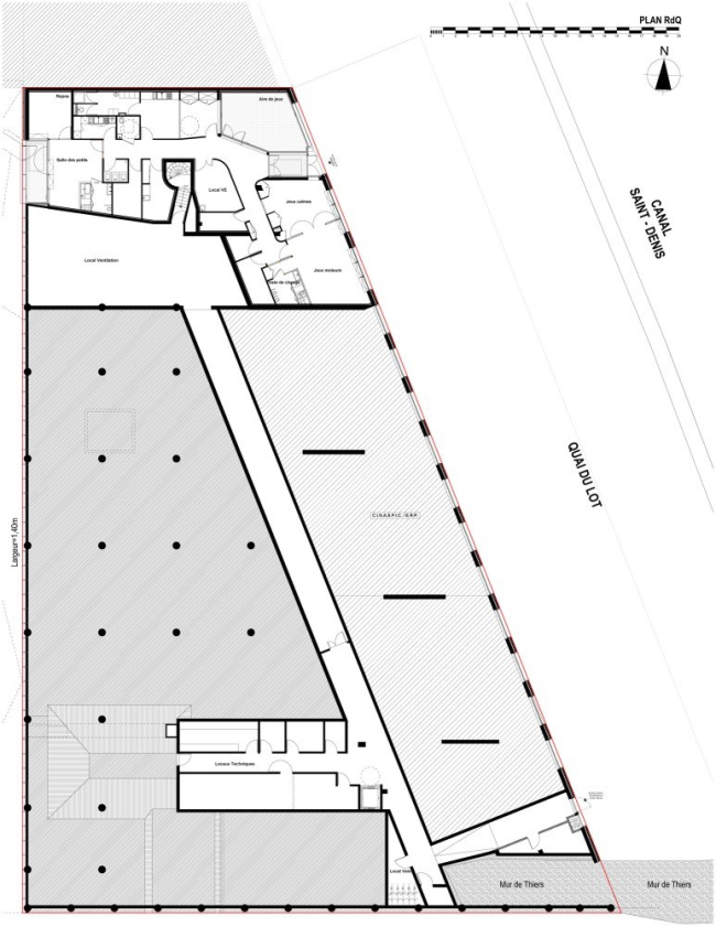
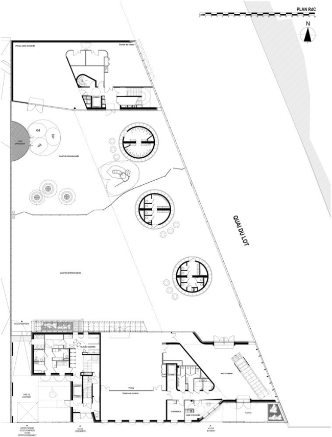
Участок, отведенный под строительство учебного комплекса, расположен на берегу канала Сен-Дени, и архитекторы постарались максимально выгодно обыграть близость здания к воде. Обращенные к ней фасады выполнены из прозрачного и частично матированного стекла, сами корпуса ориентированы таким образом, чтобы из большинства их окон открывались виды на канал, а между ними перекинута прозрачная галерея-мост, благодаря которой водной артерией Парижа можно любоваться и с игровых площадок, расположенных во внутреннем дворе комплекса.
Детский сад и начальная школа в районе им. Клода Бернара © Brenac & Gonzalez
Детский сад и начальная школа в районе им. Клода Бернара © Brenac & Gonzalez

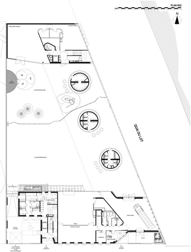
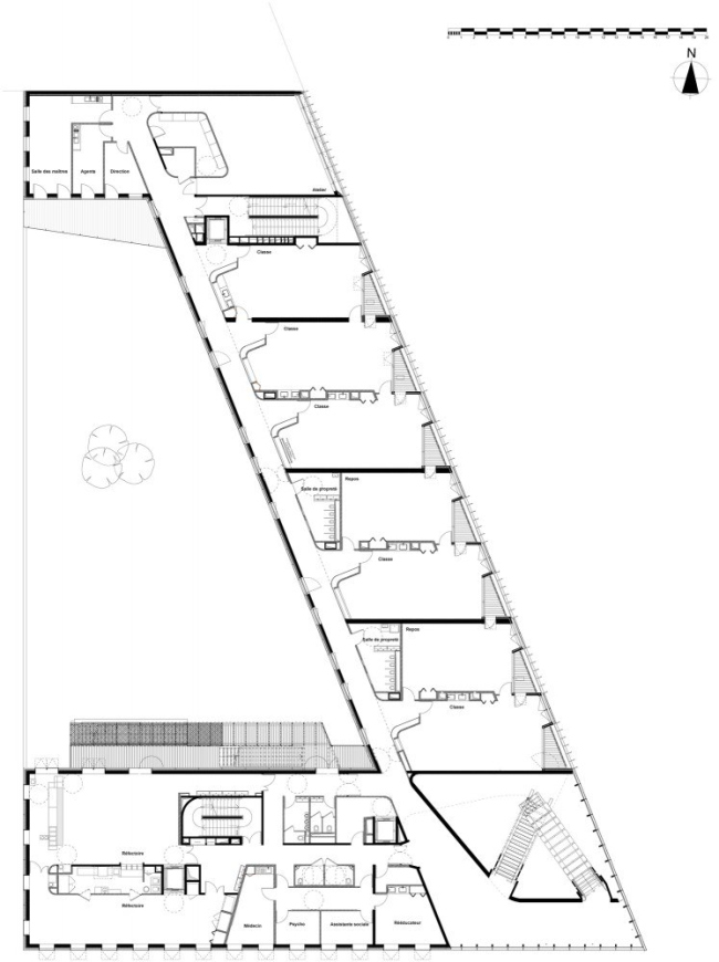
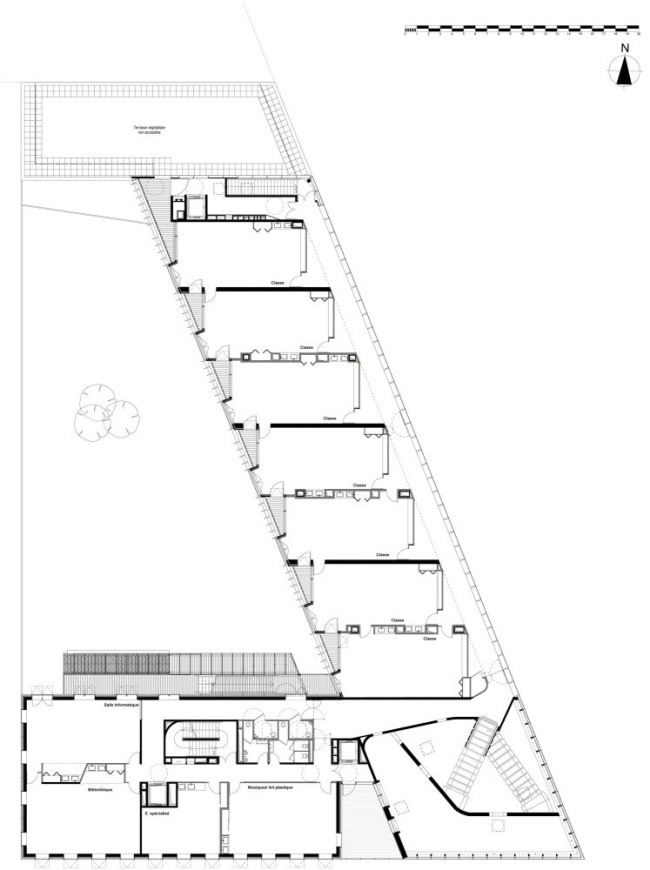
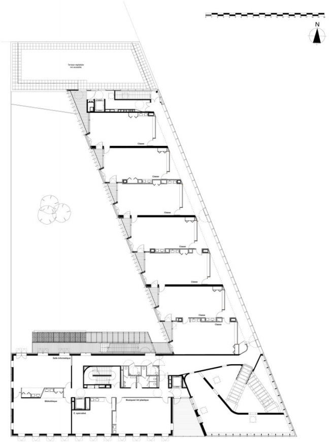
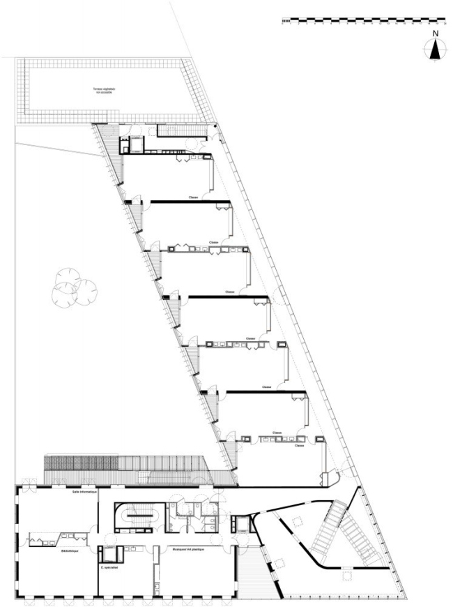
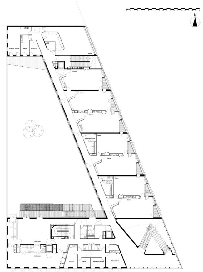
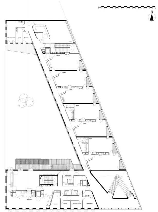
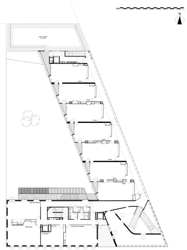
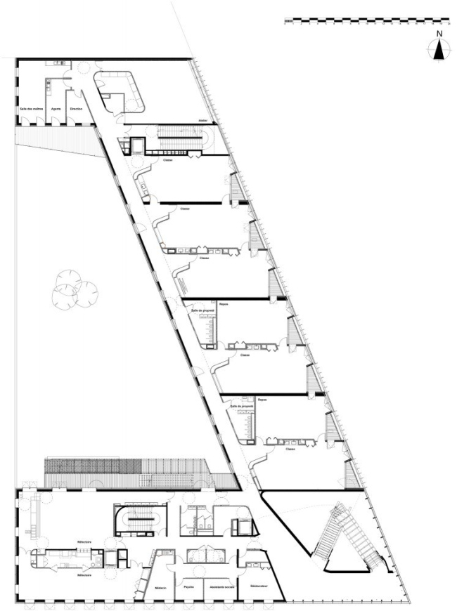
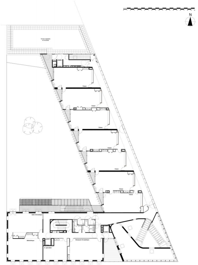
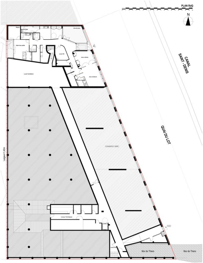
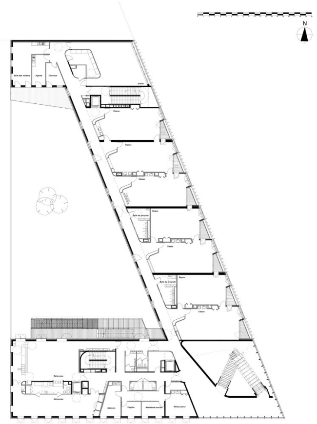
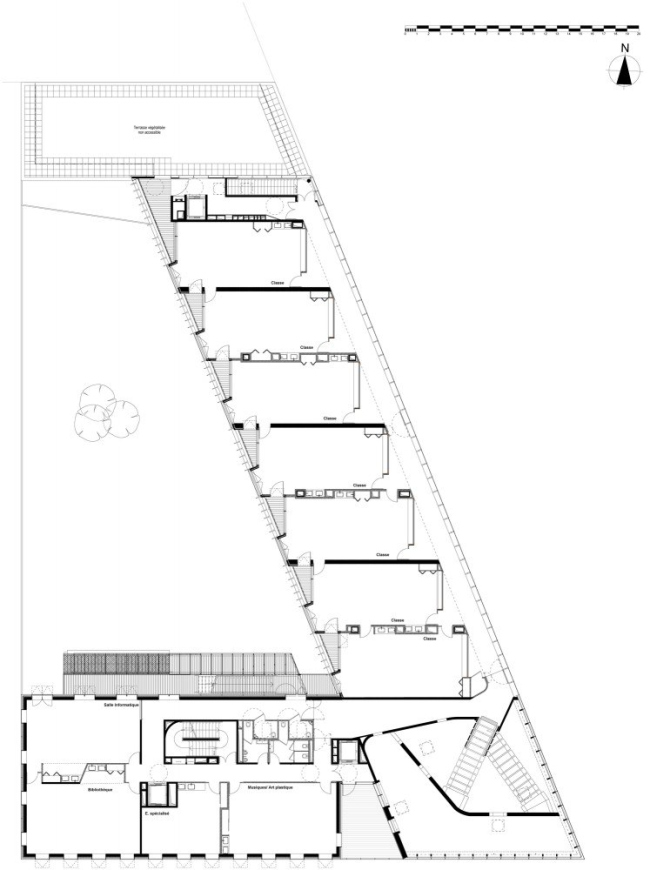
Проектируя центр, объединяющий в себе дошкольное учреждение и младшие классы школы, архитекторы стремились сделать сосуществование детей разных возрастов максимально комфортным. В частности, самое пристальное внимание было уделено внутренней планировке здания – архитекторы сделали все возможное для того, чтобы разделить потоки дошколят и учеников и при этом не изолировать их друг от друга. Так, игровые комнаты и учебные классы расположены на разных этажах, рекреации и игровые площадки также разделены, хоть и расположены по соседству: при желании ребята могут общаться друг с другом, а вот соперничество «за территорию» здесь полностью исключено. Места совместного использования - например, столовые, - сгруппированы в отдельном крыле.
Детский сад и начальная школа в районе им. Клода Бернара © Brenac & Gonzalez
Детский сад и начальная школа в районе им. Клода Бернара © Brenac & Gonzalez

Фасады, как уже говорилось, архитекторы одели в частично матированное стекло - в плоскости молочного цвета словно вырезаны прозрачные круги. Последние, по замыслу архитекторов, символизируют иллюминаторы барж, постоянно плавающих по каналу Сен-Дени. Этот, казалось бы, простой и незамысловатый рисунок не только придает фасадам глубину и многомерность, но и создает в солнечный день интересную игру бликов и отражений в общественных зонах комплекса. Монохромному оформлению фасадов противопоставлены нарочито яркие интерьеры, в отделке которых архитекторы использовали зеленый, желтый, оранжевый  и красный цвета.
Детский сад и начальная школа в районе им. Клода Бернара © Brenac & Gonzalez
Детский сад и начальная школа в районе им. Клода Бернара © Brenac & Gonzalez

Особую роль в интерьере играет лестница, соединяющая первый и второй этажи, то есть детский сад и начальную школу. Ее архитекторы трактовали как символический переход из одного социального статуса (беззаботный детсадовец) в  другой (школьник) – каждую ступеньку они обернули прямоугольной скобой, благодаря чему лестница напоминает эффектный телескопический трап и служит едва ли не самым заметным ориентиром во внутреннем пространстве учебного комплекса.


А.М.
Детский сад и начальная школа в районе им. Клода Бернара © Brenac & Gonzalez
Детский сад и начальная школа в районе им. Клода Бернара © Brenac & Gonzalez
Детский сад и начальная школа в районе им. Клода Бернара © Brenac & Gonzalez
Детский сад и начальная школа в районе им. Клода Бернара © Brenac & Gonzalez
Детский сад и начальная школа в районе им. Клода Бернара © Brenac & Gonzalez
Детский сад и начальная школа в районе им. Клода Бернара © Brenac & Gonzalez
Детский сад и начальная школа в районе им. Клода Бернара © Brenac & Gonzalez
Детский сад и начальная школа в районе им. Клода Бернара © Brenac & Gonzalez
Детский сад и начальная школа в районе им. Клода Бернара © Brenac & Gonzalez
Детский сад и начальная школа в районе им. Клода Бернара © Brenac & Gonzalez
Детский сад и начальная школа в районе им. Клода Бернара © Brenac & Gonzalez
Детский сад и начальная школа в районе им. Клода Бернара © Brenac & Gonzalez
Детский сад и начальная школа в районе им. Клода Бернара. Париж © Brenac & Gonzalez
Детский сад и начальная школа в районе им. Клода Бернара. Париж © Brenac & Gonzalez
Детский сад и начальная школа в районе им. Клода Бернара © Brenac & Gonzalez
Детский сад и начальная школа в районе им. Клода Бернара © Brenac & Gonzalez
Детский сад и начальная школа в районе им. Клода Бернара © Brenac & Gonzalez
Детский сад и начальная школа в районе им. Клода Бернара © Brenac & Gonzalez
Детский сад и начальная школа в районе им. Клода Бернара © Brenac & Gonzalez
Детский сад и начальная школа в районе им. Клода Бернара © Brenac & Gonzalez
Детский сад и начальная школа в районе им. Клода Бернара © Brenac & Gonzalez
Детский сад и начальная школа в районе им. Клода Бернара © Brenac & Gonzalez
Детский сад и начальная школа в районе им. Клода Бернара © Brenac & Gonzalez
Детский сад и начальная школа в районе им. Клода Бернара © Brenac & Gonzalez
Детский сад и начальная школа в районе им. Клода Бернара © Brenac & Gonzalez
Детский сад и начальная школа в районе им. Клода Бернара © Brenac & Gonzalez
Детский сад и начальная школа в районе им. Клода Бернара © Brenac & Gonzalez
Детский сад и начальная школа в районе им. Клода Бернара © Brenac & Gonzalez
Brenac & Gonzalez. Детский сад и начальная школа в районе им. Клода Бернара. Париж
Brenac & Gonzalez. Детский сад и начальная школа в районе им. Клода Бернара. Париж
Фото © Brenac & Gonzalez
Детский сад и начальная школа в районе им. Клода Бернара © Brenac & Gonzalez
Детский сад и начальная школа в районе им. Клода Бернара © Brenac & Gonzalez
Детский сад и начальная школа в районе им. Клода Бернара © Brenac & Gonzalez
Детский сад и начальная школа в районе им. Клода Бернара © Brenac & Gonzalez
Детский сад и начальная школа в районе им. Клода Бернара © Brenac & Gonzalez
Детский сад и начальная школа в районе им. Клода Бернара © Brenac & Gonzalez
Детский сад и начальная школа в районе им. Клода Бернара © Brenac & Gonzalez
Детский сад и начальная школа в районе им. Клода Бернара © Brenac & Gonzalez
Детский сад и начальная школа в районе им. Клода Бернара © Brenac & Gonzalez
Детский сад и начальная школа в районе им. Клода Бернара © Brenac & Gonzalez
Детский сад и начальная школа в районе им. Клода Бернара © Brenac & Gonzalez
Детский сад и начальная школа в районе им. Клода Бернара © Brenac & Gonzalez
Детский сад и начальная школа в районе им. Клода Бернара © Brenac & Gonzalez
Детский сад и начальная школа в районе им. Клода Бернара © Brenac & Gonzalez
Детский сад и начальная школа в районе им. Клода Бернара © Brenac & Gonzalez
Детский сад и начальная школа в районе им. Клода Бернара © Brenac & Gonzalez
Детский сад и начальная школа в районе им. Клода Бернара © Brenac & Gonzalez
Детский сад и начальная школа в районе им. Клода Бернара © Brenac & Gonzalez
Детский сад и начальная школа в районе им. Клода Бернара © Brenac & Gonzalez
Детский сад и начальная школа в районе им. Клода Бернара © Brenac & Gonzalez
Детский сад и начальная школа в районе им. Клода Бернара © Brenac & Gonzalez
Детский сад и начальная школа в районе им. Клода Бернара © Brenac & Gonzalez