Размещено на портале Архи.ру (www.archi.ru)

26.07.2012

Продукт эволюции

Мария Лындина
Объект:
Штаб-квартира канадского филиала компании GlaxoSmithKline
Адрес:
Канада, None, Квебек.
Мастерская:
Coarchitecture

Бюро Coarchitecture возвело «здоровую» штаб-квартиру канадского филиала фармацевтической компании GlaxoSmithKline.

Штаб-квартира канадского филиала компании GlaxoSmithKline © Stéphane Groleau
Штаб-квартира канадского филиала компании GlaxoSmithKline © Stéphane Groleau
Отведенный под строительство участок в городе Квебек был абсолютно безжизненным, лишенным какой бы то ни было растительности. И, для начала, архитекторам пришлось приложить немало усилий, чтобы восстановить и облагородить этот ландшафт.

Штаб-квартира канадского филиала компании GlaxoSmithKline © Stéphane Groleau
Штаб-квартира канадского филиала компании GlaxoSmithKline © Stéphane Groleau
Штаб-квартира канадского филиала компании GlaxoSmithKline © Stéphane Groleau
Штаб-квартира канадского филиала компании GlaxoSmithKline © Stéphane Groleau
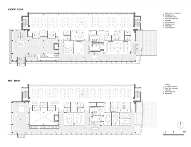
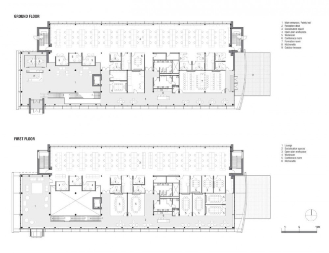
Любой живой организм должен подстроиться под окружающую среду: это вопрос выживания. Точно так же и здание обязано существовать по законам места в котором расположено, считают архитекторы. Постройке общей площадью 3,7 тыс. м2 придали органическую форму и попытались максимально учесть климатические условия.

Штаб-квартира канадского филиала компании GlaxoSmithKline © Stéphane Groleau
Штаб-квартира канадского филиала компании GlaxoSmithKline © Stéphane Groleau
Штаб-квартира канадского филиала компании GlaxoSmithKline © Stéphane Groleau
Штаб-квартира канадского филиала компании GlaxoSmithKline © Stéphane Groleau
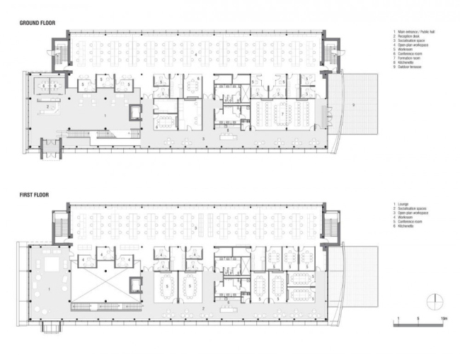
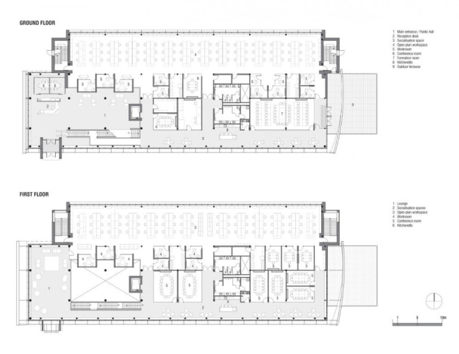
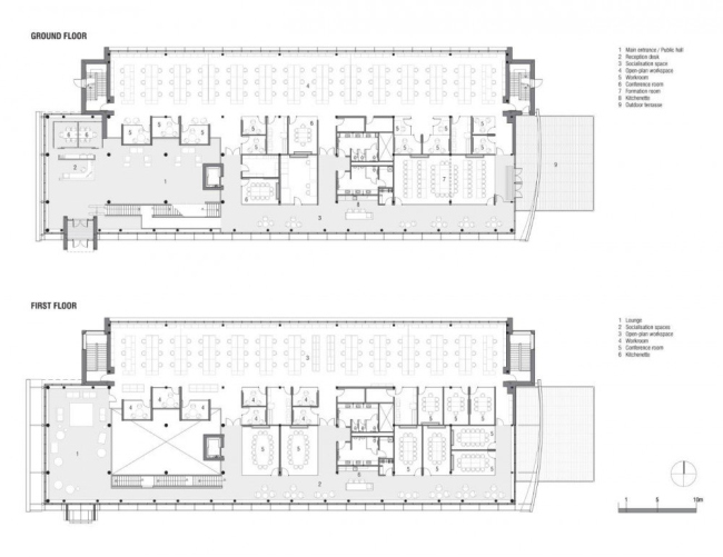
Южный фасад получил сплошное остекление, обеспечив доступ солнечного света во интерьер (от излишнего жара его спасают жалюзи). Восточный и западный, так же стеклянные, защищены проницаемыми металлическими экранами, продолжающими поверхность крыши: здание будто накрыто «шарфом». В светлое, залитое солнцем внутреннее пространство вынесен деревянный каркас, дополненный такими же деталями отделки и создающий эффектную игру светотени. Среди этих деревянных объемов и поверхностей расположены различные зоны отдыха, коммуникации, неформального общения.

Штаб-квартира канадского филиала компании GlaxoSmithKline © Stéphane Groleau
Штаб-квартира канадского филиала компании GlaxoSmithKline © Stéphane Groleau
Штаб-квартира канадского филиала компании GlaxoSmithKline © Stéphane Groleau
Штаб-квартира канадского филиала компании GlaxoSmithKline © Stéphane Groleau
Северная сторона закрыта от внешнего мира и призвана аккумулировать тепло в зимнее время. В этой, наиболее защищенной части здания находятся собственно рабочие места сотрудников компании, ведь здесь им не помешает даже слишком яркое солнце.

Штаб-квартира канадского филиала компании GlaxoSmithKline © Stéphane Groleau
Штаб-квартира канадского филиала компании GlaxoSmithKline © Stéphane Groleau
Штаб-квартира канадского филиала компании GlaxoSmithKline © Stéphane Groleau
Штаб-квартира канадского филиала компании GlaxoSmithKline © Stéphane Groleau
Канадский офис GlaxoSmithKline имеет полное право называться экологичным не только благодаря использованию дерева и вниманию к окружающему ландшафту. Двойные вентилируемые фасады, системы экономии энергии и других ресурсов, «охлаждающие балки», раздельное управление климатом в различных зонах, система панельно-лучистое отопления (играющая роль звукоизоляции на нижних уровнях постройки), и многие другие технологии позволяют владельцам предельно эффективно пользоваться зданием.
Штаб-квартира канадского филиала компании GlaxoSmithKline © Stéphane Groleau
Штаб-квартира канадского филиала компании GlaxoSmithKline © Stéphane Groleau
Штаб-квартира канадского филиала компании GlaxoSmithKline © Stéphane Groleau
Штаб-квартира канадского филиала компании GlaxoSmithKline © Stéphane Groleau
Штаб-квартира канадского филиала компании GlaxoSmithKline © Stéphane Groleau
Штаб-квартира канадского филиала компании GlaxoSmithKline © Stéphane Groleau
Штаб-квартира канадского филиала компании GlaxoSmithKline © Stéphane Groleau
Штаб-квартира канадского филиала компании GlaxoSmithKline © Stéphane Groleau
Штаб-квартира канадского филиала компании GlaxoSmithKline © Stéphane Groleau
Штаб-квартира канадского филиала компании GlaxoSmithKline © Stéphane Groleau
Штаб-квартира канадского филиала компании GlaxoSmithKline © Stéphane Groleau
Штаб-квартира канадского филиала компании GlaxoSmithKline © Stéphane Groleau
Штаб-квартира канадского филиала компании GlaxoSmithKline © Stéphane Groleau
Штаб-квартира канадского филиала компании GlaxoSmithKline © Stéphane Groleau
Штаб-квартира канадского филиала компании GlaxoSmithKline © Stéphane Groleau
Штаб-квартира канадского филиала компании GlaxoSmithKline © Stéphane Groleau
Штаб-квартира канадского филиала компании GlaxoSmithKline © Stéphane Groleau
Штаб-квартира канадского филиала компании GlaxoSmithKline © Stéphane Groleau
Штаб-квартира канадского филиала компании GlaxoSmithKline © Stéphane Groleau
Штаб-квартира канадского филиала компании GlaxoSmithKline © Stéphane Groleau
Штаб-квартира канадского филиала компании GlaxoSmithKline © Stéphane Groleau
Штаб-квартира канадского филиала компании GlaxoSmithKline © Stéphane Groleau
Штаб-квартира канадского филиала компании GlaxoSmithKline © Stéphane Groleau
Штаб-квартира канадского филиала компании GlaxoSmithKline © Stéphane Groleau
Штаб-квартира канадского филиала компании GlaxoSmithKline © Stéphane Groleau
Штаб-квартира канадского филиала компании GlaxoSmithKline © Stéphane Groleau
Штаб-квартира канадского филиала компании GlaxoSmithKline © Stéphane Groleau
Штаб-квартира канадского филиала компании GlaxoSmithKline © Stéphane Groleau
Штаб-квартира канадского филиала компании GlaxoSmithKline © Stéphane Groleau
Штаб-квартира канадского филиала компании GlaxoSmithKline © Stéphane Groleau
Штаб-квартира канадского филиала компании GlaxoSmithKline © Stéphane Groleau
Штаб-квартира канадского филиала компании GlaxoSmithKline © Stéphane Groleau
Штаб-квартира канадского филиала компании GlaxoSmithKline © Stéphane Groleau
Штаб-квартира канадского филиала компании GlaxoSmithKline © Stéphane Groleau
Штаб-квартира канадского филиала компании GlaxoSmithKline © Stéphane Groleau
Штаб-квартира канадского филиала компании GlaxoSmithKline © Stéphane Groleau
Штаб-квартира канадского филиала компании GlaxoSmithKline © Coarchitecture
Штаб-квартира канадского филиала компании GlaxoSmithKline © Coarchitecture
Штаб-квартира канадского филиала компании GlaxoSmithKline © Coarchitecture
Штаб-квартира канадского филиала компании GlaxoSmithKline © Coarchitecture
Штаб-квартира канадского филиала компании GlaxoSmithKline © Coarchitecture
Штаб-квартира канадского филиала компании GlaxoSmithKline © Coarchitecture
Штаб-квартира канадского филиала компании GlaxoSmithKline © Coarchitecture
Штаб-квартира канадского филиала компании GlaxoSmithKline © Coarchitecture