Размещено на портале Архи.ру (www.archi.ru)

24.07.2012

О трех мачтах

Мария Лындина
Объект:
Жилой комплекс в городе Сет
Адрес:
Франция, None, Сет.
Мастерская:
CFA

Бюро CFA завершило строительство жилого комплекса в городе Сет на юге Франции.

Жилой комплекс в городе Сет © Cécile Septet
Жилой комплекс в городе Сет © Cécile Septet
Здание расположено на тонкой полоске земли, разделяющей озеро Этан-де-То и Средиземное море. Рядом – старый средневековый город и индустриальные постройки крупного порта. Архитекторам пришлось так или иначе отвечать на все вызовы слишком яркой и разноплановой окружающей среды.

Жилой комплекс в городе Сет © Cécile Septet
Жилой комплекс в городе Сет © Cécile Septet
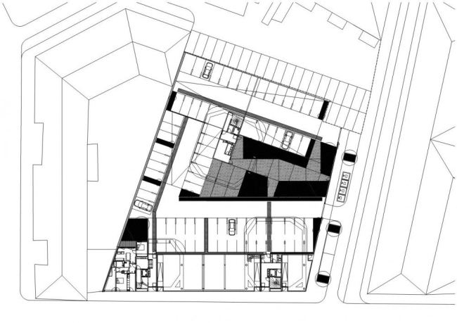
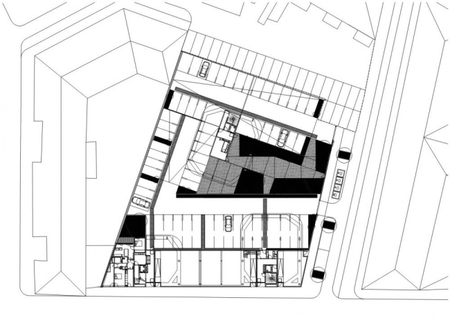
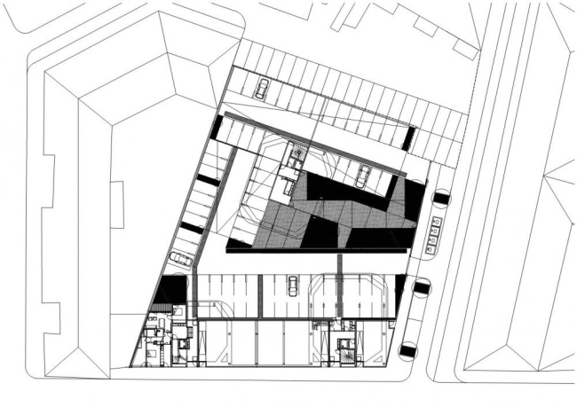
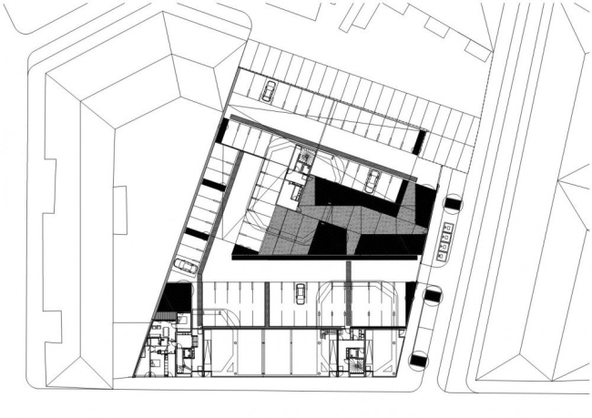
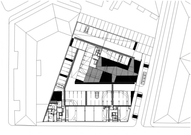
Комплекс состоит из трех жилых блоков, объединенных платформой. Его общая площадь немногим меньше 4000 м2. Примыкающий к соседнему зданию 6-этажный объем вмещает 16 разноплановых муниципальных квартир, а два отдельно стоящих 8 этажных объема – 55 частных апартаментов в две или три комнаты. В нижней, двухэтажной части расположены обслуживающие комплекс парковка и магазины.

Жилой комплекс в городе Сет © Cécile Septet
Жилой комплекс в городе Сет © Cécile Septet
Сами блоки по всему периметру опоясаны практически обязательными для средиземноморской архитектуры балконами. И по всей поверхности защищены особыми реечными экранами из оцинкованной стали. Такое решение позволило «выпустить» жизнь владельцев квартир за пределы четырех стен, сохранив при этом ощущение приватности и защитив их от излишней жары и ярких солнечных лучей.

Жилой комплекс в городе Сет © Cécile Septet
Жилой комплекс в городе Сет © Cécile Septet
Ширина балконов варьируется, придавая постройкам неправильную, непривычную, будто раздутую форму. Они похожи то на гигантские коконы, то на носовые части кораблей. А гуляющий между рейками солнцезащитных экранов ветер вторит шуму мачт в порту.

Жилой комплекс в городе Сет © Cécile Septet
Жилой комплекс в городе Сет © Cécile Septet
Естественные неровности рельефа стали основой для искусственного ландшафта в центральной части основания ЖК, позволив устроить там парковки и сады. Газон, местные растения и кустарники в каменных кадках перемежаются с засыпанными битым камнем участками и асфальтированными парковочными местами. Такая дробная структура, по мысли архитекторов, напоминает рисунок ракушечника.
Жилой комплекс в городе Сет © Cécile Septet
Жилой комплекс в городе Сет © Cécile Septet
Жилой комплекс в городе Сет © Cécile Septet
Жилой комплекс в городе Сет © Cécile Septet
Жилой комплекс в городе Сет © Cécile Septet
Жилой комплекс в городе Сет © Cécile Septet
Жилой комплекс в городе Сет © Cécile Septet
Жилой комплекс в городе Сет © Cécile Septet
Жилой комплекс в городе Сет ©  CFA – Colboc Franzen & associés
Жилой комплекс в городе Сет © CFA – Colboc Franzen & associés
Жилой комплекс в городе Сет ©  CFA – Colboc Franzen & associés
Жилой комплекс в городе Сет © CFA – Colboc Franzen & associés
Жилой комплекс в городе Сет ©  CFA – Colboc Franzen & associés
Жилой комплекс в городе Сет © CFA – Colboc Franzen & associés
Жилой комплекс в городе Сет © CFA – Colboc Franzen & associés
Жилой комплекс в городе Сет © CFA – Colboc Franzen & associés