Размещено на портале Архи.ру (www.archi.ru)

18.07.2012

«Хамелеон» в духе амстердамской школы

Объект:
Жилой комплекс De Kameleon
Адрес:
Нидерланды, None, Амстердам.
Мастерская:
NL Architects

Бюро NL Architects построило жилой комплекс в Амстердаме.

Жилой комплекс De Kameleon © Marcel van der Burg
Жилой комплекс De Kameleon © Marcel van der Burg
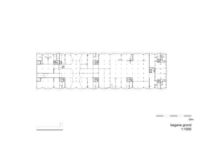
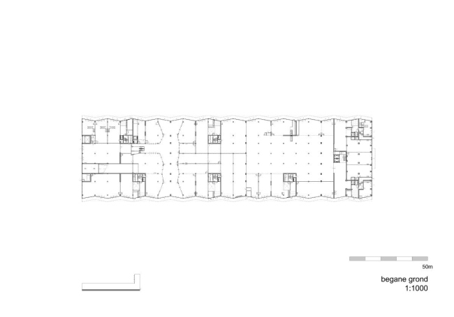
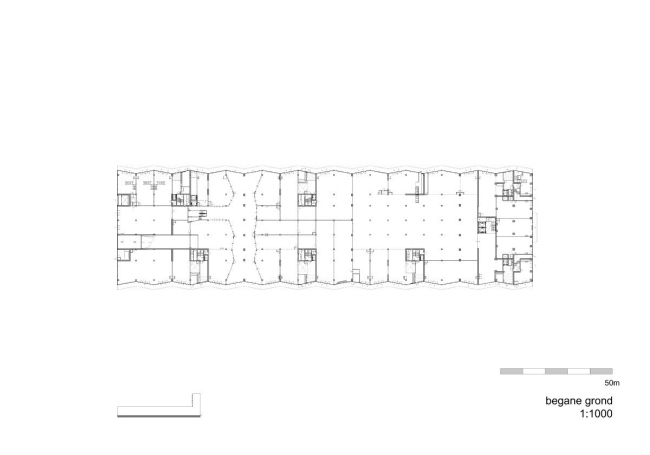
«De Kameleon» находится в районе Бейлмер, раньше считавшемся неблагополучным, а ныне переживающем масштабную реконструкцию. Кроме квартир, в комплекс включены торговый центр, фитнес-клуб и гараж.

Жилой комплекс De Kameleon © Marcel van der Burg
Жилой комплекс De Kameleon © Marcel van der Burg
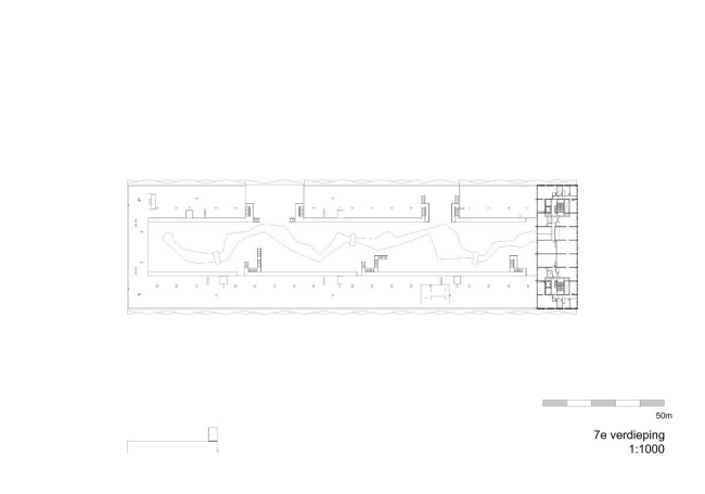
Все эти функции помещены в обширную базу, на крыше которой разбит сад с искусственной «рекой». От уличных шума и пыли его закрывают водруженные на этот «стилобат» два жилых корпуса — в 4 и 10 этажей высотой. Фасады облицованы коричневым кирпичом, что делает ЖК типичным продолжателем традиций амстердамской школы, хотя плохо сочетается с его «разноцветным» названием. Еще одной важной частью экстерьера здания стали обширные балконы.

Жилой комплекс De Kameleon © Marcel van der Burg
Жилой комплекс De Kameleon © Marcel van der Burg
Нижняя часть постройки занята супермаркетом и магазинами, каждый из которых выходит на улицу: архитекторы пытались избежать традиционной планировки типа «пассажа». Внутренние переходы, впрочем, все же есть, но не идут по прямой, а описывают восьмерку. Второй этаж занят еще одним супермаркетом.

Жилой комплекс De Kameleon © Marcel van der Burg
Жилой комплекс De Kameleon © Marcel van der Burg
С противоположной стороны от торгового центра в базе устроен фитнес-клуб, а между ними — парковка, скрытая за проницаемым волнистым фасадом. Подобное расположение гаража оказалось более дешевым, чем подземное.

Жилой комплекс De Kameleon © Marcel van der Burg
Жилой комплекс De Kameleon © Marcel van der Burg
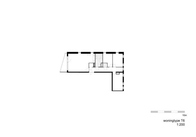
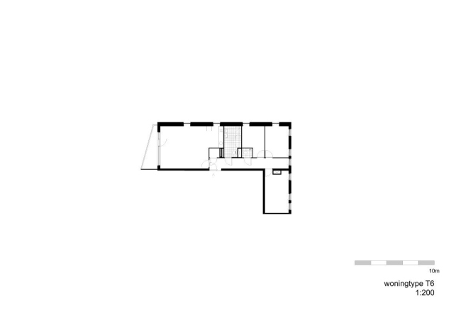
Расположенный выше 4-этажный корпус с 168 квартирами окружает крышу базы с трех сторон, лишь со стороны соседнего парка его объем прерывается, связывая «домашний» сад с зеленью рядом. Его внутренний фасад снабжен балконами-переходами и лесенками.

Жилой комплекс De Kameleon © Luuk Kramer
Жилой комплекс De Kameleon © Luuk Kramer
Четвертую сторону занимает 10-этажный корпус (58 квартир). В его массивном блоке на уровне сада прорезано «окно», которое также можно использовать как общественное пространство. Если бы не его косо поставленные белые опоры, «De Kameleon» можно было бы принять за постройку европейского позднего модернизма: очевидно, это период привлекает все большее внимание архитекторов.

Н. Ф.
Жилой комплекс De Kameleon © Luuk Kramer
Жилой комплекс De Kameleon © Luuk Kramer
Жилой комплекс De Kameleon © Luuk Kramer
Жилой комплекс De Kameleon © Luuk Kramer
Жилой комплекс De Kameleon © Luuk Kramer
Жилой комплекс De Kameleon © Luuk Kramer
Жилой комплекс De Kameleon © Luuk Kramer
Жилой комплекс De Kameleon © Luuk Kramer
Жилой комплекс De Kameleon © Luuk Kramer
Жилой комплекс De Kameleon © Luuk Kramer
Жилой комплекс De Kameleon © Luuk Kramer
Жилой комплекс De Kameleon © Luuk Kramer
Жилой комплекс De Kameleon © Luuk Kramer
Жилой комплекс De Kameleon © Luuk Kramer
Жилой комплекс De Kameleon © Luuk Kramer
Жилой комплекс De Kameleon © Luuk Kramer
Жилой комплекс De Kameleon © Luuk Kramer
Жилой комплекс De Kameleon © Luuk Kramer
Жилой комплекс De Kameleon © Luuk Kramer
Жилой комплекс De Kameleon © Luuk Kramer
Жилой комплекс De Kameleon © Luuk Kramer
Жилой комплекс De Kameleon © Luuk Kramer
Жилой комплекс De Kameleon © Luuk Kramer
Жилой комплекс De Kameleon © Luuk Kramer
Жилой комплекс De Kameleon © Marcel van der Burg
Жилой комплекс De Kameleon © Marcel van der Burg
Жилой комплекс De Kameleon © Marcel van der Burg
Жилой комплекс De Kameleon © Marcel van der Burg
Жилой комплекс De Kameleon © Luuk Kramer
Жилой комплекс De Kameleon © Luuk Kramer
Жилой комплекс De Kameleon © Marcel van der Burg
Жилой комплекс De Kameleon © Marcel van der Burg
Жилой комплекс De Kameleon © Marcel van der Burg
Жилой комплекс De Kameleon © Marcel van der Burg
Жилой комплекс De Kameleon © Marcel van der Burg
Жилой комплекс De Kameleon © Marcel van der Burg
Жилой комплекс De Kameleon © Marcel van der Burg
Жилой комплекс De Kameleon © Marcel van der Burg
Жилой комплекс De Kameleon © Marcel van der Burg
Жилой комплекс De Kameleon © Marcel van der Burg
Жилой комплекс De Kameleon © Luuk Kramer
Жилой комплекс De Kameleon © Luuk Kramer
Жилой комплекс De Kameleon © NL Architects
Жилой комплекс De Kameleon © NL Architects
Жилой комплекс De Kameleon © NL Architects
Жилой комплекс De Kameleon © NL Architects
Жилой комплекс De Kameleon © NL Architects
Жилой комплекс De Kameleon © NL Architects
Жилой комплекс De Kameleon © NL Architects
Жилой комплекс De Kameleon © NL Architects
Жилой комплекс De Kameleon © NL Architects
Жилой комплекс De Kameleon © NL Architects
Жилой комплекс De Kameleon © NL Architects
Жилой комплекс De Kameleon © NL Architects
Жилой комплекс De Kameleon © NL Architects
Жилой комплекс De Kameleon © NL Architects
Жилой комплекс De Kameleon © NL Architects
Жилой комплекс De Kameleon © NL Architects
Жилой комплекс De Kameleon © NL Architects
Жилой комплекс De Kameleon © NL Architects
Жилой комплекс De Kameleon © NL Architects
Жилой комплекс De Kameleon © NL Architects
Жилой комплекс De Kameleon © NL Architects
Жилой комплекс De Kameleon © NL Architects
Жилой комплекс De Kameleon © NL Architects
Жилой комплекс De Kameleon © NL Architects
Жилой комплекс De Kameleon © NL Architects
Жилой комплекс De Kameleon © NL Architects
Жилой комплекс De Kameleon © NL Architects
Жилой комплекс De Kameleon © NL Architects
Жилой комплекс De Kameleon © NL Architects
Жилой комплекс De Kameleon © NL Architects
Жилой комплекс De Kameleon © NL Architects
Жилой комплекс De Kameleon © NL Architects
Жилой комплекс De Kameleon © NL Architects
Жилой комплекс De Kameleon © NL Architects
Жилой комплекс De Kameleon © NL Architects
Жилой комплекс De Kameleon © NL Architects
Жилой комплекс De Kameleon © NL Architects
Жилой комплекс De Kameleon © NL Architects
Жилой комплекс De Kameleon © NL Architects
Жилой комплекс De Kameleon © NL Architects
Жилой комплекс De Kameleon © NL Architects
Жилой комплекс De Kameleon © NL Architects
Жилой комплекс De Kameleon © NL Architects
Жилой комплекс De Kameleon © NL Architects