Размещено на портале Архи.ру (www.archi.ru)

11.07.2012

Колыбель Баухауса

Нина Фролова
Объект:
Музей Баухауса в Веймаре
Адрес:
Германия, None, Веймар.

В Веймаре выбрали проект нового здания музея Баухауса.

Музей Баухауса в Веймаре © Heike Hanada / Benedict Tonon
Музей Баухауса в Веймаре © Heike Hanada / Benedict Tonon
Победителями архитектурного конкурса стали берлинские архитекторы Хайке Ханада и Бенедикт Тонон. Выбрать лучший вариант жюри удалось только со второй попытки: в марте конкурс завершился без присуждения первой премии, две команды заняли второе место, а две – третье (в том числе – Ханада и Тонон). Призерам дали время на доработку проекта, и уже по результатам «дополнительного времени» выбрали лауреата.

Музей Баухауса в Веймаре © Heike Hanada / Benedict Tonon
Музей Баухауса в Веймаре © Heike Hanada / Benedict Tonon
Строительство нового, заметного здания музея в Веймаре особенно важно потому, что город до сих пор не имел достойного знака своей роли «колыбели Баухауса»: ведь именно там в 1919 Вальтер Гропиус основал эту новаторскую школу. Теперь же это упущение будет исправлено.

Музей Баухауса в Веймаре. Вестибюль © Heike Hanada / Benedict Tonon
Музей Баухауса в Веймаре. Вестибюль © Heike Hanada / Benedict Tonon
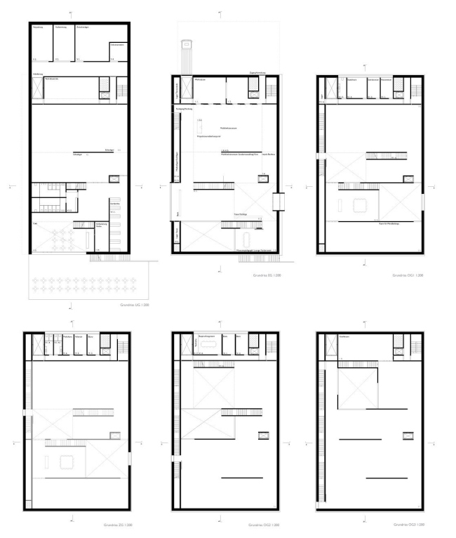
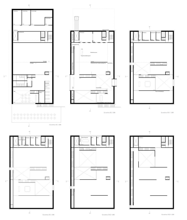
Новое сооружение расположится в самом центре Веймара, близ городского музея, конгресс-центра, Гауфорума (административного здания периода нацизма), рядом с парком и жилым районом конца 1920-х. Его поднимут над землей на бетонном цоколе. Мощному основанию противопоставят «расплывчатый», матовый объем: фасады облицуют узкими полосами стекла, расчерченными по горизонтали протравленными черными линиями. В темное время суток фасад будет подсвечиваться светодиодами.

Музей Баухауса в Веймаре © Heike Hanada / Benedict Tonon
Музей Баухауса в Веймаре © Heike Hanada / Benedict Tonon
В интерьере почти не предусмотрено окон, поэтому в выставочных помещениях будут полагаться на искусственное освещение. В цоколе устроят кафе, которое расширит общественное пространство вокруг музея и свяжет между собой разные уровни постройки.
Музей Баухауса в Веймаре © Heike Hanada / Benedict Tonon
Музей Баухауса в Веймаре © Heike Hanada / Benedict Tonon
Музей Баухауса в Веймаре © Heike Hanada / Benedict Tonon
Музей Баухауса в Веймаре © Heike Hanada / Benedict Tonon
Музей Баухауса в Веймаре © Heike Hanada / Benedict Tonon
Музей Баухауса в Веймаре © Heike Hanada / Benedict Tonon
Музей Баухауса в Веймаре © Heike Hanada / Benedict Tonon
Музей Баухауса в Веймаре © Heike Hanada / Benedict Tonon
Музей Баухауса в Веймаре © Heike Hanada / Benedict Tonon
Музей Баухауса в Веймаре © Heike Hanada / Benedict Tonon
Музей Баухауса в Веймаре © Heike Hanada / Benedict Tonon
Музей Баухауса в Веймаре © Heike Hanada / Benedict Tonon
Музей Баухауса в Веймаре © Heike Hanada / Benedict Tonon
Музей Баухауса в Веймаре © Heike Hanada / Benedict Tonon