Размещено на портале Архи.ру (www.archi.ru)

28.06.2012

Пагода для туристов

Настя Тарасова
Объект:
Культурный и информационный центр района Асакуса
Адрес:
Япония, None, Токио.
Авторский коллектив:
Kengo Kuma, Teppei Fujiwara, Masafumi Harigai, Okayama Naoki, Kiyoaki Takeda, Masaru Shuku, Erina Kuryu, Hiroaki Saito

Кенго Кума построил в токийском квартале Асакуса информационный и культурный центр.

Культурный и информационный центр района Асакуса © Takeshi Yamagishi
Культурный и информационный центр района Асакуса © Takeshi Yamagishi
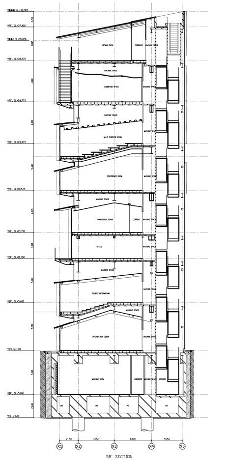
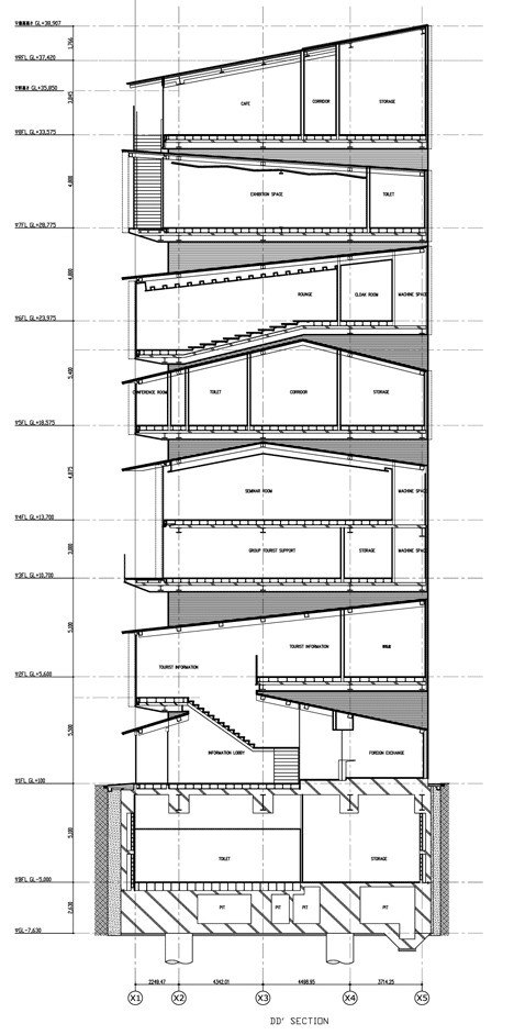
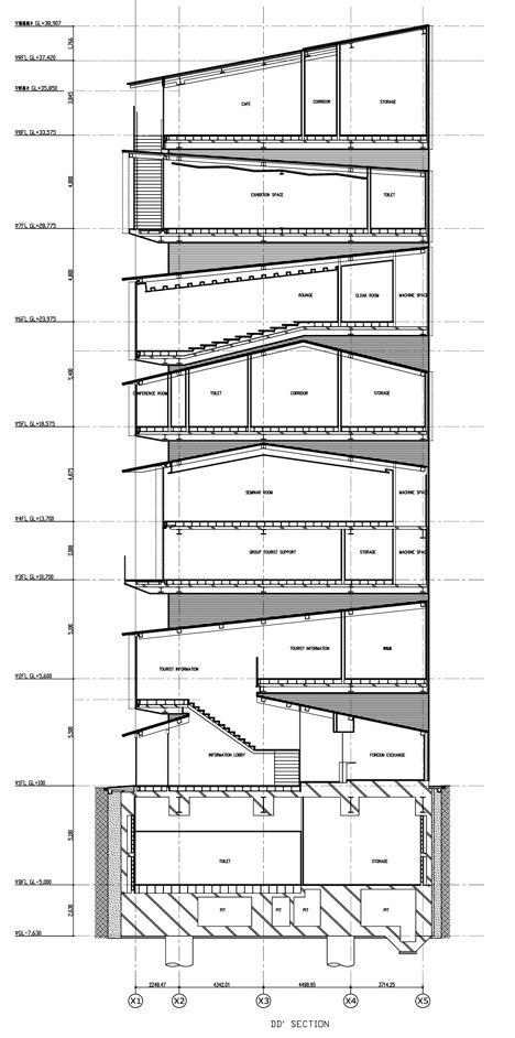
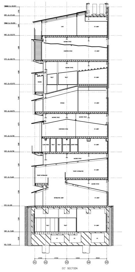
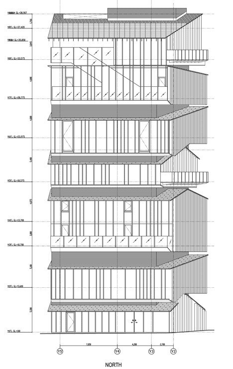
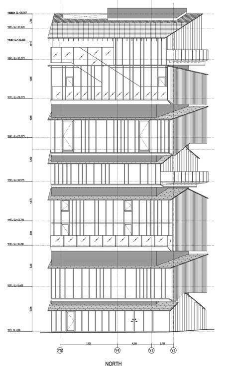
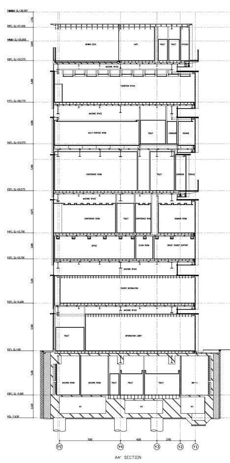
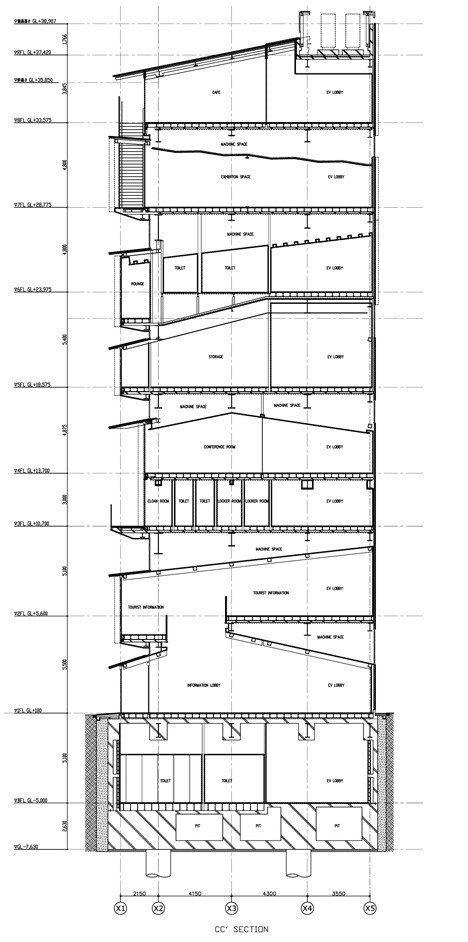
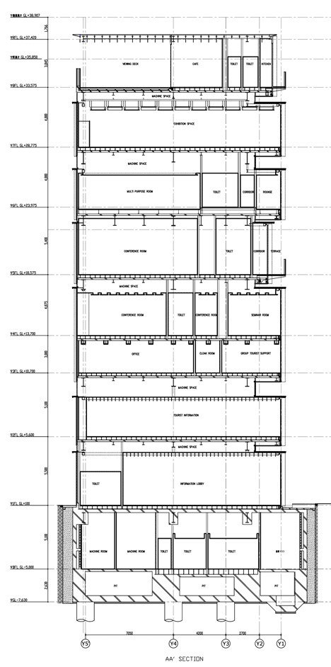
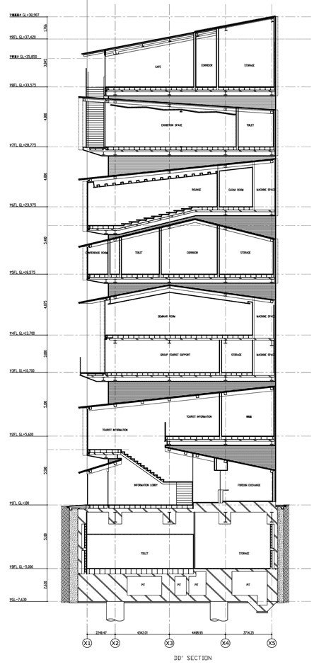
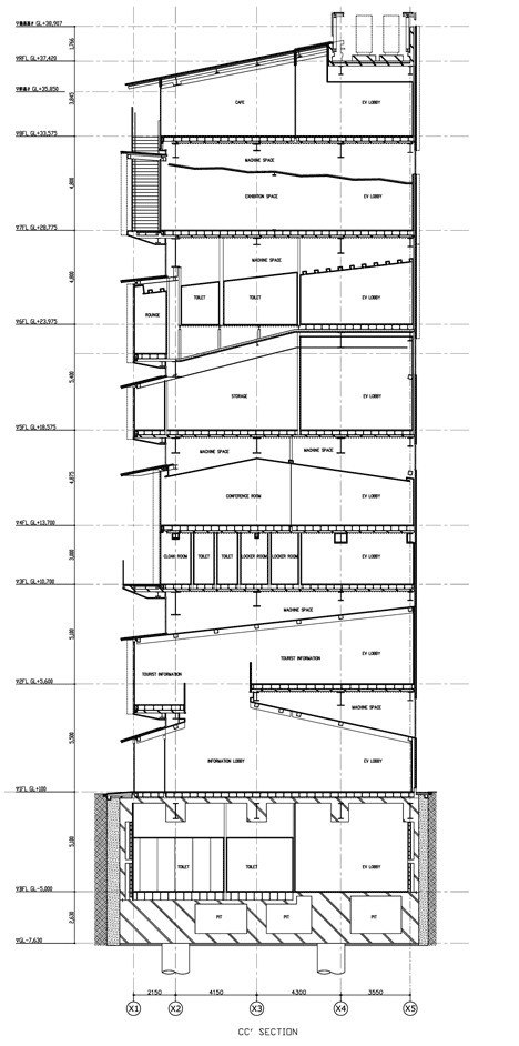
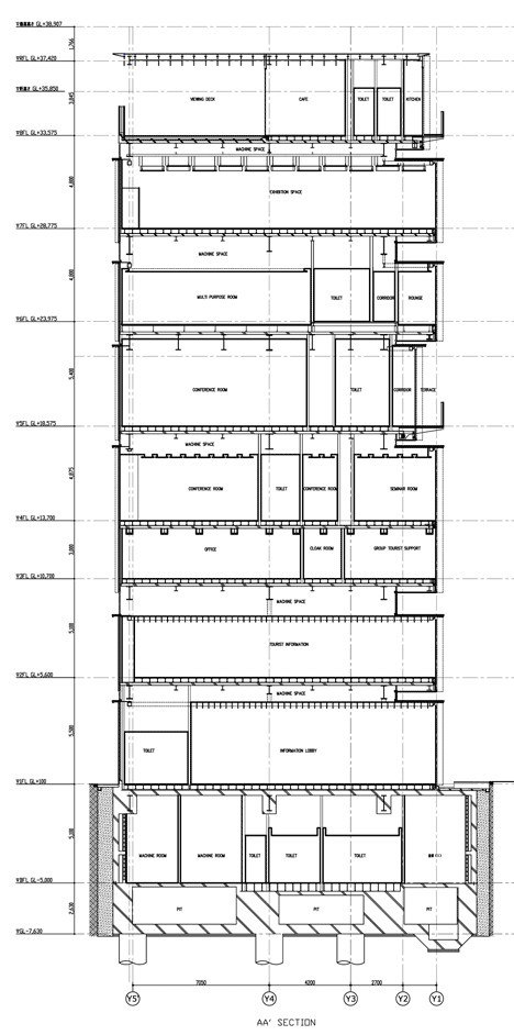
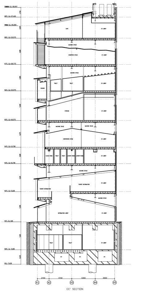
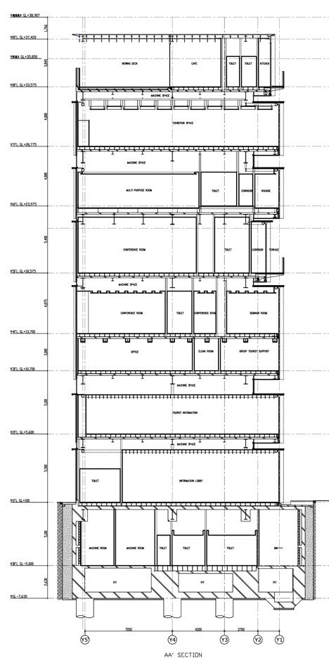
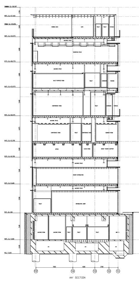
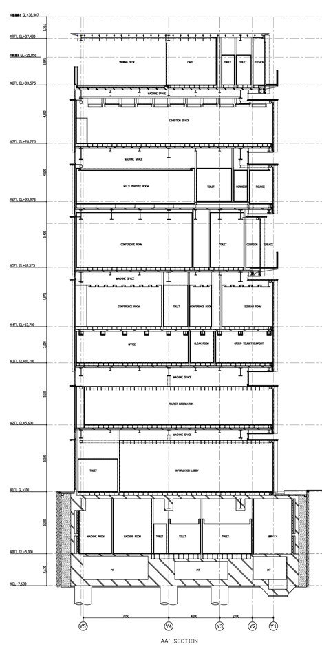
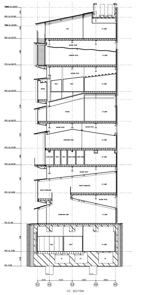
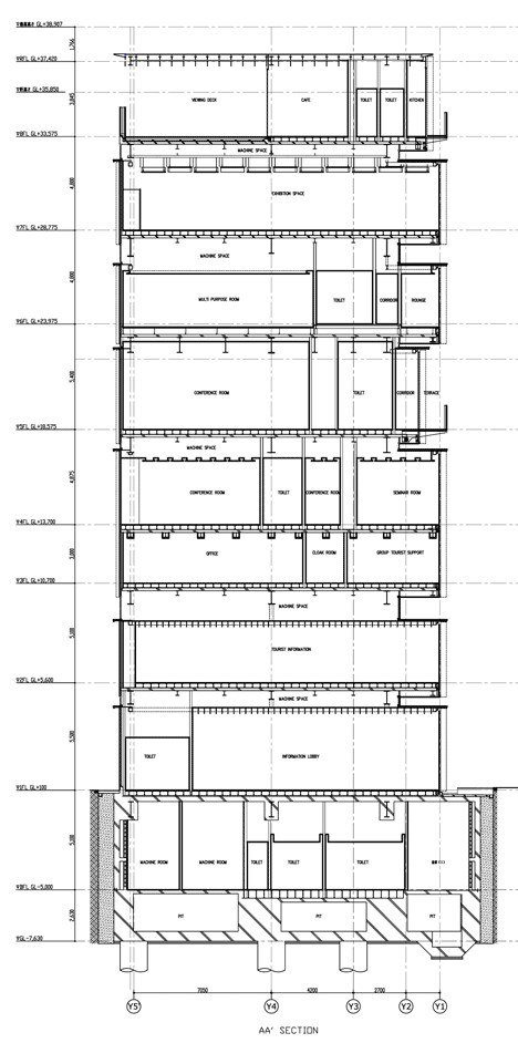
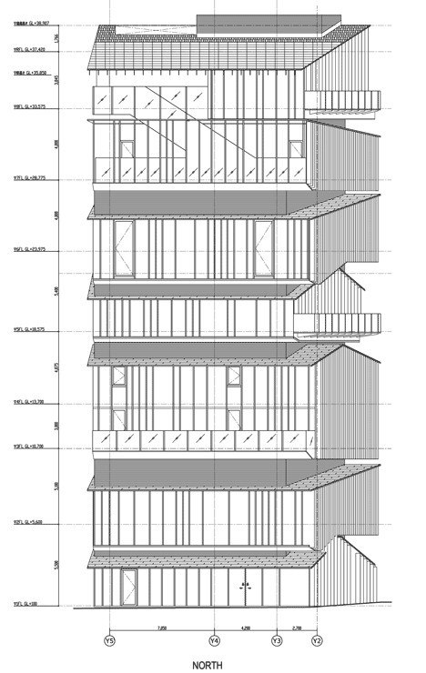
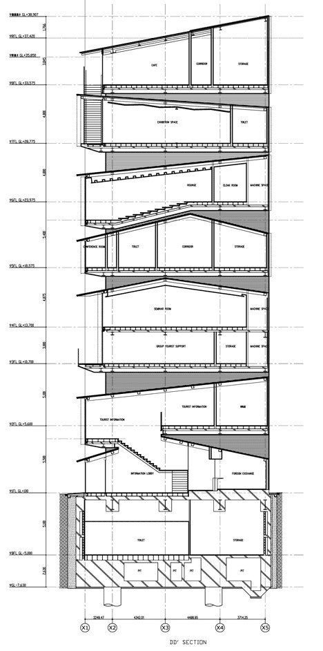
Здание расположено на углу, напротив старинных ворот Каминаримон, недалеко от главной достопримечательности квартала — самого древнего в японской столице буддийского храма Сэнсо-дзи (7 век н. э.). Восемь этажей этой своеобразной «пагоды» оформлены как поставленные друг на друга одноэтажные павильоны с крышами разной конфигурации.

Культурный и информационный центр района Асакуса © Takeshi Yamagishi
Культурный и информационный центр района Асакуса © Takeshi Yamagishi
Остекленные фасады снаружи закрыты деревянными «жалюзи». Плотность их расположения варьируется от яруса к ярусу, благодаря чему здание производит на пешехода новое впечатление при любом изменении точки зрения.

Культурный и информационный центр района Асакуса © Takeshi Yamagishi
Культурный и информационный центр района Асакуса © Takeshi Yamagishi
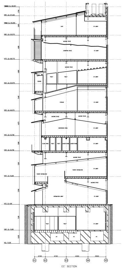
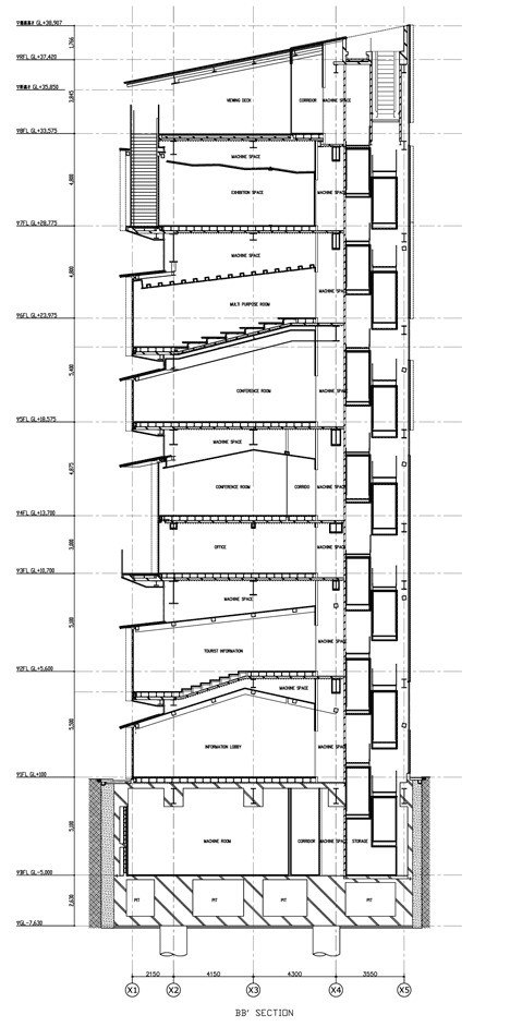
Назначение этажей-«павильонов» различно: выставочный зал, информационный центр для туристов, конференц-зал, многофункциональное пространство и т. д. За счет разницы в конструкции перекрытий каждый ярус получил индивидуальный характер и назначение. Так, у многофункционального помещения — ступенчатый пол (что позволяет использовать его как театр), а у выставочного зала — наклонный потолок.

Культурный и информационный центр района Асакуса © Takeshi Yamagishi
Культурный и информационный центр района Асакуса © Takeshi Yamagishi
Все инженерное оборудование располагается в скошенных по диагонали пустотах между этажами, что делает помещения более просторными, несмотря на вполне стандартное соотношение высоты здания и количества этажей.

Культурный и информационный центр района Асакуса © Takeshi Yamagishi
Культурный и информационный центр района Асакуса © Takeshi Yamagishi
Первые два яруса соединены открытыми лестницами и превращены в просторный атриум. На двух верхних этажах устроены балконы со стеклянным ограждением.

Культурный и информационный центр района Асакуса © Takeshi Yamagishi
Культурный и информационный центр района Асакуса © Takeshi Yamagishi
Интерьеры, как и фасады, отделаны деревянными панелями. Дерево — любимый материал Кенго Кумы, ассоциативно связывающий его постройки с традиционным японским зодчеством: в данном случае — с архитектурными памятниками, окружающими его информационный центр в Асакуса.
Культурный и информационный центр района Асакуса © Takeshi Yamagishi
Культурный и информационный центр района Асакуса © Takeshi Yamagishi
Культурный и информационный центр района Асакуса © Takeshi Yamagishi
Культурный и информационный центр района Асакуса © Takeshi Yamagishi
Культурный и информационный центр района Асакуса © Takeshi Yamagishi
Культурный и информационный центр района Асакуса © Takeshi Yamagishi
Культурный и информационный центр района Асакуса © Kengo Kuma & Associates
Культурный и информационный центр района Асакуса © Kengo Kuma & Associates
Культурный и информационный центр района Асакуса © Kengo Kuma & Associates
Культурный и информационный центр района Асакуса © Kengo Kuma & Associates
Культурный и информационный центр района Асакуса © Kengo Kuma & Associates
Культурный и информационный центр района Асакуса © Kengo Kuma & Associates
Культурный и информационный центр района Асакуса © Kengo Kuma & Associates
Культурный и информационный центр района Асакуса © Kengo Kuma & Associates
Культурный и информационный центр района Асакуса © Kengo Kuma & Associates
Культурный и информационный центр района Асакуса © Kengo Kuma & Associates
Культурный и информационный центр района Асакуса © Kengo Kuma & Associates
Культурный и информационный центр района Асакуса © Kengo Kuma & Associates
Культурный и информационный центр района Асакуса © Kengo Kuma & Associates
Культурный и информационный центр района Асакуса © Kengo Kuma & Associates
Культурный и информационный центр района Асакуса © Kengo Kuma & Associates
Культурный и информационный центр района Асакуса © Kengo Kuma & Associates
Культурный и информационный центр района Асакуса © Kengo Kuma & Associates
Культурный и информационный центр района Асакуса © Kengo Kuma & Associates
Культурный и информационный центр района Асакуса © Kengo Kuma & Associates
Культурный и информационный центр района Асакуса © Kengo Kuma & Associates
Культурный и информационный центр района Асакуса © Kengo Kuma & Associates
Культурный и информационный центр района Асакуса © Kengo Kuma & Associates
Культурный и информационный центр района Асакуса © Kengo Kuma & Associates
Культурный и информационный центр района Асакуса © Kengo Kuma & Associates
Культурный и информационный центр района Асакуса © Kengo Kuma & Associates
Культурный и информационный центр района Асакуса © Kengo Kuma & Associates
Культурный и информационный центр района Асакуса © Kengo Kuma & Associates
Культурный и информационный центр района Асакуса © Kengo Kuma & Associates
Культурный и информационный центр района Асакуса © Kengo Kuma & Associates
Культурный и информационный центр района Асакуса © Kengo Kuma & Associates
Культурный и информационный центр района Асакуса © Kengo Kuma & Associates
Культурный и информационный центр района Асакуса © Kengo Kuma & Associates
Культурный и информационный центр района Асакуса © Kengo Kuma & Associates
Культурный и информационный центр района Асакуса © Kengo Kuma & Associates
Культурный и информационный центр района Асакуса © Kengo Kuma & Associates
Культурный и информационный центр района Асакуса © Kengo Kuma & Associates
Культурный и информационный центр района Асакуса © Kengo Kuma & Associates
Культурный и информационный центр района Асакуса © Kengo Kuma & Associates