Размещено на портале Архи.ру (www.archi.ru)

28.08.2007

Спектакль в стиле лаунж

Мария Фадеева
Объект:
Индивидуальный жилой дом, Московская область (1500 кв.м)
Адрес:
Россия, Московская область,
Мастерская:
PANACOM
Авторский коллектив:
Н.Токарев, А.Леонович, Д.Кралечкин
конструктор С.Богословский

Большой – 1500 кв. метров, дом для поселка «Никольская слобода» от архитектурной компании ПАНАКОМ представляет из себя масштабную, но при этом легкую и изящную вариацию на тему загородного дома «лаунж». Авторы проекта последовательно разыгрывают несколько изящных «миниатюр» из загородной жизни

Индивидуальный жилой дом, Московская область
Индивидуальный жилой дом, Московская область
© PANACOM

Целыми днями мы все занимаемся делами, куда-то опаздываем, и уже все доделали, и никто от тебя ничего не требует, а остановиться не можешь. Чем больше мы работаем, чем быстрее происходят события в нашей деловой жизни, тем больше хочется расслабиться в редкие минуты отдыха и хорошо, когда архитектура нашего жилья способствует эффективности этого процесса. Когда смотришь на этот дом, еще один, спроектированный бюро Panacom для поселка «Никольская слобода», на ум приходит иностранное слово уже вошедшее в российский лексикон – лаунж. Архитекторы, еще несколько лет назад публиковавшие строгие дома и интерьеры, в которых преобладали контрастные сочетания, кажется, смягчились.

Большой дом (1500 кв. м) вальяжно раскинулся на своем участке – как человек, который удобно уселся в глубоком кресле, разложив руки на широких подлокотниках. Участок весьма выигрышный, поскольку с него открывается вид на центральный пруд – берега этого пруда мы уже описывали, рассказывая о трех других проектах, составляющих ансамбль центральной зоны поселения.

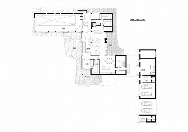
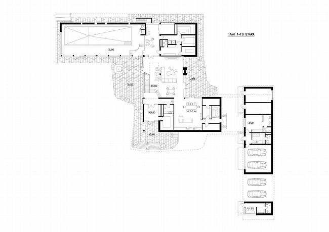
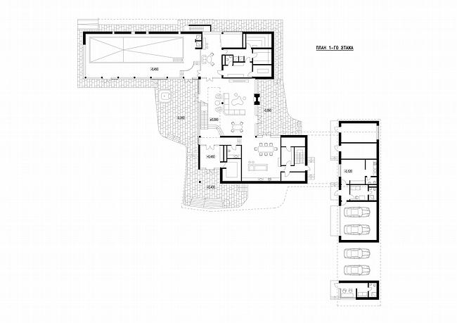
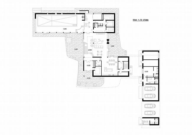
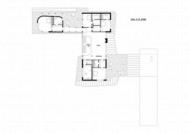
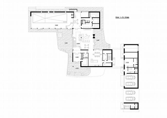
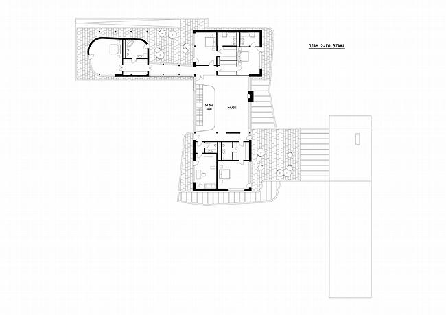
Дом состоит из трех частей: первая включает бассейн с «павильоном» хозяйской спальни над ним, вторая – общественную зону, над которой разместились детские комнаты и третья – одноэтажный блок подсобных помещений и гараж. Для того, чтобы объединить эти части в гармоничный ансамбль, архитекторы придумали несколько «сценарных миниатюр».

Во-первых, большой двор распланировали так, чтобы было видно поблескивание водной глади общественного пруда в центре поселка. Для того, чтобы сделать двор просторнее, а окрестные виды – красивее, дом расположили в углу, в глубине участка.

Вторая «миниатюра» связана с «дачным» образом жизни. Главное общественное помещение, гостиную – превратили в веранду. Она оказалась меж двух дворов. В результате из-за полностью остекленных наружных стен веранда-гостиная просвечивается насквозь. Кроме того, с обеих сторон сделаны открытые деревянные деки террас, на каждую из которых организован выход. Террасы становятся образным переходом от улицы к прозрачному интерьеру гостиной, а она – к более закрытым внутренним комнатам. Таким образом, вместо традиционного противопоставления «внутри–снаружи» возникает  последовательное и плавное перетекание пространства разной степени приватности: двор – терраса – прозрачная гостиная – дом.

Цепочку ассоциаций поддерживает тема воды, постоянно напоминающая о себе – снаружи в виде общественного пруда, а внутри – в виде бассейна и небольшого спа, оказавшегося на террасе как будто бы капля отделившаяся от «водной стихии», тоже своего рода переход. 

Но ярче всего образ перехода-перетекания проявлен в решении фасадов жилой части: здесь блестящее и прозрачное стекло местами прикрыто вертикальными деревянными ламелями-жалюзи, а где-то – соседствует с глухой деревянной облицовкой. Вместе эти фактурные изыски образуют подобие непрерывной ленты, текучей, вибрирующей, в которую «завернут» фасад. Что позволяет подчеркнуть горизонтальность здания, усиленную развитыми террасами и навесами, выделенными белым цветом.
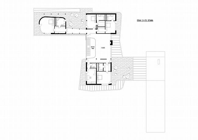
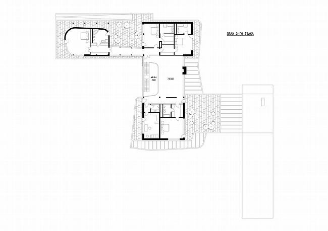
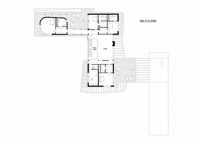
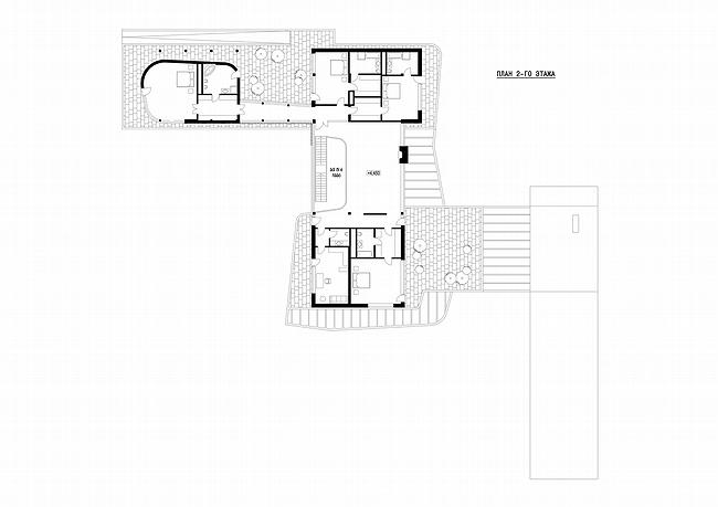
Если же вернуться к «миниатюрам», связанным с образом жизни, нельзя не обратить внимание на решение второго этажа. Спальни – это отдельные павильоны, соединенные переходами. Родительскую комнату с детскими соединяет остекленная галерея, а над двусветной гостиной устроена антресоль, из которой также можно разойтись по комнатам. Кстати, и антресоль относится к отдельному сценарию. По словам авторов проекта в последнее время заказчики часто предлагают предусмотреть «дубликат» гостиной на втором этаже дома – для более спокойного времяпрепровождения. Она достаточно большая и с самыми роскошными видами на пруд. В целом «спектакль» получился вполне увлекательный, но в меру легкий. Ровно так, как и мечтается посреди  нескончаемых рабочих дней.

Индивидуальный жилой дом, Московская область
Индивидуальный жилой дом, Московская область
© PANACOM
Индивидуальный жилой дом, Московская область
Индивидуальный жилой дом, Московская область
© PANACOM
Индивидуальный жилой дом, Московская область
Индивидуальный жилой дом, Московская область
© PANACOM
Индивидуальный жилой дом, Московская область
Индивидуальный жилой дом, Московская область
© PANACOM
Индивидуальный жилой дом, Московская область
Индивидуальный жилой дом, Московская область
© PANACOM
Индивидуальный жилой дом, Московская область
Индивидуальный жилой дом, Московская область
© PANACOM
Индивидуальный жилой дом, Московская область
Индивидуальный жилой дом, Московская область
© PANACOM
Индивидуальный жилой дом, Московская область
Индивидуальный жилой дом, Московская область
© PANACOM
Индивидуальный жилой дом, Московская область
Индивидуальный жилой дом, Московская область
© PANACOM