Размещено на портале Архи.ру (www.archi.ru)

27.06.2012

Античное наследие Галлии

Нина Фролова
Объект:
Музей Narbo Via
Адрес:
Франция, None, Нарбон.
Музей римской цивилизации в Ниме
Адрес:
Франция, None, Ним.
Мастерская:
Foster + Partners

На юге Франции построят два новых музея, посвященных наследию Древнего Рима.

Римский музей в Ниме © AECDP
Римский музей в Ниме © AECDP
Один, в Ниме, возведут по проекту Элизабет де Портзампарк, другой, в Нарбоне – бюро Нормана Фостера. Оба проекта были выбраны в ходе международных конкурсов.

Римский музей в Ниме © AECDP
Римский музей в Ниме © AECDP
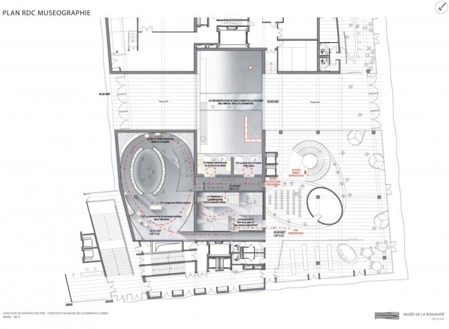
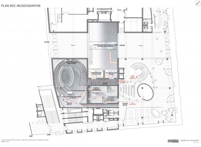
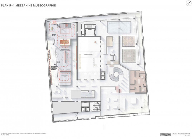
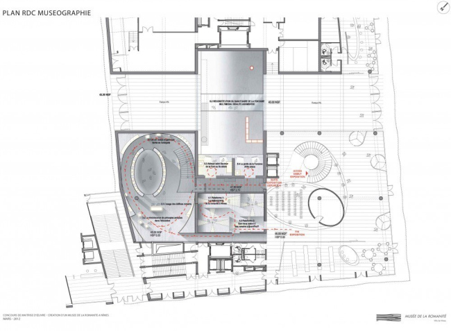
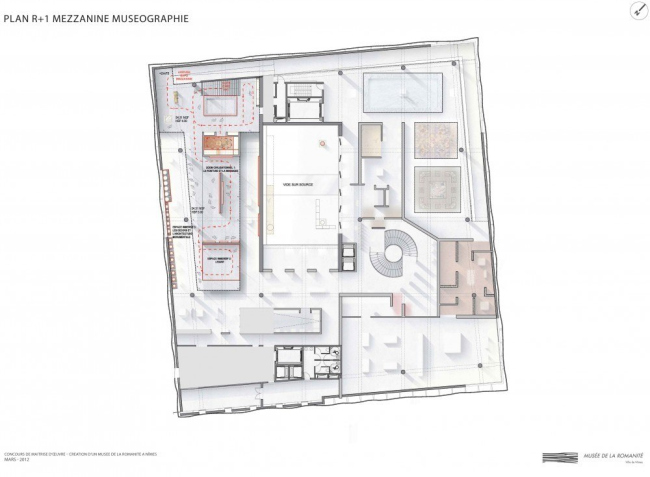
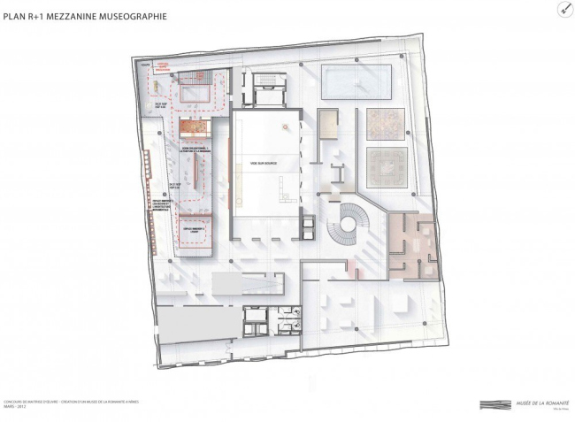
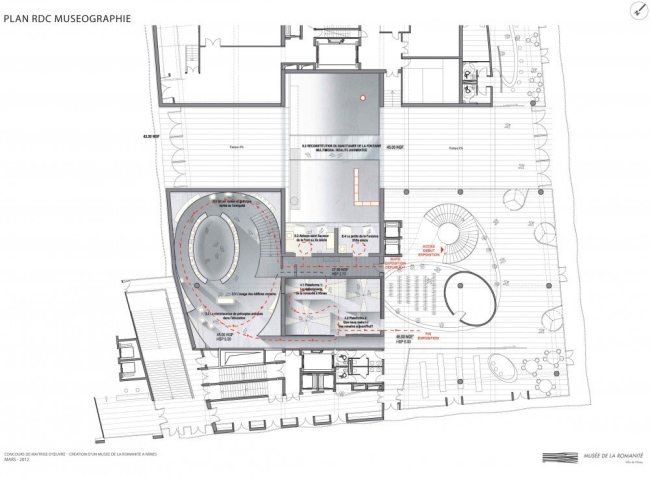
Здание Портзампарк возведут рядом с одной из главных достопримечательностей города – римским амфитеатром, так называемой Нимской ареной. Музей займет давно пустовавший участок на месте античных ворот, где проходит граница между исторической и современной частями Нима. Сооружение мягко противопоставляет себя древнему памятнику: его овальному плану – свой прямоугольный, вертикализму арок – горизонтальные ленты внешнего слоя фасада.

Римский музей в Ниме © AECDP
Римский музей в Ниме © AECDP
Римский музей в Ниме © AECDP
Римский музей в Ниме © AECDP
Первый этаж будет прозрачным, чтобы не закрывать виды на арену с соседних улиц. Сквозь музей проложат «улицу», ведущую в новый археологический парк за ним: в глубине квартала сохранились остатки римских укреплений. По этому пути сквозь здание можно будет пройти даже тогда, когда музей будет закрыт.

Римский музей в Ниме © AECDP
Римский музей в Ниме © AECDP
Римский музей в Ниме © AECDP
Римский музей в Ниме © AECDP
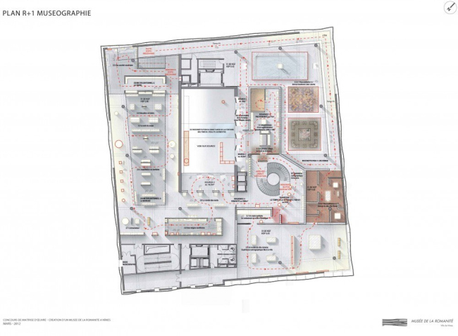
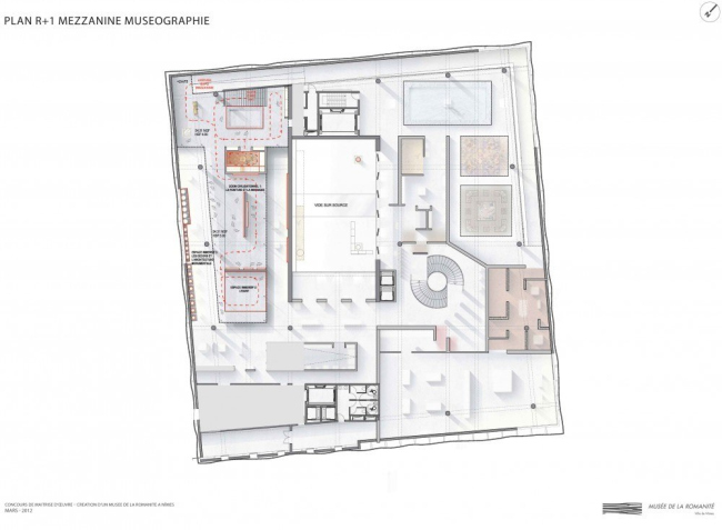
Внутренняя «улица» проходит через атриум, где впервые выставят фрагмент фронтона храма при священном источнике, главной святыне древнего Нима. Также публика в первый раз познакомится со многими другими экспонатами, для которых раньше в музее не было места. Элизабет де Портзампарк создаст и дизайн экспозиции, после осмотра которой посетители смогут подняться на озелененную кровлю музея и полюбоваться видами города.

Римский музей в Ниме © AECDP
Римский музей в Ниме © AECDP
Строительство запланировано на 2014–2017. Соперниками Портзампарк в финале конкурса были Руди Риччотти и Ричард Майер.

Римский музей в Ниме © AECDP
Римский музей в Ниме © AECDP
Диалог античности и современности в Ниме Норман Фостер уже выстроил в форме своего Carre d'art, а для Нарбона он предложил простое одноэтажное здание с крышей с глубоким выносом. В результате, вокруг римского музея возникнет тенистая площадь. Освещаться интерьер будет сквозь отверстия в кровле и ленты остекления, идущие поверху стен.

Римский музей в Нарбонне © Foster + Partners
Римский музей в Нарбонне © Foster + Partners
Центральную зону постройки, отданную исследователям и реставраторам, закроет по периметру «стена» из более чем 1000 римских надгробных рельефов. Свободная система экспонирования позволит менять их местами согласно нуждам музея, а через щели между ними посетители смогут увидеть работу сотрудников.

Римский музей в Нарбонне © Foster + Partners
Римский музей в Нарбонне © Foster + Partners
Также в здании разместятся залы постоянной экспозиции и временных выставок, мультимедийный образовательный центр и библиотека. Вокруг разобьют французский парк и римский сад, устроят амфитеатр под открытым небом.
Римский музей в Ниме © AECDP
Римский музей в Ниме © AECDP
Римский музей в Ниме © AECDP
Римский музей в Ниме © AECDP
Римский музей в Ниме © AECDP
Римский музей в Ниме © AECDP
Римский музей в Ниме © AECDP
Римский музей в Ниме © AECDP
Римский музей в Ниме © AECDP
Римский музей в Ниме © AECDP
Римский музей в Ниме © AECDP
Римский музей в Ниме © AECDP
Римский музей в Ниме © AECDP
Римский музей в Ниме © AECDP
Римский музей в Ниме © AECDP
Римский музей в Ниме © AECDP
Римский музей в Ниме © AECDP
Римский музей в Ниме © AECDP
Римский музей в Ниме © AECDP
Римский музей в Ниме © AECDP
Римский музей в Ниме © AECDP
Римский музей в Ниме © AECDP
Римский музей в Ниме © AECDP
Римский музей в Ниме © AECDP
Римский музей в Ниме © AECDP
Римский музей в Ниме © AECDP
Римский музей в Ниме © AECDP
Римский музей в Ниме © AECDP
Римский музей в Ниме © AECDP
Римский музей в Ниме © AECDP
Римский музей в Ниме © AECDP
Римский музей в Ниме © AECDP
Римский музей в Ниме © AECDP
Римский музей в Ниме © AECDP