Размещено на портале Архи.ру (www.archi.ru)

14.06.2012

Белое навершие

Нина Фролова
Объект:
Комплекс Löwenbräukunst – Кунстхалле в Цюрихе
Адрес:
Швейцария, None, Цюрих.
Мастерская:
Gigon/Guyer

В Цюрихе открылся после реконструкции по проекту бюро Gigon / Guyer выставочный зал Кунстхалле.

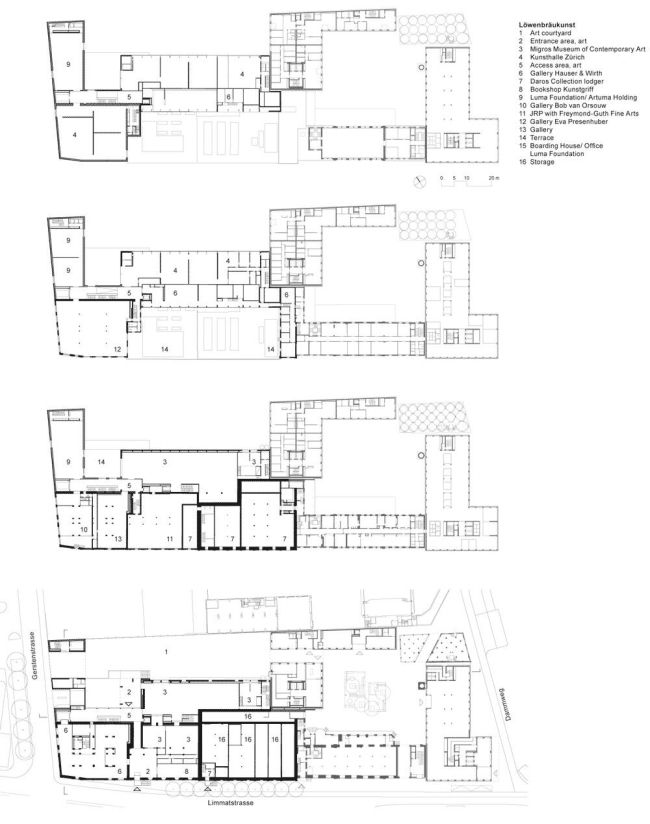
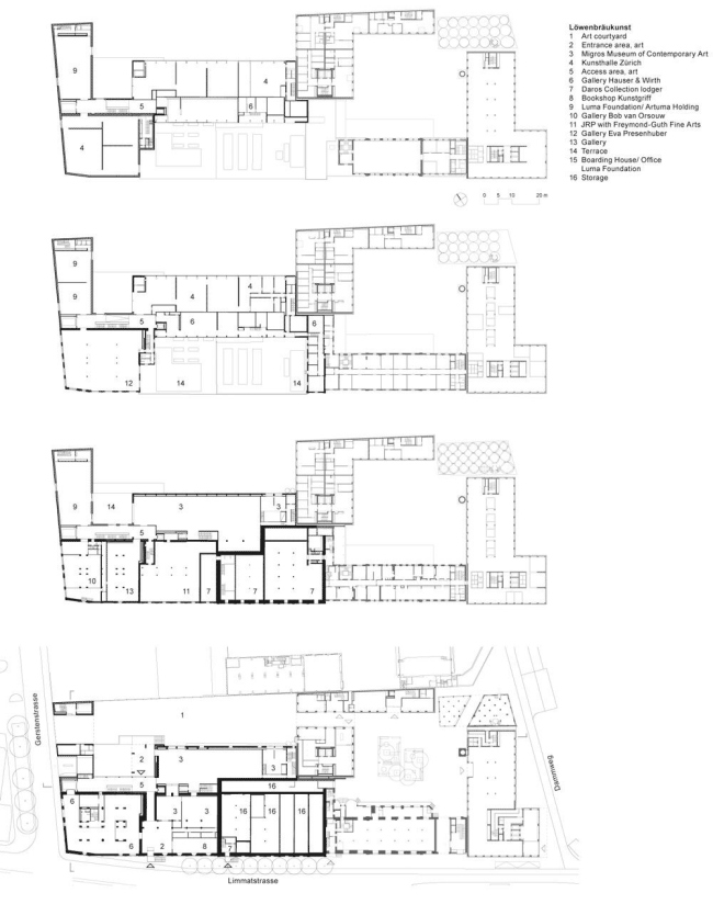
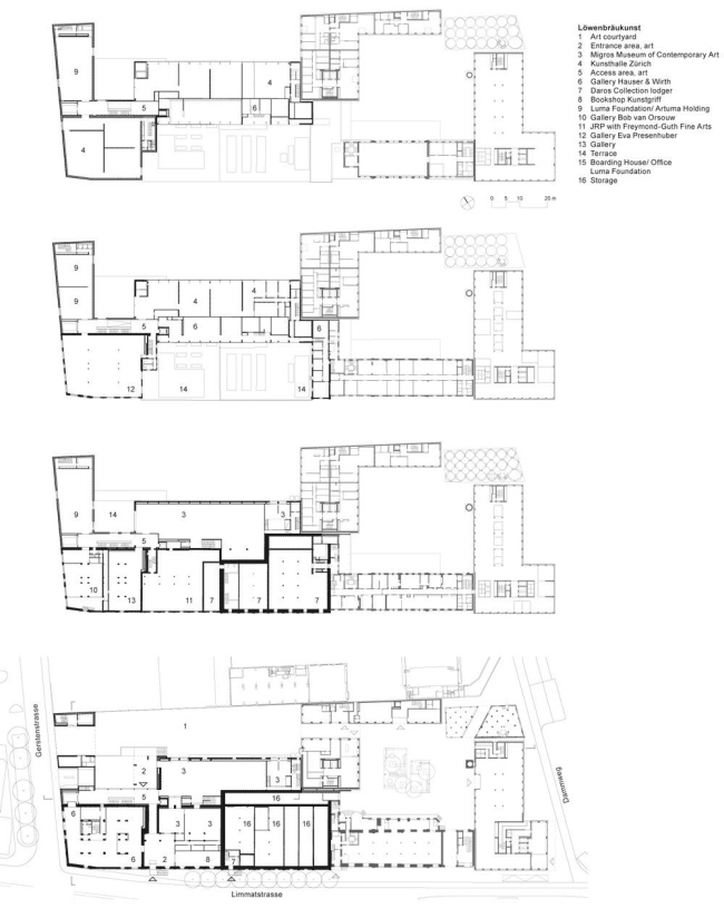
С 1996 Кунстхалле расположен в бывшей пивоварне Löwenbräu, где он соседствует с музеем современного искусства Migros и несколькими галереями. Комплекс пивоварни после реконструкции сохранил своих «культурных» арендаторов, получив новое название Löwenbräukunst.

Комплекс Löwenbräukunst - Кунстхалле в Цюрихе © Thies Wachter
Комплекс Löwenbräukunst - Кунстхалле в Цюрихе © Thies Wachter
Комплекс Löwenbräukunst - Кунстхалле в Цюрихе © Thies Wachter
Комплекс Löwenbräukunst - Кунстхалле в Цюрихе © Thies Wachter

Чтобы профинансировать перестройку, к индустриальному корпусу добавили жилую башню и офисное здание: они будут готовы к концу текущего года (все части проекта выполнены Gigon / Guyer).
Комплекс Löwenbräukunst - Кунстхалле в Цюрихе © Thies Wachter
Комплекс Löwenbräukunst - Кунстхалле в Цюрихе © Thies Wachter
Комплекс Löwenbräukunst - Кунстхалле в Цюрихе © Thies Wachter
Комплекс Löwenbräukunst - Кунстхалле в Цюрихе © Thies Wachter

Кунстхалле в исторической части занимаемых им помещений в дополнение к двум существующим получил еще один этаж с библиотекой, административными пространствами, переговорными, архивом и мастерскими. В белом бетонном блоке, «наползающем» на старую часть, разместились выставочные залы, место для общественных мероприятий и терраса на крыше.
Комплекс Löwenbräukunst - Кунстхалле в Цюрихе © Thies Wachter
Комплекс Löwenbräukunst - Кунстхалле в Цюрихе © Thies Wachter
Комплекс Löwenbräukunst - Кунстхалле в Цюрихе © Gigon/Guyer
Комплекс Löwenbräukunst - Кунстхалле в Цюрихе © Gigon/Guyer
Комплекс Löwenbräukunst - Кунстхалле в Цюрихе © Gigon/Guyer
Комплекс Löwenbräukunst - Кунстхалле в Цюрихе © Gigon/Guyer
Комплекс Löwenbräukunst - Кунстхалле в Цюрихе © Gigon/Guyer
Комплекс Löwenbräukunst - Кунстхалле в Цюрихе © Gigon/Guyer
Комплекс Löwenbräukunst - общий вид. Проект © Gigon/Guyer
Комплекс Löwenbräukunst - общий вид. Проект © Gigon/Guyer
Комплекс Löwenbräukunst - Кунстхалле в Цюрихе © Gigon/Guyer
Комплекс Löwenbräukunst - Кунстхалле в Цюрихе © Gigon/Guyer