Размещено на портале Архи.ру (www.archi.ru)

23.04.2012

Школа с сосновыми фасадами

Объект:
Школа имени Люси Обрак
Адрес:
Франция, None, Париж.

В Нантере, одном из крупнейших пригородов Парижа, завершено строительство школьного центра имени Люси Обрак. Автор проекта — австрийский архитектор Дитмар Файхтингер.

Школьный центр имени Люси Обрак © Dietmar Feichtinger Architectes / Photo: David Boureau
Школьный центр имени Люси Обрак © Dietmar Feichtinger Architectes / Photo: David Boureau
От комплекса открываются эффектные виды на деловой район Дефанс, но учебные корпуса окружены унылой застройкой района Прованс де Франс — преимущественно социальным жильем. Однако школьный центр не стремится соответствовать среде: напротив, он заявляет о своей самобытности, наделяя городское пространство новым качеством.
Школьный центр имени Люси Обрак © Dietmar Feichtinger Architectes / Photo: David Boureau
Школьный центр имени Люси Обрак © Dietmar Feichtinger Architectes / Photo: David Boureau


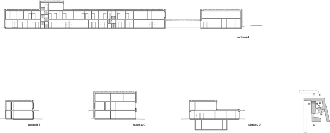
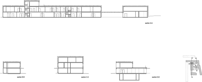
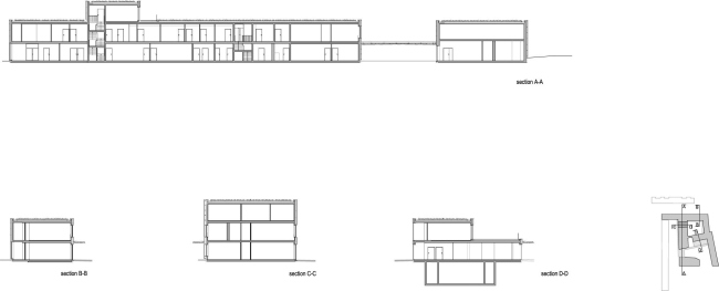
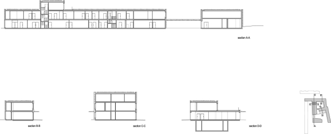
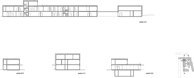
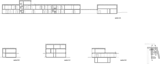
Основное внимание притягивают фасады здания, обшитые некрашеными сосновыми досками. Неритмичное чередование дерева со стеклянными поверхностями формирует живой, органичный рисунок. Природные мотивы и, одновременно, уход от типовой городской застройки усиливаются благодаря озелененным кровлям. 
Школьный центр имени Люси Обрак © Dietmar Feichtinger Architectes / Photo: David Boureau
Школьный центр имени Люси Обрак © Dietmar Feichtinger Architectes / Photo: David Boureau


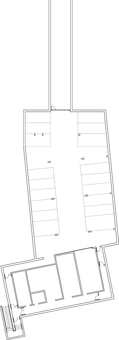
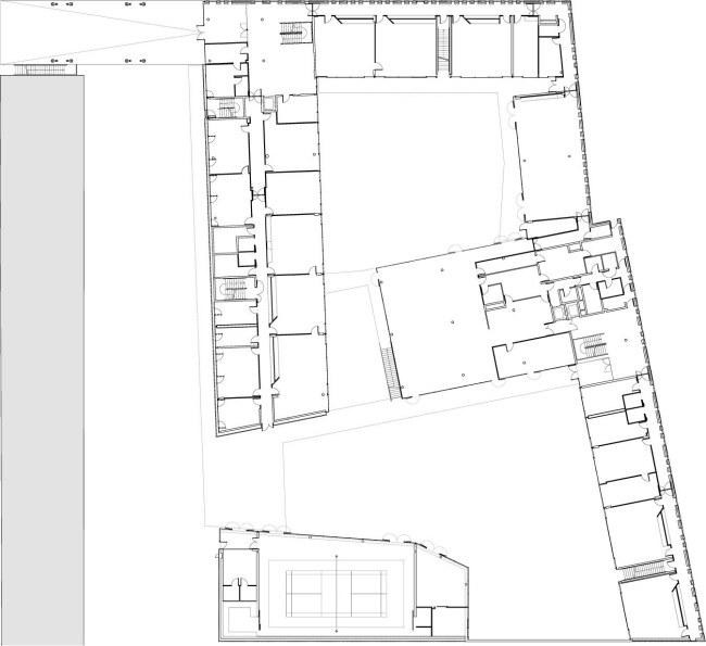
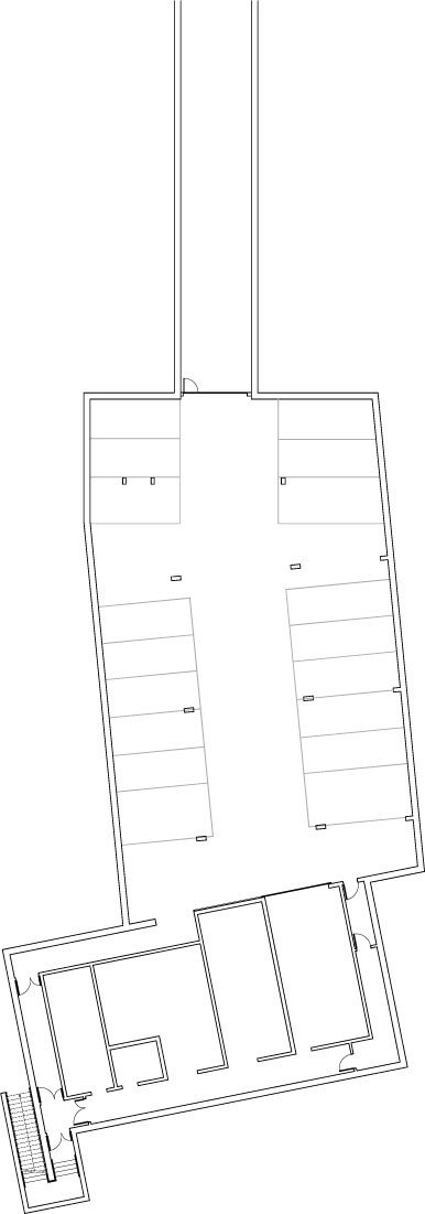
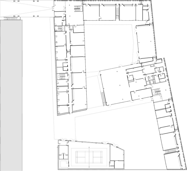
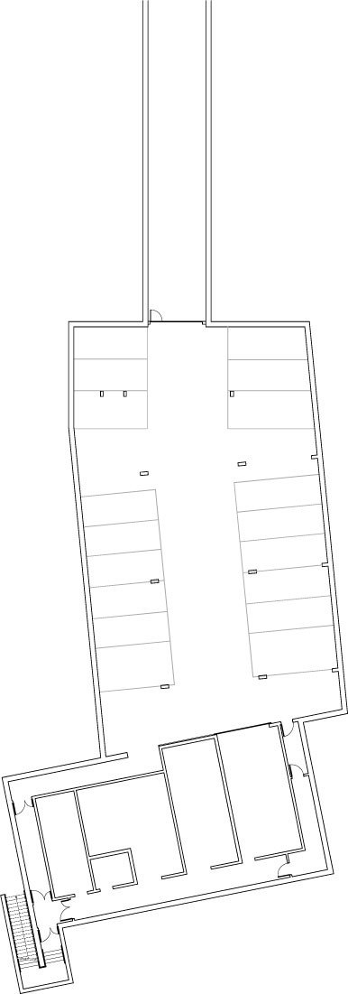
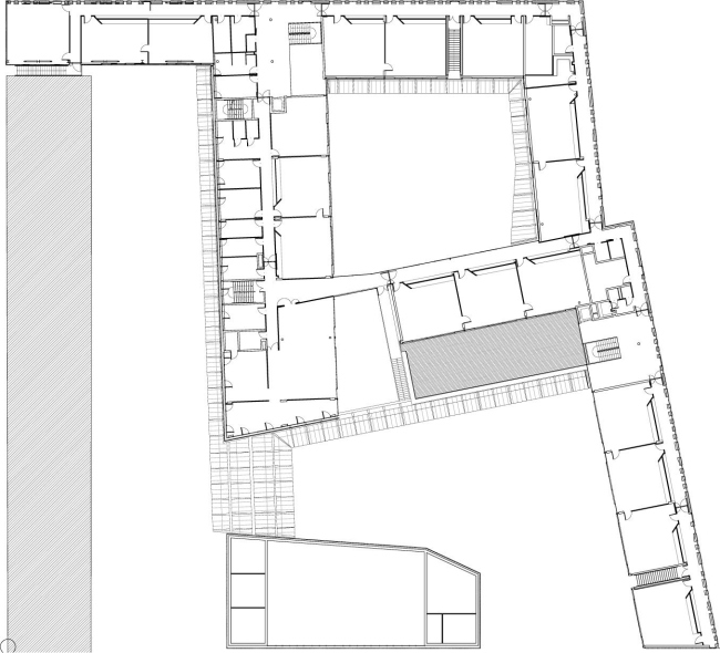
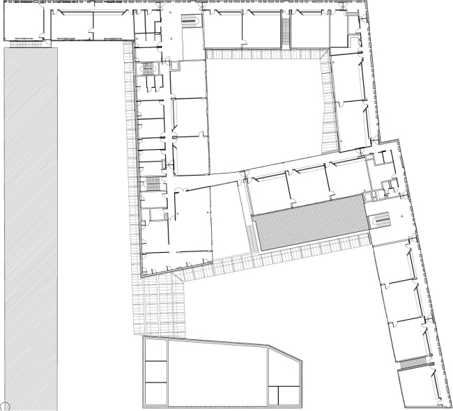
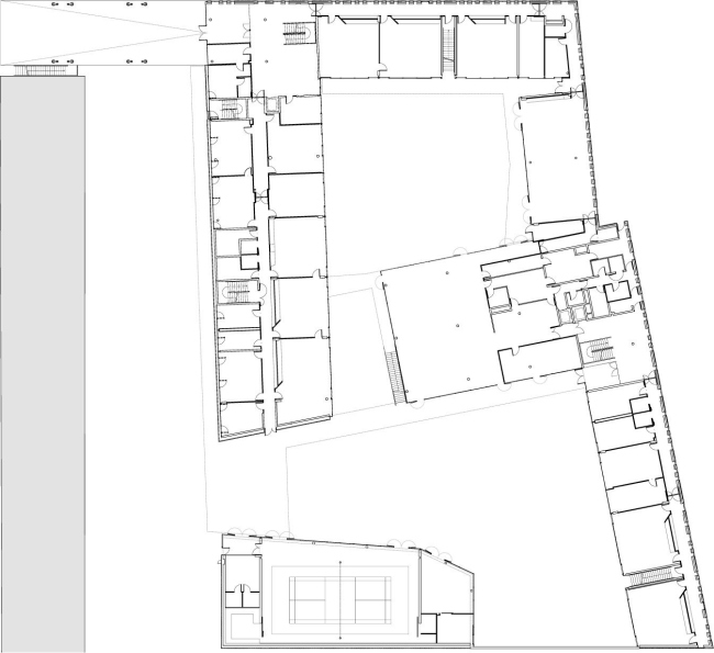
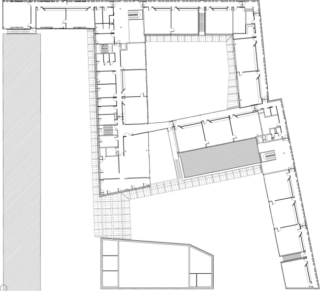
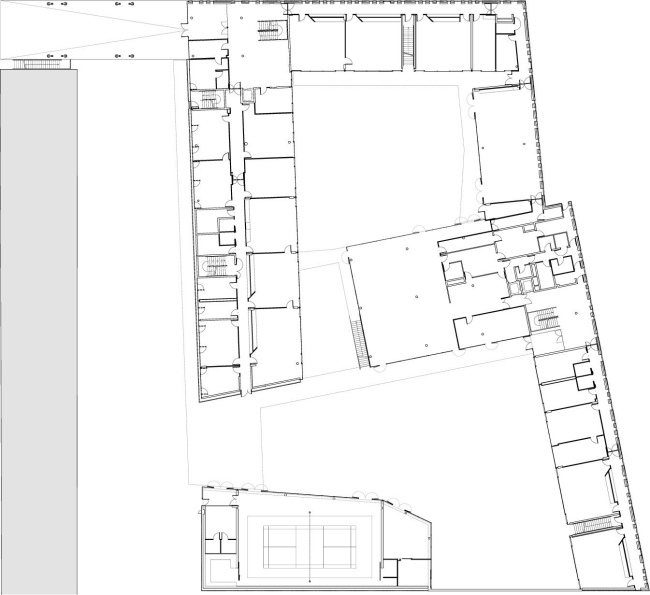
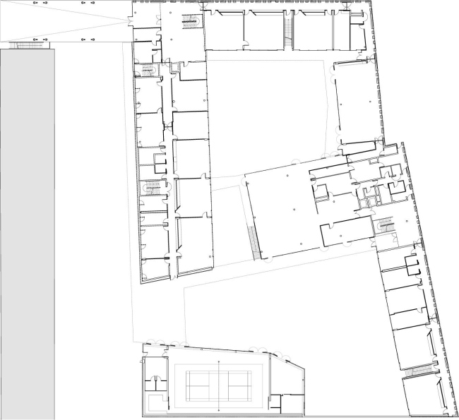
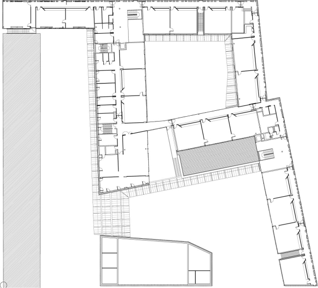
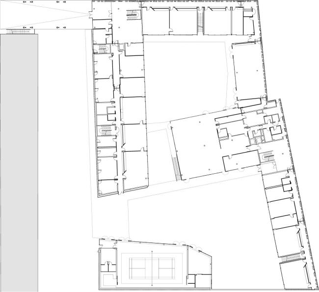
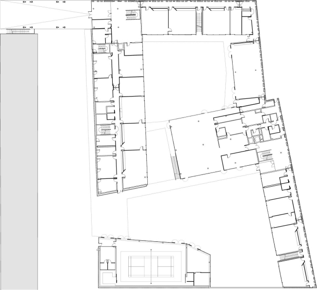
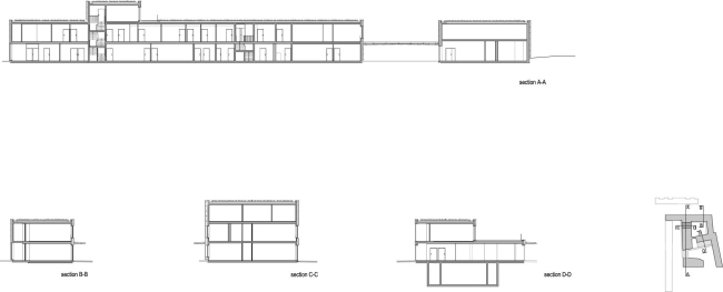
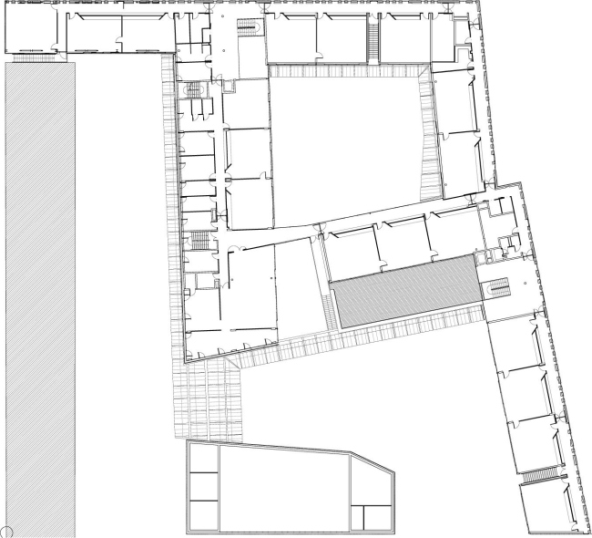
В-образная компоновка 2-этажных корпусов образует два внутренних двора: квадратный двор детского сада и чуть более крупный трапециевидный двор начальной школы. Планировочная схема коридорного типа позволяет организовать внутреннее пространство таким образом, чтобы учебные классы выходили окнами во двор. Такая ориентация ограждает учащихся от городского шума, а обильное остекление наполняет интерьеры солнечным светом.
Школьный центр имени Люси Обрак © Dietmar Feichtinger Architectes / Photo: David Boureau
Школьный центр имени Люси Обрак © Dietmar Feichtinger Architectes / Photo: David Boureau


Корпус детского сада вмещают пять классов, начальной школы — девять, три из них имеют выход на террасу. Помимо учебных помещений, в здании имеются музыкальный и спортивный залы, компьютерный кабинет, библиотека, столовая и офисы администрации.
Школьный центр имени Люси Обрак © Dietmar Feichtinger Architectes / Photo: David Boureau
Школьный центр имени Люси Обрак © Dietmar Feichtinger Architectes / Photo: David Boureau


Для малышей и для детей постарше устроены раздельные входы в здание со двора, а центральный вход в школу расположен в северной части комплекса, под консольным выносом библиотеки. Дворовые и прилегающие территории благоустроены: предусмотрены вымостка, озеленение, открытые игровые площадки, стоянки для велосипедов. В подземной части постройки размещена парковка для автомобилей.

Алла Павликова
Школьный центр имени Люси Обрак © Dietmar Feichtinger Architectes / Photo: David Boureau
Школьный центр имени Люси Обрак © Dietmar Feichtinger Architectes / Photo: David Boureau
Школьный центр имени Люси Обрак © Dietmar Feichtinger Architectes / Photo: David Boureau
Школьный центр имени Люси Обрак © Dietmar Feichtinger Architectes / Photo: David Boureau
Школьный центр имени Люси Обрак © Dietmar Feichtinger Architectes / Photo: David Boureau
Школьный центр имени Люси Обрак © Dietmar Feichtinger Architectes / Photo: David Boureau
Школьный центр имени Люси Обрак © Dietmar Feichtinger Architectes / Photo: David Boureau
Школьный центр имени Люси Обрак © Dietmar Feichtinger Architectes / Photo: David Boureau
Школьный центр имени Люси Обрак © Dietmar Feichtinger Architectes / Photo: David Boureau
Школьный центр имени Люси Обрак © Dietmar Feichtinger Architectes / Photo: David Boureau
Школьный центр имени Люси Обрак © Dietmar Feichtinger Architectes / Photo: David Boureau
Школьный центр имени Люси Обрак © Dietmar Feichtinger Architectes / Photo: David Boureau
Школьный центр имени Люси Обрак © Dietmar Feichtinger Architectes / Photo: David Boureau
Школьный центр имени Люси Обрак © Dietmar Feichtinger Architectes / Photo: David Boureau
Школьный центр имени Люси Обрак © Dietmar Feichtinger Architectes / Photo: David Boureau
Школьный центр имени Люси Обрак © Dietmar Feichtinger Architectes / Photo: David Boureau
Школьный центр имени Люси Обрак © Dietmar Feichtinger Architectes / Photo: David Boureau
Школьный центр имени Люси Обрак © Dietmar Feichtinger Architectes / Photo: David Boureau
Школьный центр имени Люси Обрак © Dietmar Feichtinger Architectes / Photo: David Boureau
Школьный центр имени Люси Обрак © Dietmar Feichtinger Architectes / Photo: David Boureau
Школьный центр имени Люси Обрак © Dietmar Feichtinger Architectes / Photo: David Boureau
Школьный центр имени Люси Обрак © Dietmar Feichtinger Architectes / Photo: David Boureau
Школьный центр имени Люси Обрак © Dietmar Feichtinger Architectes / Photo: David Boureau
Школьный центр имени Люси Обрак © Dietmar Feichtinger Architectes / Photo: David Boureau
Школьный центр имени Люси Обрак © Dietmar Feichtinger Architectes / Photo: David Boureau
Школьный центр имени Люси Обрак © Dietmar Feichtinger Architectes / Photo: David Boureau
Школьный центр имени Люси Обрак © Dietmar Feichtinger Architectes / Photo: David Boureau
Школьный центр имени Люси Обрак © Dietmar Feichtinger Architectes / Photo: David Boureau
Школьный центр имени Люси Обрак © Dietmar Feichtinger Architectes
Школьный центр имени Люси Обрак © Dietmar Feichtinger Architectes
Школьный центр имени Люси Обрак © Dietmar Feichtinger Architectes
Школьный центр имени Люси Обрак © Dietmar Feichtinger Architectes
Школьный центр имени Люси Обрак © Dietmar Feichtinger Architectes
Школьный центр имени Люси Обрак © Dietmar Feichtinger Architectes
Школьный центр имени Люси Обрак © Dietmar Feichtinger Architectes
Школьный центр имени Люси Обрак © Dietmar Feichtinger Architectes
Школьный центр имени Люси Обрак © Dietmar Feichtinger Architectes
Школьный центр имени Люси Обрак © Dietmar Feichtinger Architectes
Школьный центр имени Люси Обрак © Dietmar Feichtinger Architectes
Школьный центр имени Люси Обрак © Dietmar Feichtinger Architectes
Школьный центр имени Люси Обрак © Dietmar Feichtinger Architectes
Школьный центр имени Люси Обрак © Dietmar Feichtinger Architectes