Размещено на портале Архи.ру (www.archi.ru)

24.04.2012

В цвет заката

Объект:
Центр исполнительских искусств Spira
Адрес:
Швеция, None, Йенчепинг.

В шведском Йенчепинге по проекту архитектора Герта Вингорда закончено строительство Центра исполнительских искусств Spira. Эффектное пятиугольное здание в бело-оранжевую полоску возведено на берегу озера Мунксьон, что в самом центре города.

Центр исполнительских искусств Spira © Ulf Celander
Центр исполнительских искусств Spira © Ulf Celander
Архитектурный конкурс на проект нового центра состоялся в Йенчепинге еще в 2007 году, и победу в нем жюри безоговорочно присудило коллективу Герта Вингорда.
Центр исполнительских искусств Spira © Ulf Celander
Центр исполнительских искусств Spira © Ulf Celander

По мнению экспертов, архитектор и команда предложили не только самое яркое образное решение, но и самую оптимальную планировочную схему комплекса, который планируют использовать сразу несколько творческих коллективов.
Центр исполнительских искусств Spira © Åke E:son Lindman
Центр исполнительских искусств Spira © Åke E:son Lindman

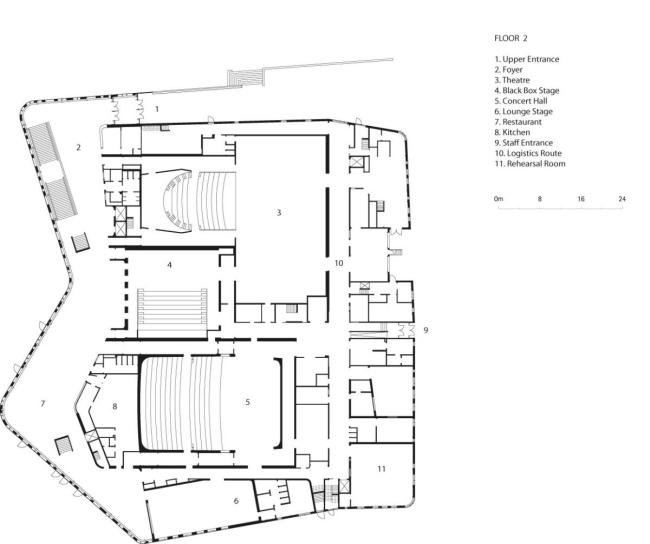
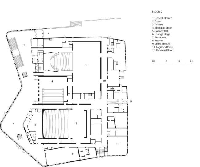
Достаточно сказать, что в здании площадью 15 тыс. м2 Вингорд смог разместить и концертный зал, и театральную сцену, и экспериментальный зал типа black box, а также репетиторий, артистическое кафе и многофункциональное фойе для посетителей.
Центр исполнительских искусств Spira © Åke E:son Lindman
Центр исполнительских искусств Spira © Åke E:son Lindman

Здание, имеющее в плане форму неправильного пятиугольника, расположено на оконечности насыпного полуострова таким образом, чтобы центральное фойе было ориентировано на запад и его панорамное остекление «ловило» закатное солнце, отражающееся в воде озера. Вдоль восточного фасада комплекса архитекторы, наоборот, сгруппировали офисные и административные помещения, нуждающиеся в достаточном освещении, но не заинтересованные в избытке прямых солнечных лучей.
Центр исполнительских искусств Spira © Åke E:son Lindman
Центр исполнительских искусств Spira © Åke E:son Lindman

Поэтому и сами фасады решены по-разному: западный составлен из широких вертикальных стеклянных полос, часть которых тонирована в теплый оранжевый цвет, родственный вечернему солнцу, тогда как все остальные представляют собой более глухие светлые поверхности.
Центр исполнительских искусств Spira © Wingårdh Arkitektkontor
Центр исполнительских искусств Spira © Wingårdh Arkitektkontor

Главный вход в центр оформлен эффектной консолью, а «прогиб» ориентированного на озеро фасада удачно использован архитекторами для создания пешеходной площади.

А. М.
Центр исполнительских искусств Spira © Åke E:son Lindman
Центр исполнительских искусств Spira © Åke E:son Lindman
Центр исполнительских искусств Spira © Åke E:son Lindman
Центр исполнительских искусств Spira © Åke E:son Lindman
Центр исполнительских искусств Spira © Åke E:son Lindman
Центр исполнительских искусств Spira © Åke E:son Lindman
Центр исполнительских искусств Spira © Åke E:son Lindman
Центр исполнительских искусств Spira © Åke E:son Lindman
Центр исполнительских искусств Spira © Åke E:son Lindman
Центр исполнительских искусств Spira © Åke E:son Lindman
Центр исполнительских искусств Spira © Åke E:son Lindman
Центр исполнительских искусств Spira © Åke E:son Lindman
Центр исполнительских искусств Spira © Åke E:son Lindman
Центр исполнительских искусств Spira © Åke E:son Lindman
Центр исполнительских искусств Spira © Wingårdh Arkitektkontor
Центр исполнительских искусств Spira © Wingårdh Arkitektkontor
Центр исполнительских искусств Spira © Wingårdh Arkitektkontor
Центр исполнительских искусств Spira © Wingårdh Arkitektkontor
Центр исполнительских искусств Spira © Wingårdh Arkitektkontor
Центр исполнительских искусств Spira © Wingårdh Arkitektkontor
Центр исполнительских искусств Spira © Wingårdh Arkitektkontor
Центр исполнительских искусств Spira © Wingårdh Arkitektkontor
Центр исполнительских искусств Spira © Wingårdh Arkitektkontor
Центр исполнительских искусств Spira © Wingårdh Arkitektkontor
Центр исполнительских искусств Spira © Wingårdh Arkitektkontor
Центр исполнительских искусств Spira © Wingårdh Arkitektkontor