Размещено на портале Архи.ру (www.archi.ru)

09.04.2012

Длительный проект для биеннале

Объект:
Павильон Австралии на Венецианской биеннале
Адрес:
Италия, None, Венеция.
Мастерская:
Denton Corker Marshall

Бюро «Дентон Коркер Маршалл» представило проект нового здания павильона Австралии на Венецианской биеннале.

Павильон Австралии на Венецианской биеннале © Denton Corker Marshall
Павильон Австралии на Венецианской биеннале © Denton Corker Marshall
До сих пор среди национальных «представительств» в Джардини австралийский корпус был одним из самых скромных. Объяснение просто: здание 1988 года (архитектор Филип Кокс, Philip Cox) было задумано как временная постройка и никогда не претендовало на репрезентативность.
Павильон Австралии на Венецианской биеннале © Denton Corker Marshall
Павильон Австралии на Венецианской биеннале © Denton Corker Marshall


Планы построить что-либо более эффектное никак не могли воплотиться в жизнь, пока летом 2011, в ходе очередной художественной биеннале, группа австралийских архитекторов не выступила с резкой критикой павильона и провинциального имиджа страны, который он, по их мнению, создает. В результате, был объявлен открытый конкурс, одновременно начали собирать средства (например, 1 млн австралийских долларов пожертвовал комиссар павильона, банкир Саймон Мордант, Simon Mordant), и к арт-биеннале 2015 национальная экспозиция должна быть размещена уже в новой постройке.
Павильон Австралии на Венецианской биеннале © Denton Corker Marshall
Павильон Австралии на Венецианской биеннале © Denton Corker Marshall


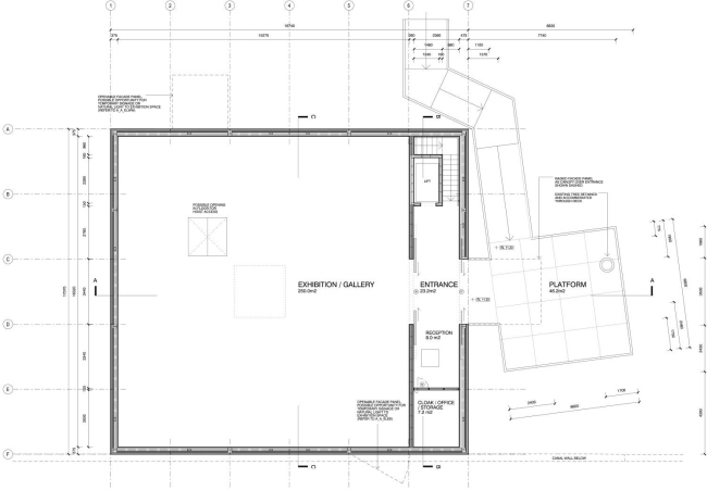
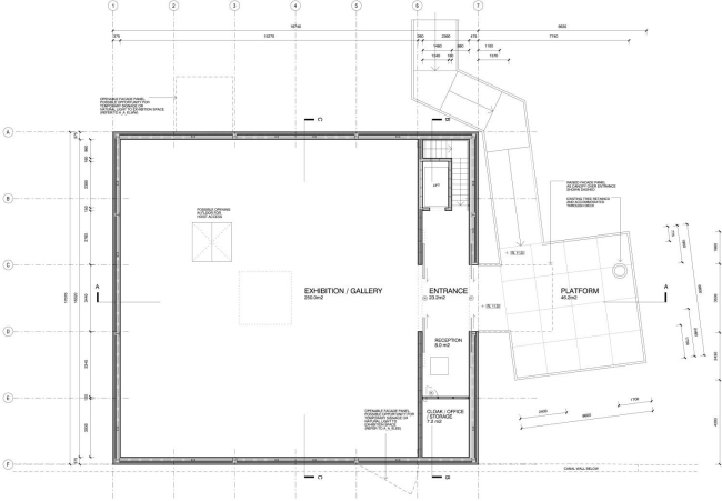
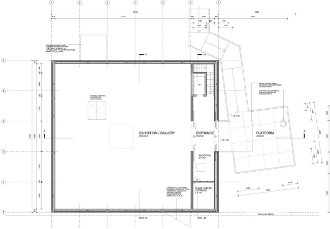
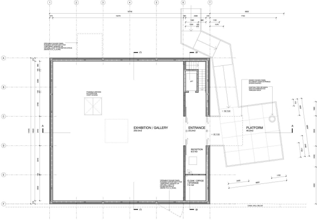
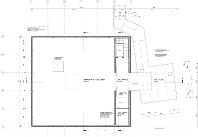
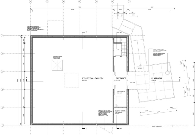
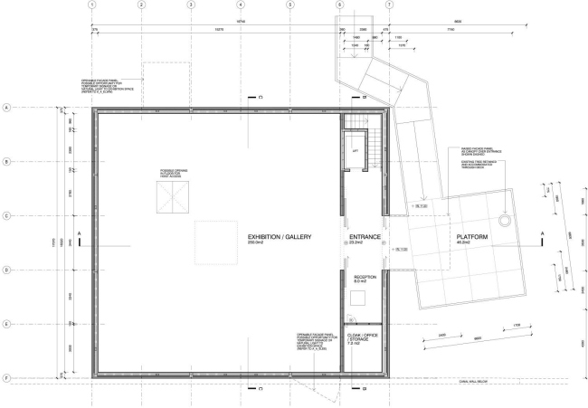
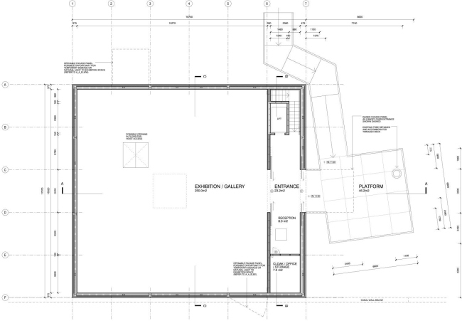
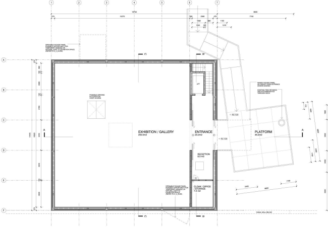
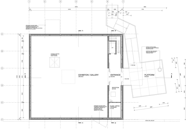
Проект «Дентон Коркер Маршалл» представляет собой «белую коробку внутри черной коробки»: это лаконичный объем, подходящий для экспозиций разного масштаба и типа. Внешний облик должен больше напоминать «объект», чем здание: это позволит сохранить оригинальность даже среди плотно застроенного Джардини, где, помимо прочего, павильоны часто закрыты густой зелень, и даже эффектные постройки не всегда легко оценить по достоинству.
Павильон Австралии на Венецианской биеннале. Эскиз проекта © Denton Corker Marshall
Павильон Австралии на Венецианской биеннале. Эскиз проекта © Denton Corker Marshall



Среди ныне существующих национальных павильонов есть как постройки видных архитекторов 20 столетия (павильоны Австрии Йозефа Хоффмана, Скандинавии Сверре Фена, Нидерландов Геррита Ритвельда, России Алексея Щусева, Венесуэлы Карло Скарпы…), так и невзрачные здания (например, Уругвай показывает свои выставки в бывшем складе биеннале).

Н. Ф.
Павильон Австралии на Венецианской биеннале. Эскиз проекта © Denton Corker Marshall
Павильон Австралии на Венецианской биеннале. Эскиз проекта © Denton Corker Marshall
Павильон Австралии на Венецианской биеннале. Эскиз проекта © Denton Corker Marshall
Павильон Австралии на Венецианской биеннале. Эскиз проекта © Denton Corker Marshall
Павильон Австралии на Венецианской биеннале. Эскиз проекта © Denton Corker Marshall
Павильон Австралии на Венецианской биеннале. Эскиз проекта © Denton Corker Marshall